こんにちは!よかレジです。
今回は、福岡市中央区の新築マンションクリオラベルヴィ薬院白金の紹介です。
最初に明記させていただきます!
本記事は明和地所株式会社提供によるPR記事です。
※PR記事ではありますが、忖度なしでお伝えします。
この度ご縁をいただきまして、天神にあるクリオ ライフスタイルサロン福岡にお邪魔し、
担当の方からじっくりと本プロジェクトの想いを伺ってきました。
本物件のコンセプトは Motion & Serenity
それでは、詳しく見ていきましょう!
物件概要
- 所在地:福岡県福岡市中央区白金一丁目15号10番(地番)
- 交通:西鉄天神大牟田線「薬院」駅徒歩5分、福岡市地下鉄七隈線「薬院」駅徒歩5分
- 用途地域・地区:第二種住居地域、 準防火地域
- 地目:宅地
- 建ぺい率:60%
- 容積率:300%
- 敷地面積:358.78㎡ (登記簿・実測・建築確認対象敷地面積)
- 建築面積:144.79㎡
- 延べ面積:1,320.93㎡ (容積対象外面積280.87㎡含む)
- 構造・規模:鉄筋コンクリート造・地上12階建
- 総戸数:23戸(住戸22戸、 管理事務室1戸)
- 販売戸数:22戸
- 建築確認番号:第ERI-25010765号[2025年(令和7年)5月23日付]
- 竣工予定:2027年3月中旬
- 入居開始予定(引渡可能年月):2027年3月下旬
- 売主:明和地所株式会社 福岡支店<国土交通大臣(9) 第4118号>〒810-0001 福岡市中央区天神1-2-12 メットライフ天神ビル12階(一社)不動産協会会員 (公社)首都圏不動産公正取引協議会加盟
- 設計:株式会社セカンド設計
- 施工:共栄建設株式会社
- 設計図書閲覧場所:明和地所株式会社 福岡支店
- 手付金等保証機関:東京不動産信用保証株式会社
- 入居後の管理形態:区分所有者全員で管理組合を結成し、 管理組合より管理会社へ委託 (管理員通勤方式)
- 管理会社:明和地所コミュニティ株式会社 福岡営業所
- 分譲後の権利形態:敷地は専有面積割合による所有権の共有。建物の専有部分は区分所有権。共用部分は専有面積割合による所有権の共有。
- マンションコミュニティ:クリオラベルヴィ薬院白金ってどうですか?
立地

クリオラベルヴィ薬院白金 公式HPより引用

クリオラベルヴィ薬院白金 公式HPより引用

クリオラベルヴィ薬院白金現地 明和地所提供写真(2025年夏撮影)

クリオラベルヴィ薬院白金現地

銀杏並木 接道から南方向を撮影
-1024x684.jpg)
銀杏並木 明和地所提供写真(2025年夏撮影)

薬院駅 なんか好きなんですよねぇこの駅舎
アドレスは福岡市中央区白金1丁目。
第一印象は「バランス良い立地で、単身で住むには最高だろうな〜!」です。
何を隠そう、私よかレジが福岡に移住して一番最初に選んだ街、それがここ薬院でした。
それゆえ、このエリアの事情に多少(?)は詳しいですし、その利便性の高さや都会的で洗練された雰囲気を身をもって体感してきました。
西鉄天神大牟田線・地下鉄七隈線「薬院」駅から本物件までは、信号なしのフラットアプローチです。
また、本物件までの道のりは銀杏並木。実際に駅 ↔︎ 本物件を歩いてみましたが、並木道を歩いているとあっという間に着きます。
表記上の「徒歩5分」よりも個人的に近く感じました。
信号待ちのストレスがなく景観も良い。通勤など毎日のことなので駅までの道のりは非常に重要で、QOLに直結するポイントです。
駅まで信号なしフラットで行けるということは、駅ビル内のスーパー、レガネットマルシェ薬院もノンストレスでアクセスできます。
自炊派も惣菜派も、サッと日常使いできる強力な味方です。(よかレジも当時本当にお世話になりました。懐かしい〜)
薬院、とりわけ本物件のある白金エリアは飲食店の充実度もピカイチだと感じます。
ここで、よかレジおすすめのスポットを少しご紹介します。
- 熟成鮨光史郎 ※GoogleMap表記で徒歩4分280m
誕生日や記念日など、ちょっと背伸びしたい大切な日に使わせてもらってます。
- 響喜 ※GoogleMap表記で徒歩3分180m
お酒(日本酒)の種類が豊富で薬院に住んでいた頃は夫婦でよく伺わせていただきました。
- とどろき酒店 薬院stand! ※GoogleMap表記で徒歩2分170m
- ポコムーチョ ※GoogleMap表記で徒歩5分350m
この他にも開拓しがいのあるお店が山ほどあり、飲食店で困ることはまずないと断言できます。
その他、周辺施設で特筆すべきは、大宮2丁目に開業したNOT A HOTEL FUKUOKAがすぐ近くにあることでしょう。
ワインバーやプライベートサウナがついた部屋、出張シェフを呼んでパーティーができる部屋など、
尖ったコンセプトで作り込まれた感度の高いホテルです。
非日常の極みという感じで、なかなか普段使いできる場所ではないかもしれませんが、
遠方の友人を招いた時のハレの場として、あるいは自分へのご褒美として、人生に彩りを与えてくれそうです。
こういった洗練された施設が徒歩圏内にあることこそ、このエリアのブランド力を証明しています。

NOT A HOTEL FUKUOKA
デザイン

クリオラベルヴィ薬院白金 公式HPより引用

クリオラベルヴィ薬院白金 公式HPより引用

クリオラベルヴィ薬院白金 公式HPより引用 本物件が位置する第二種住居地域の形状からデザインの着想を得ている
福岡のクリオ/クリオ ラベルヴィの中でも、最も洗練されたイマっぽいデザインだと感じました。
アウトフレームで重厚感を出しつつも、1階部分のルーバーや植栽、バルコニー軒裏天井の木目調デザインなどウッドを多用し柔らかい印象も備えています。
敷地面積は350㎡ちょっとの小規模物件ではありますが、竣工したらなかなか目を惹くのではないでしょうか。
将棋の駒のようにも見えるこの特徴的な外観デザイン、創造にあたって白金1丁目の形状(用途地域:第二種住居地域の形状)や、白金(プラチナ)の結晶などから着想を得ていると担当の方から伺いました。
このようなデザインソースの詳細を聞かせていただけるのも、モデルルームならではの楽しみです!

クリオラベルヴィ薬院白金 公式HPより引用
続いてエントランス。
大規模タワマンのような豪華絢爛な印象はないですが、ミニマルにまとまっていて個人的になかなか好みのテイストです。
ちょっとしたラウンジのようなものがあれば来客対応にも使えるのですが、残念ながらソファやテーブル等はありません。
共用施設はほぼなしですが、1階に共用トイレが配備されています。
それにしても、東京のクリオ日本橋人形町、名古屋のクリオ代官町ザ・クラシックなども外観デザインに凝っていて、
年々とクリオ/クリオ ラベルヴィシリーズ全体のデザイン偏差値が上がってきている印象があります。

クリオ日本橋人形町 公式HPより引用

クリオ代官町ザ・クラシック 公式HPより引用
設備仕様
よかレジが重視する分譲マンション三種の神器(仮)
まずは恒例(?)の三種の神器チェックから。・内廊下:×
・各階ゴミ置き場:×
・ディスポーザー:×
福岡のクリオ/クリオ ラベルヴィは基本的に三種の神器は非採用の傾向にありますが、今作もその仕様を踏襲しています。
【ディスポーザー】
薬院・白金というエリア柄、周辺には魅力的な飲食店が豊富ですし、セカンドハウスとしての需要も多いと推察されます。
それゆえ、毎日料理をする「自炊ガチ勢」は少ないかもしれませんが、この立地を選ぶ検討層は住まいに対する感度や要求水準も高いはず。
なのでディスポーザーは実装して欲しかった、というのが正直なところです。
【内廊下】
こちらもエリアの洗練された雰囲気を考えると内廊下が似合いそうですが、外廊下仕様となっています。
また、少し気になったのは手摺です。共用廊下側の手摺が「格子手摺」を採用しており、意匠性やプライバシー性の観点で惜しいと感じます。
【各階ゴミ置き場】
各階ゴミ置き場や、ゴミ回収サービス等はありません。
ただ、1階ゴミ置き場への動線はしっかり配慮されており、雨に濡れずにアクセスできる点はGoodです!

2階部分の庇も伸びておりゴミ捨てで雨に濡れることはないでしょう クリオラベルヴィ薬院白金 公式資料に筆者加筆
その他設備仕様
続いて、専有部の細かな仕様を確認していきましょう。一覧は以下の通りです。・基本天井高:2,450mm
・サッシ高:2,300mm
・構造:二重床・二重天井
・キッチン:タッチレス水栓、食洗機
・空調・暖房:LD床暖房、壁掛けエアコン(非天カセ)
・トイレ:タンクレストイレ、手洗いカウンター
・浴室サイズ:1216
・省エネ性能:ZEH-M
一通りの設備は整っている印象です。
ここで何よりも特筆すべきはやはり高さ2,300mmを誇るハイサッシです!
いやぁ、これは本当にたまらんですね〜。
クリオ ライフスタイルサロン福岡のコンセプトルームにおいても、この天井高2,450mm × サッシ高2,300mmの空間構成が再現されています。
実際の写真をご覧いただくと、その開放感が伝わるかと思います。(いや、やっぱり写真では伝えきれないからサロンに行ってほしい!)

クリオ ライフスタイルサロン福岡のコンセプトルーム
開口部のクオリティは、室内の雰囲気に大きく影響を与える要素です。
率直に言ってしまうと、立派な家具を置いたり、リノベで豪華な内装にしても、
開口部の質(高さ・ガラスの大きさなど)が低いと、空間全体がパリッと仕上がりにくいのです。
そして忘れてはならないのがサッシは共用部分であるため入居後に個人でリフォームして変えることができないという点です。
マンションの構造等に詳しくない方だとスルーしてしまいがちなポイントですが、
こういった「後から変えられない部分」にコストをかけて頑張ってくれているのは本当に尊いです。
そのほか、標準仕様ではなかなか見ない点で言うと、キッチンのタッチレス水栓でしょうか。
よかレジは未体験ですが、一度採用したら手放せないという声もたまにお聞きします。
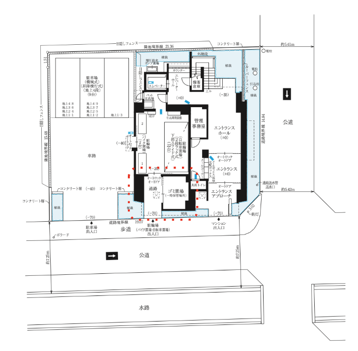
駐車場
駐車場は地上4段の機械式で9区画用意されています。総住戸数に対する設置率は約40.9%です。本物件のエリア特性や、コンパクト中心のプランニングを鑑みると、車を持たない世帯も多いでしょうから、
この設置率は違和感のない水準と言えそうです。
気になるパレットサイズは以下の通り。
・全長:5,050mm
・全幅:1,900mm
・全高:2,100mm
・重量:2,300kg
全高2,100mmはハイルーフ対応で素晴らしいのですが、
全幅1,900mmは最近の大型化する車幅事情を考えると少し物足りないかもしれません。
※本物件のターゲット層的にも、ミニバンなど背の高いファミリーカーより、横幅が広いスポーツカーなどの方が需要ありそうな印象
しかし、欧州のミッドサイズSUV等も車種によって入庫可能ですので、比較的優秀なパレットサイズと言えそうです。
調べてみたところこんな感じ。
・メルセデスベンツ GLC(全幅1,890mm):〇
・アウディ Q5(全幅1,900mm):〇
・BMW X3(全幅1,920mm):×
※もしかしたら年式やモデルによって異なる可能性があります。検討中の方は実際のサイズを必ずご確認ください
個人的に「おっ!」と嬉しくなったポイントは、機械式駐車場がルーバーで目隠しされている点です。
剥き出しの機械式駐車場だと、どうしても「メカメカしさ」が前面に出てしまいマンションの外観を損ねてしまいますが、
しっかりと意匠に配慮して隠してあるのは好印象です。
なお、駐車場は完全に屋外に設置されています。
車への乗り降りの際は雨に濡れる動線となり、ここは割り切りが必要です。
また、駐車場の敷地はターンテーブルが配備されるほど狭い敷地ではありませんが、
バックで駐車となると何回か切り返しを要しそうな広さです。

機械式駐車場もデザインの一部として落とし込んでくれています クリオラベルヴィ薬院白金 公式HPより引用した画像に筆者加筆
間取りについて
本物件の間取りは、Aタイプ(2LDK・46.16㎡)とBタイプ(2LDK・46.01㎡)の2プランです。それぞれ、細かいポイントを解説していきます!
はじめにひとつお伝え事項です。
「隣り合う住戸を連結して広い部屋にできれば、ファミリー世帯にとっても面白い選択肢になるのでは?」
と思ったのですが、構造上連結住戸への変更は対応していないとのことでした。
Aタイプ(2LDK・46.16㎡)

クリオラベルヴィ薬院白金 公式HPより
良い点
・廊下が短く、効率的40㎡台という限られた面積においては、少しのデッドスペースも死活問題になりがちです。
その点、本プランは廊下スペースを最小限に抑えており、有効面積を最大化しています。
・収納が充実
SIC(シューズインクローク)に加え、WIC(ウォークインクローゼット)が2つもあります。
正直なところ、モノが部屋の中に溢れてさえいなければ、ある程度オシャレで小綺麗な空間は作れるものです笑
そういう意味でも収納はとても大事。
なお、洋室1のサービスバルコニーに繋がるWICは扉が二重になっているとのことです。
・”ちゃんとした”1LDKとして使える可動式間仕切り
リビングと隣接する洋室を繋げて広く使えるプランはよくありますが、
よかレジが重視するのは「繋げた時に、本当に一体的な空間になっているか?」です。
その点、本物件のAタイプは素晴らしいです!

クリオラベルヴィ薬院白金 公式HPより引用した画像に筆者加筆
ウォールドアを全て開けた際、扉を収納するスペースがきちんと確保されています。
扉が出っ張って邪魔な状態にならず、空間の繋がりを阻害しません。
ポイント②:サッシの連続性
こちらも重要な点です。
LDは掃き出し窓でも、洋室側は腰高窓になっていて、可動式間仕切りを開けた時になんかチグハグというパターンをよく見かけます。
しかし本物件Aタイプは、5連サッシのように窓が連続しているため、LDと洋室を無理やり繋げた感がなく、美しい一体空間が完成します。
※サッシの連続性についてのイメージとして、マンション散歩(@FireKousoku)さまのポストを記載させていただきます。
「すみふのマンションっていいな😊」と思うポイントは、間取りの良さは勿論のこと、サッシの大きさです。サッシの大きさはQOLに直結する要素だと思っています。
— マンション散歩 (@FireKousoku) November 27, 2025
画像をご覧ください。… https://t.co/kxIk6IMibG pic.twitter.com/pUrMB25Ahd
気になる点
・浴室サイズが”1216″A・Bタイプ共通ですが、これは惜しいポイントです。
単身だろうとファミリーだろうと、そこに住む大人の体のサイズは変わりません。
本物件で採用されている設備仕様ではありませんが、最近は1216サイズでも快適さを追求したLIXILの「バストープ」といった製品もあります。
空間活用のアイデア自体は素晴らしいのですが・・。
やっぱり「特別な手間なく、夜は足を伸ばしてゆっくりお風呂に浸かりたい!」というのがよかレジの本音です。
次はぜひ単身向けのお部屋でも「1317」以上でお願いします!

バストープ公式HPより引用

バストープ公式HPより引用
・リビングイン洗面室の音問題
こちらもA・Bタイプ共通です。
小さなお子さまがいる家庭では動線として優秀なリビングイン洗面ですが、単身あるいは大人だけの世帯だと好みは分かれると思います。
個人的に気になるのは洗濯機の稼働音です。
引き戸1枚でLDKと隣接しているため、音や振動がLDKに伝わる可能性があります。
外出中に洗濯機を回すなど工夫すれば良いのですが、在宅ワークが多い方だと気になるかもしれません。
Bタイプ(2LDK・46.01㎡)

クリオラベルヴィ薬院白金 公式HPより
良い点
・横長リビング × 4連ハイサッシ!なんといっても、このLDのサッシ構成が最高です。
基本天井高2,450mmに対し、サッシ高は2,300mm。このハイサッシが同じサイズ感(←ここ重要)でズドンと4枚連なっています。
図面上で見るよりも、竣工後に実物を見た時のインパクトと開放感は相当なものでしょう!想像するだけで美しいです。
・40㎡台で独立した居室×2
いわゆる田の字型プランのため、共用廊下側に窓のある独立した居室を2つ確保できています。
中住戸の場合、共用廊下側の2部屋は、他の住人が通る足音や気配、配送業者の台車の音など気になるのがデメリットとされがちです。
しかし本物件は1フロア2邸。つまり、Bタイプの玄関前を通るのはBタイプの住人(自分)だけ。
プライバシー性が確保されており、田の字特有のネガティブ要素が見事に解消されています。

クリオラベルヴィ薬院白金 公式資料に筆者加筆
気になる点
・洋室2の「斜め採光」による変形間取りA・Bタイプ共に整形な部屋が多い本物件ですが、Bタイプの洋室2だけは少し癖があります。
入り口付近が斜めにカットされていますが、これは建築基準法の採光条件を満たすための苦肉の策です。※「居室」と認められず「納戸」扱いになる
この斜め採光の影響で、家具配置の難易度が上がります。
デッドスペースが生まれやすいため、ベッドやデスクをどう置くか、事前のシミュレーションが大事です。
A・Bタイプ、それぞれどんな方に向いてくる?
A・Bタイプ、それぞれの間取りを比較してどういった方に向いてくるかまとめます。▼Aタイプ
対象としては、単身もしくはリモートワークがない(少ない)DINKS向けといったところでしょうか。
・LDKを広く取りたい(大きめの家具を配置したい)
・状況に応じて部屋の間取りを変えたい
・洋服や趣味のモノが多く収納力を重視したい
特に上記のような方に合ってくると思います。
▼Bタイプ
こちらも対象としては、単身もしくはDINKS向け。
リビングアウトの洋室が2部屋あるので、リモートワークにも対応しやすそうです。
・プライバシー性の高い部屋数を確保したい(LDK、仕事部屋、寝室を分けたい)
・リビングのサッシの開放感を重視したい ※Aタイプより幅が広い。そして形状も均一で美しい!
特に上記のような方に合ってくると思います。
ズバリ、よかレジはどちらの間取りを選ぶ?
あくまで優劣ではなく、生活スタイルや好みになりますが…私はBタイプ推しです!クリオラベルヴィ薬院白金
— よかレジ (@yokaresi) September 25, 2025
小さめのプランしかないですが、この外観デザインと、LD4連サッシかつサッシ高2300mmはめちゃくちゃ良いな〜 pic.twitter.com/Fk9eIfvUxf
決め手はやはりサッシです。
あの4連ハイサッシの美しさは、毎日の生活満足度を大きく引き上げてくれるでしょう。
図面上の見え方は地味かもしれませんが、住んでから気づくタイプの良さです。
リビングインの居室がなく、空間がしっかり分かれているのも、リモートワークが多い我が家には嬉しいです。
また、Bタイプほうがキッチンの横幅が若干広く、料理も好きなよかレジとしては嬉しいポイント。
上記で触れた洋室2の斜め採光による変形間取りは気合いでなんとかします。
洋室2を仕事部屋にする場合は、窓面のラインに合わせて造作でデスクを作ってもいいかもしれません。
階数選びのヒント
選べるうちは「銀杏並木を望む低層階」、「視界が完全に抜ける高層階」どちらかに振り切った2択で検討すべきだとよかレジは考えます。低層階の魅力
薬院エリアは利便性が高い反面、どうしてもコンクリートに囲まれた環境になりがちで「緑」を感じられる場所は意外と少ないのが実情です。
その点、本物件の目の前に広がる銀杏並木は季節ごとに色を変え、良いアクセントになりそうです。
「窓の外に緑がある」というだけで、QOLはグッと上がります。
-1024x684.jpg)
銀杏並木 明和地所提供写真(2025年夏撮影)
高層階の魅力
一方で、前の建物を完全に超えてくる高層階からは、遠くの油山まで見渡せる素晴らしい眺望が期待できます。
ここで活きてくるのが、やはりあのハイサッシです。
46㎡という専有面積は数字だけ見ればコンパクトですが、眺望の開放感は視覚的な部屋の広がりを生みます。

12階相当からの眺望シミュレーション クリオラベルヴィ薬院白金 公式HPより引用
緑を取るか、空の広さを取るか。
自身の好みや予算に合わせて低層階 or 高層階に振り切ることで、より満足度が得られるかと思います。
まとめ
薬院に馴染みがあるというバイアスもありますが、私よかレジ、このマンションなかなか好きです。記事を書いていたらまた薬院に住みたくなってきました。
冒頭で述べたように、まずは何よりバランスの良い立地です。
薬院の中でも利便性、落ち着き、自然を備えたエリアは少ないので、立地の希少性は高いでしょう。
浴室1216やディスポーザー等がなかったりと設備仕様で気になる部分はありますが、
外観デザインやハイサッシなど、後から変えられない部分も随所でこだわりを感じ、
「明和地所としても気合いの入った物件だな」という印象です。
今回、明和地所株式会社 × よかレジがコラボした初のPR記事を公開させていただきました。
もともと本物件が気になっていたところ、タイミング良くお話をいただき記事作成という流れだったので、
モデルルーム(サロン)の訪問、現地調査、記事執筆、どれもとても楽しかったです。
この記事を読んでクリオラベルヴィ薬院白金が気になった方は、ぜひクリオ ライフスタイルサロン福岡へ足を運んでみてください。
本物件の価格やランニングコストなどの詳細、記事の中では紹介しきれなかったカラーセレクトやオプションなど、丁寧にご案内いただけます。
また、記事で紹介したコンセプトルーム(2,300mmのハイサッシの再現)を見るだけでも、価値はあると思います!
最後までご覧いただきありがとうございました!
今後も福岡のマンションに関する情報発信を強化していきます!
本物件の購入相談など含めて、ご用の方はTwitter(現X)や、よかレジの公式LINEから連絡お待ちしております。
それでは、また!

記事にコメントする