Brillia Cityふじみ野は、上福岡駅徒歩10〜13分に建設される15階建て、総戸数708戸の大規模マンションで竣工済、即入居可能となっています



不動産
東武東上線沿線でもここまでの規模の新築マンションは珍しく、気になっている方も多いでしょう
私はこれまで3回の自宅マンション売買で資産形成に成功してきました
2021年から販売がはじまったこの物件を、2026年の現段階でおすすめできる方、おすすめできない方について考察します
【この記事でお伝えしたいこと】
- 販売最終盤を迎えた現在でも坪200万円前後から購入可能
- 4LDKの残り在庫多め。4人家族以上のご家庭にマッチしやすい
- ディスポーザー、床暖房がないなど設備仕様は低い一方で管理費修繕積立金は割安
- 駅近の交通利便性よりも商業施設隣接の買い物利便性を優先したいなら良い選択肢
駅徒歩10分以上という距離やディスポーザー・床暖房がない設備仕様など気になる点があるのは事実です
一方で、自走式駐車場、割安な管理費・修繕積立金、イオンやヤオコーなど買い物利便性など日常生活のしやすさにつながるメリットが目立つ物件です
この記事では立地、価格、メリット・デメリットを整理しながら、Brillia Cityふじみ野がどんな人に向くマンションなのかお伝えします
ぜひ最後までお読みください※画像は公式HPから引用させていただきました
目次
物件概要

- 所在地:埼玉県ふじみ野市大原2丁目1735番1他(地番)
- 交通:東武東上線上福岡駅徒歩10分~13分
- 総戸数:708戸
- 敷地面積:26,446.96㎡
- 建物竣工:竣工済
- 売主:東京建物株式会社、近鉄不動産株式会社、大和ハウス工業株式会社、株式会社長谷工不動産
- 施工会社:株式会社長谷工コーポレーション
- 駐車場:490台
- 駐輪場:1,478台
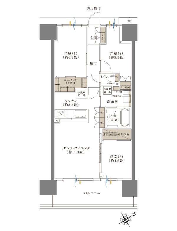
間取りと販売価格

Brillia Cityふじみ野は、
- A棟 PARK SIDE RESIDENCE(写真右)
- B棟 FOREST RESIDENCE(写真中央)
- C棟 SKY RESIDENCE(写真左)
80㎡前後4LDKの選択肢が多いようですね
C-Hタイプ 2LDK+S 68.29㎡(20.65坪)
※C棟 SKY RESIDENCE

- 8階 4,538万円(坪220万円)
- 10階 4,588万円(坪222万円)
C-Kタイプ 3LDK 70.18㎡(21.22坪)
※C棟 SKY RESIDENCE

- 9階 4,628万円(坪218万円)
B-Fタイプ 4LDK 80.10㎡(24.23坪)
※B棟 FOREST RESIDENCE

- 3階 4,758万円(坪196万円)
- 7階 4,868万円(坪201万円)
- 8階 4,888万円(坪202万円)
- 12階 5,058万円(坪209万円)
B-Lタイプ 4LDK 80.10㎡(24.23坪)
※B棟 FOREST RESIDENCE

- 3階 4,838万円(坪200万円)
- 9階 4,988万円(坪206万円)
- 11階 5,058万円(坪209万円)
C-Aタイプ 4LDK 78.24㎡(23.66坪)
※C棟 SKY RESIDENCE

- 2階 4,678万円(坪198万円)
- 3階 4,698万円(坪199万円)
C-Lタイプ 4LDK 80.10㎡(24.23坪)
※C棟 SKY RESIDENCE

- 2階 4,868万円(坪201万円)
- 6階 5,018万円(坪207万円)
- 9階 5,108万円(坪211万円)
- 12階 5,298万円(坪219万円)
管理費修繕積立金は割安
- 管理費(月額)12,000円~14,100円 176円/㎡
- 修繕積立金(月額)5,820円〜6,820円 85円/㎡
このあと解説する自走式駐車場と設備仕様の弱さがその理由になっています
自走式駐車場と買い物利便性 日常生活の満足度は高い

メリットとして挙げたいのが自走式駐車場を採用している点です
近年の新築マンションでは
- 駐車場に割り当てる大きな敷地がない
- なるべく住戸を増やして利益を多くしたい
郊外ファミリーマンションでは車を利用する家庭も多く、機械式駐車場と比べて出し入れの手間が少なく待ち時間や故障リスクが低い自走式は生活利便性に直結します
加えて将来の維持、修繕コストの面でも優位に立ちます

また、生活利便性の面ではヤオコーが隣接、イオンも至近にあり日々の買い物環境も整っています
食料品や日用品をまとめて購入しやすく子育て世帯にとっては特に便利な立地で、上福岡駅前よりもむしろ日常生活のしやすさは高いと言えるでしょう
ふじみ野市役所が近いことも何かと重宝しそうです
設備仕様は弱点

- ディスポーザーなし
- 床暖房なし
- 食洗機なし
- 洋室ウォールドアに下レールあり
これらをいままで利用してその便利さを実感できている、これは譲れないと思う方には本物件は向きません
毎日の生活満足度に直結しますから妥協しないことをおすすめします
賃貸に住んでいた方がはじめてマンションを購入する層をターゲットにして、その代わり販売価格や管理費など毎月の固定費を安くしました、と振り切った販売戦略なのでしょう
総評 Brillia City ふじみ野はこんな人に向いている

Brillia Cityふじみ野の評価を一言でまとめると
「資産性より実用性を取った大規模ファミリーマンション」です
メリット
- 自走式駐車場
- 管理費・修繕積立金が安い
- イオンやヤオコーを中心とした買い物利便性
- 駅徒歩10分以上
- ディスポーザーや床暖房がない
- 住戸によっては眺望が被る
東武東上線沿線で、4人以上の家族が無理なく住める新築マンションを探している方におすすめしたいですね
資産価値と利用価値のバランス
駅徒歩10分以上をどう考えるか“資産価値を優先するなら駅距離を最優先しよう”
新築マンション選びでは誰もがそう言います
私もそのように情報発信してきましたし、駅近新築マンションの購入/売却を繰り返して資産形成に成功してきた経緯もあります
仮に上福岡駅徒歩1分の立地に新築マンションができるとしたら販売価格は1,000万円以上高くなるでしょう
実際にこの駅距離の差に1,000万円の価値があるのか考えたとき
実は毎日の片道徒歩10分が健康に良いかもしれないし、子どもの教育資金や自分の趣味や浪費に使ったほうが豊かなのではないか
駅近マンションに住む人が運動不足を解消したいからと会員制のフィットネスジムにお金をかければさらにコストは膨らみます
実際の生活を考えると、駅距離をそこまで嫌う条件ではないと考えることもできるし、ヤオコーやイオンでの買い物利便性では優位に立ちます
このような考え方に賛同できるのであれば、Brillia Cityふじみ野は検討すべき物件になるでしょう
最後にいくつかの評価項目を整理してみます
立地 ★★★☆☆東武東上線上福岡駅から徒歩10分以上という距離は、郊外マンションとしては許容範囲ですが駅近ではありません
都心アクセスは池袋まで35分と現実的ですが、資産性という観点では駅距離がマイナスポイントになります
価格 ★★★★☆坪単価200〜220万円は東武東上線の新築マンションとしては相場より抑えた水準と評価します
志木や朝霞などの都心寄りエリアよりは明らかに安く、ファミリー向け新築としては手を出しやすい価格帯と言えるでしょう
住環境 ★★★★☆総戸数708戸の大規模マンションらしく、敷地のゆとりや共用施設が充実している点は魅力です
自走式駐車場やイオン・ヤオコーなどを利用しやすい買い物環境など、日常生活の利便性は高いと評価します
設備仕様 ★★☆☆☆ディスポーザーや床暖房、食洗機がなく控えめな仕様です
これらの利便性を重視する方には物足りなく感じるでしょう
資産性 ★★★☆☆駅距離や大規模マンションゆえの中古競合を考えると資産性が高いタイプではありません
ただし販売価格がリーズナブルであり、実需ファミリー向けとしてはバランスが取れています
この記事が皆さまのお役に立てれば幸いです
最後までお読みいただきありがとうございました
[スムラボ編集部より] 本ブログ記事の情報は投稿日時点のものです。現在の販売情報は物件公式サイトをご参照下さい。






















記事にコメントする