バウス所沢小手指タワーは、西武池袋線小手指駅徒歩4分に建設される29階建て、総戸数659戸のタワーマンションで2028年3月下旬に引き渡し予定となっています
価格を教えてください!
おすすめのお部屋はあります?

マンションが暴落するってニュースが多くて怖い…
不動産
価格情報を入手できましたので解説します!
私は過去に3回の自宅マンション売買で一定の資産形成をしてきました
小手指駅徒歩4分、600戸を超える大規模タワーマンションの私が考えるおすすめの部屋をお伝えします
【この記事でお伝えしたいこと】
- 坪平均355万円、70㎡換算7,530万円
- 階数による価格差が大きい
- 私ならEwタイプの低層階に申し込みます
- 低層階で眺望の良い部屋を“資産価値の高い”選択肢としておすすめします
ぜひ最後までお読みください
※画像は公式HPから引用させていただきました
目次
物件概要

- 所在地:埼玉県所沢市小手指町1丁目25-8 他3筆(地番)
- 交通:西武池袋線小手指駅徒歩4分
- 総戸数:659戸
- 敷地面積:14,921.63㎡
- 建物竣工:2027年12月下旬
- 売主:中央日本土地建物株式会社、九州旅客鉄道株式会社、一建設株式会社
- 施工会社:株式会社長谷工コーポレーション
- 駐車場:345台
- 駐輪場:1,037台
2階に共用施設が集約

◼️1階
エントランスホール

2階吹き抜けで高級感があります
◼️2階
ライブラリーラウンジ

アミューズメントルーム

プレイングラウンジ

珍しいところでは、スターバックスコーヒーのエスプレッソマシンが設置されるとのこと
お洒落な卓球台やビリヤード台もあり高級感を演出してくれそうです
高層階にスカイラウンジはありません
設備仕様のレベルは高い


天然御影石天板や玄関電池錠も標準装備で設備仕様のレベルは高いですね
そして隣接した敷地には商業施設が新設され2026年12月にオープンします
西友を中心とした商業施設隣接で買い物利便性良好

西友小手指店が2023年に閉店した跡地に西友が復活しバウス所沢小手指タワーも建設される形になります
スケジュール
- 2026年12月西友新規開業
- 2028年3月バウス所沢小手指タワー引渡し
販売住戸の間取りと価格

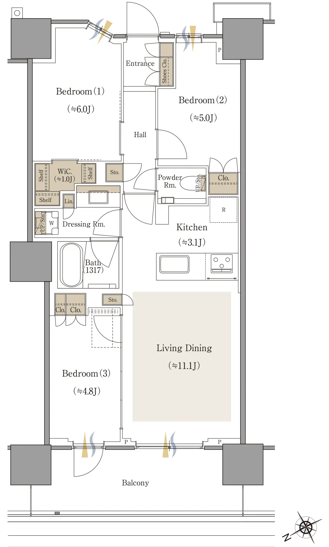
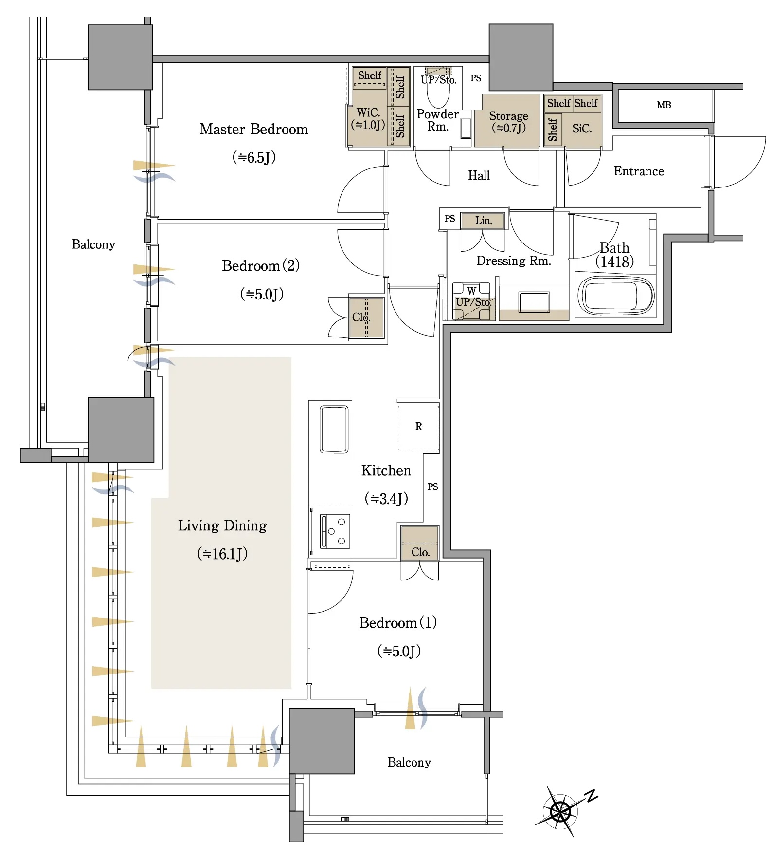
全体平面図から分かることは以下のとおり
- ドーナツ状の外廊下タイプ
- 各階ゴミ置き場あり
- エレベーターは16階以上の高層用と15階以下の低層用が各3基と非常用が1基
間取りごとの価格を見ていきます
予定価格のたとえば“6,500万円台”の下2桁は80万円とし6,580万円で坪単価を算出しています
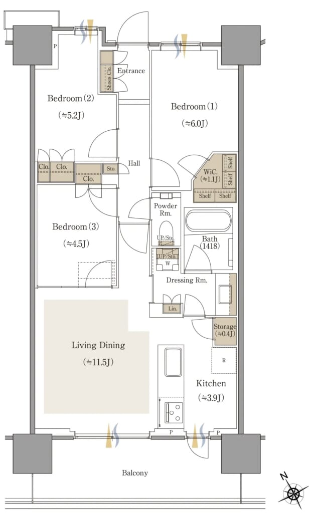
Ewタイプ 60.66㎡ 2LDK 西北西向き

- 26階 7,500万円台(坪413万円)
- 16階 6,900万円台(坪381万円)
- 15階 6,500万円台(坪359万円)
- 7階 5,700万円台(坪315万円)
- 4階 5,600万円台(坪310万円)
Asタイプ 71.25㎡ 3LDK 南南西向き

- 29階 11,800万円台(坪551万円)
- 26階 9,400万円台(坪440万円)
- 16階 8,300万円台(坪389万円)
- 15階 7,900万円台(坪370万円)
- 7階 7,300万円台(坪342万円)
- 4階 7,200万円台(坪338万円)
- 2階 7,100万円台(坪333万円)
Dseタイプ 82.76㎡ 3LDK 南南西向き

- 29階 15,100万円台(坪606万円)
- 26階 11,400万円台(坪459万円)
- 16階 10,900万円台(坪439万円)
- 15階 10,500万円台(坪423万円)
- 7階 10,100万円台(坪407万円)
- 4階 9,900万円台(坪399万円)
- 2階 9,800万円台(坪395万円)
Hwタイプ 69.02㎡ 3LDK 南南西向き

- 29階 10,600万円台(坪512万円)
- 26階 8,500万円台(坪411万円)
- 16階 7,800万円台(坪378万円)
- 15階 7,400万円台(坪358万円)
- 7階 7,000万円台(坪339万円)
- 4階 6,900万円台(坪334万円)
Iwタイプ 65.62㎡ 3LDK 西北西向き

- 29階 10,200万円台(坪518万円)
- 26階 8,100万円台(坪412万円)
- 16階 7,400万円台(坪377万円)
- 15階 7,000万円台(坪357万円)
- 7階 6,700万円台(坪342万円)
- 4階 6,500万円台(坪331万円)
管理費修繕積立金はやや高め
- 管理費;382円/㎡(月額)
- 修繕積立金;180円/㎡(月額) ※5年ごとに値上り見込み
- インターネット使用料;一律1,760円(月額)
免震構造は地震に対する安全性を高める

ゴムやダンパーといった免震装置によって揺れの伝わりを低減します
私も免震構造のマンションに住んだことがあり確かに実際の震度よりも小さく感じました
小手指は武蔵野台地の強固な地盤でもあり地震に対する安全性は非常に高いと言えるでしょう
総評 投資目線からの私の見解

総戸数659戸の大規模タワーマンションが小手指に誕生
始発の設定も多く都心方面への通勤需要として気になる方も多いのではないでしょうか
今回価格表を見た第一印象は…
不動産
階数でこんなに差付けます?
でしたね
価格表を眺めながら、私ならどの間取り階数を選ぶか考えてみました
私ならEwタイプの低層階にします
坪310万円ほどの手頃な価格と、公開空地に設置される緑地帯と遠くに山々が見える眺望は低層階でありながら良いと感じました

リビングに入って窓からなにが見えるか
私はこれを重視しています
比較的安いからといっても眺望の苦しい部屋は避けます
中古で売却するときのことを考えてみましょう
私の記事ではいつも同じことを書いていて申し訳ありませんが
“リビングに入ってきた人に高揚感を与えられる部屋を選んでください”
あなたの部屋を訪問してくれた人は一生でもっとも高額な買い物をしようとしています
窓からとなりのビルしか見えないとなればすぐに帰ってしまうかもしれません
内見に来たのであれば、マイナス要素がなければ買いたい気持ちになっています
その気持ちをリビングからの眺望が後押ししてくれます
待ってもマンション価格は下がらない
ほんとうにこの高値の時代に買ってよいのか、暴落するといったニュース記事を目にして不安に思ってしまうかもしれません日本でもデフレからインフレの時代が来たと実感できるようになり、待てば待つほどモノの値段は上がってしまいます
私は約30年建築資材を扱うメーカーに勤務し、ここ数年はかつてないような原材料の高騰に見舞われ、販売価格に転嫁できなければ経営が成り立たなくなるような混乱を経験しました
マンション建設に必要な資材、人件費、エネルギーコストなど、待てば安くなるような時代ではありません
資産価値の高い物件を峻別して購入すること
それは便利で快適な自宅マンションに住みながら売却することになっても値下りしにくい、値上りもねらえる、QOL=Quality of life(生活の質)と資産の積み上げの両立につながります
私はこれを繰り返してきました
- 小手指に地縁がある
- 始発電車で通勤したい
- 商業施設隣接で買い物利便性を魅力に感じる
バウス所沢小手指タワーは、将来的な住み替えや売却も視野に入れやすい資産価値・利便性を持ちます
※筆者自身のマンション売却経験(囲い込みを実感した経緯や判断の迷い)を、個人ブログ側で整理しています
売る・売らないを決める前の参考情報としてまとめていますので、ご興味ある方はご覧ください
マンション売却で「囲い込み」を避けたい人が最初に知っておくべき判断軸(キウイ不動産ブログ)
この記事が皆さまのご参考になれば幸いです
最後までお読みいただきありがとうございました
[スムラボ編集部より] 本ブログ記事の情報は投稿日時点のものです。現在の販売情報は物件公式サイトをご参照下さい。
この記事を見ている人はこちらも見ています
記事に出てきた物件の掲示板
公式サイトもチェックしよう!

- 埼玉県所沢市小手指町1-
- 西武池袋線 小手指 駅徒歩4分 西武新宿線 新所沢 駅徒歩25分
- 4928万円~1億5178万円
- 2LDK~3LDK
- 53.72m2~82.76m2
- 74戸 / 659戸























記事にコメントする