はいはいはいはいはい、元鉄道運転士のカネーです。
レーベン東川口GRANDESTのモデルルームにいってきましたのでレビューします。
目次
物件概要
所在地埼玉県川口市戸塚二丁目1-1外3筆(地番)
交通
JR武蔵野線、埼玉高速鉄道 埼玉スタジアム線「東川口」駅徒歩1分
用途地域
商業地域
敷地面積
2,109.89m²
構造・規模
鉄筋コンクリート造・地下2階、地上18階建
総戸数
143戸 (他、管理事務室1戸、キッチンスタジオ1戸、市行政施設1区画、交番1区画)
駐車場
24台(タワーパーキング)・使用料:14,000円・16,000円
駐輪場
160台(2段ラック式81台、傾斜ラック式14台、傾斜スライドラック式37台、スライドラック式(3人乗り)14台、平置(3人乗り)10台、レンタサイクル置場4台)・月額使用料:100円~500円
ミニバイク置き場
8台・使用料:3,000円
建物竣工予定
2023年11月中旬
入居予定
2023年12月下旬
設計・監理
株式会社GA建築設計社
施工会社
埼玉建興株式会社
分譲後の権利形態
敷地:専有面積割合による所有権の共有、
建物:(専有部)区分所有権、(共用部)専有面積割合による所有権の共有
売主・販売代理
株式会社タカラレーベン
売主
埼玉建興株式会社
管理会社
株式会社レーベンコミュニティ
掲示板:レーベン東川口 GRANDEST(旧称:レーベン東川口駅前project)ってどうですか?
立地

※公式HPより

駅をでて歩道を通るとすぐマンションへ
デザイン
うおおおおおぉぉオオオ!!
タカラレーベンのマンションのデザインは好きです。黒を基調とした洗練とされたデザイン。前回ご紹介したヴェレーナシリーズとは違うかっこよさがあります。
埼玉県の分譲マンションでは初の官民連携事業
もともとは川口市の市営駐輪場があった場所です。川口市が市民の定住の為にデベロッパーを募集したところ㈱タカラレーベンになったとのことですが川口市に支店を置いてあることが条件だった為、お付き合いのあった埼玉建興㈱に声を掛けて共同売主となったとのことでした。
充実設備
・温水システムTES式床暖房・食器洗い乾燥機
・ガラストップコンロ
・浴室テレビとリモコン
・たからの水※1
・たからのミラバスビジョン※2
・たからのミラブルシャワー※3
・浴室換気暖房乾燥機
※1:家中すべての蛇口から「美味しく」「安全」な浄活水が利用可能です。実用新案登録済 第3137167号、有料でカートリッジ交換が必要です。装置は水道法で定められた基準値内で浄活水されます。効果効能には個人差があります。
※2:入浴時に、超微細な気泡による「洗浄」「温浴効果」などが得られます。実用新案登録済 第3148050号、酸素セラミックは別売りとなります。効果効能には個人差があります。
※3:優れた洗浄力のファインバブルを含む水流を、2ウェイで使える画期的なシャワーです。※ミストへの切り替えは特殊機構でワンタッチです。「たからのミラブルシャワー」シャワーヘッドは別途お渡しとなります。シャワーヘッドの交換はお客様ご自身でお取付けをお願いいたします。
設備は充実しています。タカラのマンションは水に拘っていますので水の設備はどのタカラのマンションにも標準でついていると思われます。
ディスポーザーがないのが非常に残念です。
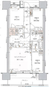
間取り 価格
13階 6,700万円台 坪単価 286万
4階 5,800万円台 坪単価 248万
管理費:16,500円
修繕積立金:7,000円
16階 5,400万円台 坪単価 278万
8階 4,900万円台 坪単価 252万
管理費:13,700円
修繕積立金:5,800円
12階 5,300万円台 坪単価269万
管理費:13,900円
修繕積立金:5,800円
14階 5,200万円台 坪単価 276万
8階 4,800万円台 坪単価 254万
5階 4,600万円台 坪単価 244万
管理費:13,300円
修繕積立金:5,800円
17階 5,900万円台 坪単価 286万
9階 5,400万円台 坪単価 262万
管理費:14,600円
修繕積立金:6,200円
16階 5,400万円台 坪単価 279万
6階 4,800万円台 坪単価 248万
管理費:13,600円
修繕積立金:5,800円
14階 5,800万円台 坪単価 272万
5階 5,300万円台 坪単価 249万
管理費:15,100円
修繕積立金:6,400円
9階 6,200万円台 坪単価 277万
管理費:15,800円
修繕積立金:6,600円
16階 4,900万円台 坪単価 288万
14階 4,800万円台 坪単価 282万
管理費:12,000円
修繕積立金:5,000円
平均坪単価267万
比較
新築
デュオヒルズ東川口テラス4,298万円~4,998万円 68.93m2~76.16m2
坪単価 205万~216万
3,800万円台~5,300万円台(予定価格) 68.35m2~80.77m2
坪単価 183万~216万
中古
築10年以内 東川口駅徒歩10分圏内の在庫
築10年以内 東川口駅徒歩10圏内 直近2年以内の成約
資産価値
上記の中古物件をみますと、東川口駅近辺の築5年以内の中古は坪170から180くらいで動いています。ただ駅徒歩1分のデュオヒルズ東川口ザ・ファーストをみますと築3年の坪234万で成約しています。
私が今回レーベン東川口GRANDESTを見に行ったのは近隣にライバルとなるマンションが少なく資産価値が担保できそうと考えたからです。
実際に営業の方に話を聞くと高層階は資産をお持ちの方が投資目的で購入されている例が多いそうです。逆に低層階はご家族や戸建からのお引越しで実需として購入されてる方が多いとの印象だそうです。
東川口駅自体は浦和、武蔵浦和、大宮、川口などの主要駅と比べると、マンションの供給は多くなくレーベン東川口GRANDESTは東川口で№1のマンションになると私は思っております。その為、近隣の周辺物件より坪単価は高いですが、駅1分・官民連携のマンションが今後東川口に供給される可能性は低いため、持っておきたいと思われる方は買われても良いマンションだと思いました。当然、武蔵浦和や浦和に比べると資産価値は低いかもしれませんが、比較すると価格は安いですしその駅の№1マンションだと思うと悪い買い物ではないと思います。
注意点としてはマンションの南側は駐輪場です。将来建物が建設される可能性がありますので資産価値の維持を期待するのであれば高層階を狙ったほうがいいでしょう。
埼玉高速鉄道
私は埼玉高速鉄道の利便性はとても高いものと考えております。
2年前の台風19号の時にJRは全てとまりましたが、地下を走る埼玉高速鉄道はその影響を受けませんでした。また、現在は6両編成ですが8両編成の増両します。そして南北線の品川駅延伸が決まっていますので、埼玉高速鉄道はリニアの乗り換え駅である品川駅まで乗り換えなしで行くことができるようになります。飯田橋や四ツ谷、六本木など埼玉県内のJR沿線では乗り換えないと辿り着けない場所に乗り換え無しでいける点もポイントが高いです。
ネックは運賃の高さにあります。


都内へ通勤する場合は上記の料金に加え東京メトロの運賃もかかります。
例:東川口-新宿
[埼玉高速鉄道経由] 440円(埼玉高速鉄道)+250円(東京メトロ)=690円
[JR武蔵野線経由] 480円(JR東日本)
このようにJRの駅が目的地になった場合は埼玉高速鉄道は分が悪いです。
例2:東川口-六本木
[埼玉高速鉄道経由] 440円(埼玉高速鉄道)+250円(東京メトロ)=690円
[JR武蔵野線経由] 570円(JR東日本)+170円(東京メトロ)=740円
目的地が東京メトロの駅になれば東京メトロに分がある駅が多くなります。
その為、通勤で利用される場合は会社の規則をよく確認された方がいいと思います。せっかく地下鉄で通勤ができて座れる可能性もあるにもかかわらず、JR経路しか選ぶことができないのは辛いと思います。
ただ、2路線選べるというのは大きいです。帰郷の為、東京駅を使う場合はJR武蔵野線を使えば問題ないですし、1つ隣の南越谷駅からは羽田空港までのバスがでていますので気軽に利用することも可能です。
販売スケジュール
現在先着順の販売は行っておりません。上記でご紹介した間取りのお部屋は登録可能住戸になっており、申し込み期間は4月17日(日)までです。登録が重複した場合は抽選になります。今回を逃すと残り住戸はわずかになりますので気になる方は早めの資料請求と来場予約をおススメします。
全く関係ない話
※マンションの紹介ではなくカネーの自己満足告知です。興味ない方はスルーしてください。皆さま今年のGWの予定はお決まりでしょうか。カネー家は前半は私の実家の広島へ、後半は妻の祖母宅の新潟へと日本横断弾丸ツアーを計画しております。総移動距離は2000キロオーバーで全て車で移動する予定です。埼玉-広島間は新幹線、飛行機での移動も視野にいれていたのですが、保育園の子どもを2人連れていると(荷物)(交通費)を考えた時にカネー家では車の方が効率がよくなってしまいます。ただ、GW中はETCの休日割引が効きませんのでいかに深夜帯を走行して深夜割引を効かせるかが重要になります。
埼玉-広島間の移動距離は約800キロ、高速道路料金は割引がなければ18,000円もかかります。深夜割引の30%の割引の効果は大きいです。
選択としては
- 車中泊をする
- 朝早くでて0時に広島のインターをでる
- サービスエリアにある宿泊施設を利用する
ターゲットは滋賀県名神高速道路にある多賀サービスエリアのレストイン多賀という宿泊施設です。
※新名神高速経由では利用できませんのでご注意ください。
こちらのツインルームで大人料金1人につき子どもは1人まで添い寝扱いで無料です。その為4人家族であれば大人2人分の宿泊料金で泊まることができます。お子さんが3人になりますと3人分の大人料金がかかってしまうのでご注意ください。
このルートで広島へ向かう場合、広島到着はお昼頃を見込んでおります。
新幹線で自由席で向かった場合は大人片道18,000円×2で36,000円かかります。
※指定席を取ると更に子ども料金2人分としてプラス18,000円かかります。
車とサービスエリアの場合は、高速代が12,000円(深夜割り適用)、ガソリン代が10,000円(概算)、宿泊代10,500円で合計32,500円。
さらに広島での足確保と荷物、お土産を加味しますと車での移動という結論に至りました。
実際は飛行機や新幹線で移動した方が楽なのですが、それは家族なしで単身で帰省した時だけの利用になるでしょう。
広島滞在のち、妻は仕事の為先に飛行機にて帰ります。
広島空港から羽田空港への航空運賃は早割を利用して12,000円ほどでした。
ホテルの予約も飛行機の予約もGWは埋まってきておりますので、帰郷や遊びに行く予定の方は早めの予約をおススメします。
GW期間中は上記の移動の様子と疲弊っぷりを Twitterでひたすらつぶやきます。見て頂けると励みになります。
ご覧頂きありがとうございました。



































記事にコメントする