今回レビューするのは、えんホールディングスのエンクレストガーデン福岡です!総戸数364戸(6棟)と福岡エリアでは珍しい大規模物件であり、東街区3棟208戸が2025年12月竣工予定、残り3棟158戸は2028年の竣工予定となっております。
よって直近で購入を検討の方も、今後じっくりマンション購入を検討したい方も対象になり得る物件です。なお、本記事の画像の引用元はすべて物件公式HPです。
こんな生活ができる!
平日は2分に1本発車するバスに乗り通勤、飲みすぎて遅くなってしまった日は桜坂駅からの徒歩や、天神エリアからタクシーで帰宅。放課後の子どもたちは隣接する公園で目一杯走り回ることができます。食材の買い出しは公園の奥のサニーが大活躍ですが、プラス一品ほしいときや買い忘れてしまったものがあるときは建物1階にある24時間営業のコンパクトなスーパーで調達しましょう。休日は天気がよければ徒歩圏内の動物園や植物園まで行くことができる他、博多や天神にも家から30分もあれば着いてしまうのでショッピングも気軽にいくことができます。暑さ寒さが厳しい季節や雨が降った休日は地下の平置き駐車場から愛車に乗り込み、大通り沿いのチェーン店や大型ショッピングモールに出かけてみんなでご飯を食べるのも良いですね。もちろん外出しなくても、リビングの窓から公園の緑を眺めたり、広いバルコニーでのんびり過ごしたり、共用ライブラリーで子どもの宿題を見てあげたり…というように充実した休日を過ごせそうです。そんな生活が少しでもいいなと思ったらぜひ続きをご覧ください!
物件概要
・名称:エンクレストガーデン福岡・所在地:福岡市中央区小笹4丁目78番1
・交通:西鉄バス「小笹団地東門」バス停 徒歩約2~3分
・総戸数:364戸(東街区208戸)
・用途地域:第1種中高層住居専用地域、第2種15m高度地区
・構造・規模:鉄筋コンクリート造一部鉄骨造
〈1期〉 A棟 地上5階建 B棟 地上12階建 C棟 地上14階建
・敷地面積:17,670.75㎡ 〈1期〉10,272.84㎡
・建物竣工予定:2025年12月下旬
・引渡予定:2025年12月下旬
・分譲後の権利形態:土地及び建物共用部「所有権の共有」、建物専有部「区分所有権」
・売主:株式会社えんホールディングス
・施工:福田・旭建設工事共同企業体
・分譲後の管理形態:購入者全員で管理組合を設立し、管理会社(株式会社長谷工コミュニティ九州)に委託
・駐車場:〈1期〉屋外平置式89台・地下駐車場平置式123台(うち48台に電気自動車用コンセント設置)、合計212台
・駐車場:〈1期〉208台
・バイク置場:〈1期〉8台
・掲示板:エンクレストガーデン福岡ってどうですか?
物件名に「福岡」を冠するマンションはカッコいいですね。福岡市内で11,000戸以上のマンションを供給してきた「えんホールディングス」のフラッグシップ物件であることがビシビシ伝わってきます!(小笹という地名が、地下鉄の駅がなく知名度が低いことの裏返しでもあるでしょうが…)
立地
キャッチフレーズは「天神」「博多」へ縦横無尽のアクセス
天神まで13分!?実際の所要時間は?
電車アクセス
最寄り駅は地下鉄七隈線の桜坂駅で、徒歩17分ほど。それなりに距離もあり駅から上り坂になるので日常的に駅まで徒歩利用する人は多くなさそうです。公式サイトも桜坂駅までの徒歩所要時間には一切言及していないですが、散歩するのにちょうどいい季節や、飲み会で桜坂駅からの終バスを逃したときに歩くという選択肢を残せるのは良いですね。
バスアクセス
本物件から徒歩3分ほどの「小笹団地東門」から桜坂駅、天神、博多方面のバスが出ています。とくに博多方面は平日朝7時台28本と、ほぼ2分に1本出ているので、通勤通学には大変便利です。
キャッチフレーズでは「天神まで13分、博多まで16分」と大きく掲載されていますが、これは「小笹団地東門バス停から桜坂駅までバス6分、桜坂駅から七隈線で天神南駅まで7分、博多駅まで10分」を足し算したものなので地下鉄への乗り換えや、待ち時間は考慮されておりません。実際に本物件から天神に出るときは30分近くかかるケースもあるでしょう。
小笹エリア
本物件の位置する小笹は、中央区アドレスながら緑あふれるエリアで徒歩10分圏内に動物園や植物園があります。南側に隣接する小笹中央公園を抜けて筑肥新道まで歩けば、サニーなどのスーパーや飲食店もあるので、休みの日に家族で外食するときも困らなくていいですね!寿司といっしょにビールをがぶ飲みしたいのではま寿司に歩いて行けるのは、ポイントが高い
学校
小笹小学校 徒歩15分
平尾中学校 徒歩13分
私立では上智福岡や福大大濠、筑紫女学園が近くに存在し、簡単に通うことができる進学先の選択肢も十分用意されていると言えます。
デザイン

圧倒的スケール感!
本物件の玄関、顔は北側になります。一般的に板状マンションの北側は廊下がくるのでカッコよくなりづらいですが、本物件は特殊な構造から外廊下と占有部の窓が混じる外観になっており、普通のマンションより凹凸感がありますね。また6棟の建物で階数が統一されておらず、A棟やF棟の高さが低いのでいわゆる「団地感」を感じにくいデザインになっています。ただ個人的には建物のデザインよりも植栽の方に期待してしまいます。福岡の街を歩いてるとき「このマンションの外構カッケー!」と思って建物を見るとだいたいエンクレストの賃貸なんですよね。そんなエンクレストのフラッグシップ分譲の庭がカッコよくないわけがないでしょう!とくに外構のライトアップは実物じゃないとカッコよさが伝わらないので完成が楽しみです。

日が暮れてから家に帰るとき、カッコよく家が迎えてくれるかは大事!
共用部
1番のアピールポイントは24時間営業のTRIALGOが入店するところです!オムライスつくろうって思いながら帰って冷蔵庫開けたら卵が1個しか入ってなくて絶望したことはありませんか?明日水筒に入れるお茶を作ろうと思ったらお茶のパックが切れてて絶望したことはありませんか?日常生活のちょっとした絶望を救ってくれるのが敷地内に併設された24時間スーパーです。ちなみにこちらのスーパーは顔認証での決済システムが導入される予定ですので財布やスマホすら持たずに買い出しにでることもできます。
もう1点「おっ」と思ったのは駐車場です。総戸数以上の平置き駐車場が設定されていて、地形をうまく活用することで、そのうち半分以上が地下平置きになっています。風雨に晒されず、タワーパーキングや機械式のように待ち時間が発生しない屋根付きの平置きはカーライフを満喫する上で最強の駐車場じゃないでしょうか!(屋外は夏場に車に乗り込んだ瞬間が暑すぎる…)電気自動車の充電に対応した区画も多く用意されております。ただしエレベータで地下まで降りられるわけではなく、地上階から階段で降りる必要があるのは注意点です。キャンプ道具など重い荷物を積み込む際はエントランスの車寄せを活用しましょう。

まるで都心の高級レジデンスのようだ…
また、大規模物件らしく、
コンシェルジュサービス
コワーキングスペース(ライブラリーラウンジ)
24時間ゴミ出しOK
といった共用部分も備わっております。
車に大量の荷物を積み降ろししたいときにコンシェルジュでサッと台車を借りられるのは良いですね。なお、コンシェルジュとコワーキングスペースは住戸用の建物とは別のセンターハウスに置かれます。わざわざ別の建物が用意できるほど土地にゆとりがあるとは…ただ、364世帯もあってセンターハウスまでつくるんだったら、ゲストルームやちょっとしたジムがあってもいいのにと思ってしまいますね
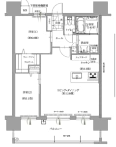
占有部
立地でも明確な通り、完全にファミリー向けの物件なので間取りも2LDK〜4LDKで設定されていて、広さのレンジは59.16平米〜82.67平米です。全ての間取りを紹介するとキリがないので、今回は部屋数ごとに1タイプずつ間取りを紹介します。ここで紹介しきれない間取り・最新の販売進捗状況ははぜひホームページやMRにてご参照ください。
2LDK
7階 62.64㎡ 4,460万円 (約235万/坪)

62㎡でLDK17畳は贅沢!
3LDK
9階 71.34㎡ 5,380万円 (約249万円/坪)

居室2部屋が南窓アリなので子供部屋が明るくなりそう
4LDK
5階 82.67㎡ 6,170万円 (約246万円/坪)

テレビの置き場所…
分譲最終期に差し掛かっている現在、販売価格は250万円/坪前後です。
最寄り駅まで徒歩17分とはいえ、現在の中央区周辺の新築マンションの販売価格を考えるととても手を出しやすい価格ではないでしょうか?
ちょっとした特徴ですが、最も戸数の多いC棟は少し変わった作りをしていて、角部屋でなくても南北どちらの方角にも掃き出し窓とバルコニーが設定されている部屋が用意されています。両方の窓を開ければ気持ちよく風が家の中を抜けるでしょう!

中住戸は角住戸よりワイドなので単純に、角>中、という話ではない
設備面で推したいところは、この価格にも関わらずトイレが標準でタンクレス&手洗いカウンター仕様になってるところです。見栄えが良いのはもちろん、小さい子どもは便器の上の手洗いには手が届かないので地味に嬉しいポイントだと思います。また、手ぶらキーも標準装備なっています。ポケットに鍵をいれて手ぶらでTRIALGOで買い物・顔認証で財布やスマホを持たずに決済、そのままポケットの鍵を一度も出さずに帰宅、なんてことも可能です!その他、専有部の設備面は、モデルルームを案内していただいた感想としては「分譲マンションとして必要最低限の設備は十分備わっている」という印象でした。
まとめ
エンクレストガーデン福岡の最大の魅力は圧倒的な規模感に起因する生活のしやすさにあり、とくにファミリー世帯はこの魅力を享受できるのではないでしょうか。バスでの通勤が気にならない方は完成間近の東街区はもちろん、3年後に完成する西街区でもぜひ検討の余地アリだと思います![スムラボ編集部より] 本ブログ記事の情報は投稿日時点のものです。現在の販売情報は物件公式サイトをご参照下さい。
記事に出てきた物件の掲示板
- エンクレストガーデン福岡(検討スレ) | (住民スレ) | (まとめ) | (スムラボ)
公式サイトもチェックしよう!

- 福岡県福岡市中央区小笹4-
- 福岡市地下鉄七隈線 桜坂 駅 徒歩18分 西鉄バス 小笹団地東門 バス停 徒歩2分~3分 地下鉄七隈線 桜坂 駅 西鉄バス6分 小笹団地東門 バス停 徒歩2分~3分 西鉄天神大牟田線 西鉄平尾 駅 西鉄バス13分 小笹中央公園前 バス停 徒歩4分~5分 西鉄天神大牟田線 西鉄平尾 駅 徒歩30分
- 4330万円~6860万円
- 2LDK~4LDK
- 59.16m2~82.67m2
- 22戸 / 364戸




















記事にコメントする