目次



不動産
私はこれまで3回の自宅マンション売買で資産形成に成功してきました
販売価格と毎月の固定費がどうなるか、これが購入判断を左右します
【結論】
- 内廊下タワマン、駅前再開発、駅徒歩1分、下層階に商業・公益施設、ペデストリアンデッキで駅直結と、資産価値目線では文句なし
- 蕨駅の駅力がやや弱いものの、本物件の竣工により評価は上がる
- 販売価格と管理費修繕積立金が高すぎないか慎重に見極めることが最重要
この記事を読むことで上記結論の理解が深まります
ぜひ最後までお読みください
物件概要

引用;W CITY TOWERS公式HP
- 所在地:埼玉県蕨市中央一丁目206番
- 交通:京浜東北線蕨駅徒歩1分
- 総戸数:413戸
- 敷地面積:7286.79㎡
- 建物竣工:2027年5月中旬
- 売主:住友不動産株式会社
- 施工会社:前田・大末特定建設工事共同企業体
- 管理会社:未定
- 駐車場:未定
- 駐輪場:未定
駅徒歩1分 住・商・公 一体複合再開発

蕨駅西口に商業・公益・住宅が一体となったツインタワーが誕生します
未来価値を創造する駅前大規模再開発
それは、かつてなかった高みへの希求。
この時代に贈るタワーライフの一つの到達点。
いま、都心を貫く大動脈JR京浜東北線
「蕨」駅直結徒歩1分(一部、ペデストリアンデッキ経由[予定])にツインタワーが現れる。
1995年本再開発の都市計画が決定し、2010年に「シティタワー蕨」が竣工。
そして、いよいよ2027年、約30年の夢が結実するWシティタワーズが誕生。
引用;W CITY TOWERS公式HP
再開発組合の方々の長年にわたる地権者との交渉や調整など多大なる尽力、未来に残る街づくりにはたいへん感謝いたします
便利で安全性の高い生活の基盤ができあがります

内廊下タワーマンション、駅前再開発、駅徒歩1分、下階に商業施設・公益施設、ペデストリアンデッキで駅直結
資産価値目線では満点といった条件が並びます
雨に降られることなく、行政施設での手続き、図書館利用ができ、とくに高齢者の方におすすめしたいですね

引用;蕨市公式HP
商業施設にスーパーやドラッグストア、飲食店、医療クリニック、調剤薬局が入れば、建物内で生活が完結しそうです行政も関わる駅前再開発マンションは資産価値が高い

ツインタワーのほか、駅前広場の整備やペデストリアンデッキが新設されますから駅前の景色は一変します
これまでの蕨の印象といえば


それが2028年になると

商業施設や公益施設と一体で建設される駅前再開発タワーマンションは資産価値が高く新築マンション選びの鉄板です
行政の補助金が入っていることが多く、売主としては駅前の一等地を購入するのにその一部を行政が負担してくれる形になる
駅前の希少な土地は、マンションだけでなくオフィスやホテル、大型商業施設と様々な目的でその土地を購入したい業者のなかで最も高い値を付けなければ購入することができません
そういう視点からも再開発物件は購入した価格から値下りしにくい、または値上りする可能性が高くねらい目としておすすめしています
補助金のメリットが大きい
蕨市公式HPの事業計画書を確認してみましょう
引用;蕨市公式HP_蕨駅西口地区第一種市街地再開発事業_事業計画書(令和6年3月8日変更)
事業費約344億円の23%、79億円が補助金となっていますもちろん住居部分以外の整備にもお金がかかりますから、税金でマンションが建てられるわけではありません
マンションに付随したペデストリアンデッキや商業、公益施設、周辺道路が本物件の共用施設と捉えることもでき、これらに補助金が使われているとなればマンション居住者にとってメリットといえるでしょう
70㎡前後の3LDKが中心
間取りと面積、それぞれの戸数も掲載されています
引用;蕨市公式HP_蕨駅西口地区第一種市街地再開発事業_事業計画書(令和6年3月8日変更)
70㎡前後の3LDKが314戸と、全415戸の76%を占めています
さらに設計図も記載されていましたので見ていきましょう
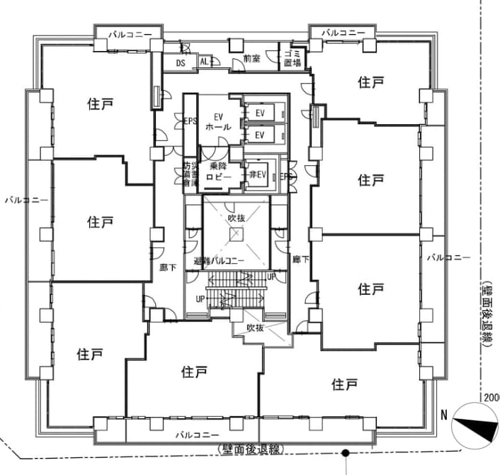
内廊下設計
WEST 5~25階設計図より
なんといっても内廊下はポイント高い!
埼玉県No.1物件とされるURAWA THE TOWERは外廊下ですから、この部分ではこちらに軍配があがります
各部屋への柱の食い込みが少ないのも好印象
エレベーターは3基
8戸中半分の4戸が角住戸となります
方角は南向き、西向き、北向きと価格設定がどうなるか見極めどころですね
EAST 5~25階設計図より

エレベーターは同じく3基で南西向きの住戸が多くなります
やはり角住戸比率は高めです
価格予想 坪480万円

URAWA THE TOWERが坪700万円ですから坪550万円でも正直違和感はありません
願望込みで坪480万円と予想しました
60㎡台後半で1億円を切る販売価格にしてくるのが現実的な値付けではあるものの、当てにいくなら坪550万円と予想すべきかもしれません
私ならどうするか
550万円なら購入しません
480万円なら購入を検討します
価格発表を待ちましょう
管理費修繕積立金が高すぎないか慎重に判断する
販売価格だけでなく、管理費修繕積立金の高騰もわれわれ購入者側としては悩ましいところです2017年から2023年の7年間でマンション管理費が3割値上りしたとの記事もあります(「マンション「管理費」値上げ相次ぎ平均3割増 相談は過去最多」朝日新聞デジタル、2023年10月13日)
2022年からはじまった円安と世界的なインフレにより一定の値上げは理解できるのですが、必要以上に高く設定している物件もあり、あるタワーマンションでは800円/㎡、70㎡あたり5.6万円といったケースもありました
修繕積立金と合わせて6万円を超えてしまいます
管理費+修繕積立金、毎月かかる固定費をぜひ購入判断のひとつとしてください
既存タワーマンションとの比較

同じ再開発事業区域に2010年竣工のシティタワー蕨があります
直近では坪310万円で動いていましたが、本再開発事業竣工に向けて高騰していくのは間違いないでしょう
いまのうちにシティタワー蕨の中古を購入するのも賢い選択になるはずです
総評

仮に私の予想価格坪480万円だとしても70㎡で1億円前後です
この再開発事業で誕生するタワーマンションを心待ちにしていた方が、1億円を投じてすぐに購入を決断できるでしょうか
5年前であれば湾岸のタワーマンションに手が届く、50㎡台なら中央区や千代田区、港区も視野に入っていたでしょう
1億円近い住宅ローンを組んで毎月6万円以上の固定費を払っていくとなれば、子育て世帯の会社員が容易に選択できる道ではありません
多くの方々が長年努力されて誕生するこのツインタワーが、富裕層の相続対策、外国人の投資対象になり空室ばかりになってしまう
このような結果にならないことを願っています
とはいえ、売主側は高く売れるならなるべく高く売りたい
企業ですから当然のことでしょう
われわれ購入者側が判断を誤ると後々の資産形成にブレーキがかかってしまう
くれぐれも、ここに住んで人に自慢したいような承認欲求を目的とした行動やマインドは避けてください
数字を慎重に精査して購入するかどうか判断しましょう
この記事がみなさまのお役に立てれば幸いです
最後までお読みいただきありがとうございました
[スムラボ編集部より] 本ブログ記事の情報は投稿日時点のものです。現在の販売情報はLifull Homesをご参照下さい。





















記事にコメントする