船橋駅は常に人が行き交い、千葉県内でも活気のある街の一つです。
私は千葉県出身であり幼少期から船橋駅を幾度となく利用していたことから、思い入れのある街でもあります。
2018年に西武百貨店が閉店してから長らく経過した後、 跡地にタワーマンションが建設されるニュースを聞いて早2年、その全容を心待ちにしていました。
目次
物件概要
本物件はNO.1 TOWER と銘打っており、千葉県最高となる高さ193mで51階建ての超高層マンションです。その規模に相応しい複合開発物件として、6階部分まではテナントとオフィスが入ります。
船橋駅と京成船橋駅までは本物件と同時期に完成となるペデストリアンデッキで接続されます。
総戸数は677戸で、地権者がいないため、全戸分譲となります。
引き渡しは、2028年3月予定です。
- 所在地:千葉県船橋市本町一丁目115番6、本町七丁目1150番4 他
- 交通:
JR中央・総武線各駅停車・総武線快速「船橋」駅まで徒歩2分
東武アーバンパークライン「船橋」駅まで徒歩2分
京成本線「京成船橋」駅まで徒歩4分 - 敷地面積:6,668.16m2
- 総戸数:677戸
- 完成年月: 2028年3月予定
- 引渡可能年月:2028年3月予定
- 規模:鉄筋コンクリート造地上51階地下1階建(一部鉄骨造)
- 用途地域:商業地域
- 売主:大和ハウス工業株式会社、東京建物株式会社、京成電鉄株式会社
- 販売:大和ハウス工業株式会社、東京建物株式会社
- 設計:株式会社長谷工コーポレーション
- 施工:株式会社長谷工コーポレーション
周辺環境
ペデストリアンデッキで接続される船橋駅は、千葉県内でも乗降客数が多いターミナル駅です。JR東日本2024年度の乗車人員ランキング19位で、県内では西船橋に次いて第2位の乗車人員です。
総武線の混雑は昔からで、朝夕の通勤ラッシュは凄まじいものがありますが、東京駅まで総武快速線で25分と都心へのアクセスが良好で、更に朝と夜の通勤ラッシュ時には東京メトロ東西線直通運転もあります。
なお総武線の混雑は昔からで、朝夕の通勤ラッシュは凄まじいものがあります。
JRのほかには東武アーバンパークライン、JRからは離れますが京成本線「京成船橋」駅があります。
東武アーバンパークラインは主に船橋駅から柏駅までを繋ぐ線のため、利用頻度は少ないかと思いますが、一部は乗り換えなしで人気のおおたかの森駅にもダイレクトでアクセスが可能です。
生活利便性は、駅前を見れば一目瞭然です。総武線沿線らしい活気が感じられます。
デッキで接続される船橋フェイスは複合施設で船橋市役所出張所が、買い物については、本物件隣にシャポーがあり地下にはスーパーマーケット、駅に接続した東武百貨店のほか北口にはイトーヨーカドーもあります。
飲食店が非常に豊富で、特にラーメンと居酒屋が多いのが特徴です。
昼から空いている格安で上手い居酒屋も多く、ハマる人は楽しい生活が送れそうです。
市内には、南船橋駅に直結した国内最大規模のららぽーとTOKYO-BAYがあり、船橋駅前から路線バスが出ています。
京成船橋駅から2駅の船橋競馬場からも徒歩5分です。船橋競馬場からも無料の送迎バスがあります。
なお、利便性の高い鉄道環境の反面、本物件周辺の道路事情は良いとは言えず常に混雑しています。
最寄りの京葉道路船橋ICまでの時間が読めないのが厳しいところでしょうか。
子育て環境については、本物件のホームページに子育てに関する記載が見られないことが物語っています。
小学校は船橋小が8分程度でこちらは許容範囲ですが、中学校が駅北口の船橋市立船橋中学校で15分超の距離です。
広い公園どころか緑が近くになく、一歩外に出れば行き交う人々で賑わっており落ち着いた環境ではありません。
市内には「トリップアドバイザー」が選ぶ”日本のテーマパーク部門”でディズニーに次いで3位にもなったことがあるアンデルセン公園や充実した施設を有する船橋市運動公園とプールがありますが、船橋駅からは車がないと厳しい距離です。
県内の新浦安や幕張、柏の葉とはキャラが全く異なります。物件のコンセプトからもお子さんが高校生以上の自立した年齢の世帯、もしくは子育てを要しない世帯がターゲットといえるでしょう。
物件詳細
外観・共有部
677戸にしては戸数以上の規模に見えます。内廊下で、ワイドスパンのゆとりある設計です。近くに高層ビルがないために、完成後は多くの人の目を引くでしょう。
周辺から注目される存在になることが確約されています。
テナント区画は分譲で、現時点ではどこが買い手になるのか決まっていないとのこと。スーパーマーケットを期待したいところですが、未定とのことでした。
設計、施工が長谷工コーポレーションとのことで、一抹の不安(コストダウン)が頭をよぎりましたが、最近ではリビオタワー品川を手掛けており、その高いクオリティから心配はなさそうです。
モデルルームでの映像と模型を見る限り、ホームページよりも濃淡がなくスッキリとした印象を持ちました。
モデルルームの1/40を再現した模型は大迫力で、私が見た中では過去一番の大きさです。
駐車場は、タワーパーキング200台です。
- ハイルーフ(EV対応) 14台
- ハイルーフ 54台
- ミドルハイルーフ 93台(内47台EV対応)
- ハイルーフ94台(内39台EV対応)
- 専用使用権12台(EV対応)
- 身障者優先1台
駐車場料金は28000円~35000円です。
駐車場200台とは都内と同様の設置率で不足気味ですが、価格設定が高いために周辺の月極のほうが安くなります。
共有施設
- カフェスペース+ワークスペース (46階)
- ライブラリースペース (46階)
- パーティルーム3室 (46階)
- フィットネスルーム (6階)
- ゲストルーム2室 (6階)
- ランドリールーム (4階)
- メロディラウンジ (3階)
- ワークスペース (3階)
総戸数としては充実した施設です。
パーティルームやカフェスペースは本物件でも条件が良いとされる西向きに配置されているので、満足度は高いでしょう。
パーティルームは3つありますから使用できないこともなさそうです。
カフェスペースでは飲食の提供も予定されているようで、実現すれば嬉しいですね。
専有部
個人的に特徴的と感じる部分をピックアップしました。- 天井高2.7m
- 角部屋 ダイレクトウィンドウ
- ハンズフリーキー
- 天井カセットエアコン
半面、カップボードなし、タイルは玄関のみ、トイレリモコンはスタンダードタイプとチグハグな印象はあります。トイレ・洗面化粧室のクッションフロアにソフト巾木は本当でしょうか。
アッパースイート(41階~48階)、トップスイート(49階~51階)では仕様が変わり、天井高がそれぞれ2.9m、3.2mとなります。
全熱交換器採用、廊下タイル張りやキッチン・トイレ・洗面化粧室などの仕様も変わり、高級物件に相応しい仕様となっています。
眺望については、周辺に高い施設が少なく、北向きがJR船橋駅でその先に東武百貨店、西向きは大和ハウス工業のビルがあり15階程度。東向きは船橋フェイスがあり20階程度です。
それより上は遮るものがなく、全方向タワーマンションらしい眺望が広がります。
南向きは東京湾が見え、本物件でも1番評価が高い方角となります。
バルコニーガラスについては高層階こそ透明ですが、中層階ではデザインにより乳白色の部屋が多くなっていますので、要確認です。
角住戸は足元からの見事なダイレクトウィンドウです。
価格考察
今回は地権者がないため、全住戸が販売対象です。条件の良い部屋からの販売となりそうですが、担当者との話では、方針として要望が入った住戸を売り出すイメージのようでした。
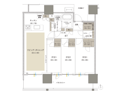
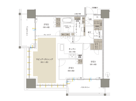
下記は間取りの一例です。
65E-1 68.98 ㎡

75C 76.23 ㎡

80E 81.54㎡

80F 83.91 ㎡

基本的にワイドスパンで間取りは良好です。
現時点で公表されている価格としては、スタンダードフロアは、高層階の南西、南東の角部屋で坪750万円程度、北東・北西は坪600万円程度、中住戸は南向き坪650万円,西向き600万円、北向きと東向きは550万円程度です。
階数差は1階あたり50~100万円くらいの設定かと思われます。
アッパースイートは、条件の良い南西が40000万円超を筆頭に20000万円台がずらりと並びます。
その上のトップスイートは更に1段価格が切り替わり、50000万円台(最も条件の良い部屋)が目に飛び込みました。1年前に3億円を超えるとの報道がありましたが、それを上回る値付けです。
全体的に最も価格が抑えられているのが北向きで、次に東向き、そこから西向きは価格が1段上昇し、南向きは更に1段上昇します。
南西角は本物件で最も高額な設定となっています。



3LDKは全ての部屋が1億円を超えそうですが、現状船橋では1億円を超える物件が見られないため、この価格帯にどこまで反響があるのかは未知数ではあります。
本物件の比較対象の筆頭はプラウドタワー船橋です。
昨年に坪330万円程度の成約があったようですが、直近では売り出しと成約事例が確認できませんでした。
沿線のタワーマンションとして津田沼ザ・タワーがありますが、船橋駅という立地、本物件の仕様と規模を勘案すると比較対象にはならないでしょう。
管理費は㎡当たり約600円、 修繕積立金は約250円でこちらは5年毎に見直しとなり20年で3倍にもなります。
総戸数が少ないためか、かなり高額な印象です。
外部貸出用と想定される駐車場部分の負担もあり、地味ですが重く感じます。
スマイルポイント(個人的なポイント)
良いと感じる点
- 千葉県No.1
公式ホームページ上において、NO.1は千葉県内で最高層であることを意味しているとありますが、船橋駅にデッキで直結した本作は、非常に希少性の高い立地です。
県内でもタワーマンションは増えていますが、この規模とクオリティの物件は有数であり所有満足度は非常に高いでしょう。 - 全方向で抜けた眺望
駅前一等地でありながら、周辺に高層ビルがないために、どの方角でも一定の階数を超えると十分な眺望が得られます。 - 良好な室内空間
70 m2を切る3LDKでも全室が窓面に接しています。
室内も柱の食い込みや梁が少なく、理想的な間取りです。2.7mの天井高もあいまって数値以上に広さを感じられます。
気になる点
- 船橋駅周辺の環境
駅周辺の空間は過去を知っている身からすると相当綺麗になりましたが、繁華街であることに変わりはありません。
小さいお子さんを持つファミリーで本物件を希望される方は、周辺環境をよく把握する必要があります。
個人的には小学生までのファミリーで船橋市内を検討されるなら、中古とはなりますが隣駅の新船橋駅の方がお勧めです。 - 高額な管理費・修繕費
70㎡で初期6万円程度となります。修繕積立金については、5年ごとの見直し予定であり、シミュレーション通りであれば、管理費、修繕費を合わせた額は20年後に10万円に迫る金額となります。
この価格帯では相当重い割合です。
人件費・物価共に高騰しているとはいえ千葉県でこれはさすがに… - 強気な予定価格
予定価格のままであれば、東京都と被る価格帯でパークシティ小岩 ザ タワー以上となります。
高層階は、千葉県内でこれまで見たことのない価格であり、以前にレポートしたザ・パークハウス 武蔵小杉タワーズを大きく超えて東京湾岸に迫る価格帯です。
販売スケジュール
- 登録申込受付開始:2026年2月上旬
- 契約会:2026年2月下旬
- 引き渡し:2028年3月
要望のある部屋から売り出す可能性があるため、気に入った部屋があれば担当者に相談した方が良いでしょう。
同社は東武アーバンパークラインの新鎌ヶ谷駅の物件でTHE RESIDENCE 新鎌ケ谷 TERMINAL FRONTを売り出しましたが、同様の方式でした。
販売戸数が多いため、抽選を避けるなどの配慮も相談できる可能性は高いです。
まとめ
船橋駅は高いポテンシャルを有しながらも、長らく大型物件が登場していませんでした。そこに登場した本物件は、千葉県内最高層、複合開発、共有部、内廊下、専有部、眺望、いずれも優れており、高級マンションに相応しい規格となっています。
現状では千葉県内で本物件を超える可能性を持つ規格はありません。
将来的にあるとすれば、本八幡か市川でしょうか。
本物件の登場は、周辺相場に間違いなく影響をもたらします。販売状況により、県内の総武線沿い、その広域に波及する可能性もありそうです。
今後の千葉県の相場を牽引していくマンションとして興味深いところです。
本レポートを最後まで読んでいただきありがとうございました。
おまけ
本物件は将来に渡り船橋エリアNO.1のランドマークが約束された物件ですが、周辺相場と比較すると新築であることを加味しても説明できない程に価格の乖離があります。本物件と似た存在として、埼玉県の浦和ザ・タワー(URAWA THE TOWER)があります。
浦和ザ・タワーは埼玉県内でNO.1の物件として見られており、当初は強気すぎる売出価格でしたが、想定を上回る販売状況でした。
浦和ザ・タワーは現在も販売中ですが、反響が高く当初よりかなり値上げされています。
本物件が同様に値上がりするかは懐疑的ですが、船橋市内にはトップスイートを購入できる層が想像以上に多いことは事実です。
国内を見ると、徳島、岡山、宮崎などでも地域1番のランドマーク物件として数億円規模の高額なタワーマンションが登場しており、もはや驚くことではないのかもしれません。
とにかく希少性のある立地、タワマン、新築の価値が高まっており、既存の軸では評価できない時代となっています。
[スムラボ編集部より] 本ブログ記事の情報は投稿日時点のものです。現在の販売情報はLifull Homesをご参照下さい。
スムラボ記事
この記事を見ている人はこちらも見ています
スムログ記事
- プラウドタワー船橋 2025年10月時点の相場 ~プレミストタワー船橋の価格発表前ラストの動き?~【マンションマニア】
- 津田沼ザ・タワー 2025年11月時点の相場 ~モリシアの未来に不安はあれど価格は上昇~【マンションマニア】
記事に出てきた物件の掲示板
- リビオタワー品川(検討スレ) | (住民スレ) | (まとめ) | (スムラボ) | (スムログ)
- ザ・パークハウス 武蔵小杉タワーズ(検討スレ) | (まとめ) | (スムラボ) | (スムログ)
- URAWA THE TOWER(検討スレ) | (住民スレ) | (まとめ) | (スムラボ) | (スムログ)
- パークシティ小岩 ザ タワー(検討スレ) | (住民スレ) | (まとめ) | (スムラボ) | (スムログ)
- THE RESIDENCE 新鎌ケ谷 TERMINAL FRONT(検討スレ) | (住民スレ) | (まとめ) | (スムラボ) | (スムログ)
- プレミストタワー船橋(検討スレ) | (まとめ) | (スムラボ) | (スムログ)


















住井はな-125x125.jpg)










記事にコメントする