ベイパーク最後のタワー棟
2018年から続いてきたベイパークの開発も、ここで1区切りが付きます。
分譲棟だと5棟、シニアレジデンスを入れると6棟となるベイパークのマンション群ですが、幕張ベイパークブルームテラスタワーが完成すれば遂に勢揃いです。
ZOZO PARK跡地の低層マンションは最終の分譲棟として残ってはいますが、駅が近いので価格は一気に上がりそうですし、供給もかなり先になりますので、ベイパークの相場や現状で検討されている方にとってはブルームテラスがラストチャンスと言えるでしょう。
そんなベイパークの集大成を、私yossyが実際に住んでいる知見を活かしながらご紹介していきますので、ぜひ最後までご覧ください!
目次
- 1 yossyview
- 2 物件概要
- 3 アクセス
- 4 ロケーション
- 5 デザイン
- 6 ランドスケープ
- 7 設備・仕様
- 8 間取り・価格
- 8.1 W66type 3LDK+WIC 66.33㎡
- 8.2 WT70Atype 3LDK+WIC 70.27㎡
- 8.3 E72type 3LDK+WIC+N 72.35㎡
- 8.4 E73/73ttype 3LDK+2WIC+WIP 73.92㎡
- 8.5 W80Attype 3LDK+WIC+SIC 80.03㎡
- 8.6 Ne83type 3LDK+WIC+SIC 83.68㎡
- 8.7 S84ttype 3LDK+3WIC+SIC 84.97㎡
- 8.8 NwT93type 3LDK+WIC+SIC 93.87㎡
- 8.9 Sw114ttype 3LDK+3WIC+SIC+N 114.08㎡
- 8.10 Nw85/85ttype 4LDK+WIC+SIC 85.80㎡
- 8.11 おすすめ住戸
- 9 周辺価格
- 10 再開発とまとめ
yossyview
今回の幕張ベイパークブルームテラスタワーの売りは、公式HPにもある『In the Park』というキャッチコピーにもある通り、低層部のパークビューにあると思っています。
正直なところ、立地だけで見ると南側3棟に劣っていることは違いありません。
だからこそテラス付き住戸を2階に設けたり、ガラス張りの共用棟を1階部分から飛び出して造ったりして、パークビューを楽しめるような設計になっています。
また、立地やモデルルームで概要を把握した上で個人的にも検討するなら低層階かな、という印象を受けました。その理由や低層階のおすすめ住戸、前棟との違いなども存分にこの後語ってまいります!
もう1つの特徴でいうと、マンション自体というよりもベイパーク全体での特徴となりますが、初めに述べたように最後のタワー棟という点です。
ベイパーク×新築×タワーのラストはもちろんですし、このクオリティのマンションが6000万円台前半で検討できるのもラストになる可能性もあります。
ナイスポイント
- ベイパークでラストのタワー棟
- 南西低層部はパークビューでテラス付き住戸有り
- 共用棟を飛び出して造ることで2層吹抜のエントランス、共用部を実現
マイナスポイント
- 人気の南西側は前棟が被るので眺望が劣る
- 駐車場の使用料がかなり高くなる
- 駅からは徒歩14分とやはり長く感じる
総合成績
- アクセス・ロケーション:★★★☆☆
都心(特に西側)への通勤はなかなか厳しく、駅からも約15分歩く必要がある。ただベイパーク内にスーパー、飲食店、クリニックと利便性が高く住みやすさは◎。 - デザイン:★★★★☆
ブルームの名の通り、花をモチーフにして所々に緑を配している。共用部もこれまでと比べて緑の多いデザインとなっている。 - ランドスケープ:★★★★★
共用棟を別にすることで、ベイパーク初の2層吹き抜けを実現。パークビューを堪能できるランドスケープ。商業棟の配棟計画も併せて満点評価とした。 - 設備・仕様:★★★☆☆
前棟とほとんど同じような設備仕様。プラスの点はルーフバルコニーと車寄せが完全屋根付き、そして機械式駐車場が撤廃になったこと。 - 間取り・価格:★★★★☆
平均坪単価は350万円ほどで、安くはないが高くもない。周辺中古と比べれば納得の価格。間取りによって、眺望は大きく変わるので注意が必要。
物件概要
| 総戸数 |
650戸 |
|---|---|
| 開発総面積 |
— |
| 敷地面積 |
14,946.10㎡ |
| 建築面積 |
6,176.87㎡ |
| 延床面積 |
71,231.74㎡ |
| 竣工時期 |
2027年10月下旬竣工予定 |
| 入居時期 |
2028年3月下旬入居予定 |
| 構造・階数 |
鉄筋コンクリート造地上42階建 |
| 分譲後の権利形態 |
敷地は共有、建物は区分所有 |
| 用途地域 |
第2種住居地域 |
| 建築確認番号 |
第ERIー25015933号(2025年8月27日付) |
| 区画整理法 |
— |
| 土地権利/借地権種類 |
所有権 |
| 駐車場 |
総戸数 650戸 に対して 敷地内平面 46台敷地内自走式469台 |
| 駐輪場 |
総戸数 650戸 に対して1105台 |
| バイク置場 |
総戸数 650戸 に対して32台 |
| トランクルーム |
— |
| 施設・設備 |
宅配ロッカー、ワーク&スタディラウンジ、ゲストヴィラ、パーティールーム、キッズルーム等 |
| 管理形態 |
管理組合結成後管理会社へ委託 |
| 管理員の勤務形態 |
常駐 |
| 施工会社 |
株式会社熊谷組 |
| 管理会社 |
三井不動産レジデンシャルサービス株式会社 |
| 会社情報 | <売主・販売代理> 三井不動産レジデンシャル株式会社 三菱地所レジデンス株式会社 野村不動産株式会社 <売主> 伊藤忠都市開発株式会社 東方地所株式会社 株式会社富士見地所 袖ヶ浦興業株式会社 <販売代理> 伊藤忠ハウジング株式会社 |
アクセス
アクセスに関しては、デメリットを語っていく必要があります。ベイパーク最大の懸念はアクセス性にあると思っています。
まず、駅から海浜幕張駅までは徒歩14分で、やはり近いとは言い難いのが幕張ベイパークの特徴です。さらにこの14分は公園改札までの時間なので、メイン改札へはプラス3分ほど見たほうが良いでしょう。
公園改札も最近ようやく始発から使えるようになりましたが、夜は22時で閉まってしまうので使い勝手は少し悪めです。
新アリーナや商業施設が予定されているので、この時間制限は撤廃してほしいところであります。
あとはIC専用、改札内にトイレがない(改札外のワイズマート横に多目的トイレが1つあります)という点が公園改札のデメリットとなります。
駅から都心へ行くとなった時も、都心西側へフル出社の方は検討から外したほうが良いかもしれません。新宿へは67分、渋谷へは61分、池袋へは67分

公式HPより引用
まだ東側であれば東京駅、新木場駅、八丁堀駅などで乗り換えて検討しやすいかと思いますが、それでも大きな壁として残るのが京葉線東京駅の接続の悪さです。
正直、有楽町線もしくはJR有楽町駅の方が使いやすいまであります。(特に丸の内線)それでも多くの路線は東京駅が起点ですから、利用せざるを得ない方も多いでしょう。
この2点がアクセス性のデメリットとなってきます。ただ、京葉線東京駅から有楽町駅へ乗り換えもできる方法があるみたいなので、気になる方はぜひ試してみてください。(私はまだ使ったことがありません)
ロケーション
続いてロケーションですが、こちらは星5つでも申し分ないように感じます。ベイパーク内にスーパー、薬局、飲食店、クリニックが揃っているので、日常生活は不自由なくベイパーク内だけで過ごすことができます。中でも住んでみて感じるのは、クリニックがエリア内にあることの有り難さですかね!整形外科、内科、歯科、耳鼻科、小児科、産婦人科がまとまっていて、何かと便利さを感じています。
他にもスターバックス、マクドナルドをはじめとする商業エリア2期が完成したり、ライズゲートタワー足元の商業棟がオープンしたりと、まだまだ賑わいが生まれていくのも嬉しいポイントかと思います。

幕張ベイパークエリア図
公式HPより引用
他にも駅前のプレナやペリエ、1駅隣のイオンモールやコストコ辺りまでは普段使いできるので、充実した生活が送れるかと思います。
ただ、以前の記事でもお伝えしたように車があった方が良いことは間違いないです!生活圏やお店の選択肢が一気に広がるので、検討される方は車購入も含めた資金計画をyossyからはおすすめします!
エリアについては前記事でも詳しく書いてますので、ぜひ一度ご覧ください。
デザイン
外観はブルームという名の通り、花を意識したデザインとなっています。最上部のクラウンが花弁、縦に伸びるマリオンが茎、バルコニーが葉をイメージされていますが、完成CGを見ても正直そこまで花感はありません。
ただタワーのデザインには珍しく、緑が配色されているのでその辺りから植物を連想できるような外観となっています。
そして内部ですが、こちらもこれまでの棟とは異なって、かなり緑を多く採用しているなあという印象です。
直近でいうと、ライズは落ち着いたシックなイメージ、ミッドは海や波のイメージでしたが、今回は明らかに緑や自然をイメージしていることが見受けられます。
さらにエントランスは2層吹き抜けのガラス張りなので、外の公園やガーデンラウンジを眺めて楽しめるようなデザインを採用しています。

グランドエントランス完成予想CG
公式HPより引用
ランドスケープ
まず1番の特徴として挙げられるのは、共用棟をタワーの1階から飛び出した設計にしたことでしょう。
共用棟完成予想CG
公式HPより引用
これによって共用部のゆとりや2層吹き抜けを実現したことは述べた通りなのですが、配棟計画にも大きく影響を与えています。
それが駐輪場と車寄せです。
駐輪場は全てが屋内に収まることで雨の心配が無くなりますし、車寄せも完全に屋根で覆われた場所に造ることができるので、前棟まで乗り降りの時だけ濡れてしまうというストレスが取り除かれます。

公式HPより引用

公式HPより引用
車寄せは特に嬉しいですよね!これまで車寄せの屋根が短かったり、回転範囲が狭かったりと何かと不便な点もありましたが、今回は駐車場への車道から外れて独立しているので、ゆとりもある使いやすい車寄せになりそうです。
エントランスも3つあり、公園側のメイン、車寄せのコーチ、さらにフォレストテラスや駐車場側のサブエントランスと使い分けが可能となっています。
マンションの外にはフォレストテラス、グリーンリビング、そして商業棟とその上にルーフテラスを配しています。ここまで4棟完成していますが、足元の配棟計画で言えばno.1に感じます。

ランドスケープ完成予想CG
公式HPより引用
ここも緑がふんだんに使われていますね!足元は水景など、海をイメージしたデザインが多かった中で、かなり特徴的で魅力的なエリア・風景になりそうです。

フォレストテラス完成予想CG
公式HPより引用

商業棟完成予想CG
公式HPより引用
設備・仕様
続いては設備と仕様についてです。まず共用施設は共用棟ができることで、施設の種類も増えるのかと思いましたが、前棟と同じような施設のみとなります。
共用棟1階にはエントランスとラウンジが3つ、2階にはワーク&スタディラウンジ、パーティルーム、キッズルームがあります。

パークサイドラウンジ
公式HPより引用

グランドラウンジ
公式HPより引用

ワークスタディラウンジ
公式HPより引用

パーティルーム
公式HPより引用

キッズルーム
公式HPより引用
さらにゲストルームが1階と38階に、スカイラウンジが38階に設置されています。その中で唯一追加となった施設としては、若葉3丁目公園を眺めるパークビューテラスがあります。

38階ラウンジゲストルーム
公式HPより引用

1階ゲストルーム
公式HPより引用

パークビューテラス
公式HPより引用
新しい施設はテラスだけですが、2層吹き抜けで床面積が増えた分、1つ1つのゆとりは上がっています。ラウンジも1階に3つありますし、2階のワークラウンジやキッズルームも独立して広々としている様子が見受けられます。
住戸内の設備も前作と同じような仕様です。
ディスポーザー、食洗機、浴室乾燥機、手洗いカウンター等々はもちろん、各階ゴミ置き場、30階以上はトランクルームがあります。さらに低炭素認定の免震構造マンションとなっています。
中でもやはり強く推したいのは、ハンズフリーキーです。鍵を取り出さずともワンプッシュで玄関扉を開けることができるので、これまでもお伝えしてきましたがひじょーーーに便利です!
玄関がタッチで開くスマートキー便利すぎる。
— yossy|仲介&ブロガー (@yossymansion) September 7, 2024
全マンション、早急に導入せよ。 pic.twitter.com/2GzLjEZYQp
都心の新築マンションでも導入が無いところも全然ありますので、これが入っているのはとんでも有り難いです。
駐車場は平面46台、自走式469台の計515台あり、ライズゲートタワーで賛否のあった機械式駐車場は撤廃となりました。設置率は79%となっています。
ここも同じような設置率となっています。現状、どの棟も駐車場は足りていないような話をよく聞きますので、少し設置率を上げても良かったかなとは思います。
なお駐車場の抽選ですが、角住戸とテラス付き住戸に優先権が付いております。テラス付きに優先権が付いてるのはありがたいですね!
70㎡台でグロスを抑えても、駐車場を確保できるのは幅広い方にとってメリットになりそうです!その分、テラス付き住戸はさらに激戦となりそうですが。。。
ただし駐車場使用料は、15,000~30.000円と前棟と比べても1.5倍ぐらいとなってしまいました。以前までは屋上なら10,000円切ってたことからみても、ここは明確なマイナスポイントとなります。
その他には電動レンタルサイクル、鍵と連動させた帰宅通知のサービスもあります。
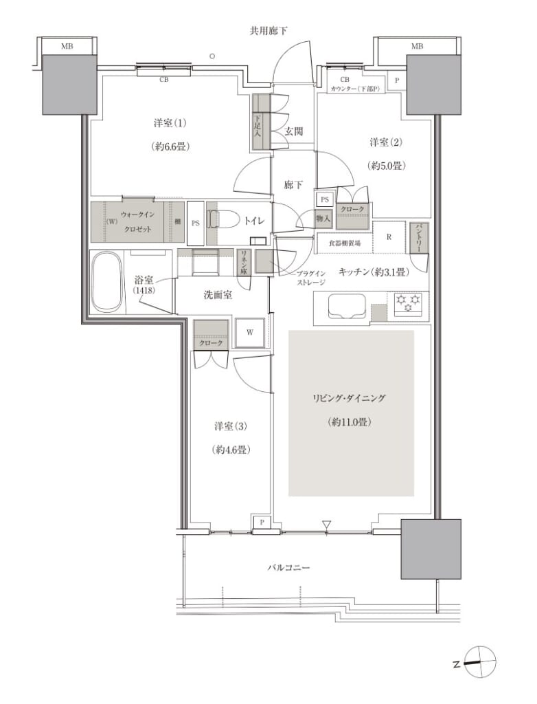
間取り・価格
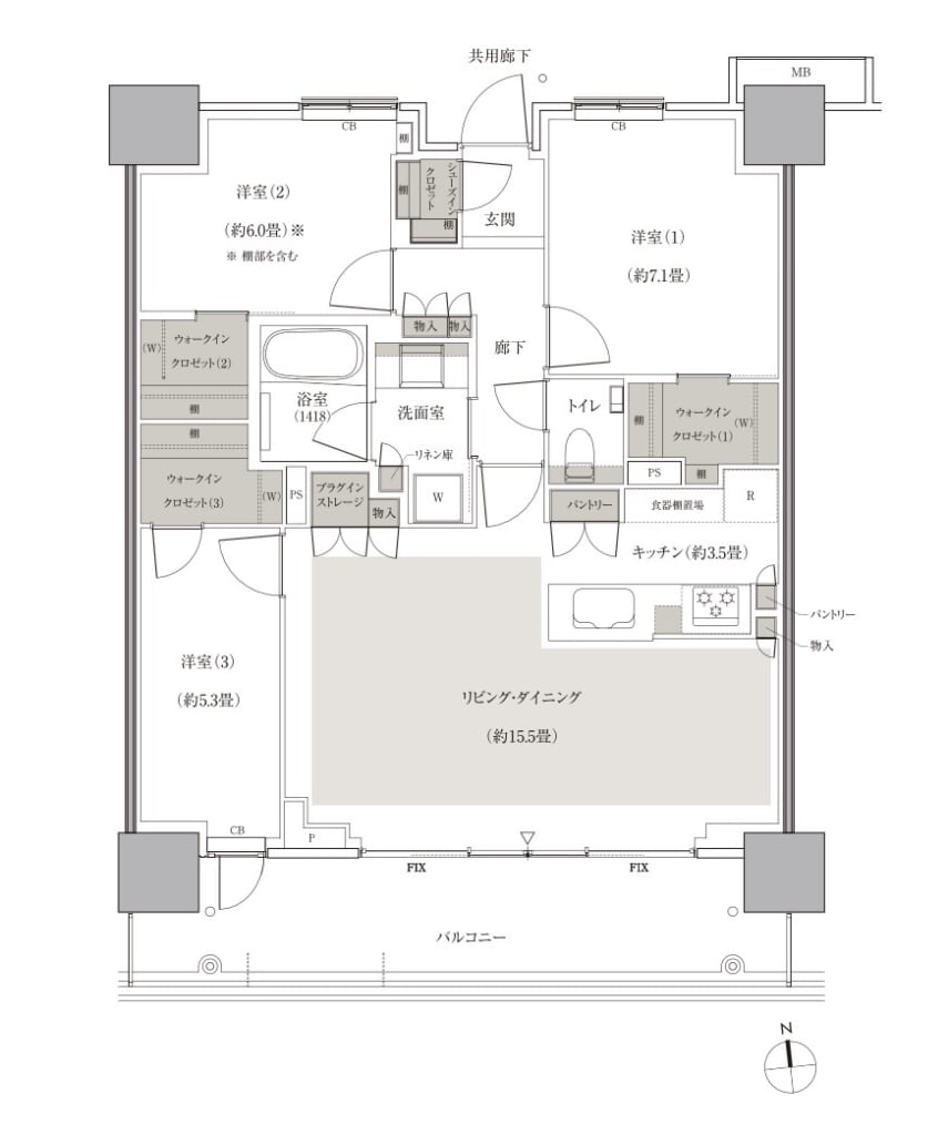
W66type 3LDK+WIC 66.33㎡

公式HPより引用
22階 6,600万円(坪単価約325万円)
30階 6,840万円(坪単価約336万円)
38階 7,000万円(坪単価約345万円)
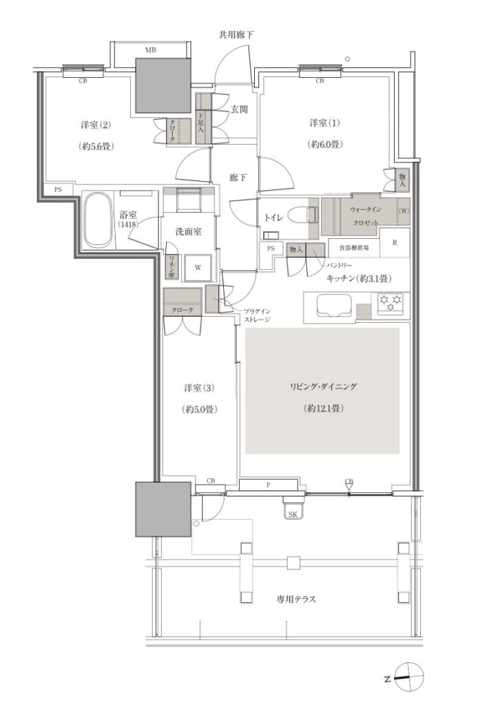
WT70Atype 3LDK+WIC 70.27㎡

公式HPより引用
2階 7,180万円(坪単価約338万円)
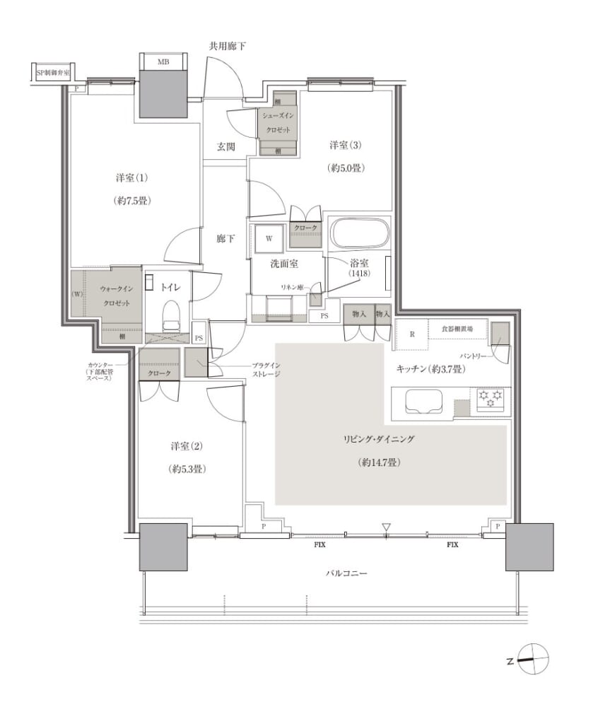
E72type 3LDK+WIC+N 72.35㎡

公式HPより引用
2階 6,390万円(坪単価約292万円)
8階 6,940万円(坪単価約317万円)
14階 7,080万円(坪単価約323万円)
20階 7,200万円(坪単価約329万円)
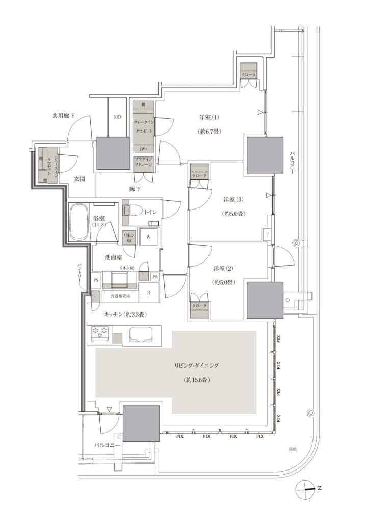
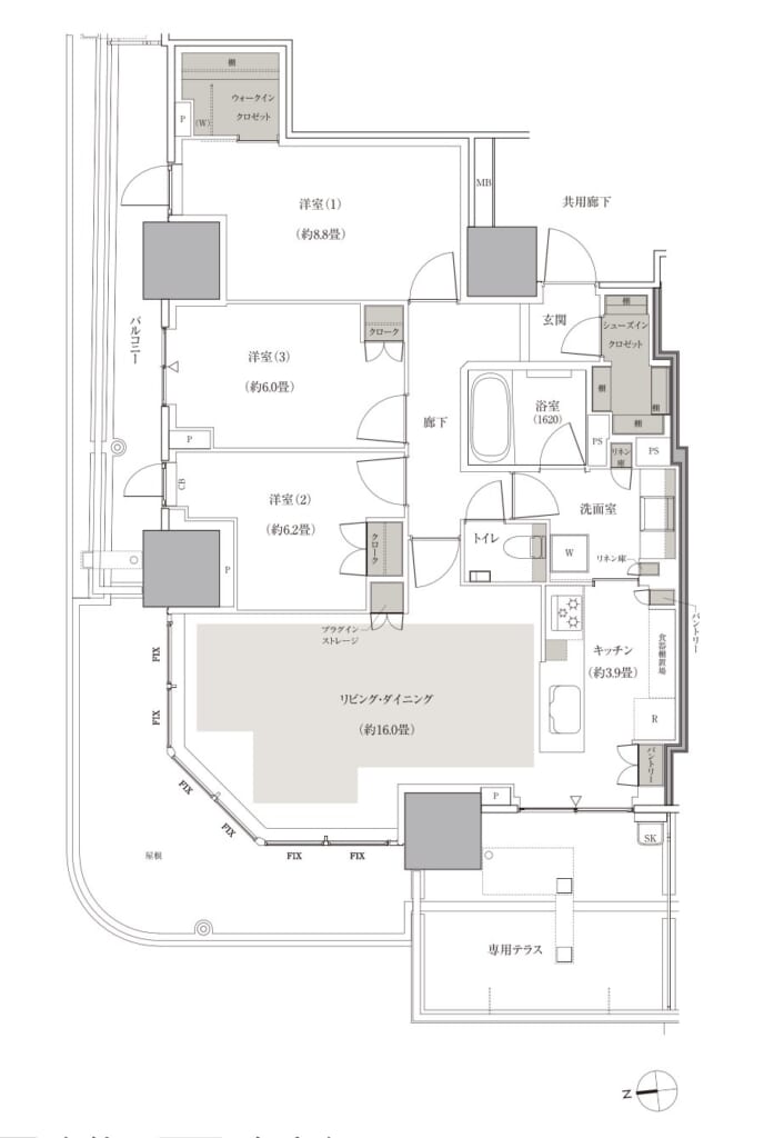
E73/73ttype 3LDK+2WIC+WIP 73.92㎡

公式HPより引用
22階 7,450万円(坪単価約333万円)
28階 7,570万円(坪単価約338万円)
34階 7,830万円(坪単価約346万円)
40階 7,890万円(坪単価約349万円)
42階 8,700万円(坪単価約385万円)
W80Attype 3LDK+WIC+SIC 80.03㎡

公式HPより引用
39階 9,080万円(坪単価約375万円)
42階 9,980万円(坪単価約412万円)
Ne83type 3LDK+WIC+SIC 83.68㎡

公式HPより引用
2階 8,400万円(坪単価約332万円)
8階 8,900万円(坪単価約352万円)
14階 9,200万円(坪単価約363万円)
21階 9,550万円(坪単価約377万円)
S84ttype 3LDK+3WIC+SIC 84.97㎡

公式HPより引用
39階 9,780万円(坪単価約381万円)
42階 10,680万円(坪単価約416万円)
NwT93type 3LDK+WIC+SIC 93.87㎡

公式HPより引用
2階 9,380万円(坪単価約330万円)
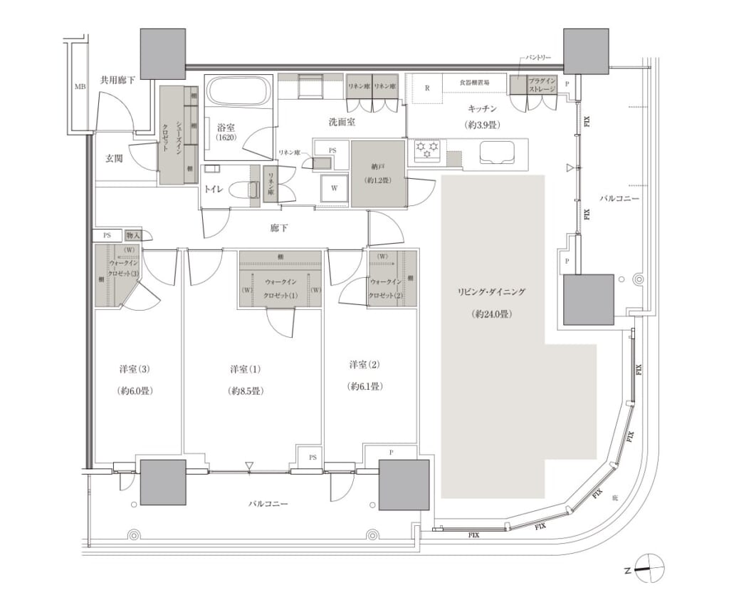
Sw114ttype 3LDK+3WIC+SIC+N 114.08㎡

公式HPより引用
39階 16,880万円(坪単価約489万円)
42階 17,880万円(坪単価約518万円)
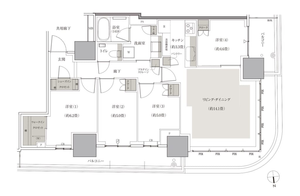
Nw85/85ttype 4LDK+WIC+SIC 85.80㎡

公式HPより引用
13階 9,250万円(坪単価約356万円)
21階 9,650万円(坪単価約372万円)
29階 10,050万円(坪単価約387万円)
38階 10,600万円(坪単価約408万円)
坪単価の平均は330万円ほどとなります。今回多く売り出されたのは、北西角の高層階・北東角の低層階・東側中住戸1列・そして60平米台の西側高層階です。
管理費は268円/㎡、修繕積立金は144円/㎡ほどになっており、ランニングコストは前棟から比べて大きな値上げもありません。
おすすめ住戸
今回売り出しでのyossy的おすすめですが、まずは価格面から6,000万円台で検討できる東側中住戸の低層を挙げさせていただきます。現状の相場で新築3LDK74㎡が6,000万円台というのは、まず一次取得で検討される方でも候補に出来る数少ないおすすめマンションとなります。
その中でも今作は高層よりもパークビューを含めた低層が良さそうです。東向きはパークビューではありませんが、新設の小学校方面を臨み、その先に花見川が流れるため低層でも抜け感が得られる半永久眺望となります。
ただ南東側に寄ると、現マンションミュージアム跡地がパークウェルステイト低層棟になる予定ですので、実際どれぐらい眺望が変わってくるか等はモデルルームで把握していただければと思います。
もう一つのおすすめは、北東角低層となります。こちらも同じ理由で、北側が幕張総合高校・東が若葉小学校で眺望が抜けてきますし、北に寄るのでパークウェルステイトはほとんど気にならなくなります。
北側には駐車場もありますが、こちらも5階を超えてくればあまり気にはならない眺望イメージでした。それでもって、9000万円を切れるのが魅力に感じます。
周辺価格
- クロスタワー&レジデンス29階 西向き 3LDK/71.44㎡ 6,980万円
- スカイグランドタワー3階 北向き 3LDK/70.51㎡ 6,980万円
- ミッドスクエアタワー19階 東向き 3LDK/73.85㎡ 7,280万円
- ライズゲートタワー11階 北向き 3LDK/71.06㎡ 6,650万円
ただしこれまでは中古より新築の方が安いというような現象も起きていたので、やはり最終棟ということもあり、以前から検討していた方にとっては割高感もあるでしょう。
それでも中古を選ぶ理由としては、引き渡しまでの2年間で残債を減らせる+住居費(賃料等)がかからない。という点があります。
もちろん金利や返済年数にもよりますが、2年あれば足して400〜500万ぐらいは変わってくるのではないでしょうか。
そうなれば売りやすさや資産の安定性にも繋がってきます。
もちろん新築に住みたい!という方やオプションを盛り込みたい!という方にはブルームテラスになってきますが、中古にもメリットがありますよ。ということだけ頭の片隅に入れてみてください。
再開発とまとめ
最後に海浜幕張エリア最新版の再開発情報をお伝えさせていただきます!- 若葉3丁目 市立海浜病院移転 2026年10月開院予定
- 幕張海浜公園Bブロック 再整備(商業施設、広場等) 2027年夏頃開業予定
- 幕張ベイパークB-6街区 ブルームテラスタワー入居開始・商業棟オープン 2028年3月予定
- 若葉3丁目 昭和学院幼稚園・小学校 2028年4月開園・開校予定
- 幕張海浜公園Aブロック 新アリーナ(アルティーリ千葉 本拠地)2030年完成予定
- 幕張ベイパークB-1街区(SMBC FIELD HONDA FOOTBALL AREA) マンション建設予定 2030年竣工?
- 幕張メッセ駐車場 千葉マリンスタジアム移転 2034年開業予定

海浜幕張開発予定
公式HPより引用
もちろん開発がプラスばかりではないでしょうし、賛否両論あることは間違い無いです。
ただ再開発大好きyossyにとっては、街が変化していく過程を楽しむことができるので、全て大賛成です!結果的に街の評価がどうなるかは分かりませんが、私は千葉市と三井不動産を信じてます!
こういう再開発を楽しみたい方、そしてそんな街が好きな方にとってベイパークは最高の環境です。
ただ価格の上昇、そして立地的に前棟と比較しても、手放しで何でもGOとは言えないのは確かなので、今記事で紹介したおすすめ住戸やメリデメを判断しながら、中古も合わせてご判断いただければと思います!
後発を待ってもオーラスのB-1街区(SMBC PARK跡地)、板状マンションは駅から1番近いですし、間違いなく今の相場では買えないというのが難しいところですが。
5月上旬が1期1次の申込となりますので、ぜひ興味を持っていただいた方は、お早めの資料請求とエントリーをおすすめします!
次期以降の値上げもありそうですし、マンションは「カイタイトキがカイドキby家電大好き芸人徳井さん」です。ぜひ検討の一助になれれば幸いです!
今回も最後までご覧いただきありがとうございました!もし間取り選択や資金計画、中古との比較などでお悩みの場合は、スムラボでの相談もお待ちしております!
無料相談は現在の検討状況について、総評や私の見解を回答させていただきます。具体的な間取りや中古売り出し物件の詳細なご提案は有料相談のみとなりますので、ご了承いただけますと幸いです!
ベイパークがついについに完成されます!ひじょーに楽しみです!それではまた会う日までええ暮らしを!

ベイパーク6棟完成予想CG
公式HPより引用
[スムラボ編集部より] 本ブログ記事の情報は投稿日時点のものです。現在の販売情報はLifull Homesをご参照下さい。
スムラボ記事
- 今月の気になるマンション(9月)【2LDK】
- 2026年販売予定のおすすめマンション【yossy】
- 幕張ベイパークブルームテラスタワー 幕張ベイパークのラストタワーレジデンス
- 【坪330万円】幕張ベイパークブルームテラスタワーの価格は?|モデルルーム訪問レビュー【キウイ不動産】
スムログ記事
- 幕張ベイパーク盆踊りイベントへ参加してみた! ~まもなく幕張ベイパークのマーケットはカオスへ~【マンションマニア】
- 幕張ベイパーク 2025年12月時点の相場 ~ブルームテラスの予定価格発表まであと少し~【マンションマニア】
- ダイアパレス検見川浜テラス 2026年3月時点の相場 ~北磯辺公園隣接の落ち着いた住環境~【マンションマニア】
- 幕張ベイパーク 食の複合施設「つなぐば」オープン!!~ライズゲートタワーの売買・賃貸相場~【マンションマニア】




















記事にコメントする