幕張ベイパークブルームテラスタワーは海浜幕張駅徒歩14分に建設される42階建て、総戸数650戸で2028年3月に引き渡しが予定されています



不動産
約10年にわたり進められてきた幕張ベイパークの開発もこの「ブルームテラスタワー」がラストになります
今後、幕張ベイパーク内で新築タワーマンションを購入する機会はなくなるわけで、既存の中古物件も含めどのように相場が動いていくのか、資産価値はどうなるのか気になる方も多いのではないでしょうか
【この記事でお伝えしたいこと】
- 中住戸の坪平均330万円、角住戸は坪370万円、管理費修繕積立金は標準的
- 2階吹き抜けのエントランスなど既存棟との差別化あり
- 私が一つ選ぶならE73tタイプの41階にします
- 坪330万円で買える最後の新築タワーマンションになるかもしれない
- 幕張ベイパーク全体の坪単価は2028年以降緩やかに上がっていくと予想
この記事を読むことで上記内容の理解が深まります
ぜひ最後までお読みください
※画像は公式HPから引用させていただきました
目次
物件概要

- 所在地:千葉県千葉市美浜区若葉3丁目1-21(地番)
- 交通:京葉線海浜幕張駅徒歩14分
- 総戸数:650戸
- 敷地面積:14,946.10㎡
- 入居時期:2028年3月下旬
- 売主:三井不動産レジデンシャル株式会社、三菱地所レジデンス株式会社、野村不動産株式会社、伊藤忠都市開発株式会社、東方地所株式会社、株式会社富士見地所、袖ヶ浦興業株式会社
- 施工会社:株式会社熊谷組
- 駐車場:敷地内平面 46台、敷地内自走式469台
- 駐輪場:1,105台
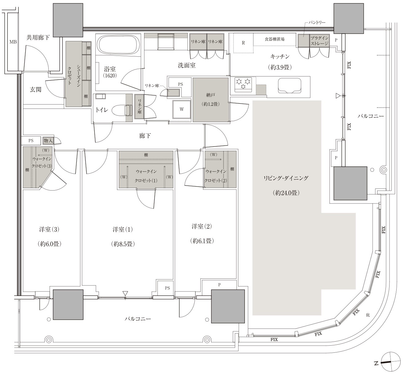
間取りと価格
第1期販売価格を共有します30階以上の部屋タイプの末尾には「t」が付いています
各部屋に割り当てられたトランクルーム0.8㎡が専有面積に含まれるためで玄関内の間取りは同等になります
W66タイプ 66.33㎡ 3LDK 西向き
W66tタイプ 67.13㎡ 3LDK 西向き

W66タイプ
- 22階 6,600万円(坪328万円)
- 23階 6,620万円(坪329万円)
- 24階 6,640万円(坪330万円)
- 25階 6,660万円(坪331万円)
- 26階 6,720万円(坪334万円)
- 27階 6,700万円(坪333万円)
- 28階 6,720万円(坪334万円)
- 29階 6,740万円(坪335万円)
- 30階 6,840万円(坪336万円)
- 31階 6,860万円(坪337万円)
- 32階 6,880万円(坪338万円)
- 33階 6,900万円(坪339万円)
- 34階 6,920万円(坪340万円)
- 35階 6,940万円(坪341万円)
- 36階 6,960万円(坪342万円)
- 37階 6,980万円(坪343万円)
- 38階 7,000万円(坪344万円)
- W66タイプ;29,970円(月額)
- W66tタイプ;30,300円(月額)
WT70Aタイプ 70.27㎡ 3LDK 西向き

- 2階 7,180万円(坪337万円)
E72タイプ 72.35㎡ 3LDK 東向き

- 2階 6,390万円(坪292万円)
- 3階 6,490万円(坪296万円)
- 4階 6,590万円(坪301万円)
- 5階 6,690万円(坪305万円)
- 6階 6,790万円(坪310万円)
- 7階 6,890万円(坪314万円)
- 8階 6,940万円(坪317万円)
- 9階 6,970万円(坪318万円)
- 10階 7,000万円(坪319万円)
- 11階 7,020万円(坪320万円)
- 12階 7,040万円(坪321万円)
- 13階 7,060万円(坪322万円)
- 14階 7,080万円(坪323万円)
- 15階 7,100万円(坪324万円)
- 16階 7,120万円(坪325万円)
- 17階 7,140万円(坪326万円)
- 18階 7,160万円(坪327万円)
- 19階 7,180万円(坪327万円)
- 20階 7,200万円(坪328万円)
- 21階 7,220万円(坪329万円)
E73タイプ 73.92㎡ 3LDK 東向き
E73tタイプ 74.72㎡ 3LDK 東向き

E73タイプ
- 22階 7,450万円(坪333万円)
- 23階 7,470万円(坪333万円)
- 24階 7,490万円(坪334万円)
- 25階 7,510万円(坪335万円)
- 26階 7,570万円(坪338万円)
- 27階 7,550万円(坪337万円)
- 28階 7,570万円(坪338万円)
- 29階 7,590万円(坪339万円)
- 30階 7,790万円(坪344万円)
- 31階 7,800万円(坪344万円)
- 32階 7,810万円(坪345万円)
- 33階 7,820万円(坪345万円)
- 34階 7,830万円(坪346万円)
- 35階 7,840万円(坪346万円)
- 36階 7,850万円(坪347万円)
- 37階 7,860万円(坪347万円)
- 38階 7,870万円(坪348万円)
- 39階 7,880万円(坪348万円)
- 40階 7,890万円(坪348万円)
- 41階 7,900万円(坪349万円)
- 42階 8,700万円(坪384万円)
- E73タイプ;33,090円(月額)
- E73tタイプ;33,420円(月額)
W80Atタイプ 80.03㎡ 3LDK 西向き

- 39階 9,080万円(坪374万円)
- 40階 9,130万円(坪376万円)
- 41階 9,180万円(坪379万円)
- 42階 9,980万円(坪412万円)
Ne83タイプ 83.68㎡ 3LDK 北東角

- 2階 8,400万円(坪331万円)
- 3階 8,550万円(坪337万円)
- 4階 8,650万円(坪341万円)
- 5階 8,750万円(坪345万円)
- 6階 8,800万円(坪347万円)
- 7階 8,850万円(坪349万円)
- 8階 8,900万円(坪351万円)
- 9階 8,950万円(坪353万円)
- 10階 9,000万円(坪355万円)
- 11階 9,050万円(坪357万円)
- 12階 9,100万円(坪359万円)
- 13階 9,150万円(坪361万円)
- 14階 9,200万円(坪363万円)
- 15階 9,250万円(坪365万円)
- 16階 9,300万円(坪367万円)
- 17階 9,350万円(坪369万円)
- 18階 9,400万円(坪371万円)
- 19階 9,450万円(坪373万円)
- 20階 9,500万円(坪375万円)
- 21階 9,550万円(坪377万円)
S84tタイプ 84.97㎡ 3LDK 南向き

- 39階 9,780万円(坪380万円)
- 40階 9,830万円(坪382万円)
- 41階 9,880万円(坪384万円)
- 42階 10,680万円(坪415万円)
Nw85タイプ 85.80㎡ 4LDK 北西角
Nw85tタイプ 86.60㎡ 4LDK 北西角

Nw85タイプ
- 13階 9,250万円(坪356万円)
- 14階 9,300万円(坪358万円)
- 15階 9,350万円(坪360万円)
- 16階 9,400万円(坪362万円)
- 17階 9,450万円(坪363万円)
- 18階 9,500万円(坪365万円)
- 19階 9,550万円(坪367万円)
- 20階 9,600万円(坪369万円)
- 21階 9,650万円(坪371万円)
- 22階 9,700万円(坪373万円)
- 23階 9,750万円(坪375万円)
- 24階 9,800万円(坪377万円)
- 25階 9,850万円(坪379万円)
- 26階 10,000万円(坪385万円)
- 27階 9,950万円(坪383万円)
- 28階 10,000万円(坪385万円)
- 29階 10,050万円(坪387万円)
- 30階 10,200万円(坪389万円)
- 31階 10,250万円(坪391万円)
- 32階 10,300万円(坪392万円)
- 33階 10,350万円(坪394万円)
- 34階 10,400万円(坪396万円)
- 35階 10,450万円(坪398万円)
- 36階 10,500万円(坪400万円)
- 37階 10,550万円(坪402万円)
- 38階 10,600万円(坪404万円)
- Nw85タイプ;38,010円(月額)
- Nw85tタイプ;38,320円(月額)
NwT93タイプ 93.87㎡ 3LDK 北西角

- 2階 9,380万円(坪330万円)
Sw114tタイプ 114.08㎡ 3LDK 南西角

- 39階 16,880万円(坪485万円)
- 40階 16,980万円(坪488万円)
- 41階 17,080万円(坪491万円)
- 42階 17,880万円(坪514万円)
管理費修繕積立金は標準的
- 管理費;268円/㎡(月額)
- 修繕積立金;144円/㎡(月額) ※1年ごとに段階的に値上げされ11年目以降は280円/㎡程度に固定される
- インターネット・テレビ利用料;各部屋一律2,640円(月額)
1年ごとに修繕積立金が値上げされていくのは将来のインフレを盛り込んだものと言えそうです
駐車場は平面と自走式
機械式駐車場ではなく、平面と自走式になったので使い勝手は良さそうです月額駐車場使用料
- 平面平置き(屋根なし);27,000円
- 平面平置きロング(屋根なし);28,000円
- 自走式1階普通;28,000円
- 自走式1階ロング;29,000円
- 自走式2階普通;25,000円
- 自走式2階ロング;26,000円
- 自走式3階普通;23,000円
- 自走式3階ロング;24,000円
- 自走式R階普通(屋根なし);15,000円
- 自走式R階ロング(屋根なし);16,000円
私なら中古との両睨みで検討します
私ならブルームテラスタワーの70㎡前後・30階以上かライズゲートタワー中古を両睨みしながら検討します
ブルームテラスタワーは幕張ベイパーク全般の特徴として階数による価格差が小さく、今回も同様の価格設定でE73tタイプを例にとると30階以上では1階上がるごとの価格差がわずか10万円程度、41階の7,900万円はコストパフォーマンスが高くお買い得感があります
一方、最上階42階は8,700万円と800万円上乗せされており「最上階プレミアム」が重たいですね
向きについては東向きをおすすめしたいです
遮るものがなく午前中に陽光が入る東向きが私は好きですし、一般的にも西向きより人気が高く将来の売却時にも有利にはたらくとみます
どこか一部屋選ぶとすればE73tタイプの41階・東向きにします
ただ、ライズゲートタワーの中古で南向き高層階にお買い得な出物があれば話は変わります
オーシャンビューの魅力も捨てがたいですからね
新改札口|IC専用で営業時間4:45〜22:00

2025年3月より公園改札が新設となり、駅からの所要徒歩時間が15分から14分に短縮されました

写真のとおりIC専用で営業時間は4:45〜22:00です
帰宅が遅くなってしまうと使えませんね

あと、改札内にトイレがないので注意してください
構内には以下店舗が入っておりそれなりに使い勝手が良さそうです
- ワイズマート(スーパー)
- スターバックスコーヒー
- コクミンドラッグ
- ニューデイズ
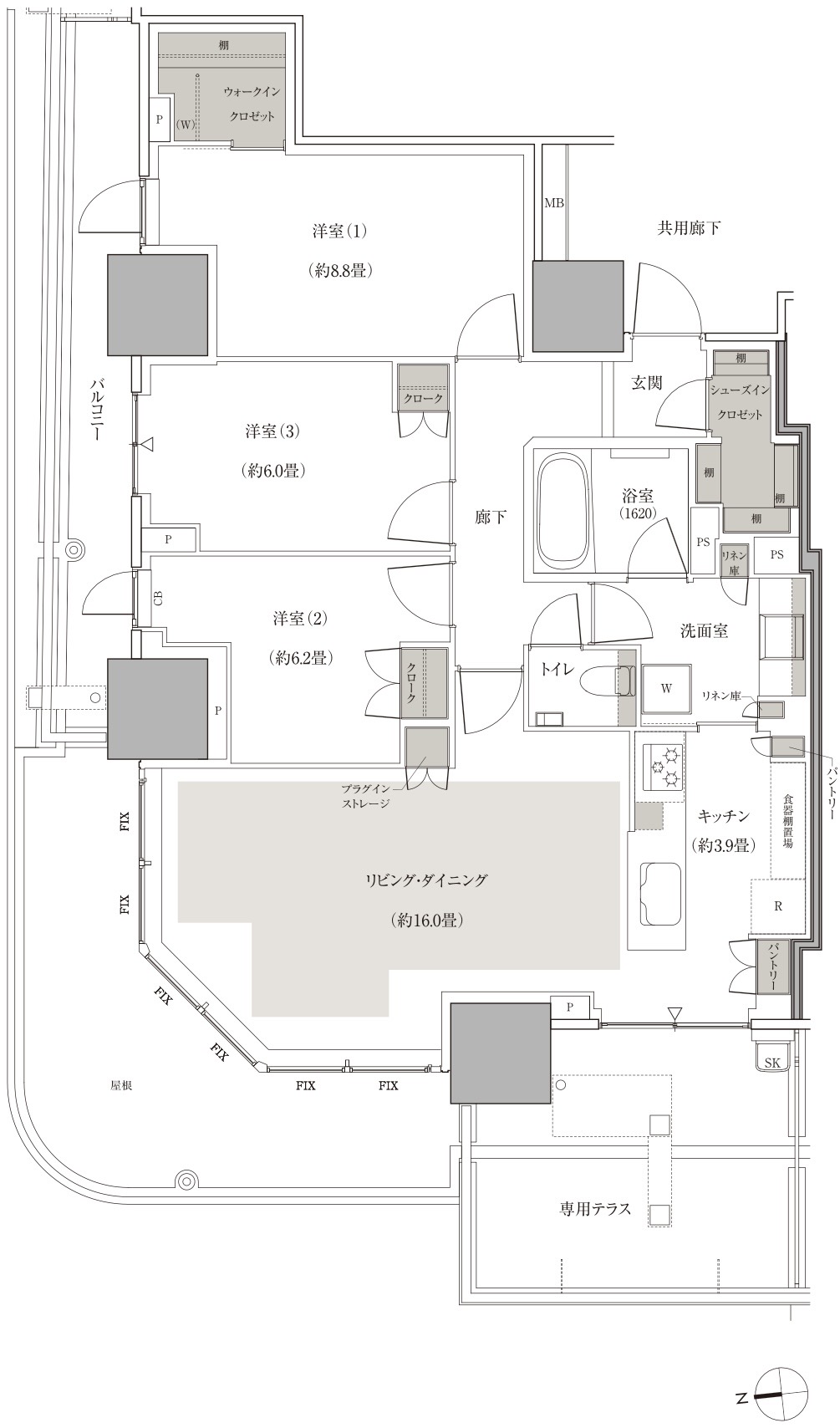
2層吹き抜けのメインエントランスは既存棟との差別化ポイント

2層吹き抜けのグランドエントランス&ラウンジは既存棟にはなかったスケール感で、加えて共用棟と店舗棟が公園側から目立つ位置に配置されます

ブルームテラスタワーのコンセプトは「In the park 緑景を手にする、最後の特等席。」
正直なところ、ベイパーク内ではオーシャンビューが望みにくく海側には既存タワーが建ち並ぶからこそ「パークビュー」を前面に打ち出したと推測します
総評 買いの物件なのは間違いない

ブルームテラスタワーは既存棟と同じく外廊下、駅からの距離もあり、オーシャンビューも限定的
それでも「職・住・学・遊」が完結する海浜幕張駅周辺、管理費を抑えた設計、新設小学校には至近距離、そしてなんといっても良心的な価格設定
これらを総合すると、子育て世代の実需層や開放感のあるベイパークの街そのものに魅力を感じる層にとっても有力な選択肢であると評価します
私も購入したいし、はじめてマンションを購入するファミリー層に強くおすすめします
ブルームテラスタワー後の幕張ベイパーク内売買相場の見解
既存棟の中古価格は、次に出てくる新築価格を睨みながら成立してきました今回のブルームテラスタワーの販売が終わると次に出てくる新築がない時期に突入します
それでは、2028年以降幕張ベイパーク全体の坪単価はどうなっていくのでしょうか
結論から言えば、幕張ベイパーク全体の坪単価は2028年以降緩やかに上がっていくと見ています
理由は大きく3つあります
①新築という物差しが消える
これまでベイパーク内の中古売買では、次の新築の予定価格が相場の天井となってきました売主は「新築より少し安い」ことを意識し、買主も「新築と比べてお得か」で判断してきたわけです
ブルームテラスタワーの販売が完了すればこの比較対象がなくなってしまう
中古同士の取引だけで価格が形成されることになり、売主側に「新築より安くしなければ」という心理が外れてチャレンジ価格での売出しが増えていくと予想します
②供給の希少性が高まる
幕張ベイパークでタワーマンションを手に入れたいと思っても、2028年以降は中古しか選択肢がなくなります約4,000戸という総戸数はあるものの、売出し戸数は減っていくと予想します
特に幕張ベイパークは実需の子育て世帯が多く「気に入って住み続ける」層が多いため、「投資目的で購入した」層からの販売が一巡するとタイトになってくる
需要に対して供給が絞られれば価格は上方向に動いていきます
③街の成長は続いていく
2026年の幕張若葉小学校開校と幕張海浜病院開院に始まり、幕張海浜公園のリニューアル、アリーナ建設、昭和学院秀英の幼稚園・小学校新設、さらにはZOZOマリンスタジアムの移転建て替え計画と街の進化はしばらく続きますつまり、新しいタワーマンションが建たないにもかかわらず街の魅力だけは向上し続ける
これは中古価格にとって追い風になるでしょう
幕張ベイパークブルームテラスタワーはベイパークで新築で購入する最後のチャンスであると同時に、坪330万円で新築タワマンを買えた最後の物件になる可能性すらあると感じます
このラストタワーは単なる最終分譲ではなく、エリア全体の相場が一段上がる転換点になるのではないでしょうか
この記事が皆さまのご参考になれば幸いです
最後までお読みいただきありがとうございました
[スムラボ編集部より] 本ブログ記事の情報は投稿日時点のものです。現在の販売情報はLifull Homesをご参照下さい。
スムラボ記事
- 今月の気になるマンション(9月)【2LDK】
- 2026年販売予定のおすすめマンション【yossy】
- 幕張ベイパークブルームテラスタワー 幕張ベイパークのラストタワーレジデンス
- 【最後に大輪を咲かす】幕張ベイパークブルームテラスタワーの総評と価格!おすすめ住戸は?【yossy】
スムログ記事
- 幕張ベイパーク 2025年12月時点の相場 ~ブルームテラスの予定価格発表まであと少し~【マンションマニア】
- ダイアパレス検見川浜テラス 2026年3月時点の相場 ~北磯辺公園隣接の落ち着いた住環境~【マンションマニア】
- 幕張ベイパーク 食の複合施設「つなぐば」オープン!!~ライズゲートタワーの売買・賃貸相場~【マンションマニア】












-125x125.webp)









26階辺りの価格間違ってます
ご指摘ありがとうございます。26階だけ少し割高になってるんですよね。
駐車場は料金すごく高いですよね。
そうすると車持ちはランニングが高額になりますよね。
コメントありがとうございます。
駐車場料金も記事に追加しました。確かに安くはありませんね。