今年の第一段は、幕張ベイパークブルームテラスタワーです。
約10年前から開始した美浜区若葉地区に6棟の高層マンション建設する、幕張ベイパークプロジェクト。クロスタワー&レジデンスから続くその開発も、今回のブルームテラスタワーで最終分譲となります。
直近では、ライズゲートタワーの内覧会が12月に行われ、SNS上では好評の声が多数見られました。
本物件への期待も高まる中、事前案内会に参加しましたので、印象を交えてお伝えします。
目次
物件概要
42階建て、総戸数650です。これまでと同様に、本物件とは別に低層棟の店舗区画が設置されます。
- 所在地:千葉県千葉市 美浜区若葉3丁目1-21(地番)
- 交通:京葉線「海浜幕張」駅 徒歩15分 【北口利用】 ※京葉線「海浜幕張」駅 徒歩14分【公園改札口(7:00-22:00)利用】
- 総戸数: 650戸
- 敷地面積:14,946.10㎡
- 建築面積:6,176.87㎡
- 延床面積:71,231.74㎡
- 竣工時期:2027年10月下旬竣工予定
- 入居時期:2028年3月下旬入居予定
- 構造・階数:鉄筋コンクリート造地上42階建
- 分譲後の権利形態:敷地は共有、建物は区分所有
- 施工会社:株式会社熊谷組
- 管理会社:三井不動産レジデンシャルサービス株式会社
- 売主:三井不動産レジデンシャル株式会社、三菱地所レジデンス株式会社、野村不動産株式会社、伊藤忠都市開発株式会社、東方地所株式会社、株式会社富士見地所、袖ヶ浦興業株式会社、伊藤忠ハウジング株式会社
周辺環境
海浜幕張駅まで徒歩15分と近くはない距離ですが、駅前には多数の駐輪場があります。駅までの間にスーパー(イオンスタイル)があるほか、ベイパーク内にも多数の飲食店があります。今後は、駅から本物件の間までにある公園内の整備予定もあり、賑わいが創出されそうです。
海浜幕張は商業、企業、教育、住居のエリアが明確に住み分けされており、駅前の賑わいとは反対に、本物件付近は広い公園、整備された歩道が広がり、住居エリアとして安心できる環境となっています。
小学校区は、この4月に開校する幕張若葉小学校で、徒歩2分です。近隣には首都圏でも屈指の私立中高があり、駅前には塾も揃っています。まもなく、新規病院の開業も控えています。
建物概要
外観・共有部
コンシェルジュ、免震構造採用、各階ゴミステーションがあります。この点は、ライズゲートタワーと同様です。
- 駐車場:総戸数 650戸 に対して 敷地内平面 46台、敷地内自走式469台
- 駐輪場:総戸数 650戸 に対して1105台
- バイク置場:総戸数 650戸 に対して32台
駐車場は平面と自走式でゆとりがあります。機械式はありません。全住戸(650戸)に対して約8割の設置率で、おそらくは十分な区画数です。
駐車場には、シャッターゲートが設けられます。また、ベイパーク内の初採用となるコーチエントランスが設けられ、同乗者は雨に濡れることなく乗降できます。
駐輪場は本物件の1階部分に設置されるため、屋内での保管ができそうです。
共有施設
- グランドエントランス&グリーンラウンジ COMMON AREA1階
- パークサイドラウンジ COMMON AREA1階
- グランドラウンジ COMMON AREA1階
- ワーク&スタディラウンジ COMMON AREA2階
- パークビューテラス COMMON AREA2階
- パーティルーム(テラスあり)COMMON AREA2階
- キッズルーム COMMON AREA2階
- ゲストヴィラ 1階
- スカイヴィラ(ゲストルーム&ラウンジ) 38階
共用部分の大半は共用棟に設けられます。共用棟の2階には屋外に設置されたパークビューテラスがあり、パーティルームについてもテラス部分が設けられています。
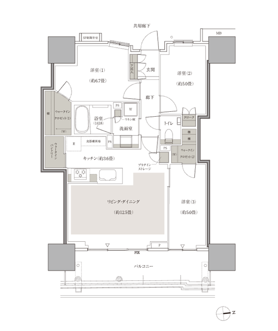
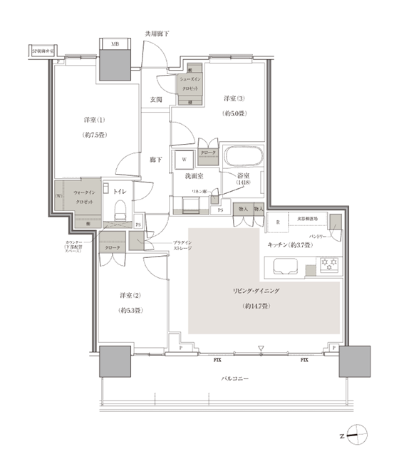
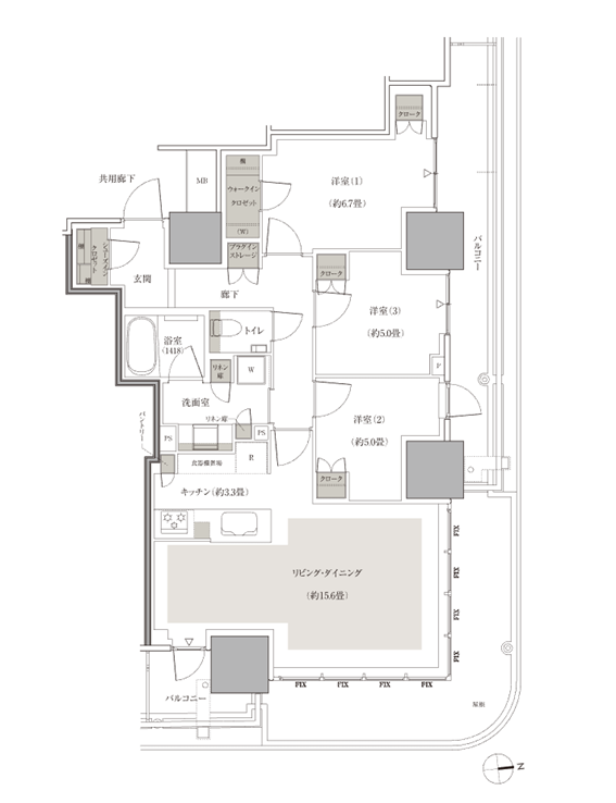
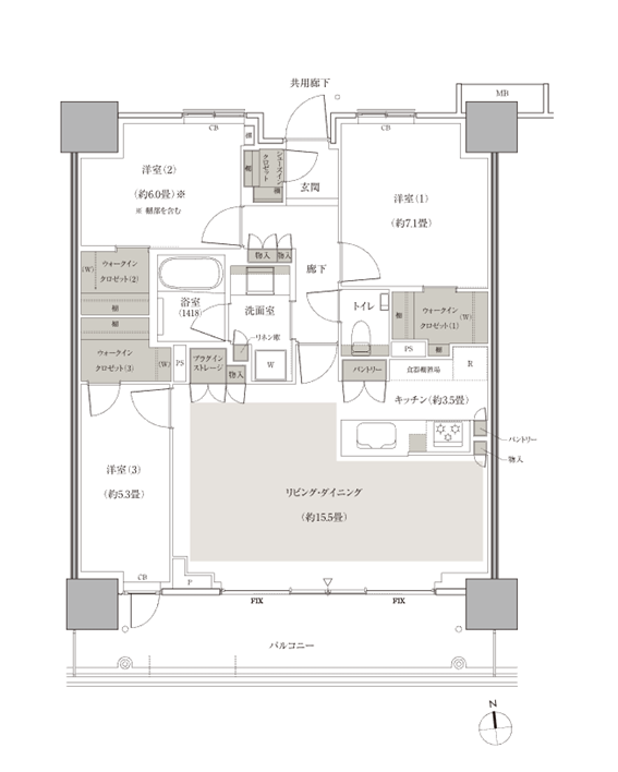
専有部
- 玄関電気錠
- Low-E複層ガラス
- キッチン御影石天板
- ガラストップコンロ

「幕張ベイパークブルームテラスタワー」公式HPより引用
眺望
本物件は北向きが抜けており、南向きはスカイグランドタワーとライズゲートタワー、東向きはシニアレジデンス、西向きはクロスタワーが被ってきます。距離はありますので、低層を除き大きく日陰になる心配はありません。
なお、北向きに住戸はなく、角部屋のみとなっています。
南向きの目の前には公園が広がっており、低層階では緑が見える気持ちの良いものとなりそうです。
東向きは、マンションミュージアム(モデルルーム)が今後建て替えの予定のため注意が必要です。高層にはならないとのことですが、現時点で高さは未定とのことでした。
価格考察
100万単位の価格です。30階以上は、トランクルーム(0.80 m2)が別途付帯します。
W66/W66t 66.33 3LDK(トランクルーム面積:0.80m2)
30階 6800万円 坪338万円
22階 6600万円 坪328万円

WT70A 70.27m2 3LDK
2階 7100万円 坪333万円

E72 72.35m2 3LDK
10階 7000万円 坪319万円
2階 6300万円 坪287万円

E73 73.92m2 3LDK(トランクルーム面積:0.80m2)
30階 7800万円 坪348万円
22階 7400万円 坪330万円

W80At 80.03m2 3LDK(トランクルーム面積:0.80m2)
39階 9000万円 坪371万円

Ne83 83.68m2 3LDK
10階 9000万円 坪355万円
2階 8400万円 坪331万円

S84t 84.97m2 3LDK(トランクルーム面積:0.80m2)
39階 9700万円 坪377万円

NwT93 93.87m2 3LDK 専用テラス面積/14.63㎡
2階 9000万円 坪316万円

Sw114t 114.08m2 3LDK(トランクルーム面積:0.80m2)
39階 16800万円 坪486万円

Nw85/Nw85t 85.80m2 4LDK(トランクルーム面積:0.80m2)
28階 10000万円 坪385万円
21階 9600万円 坪369万円
13階 9200万円 坪354万円

平均坪単価は約350万円。
価格は一部のみですが、これまでの傾向から階毎に、2~6階まで+100万、7階以上は+50万位の差と思われます。
高層階の眺望が良い住戸の値付けや、角部屋と角部屋の単価差を見ると条件の良い部屋の値付けが強くなっている印象を持ちました。
やむを得ないですが、前回のライズゲートタワーと比較して多少高くなっています。
これまでの価格からすると、どうしても高く感じてしまいますが、それでも周辺相場を見ると安心して購入できる水準です。
建築費高騰の中、スペック面でも本物件の競争力は高いものと感じます。
管理費や修全費は公開されませんでしたが、これまでと同水準であること期待したいです。
スマイルポイント(個人的なポイント)
良いと感じる点
- 1 デザイン
幕張ベイパーク内において、デザインは本作が1番良いと感じました。
共用棟が設けられたことにより、エントランスが映える形となりました。
2層吹き抜けも高級感が感じられます。エントランス周りに広がる緑との親和性も好印象です。 - 施設の充実
既存物件との差別化ポイントして、共用部の充実が挙げられます。
低層階と高層階のパーティルームや広いラウンジを有しており、これまでよりも共用部分は広い印象です。屋外テラスはこれまでにない特徴となっています。 - 魅力ある価格設定
これまでの幕張ベイパーク物件と比べて、多少高くなっていますが、それでも周辺相場から見て安心して購入ができる水準だと思いました。
プレミストタワー船橋と比較して半額程度であり、建築費高騰の中において、スペックから見ても本物件の競争力は高いものと感じます。
気になる点
- 眺望
幕張ベイパークは南から西にかけての眺望が人気で、評価が高くなっています。今作は内側に位置しているため、南面には既存物件が被ることになります。
また、第1期1次の予定住戸では、南向きの部屋が少なく次期以降を待つ形になります。 - 間取り
ライズゲ-トタワーに続いて、中住戸の間取りに厳しいものが見られるほか、角部屋においても柱の食い込みが目立ち、一部洋室が変形しています。
柱の有無やデッドスペースにより、同じ面積でも体感できる広さは違ってきます。 - 既存物件との大きな変化はない
本物件は、これまでの延長と思われるもので、大きな変化は感じられませんでした。欲を言えば、内廊下やプレミアム住戸の採用などラストに相応しい演出を望みたいところでした。
今後の予定
- 検討住戸アンケート 2月7日~
- 登録販売開始 4月下旬予定
- 重要事項説明および購入申込手続会、契約会 5月予定
まとめ
幕張ベイパークの開発も終盤となりました。何もなかった空地に、あっという間に5棟のタワーが建設され、イオンを中心とする商業施設も拡張が続き、魅力ある街へと変貌しました。
正直プロジェクトの初期については、無事に完成するのか半信半疑でした。
クロスタワー&レジデンスの先着順販売のDMが何度も送られてきた時もあり、ここまで人気になることは予想できませんでした。
本物件は、これまでのベイパーク物件と大きな変化は感じられませんでした。
一方で、この建築費が高騰する時代において、着実にデザインやクオリティは良くなっており、タワーマンションとして十分な魅力を持つ物件となっています。
なお、ライズゲートタワーの販売途中には、アリーナの建設やスタジアムの移転など大型の再開発ニュースが飛び込んできました。幕張ベイパークを含む今後の海浜幕張の成長が楽しみです。
[スムラボ編集部より] 本ブログ記事の情報は投稿日時点のものです。現在の販売情報はLifull Homesをご参照下さい。
スムラボ記事
この記事を見ている人はこちらも見ています
- 2026年販売予定のおすすめマンション【yossy】
- 【プレミアム記事】1月のオススメ中古物件【むさしのマンション】
- マンション 売ってみた3 完結編【モルモット】
- 【パークホームズ錦糸町北斎通り】すべてここにある利便性【Sana】
- 2026年 大注目のマンション10選!この中のマンションのどれかを購入したい!!【前編】【すごろく】
スムログ記事
- 幕張ベイパーク盆踊りイベントへ参加してみた! ~まもなく幕張ベイパークのマーケットはカオスへ~【マンションマニア】
- 幕張ベイパーク 2025年12月時点の相場 ~ブルームテラスの予定価格発表まであと少し~【マンションマニア】



































記事にコメントする