目次
うめきた2期再開発の象徴は、大阪の象徴へ

※グラングリーン大阪全景
長らく「完成された街」として成熟してきた梅田・うめきたエリア。
その中心に、これまでの延長線では語れないスケールと思想をもって誕生した「グラングリーン大阪」。
そして、その住宅の中核を担う「ザ・ノースレジデンス」は、単なるタワーマンションではなく、“都市における新しい贅沢の定義”そのものを提示しているように映ります。
これまで都心居住における価値は、眺望、立地、ブランドといった分かりやすい指標で語られてきました。
しかし本物件には、それらとは少し異なる文脈が存在します。
例えば、住戸の中に愛車を迎え入れるカーギャラリーという発想。
これは利便性ではなく、「所有すること」や「愛でること」に価値を置く、極めて個人的で、しかし強烈にラグジュアリーな思想と言えるでしょう。
今回、本記事の執筆にあたり、2026年3月に完成・引渡しを迎えた本物件の現地取材を行いました。
大阪のタワーマンション専門会社「TOWERZ」の協力のもと、話題を集める「カーギャラリー付き住戸」の内部にも潜入していますので、ぜひご期待ください。

※グラングリーン大阪全景
今回の記事は2つの記事に分けてご紹介します
今回の取材ボリュームが多いので第1弾:本記事(土地区画整理事業/カーギャラリー取材)
第2弾:共用部紹介を中心にした記事(4月中に公開します)
このように分けてご紹介しようと思います!
共用部だけではなく、
共用部内に飾られている数多くのアート作品もご紹介しようと思うので、次回記事も乞うご期待ください♪
共用部内に飾られている数多くのアート作品もご紹介しようと思うので、次回記事も乞うご期待ください♪
一応、改めて物件概要を確認
| 所在地 | 大阪市北区大深町 |
| 交通 | JR「大阪」駅 徒歩7分 阪急電鉄「大阪梅田」駅 徒歩9分 OsakaMetro御堂筋線「梅田」駅 徒歩9分 |
| 敷地面積 | 7,318.81㎡ |
| 総戸数 | 484戸(募集対象外住戸248戸) |
| 構造・階数 | 鉄筋コンクリート造一部鉄骨造・地上46階建て |
| 竣工予定年月 | 2025年12月下旬 |
| 引渡予定年月 | 2026年03月下旬 |
| 用途地域・地区 | 商業地域、防火地域 うめきた2期地区地区計画 都市再生特別地区 (うめきた2期中央地区) 土地区画整理事業(大阪都市計画事業 大阪駅北大深西地区土地区画整理事業) 駐車場整備地区(都心部地区) 下水道處理区域 下水道処理区域 |
| 売主 | 積水ハウス・大阪ガス都市開発・オリックス不動産・関電不動産開発・竹中工務店・阪急電鉄・三菱地所レジデンス・うめきた開発特定目的会社 |
| 設計会社 | うめきた2期区域設計監理業務共同企業体 |
| 施工会社 | うめきた2期共同企業体 |
| 管理会社 | 積水ハウスGMパートナーズ |
このマンションの興味深い点(難しい点)は、
「土地区画整理事業内」に建つマンションであることと密接に関わっています。
土地区画整理事業とは
本物件が位置するエリアは、「土地区画整理事業」によって再構築された街区です。土地区画整理とは、既存の土地をそのまま活かすのではなく、一度“再配分”することで、道路・公園・インフラを含めて街全体を最適化する手法です。
土地所有者は一部の土地を拠出する代わりに、整形され、利用価値の高まった土地を受け取ります。
この仕組みの重要なポイントは、「個別の建物ではなく、エリア全体の価値を引き上げる」点にあります。
結果として、立地そのものの競争力が長期的に維持されやすく、マンションの資産性にも間接的に影響を与える要素となります。

※国土交通省HPより引用
注意すべきことはあるのか
本物件は、現時点では「仮換地」という、いわば“まだ確定していない土地”の上に建っています。少しややこしいのですが、今の状態は
実際に使っている土地と、登記上の土地がズレている状態です。
建物はすでに通常どおり登記されていますが、土地については、昔の土地(従前地)の情報をもとにした、あくまで暫定的な扱いになっています。
今後「換地処分」という手続きが行われることで、土地の位置や地番が正式に確定します。
これによって、ようやく“見えている土地”と“登記上の土地”が一致することになります。
ただしこのタイミングでは、登記の手続きが一斉に行われるため、
2〜3ヶ月程度、売買やローン設定などの登記がしづらくなる(できない?)期間が発生する可能性があります。
この期間は売買決済(引渡し)が行えないので、取引に注意が必要です。
その後、土地の権利がデベロッパーから各購入者へ正式に移され、
最終的に「建物」と「土地」がセットになった、一般的なマンションと同じ状態(=敷地権付き区分所有)に整理されます。
実際のところ “本質的なリスク” がある訳ではないですが、
売買を行う際には
・一時的に売りにくい(登記しにくい)時期が存在する
・買い手側に、この仕組みを理解してもらうための説明コストが生じる
・金融機関の融資判断がやや慎重になる可能性がある
これらのことに気を付けておく必要があるかと思います。
そもそも、過去の事例が少ないため、売却を任せる際には、担当する仲介会社の営業担当者が、この仕組みについて十分な知識を有しているかどうかを確認しておくことが重要です。
基本的な知識がない個人や会社に販売を任せてしまうと、不要なトラブルを招く可能性があります。
そのため、仲介会社選びは慎重に行うことが重要です。
少しでも知識不足だと感じた場合は、その会社への依頼は見送るようにしましょう。
そのため、仲介会社選びは慎重に行うことが重要です。
少しでも知識不足だと感じた場合は、その会社への依頼は見送るようにしましょう。
ちょっと面白い話
実は私自身、不動産業者ではないため、知識や経験に限界があります。そこで本記事の執筆にあたり、タワーマンション専門の仲介会社である「TOWERZ」の契約管理部責任者の方に、実務面について詳しくお話を伺いました。
その中で特に印象的だったのが、以下の“初期コストの高さ”です。
・新築購入時の登記費用が非常に高額(とある住戸で約570万円)
・固定資産税の初年度負担が高額(同様に約200万円)
・修繕積立基金も高額(100㎡住戸で約200万円)
なかでも注意すべきは、短期間で転売を行う場合の「精算方法」です。
例えば、登記費用についてです。
現時点では、ファーストオーナーが登記費用を司法書士へ預託しています。
通常であれば、登記完了後に精算が行われ、余剰分は返金されます。
しかし本物件の場合、換地処分を経て登記が完了するまで(精算が行われるまで)に、約1年半程度の期間を要します。
そのため、この期間中に売却を行った場合、登記費用の精算をどのように扱うかが、実務上の論点となります。
例えば、上記の約570万円の登記費用のうち、最も大きな割合を占めるのが「所有権移転登記費用」(約340万円)です。
この登記は換地処分後にしか実行されないため、すでに売却を終えているファーストオーナーが負担すべきかどうかが問題となります。
この点については、最終的には売主(ファーストオーナー)と買主(セカンドオーナー)との契約内容次第となりますが、実務上は、これらの費用を買主側に負担させる形で調整されるケースもあるようです。
初期コストの高さ自体はさることながら、登記の時間差によって費用負担の帰属が揺らぐ点は見落とされがちです。
価格だけではなく “精算条件” が取引結果を左右する局面もあり、この物件は数字以上に契約設計の巧拙が問われる可能性があります。
価格だけではなく “精算条件” が取引結果を左右する局面もあり、この物件は数字以上に契約設計の巧拙が問われる可能性があります。
そろそろ本題!!「カーギャラリー付き住戸」潜入レポート
前置きが長くなりましたが、今回の本題の一つである、注目のカーギャラリー付き住戸について書いていこうと思います。
今回取材を行ったお部屋のご紹介
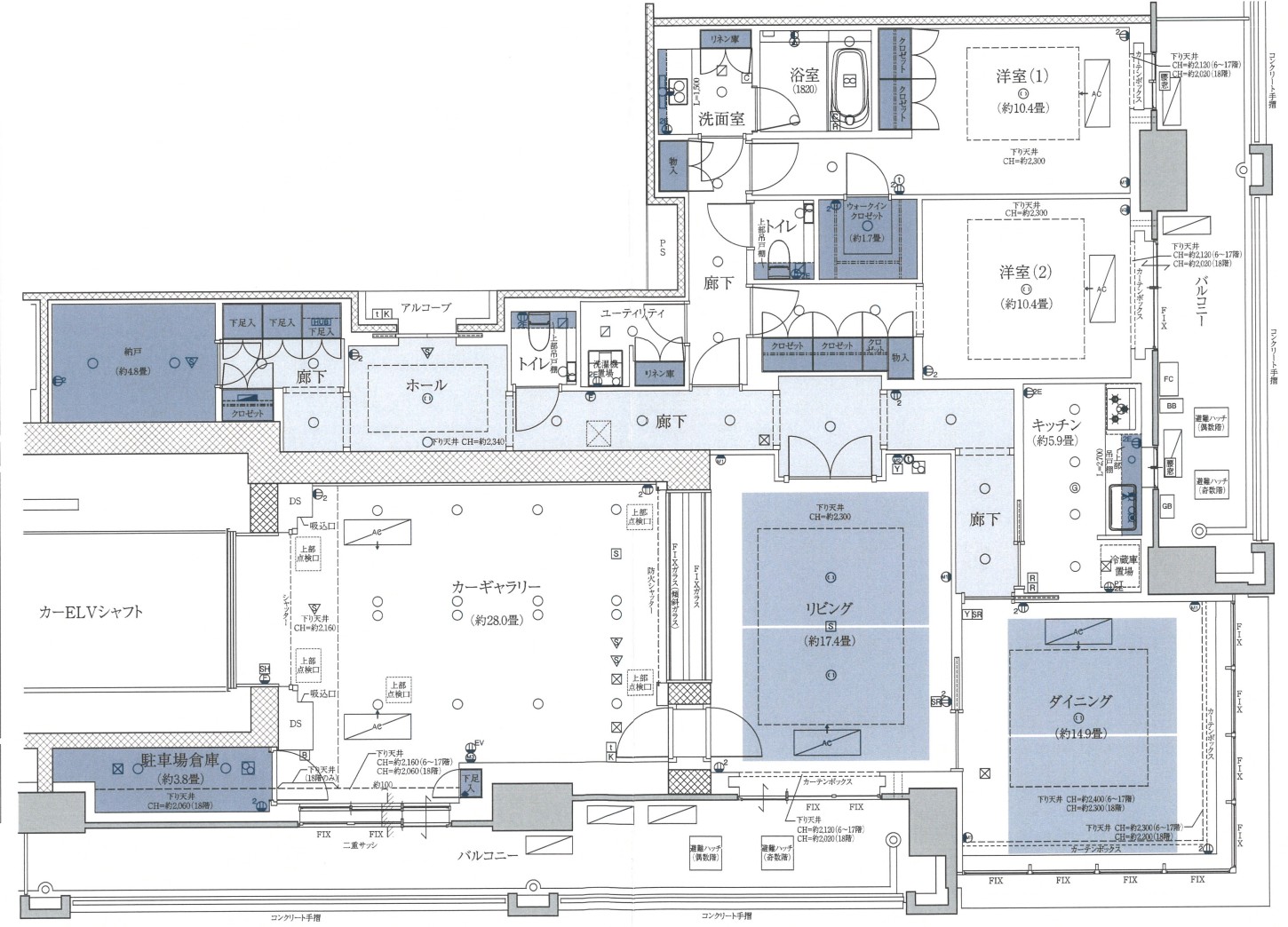
今回取材をさせていただいたお部屋は [NE161type]。このタイプは6階~18階までの12部屋用意されていますが、
実は、内10部屋は一般分譲されておらずvip向けにアンダーで販売が行われました。
なお、新築時の販売価格はざっくり4.5億円~5.5億円。

※新築パンフレット参照
専有面積:161.42㎡
カーギャラリー面積:52.94㎡
バルコニー面積:44.77㎡
アルコーブ面積:1.56㎡
総面積が260.69㎡という、とてつもなく豪華なお部屋です!

※新築販売時の完成CGパース
これは、もう皆さま何度も目にしたカーギャラリー住戸のCGパースです。
これは非日常感の強い、かなりインパクトの強い絵ですね。
この非現実的ともいえるお部屋ですが、ランニングコストも非常に高額です。
まず、カーギャラリー専用として、「管理費」「修繕積立金」「使用料」を合わせて、月額約10万円が必要となります。
さらに、機械式駐車場の契約が必須条件となっており、その費用も別途発生します。
これらを合計すると、車に関するランニングコストだけで、月額15万〜20万円程度を見込む必要があります。
まず、カーギャラリー専用として、「管理費」「修繕積立金」「使用料」を合わせて、月額約10万円が必要となります。
さらに、機械式駐車場の契約が必須条件となっており、その費用も別途発生します。
これらを合計すると、車に関するランニングコストだけで、月額15万〜20万円程度を見込む必要があります。
いざカーギャラリーの中へ
実際のカーギャラリーの内部はこのような感じでした。
※カーギャラリーの中
ではここからは「カーギャラリー内部」を細かくチェックしていきます。
▽まず、こちらはカーギャラリーから室内を見た様子です。
防音性を高めるため、ガラスは二重構造となっています。

※カーギャラリー内部の写真
▽収納力もかなり豊富で、奥行きの深い大容量の納戸と物入が付いています。

※カーギャラリー内にある「納戸スペース」

※カーギャラリー内にある「物置スペース」
▽こちらはコンセントですが、なぜか「TVのアンテナ線」の差込口らしきものも備えられていました。
カーギャラリー内でテレビを視聴したいというニーズを見越した、粋な配慮なのかもしれません。

※カーギャラリー内の「コンセント」
▽壁面は、写真のとおり、柔らかく音を吸収する素材で仕上げられています。

※壁はふわっとした柔らかい材質の防音仕様
▽天井には、なんと「天井カセットエアコン」が2台設置されています。
カーギャラリー内で愛車とともに長時間滞在することを想定した設計なのかもしれません。

※天井カセットエアコン
▽では、エレベーターを呼び出してみましょう。

※エレベーターの呼び出しボタン
▽エレベーター内部は、まるで近未来を思わせる、SFチックな仕様でした。
内部には操作ボタンのほか、何やら注意書きのようなものも見受けられます。

※カーエレベーター内部
▽エレベーター内部にはこのような注意書きが。
はみ出し検知センサーを遮るとブザーが鳴る仕様となっていますが、カーギャラリーに足を踏み入れた際にセンサーが反応し、ブザーが鳴ったため驚きました。

※カーギャラリーの内にある注意書き
▽シャッター扉は2重になっています。

※カーギャラリーのシャッター部分
安全面および防音への配慮からでしょうか、
シャッターは2重で、段階的にクローズするような仕様になっていました。
▽インターフォンも付いていましたので、万が一、閉じ込められても安心ですね。

※カーギャラリー内のインターフォンやキーリーダー
▽電気自動車の充電にも対応している様子。

※電気自動車用コンセント
以上、「カーギャラリー内部」を細部に至るまで拝見させていただきましたが、随所にまで配慮が行き届いた、非常に完成度の高い空間でした。
単なる“車を保管する場所”という枠を超え、愛車とともに過ごす時間そのものに価値を見出す。
そんな思想が体現された、特別な空間であることを強く実感しました。
個人的には、想像以上にしっかりと作り込まれた空間だという印象を受けました。
床はタイル張りで、空調設備も充実しており、カーギャラリー内での長時間滞在も想定されているように感じます。
特に防音面へのこだわりは際立っており、カーギャラリー内の騒音が室内にほとんど伝わらないよう設計されていました。
床はタイル張りで、空調設備も充実しており、カーギャラリー内での長時間滞在も想定されているように感じます。
特に防音面へのこだわりは際立っており、カーギャラリー内の騒音が室内にほとんど伝わらないよう設計されていました。
実は、新たに「カーギャラリー付き住戸」が供給されるようです
情報通のマンクラの皆さまであれば、既にご存じかもしれませんが、実は「グラングリーン大阪The South Residence」にもカーギャラリー付き住戸が用意されています。

※公式サイト参照
ノース棟とサウス棟のカーギャラリー簡易比較
| ノースレジデンス | サウスレジデンス |
|---|---|
| 132㎡×12部屋、161㎡×12部屋 | 126㎡×26部屋 |
| カーギャラリー部分/約53㎡ | カーギャラリー部分/約77㎡ |
| 新築価格/約3.3億円~5.5億円 | 新築価格/約9億円前後 |
「サウスレジデンス」では、再びカーギャラリー住戸が実装される予定ですが、専有面積はややコンパクトになる見込みです。
そのため、より広い住戸を希望される方には、サウスではなくノースをおすすめします。
また、現在「ノースレジデンス」では、132㎡・11階の住戸が10億円で売り出されていますが、「サウスレジデンス」の価格水準を踏まえると、妥当な水準に見えてきます。
→カーギャラリー住戸の「athome掲載情報」はこちら
今回、ノースレジデンスでは、東向きで「グランフロント」と重なり眺望が抜けにくい低層部分に、あえてカーギャラリー住戸を設けることで、高付加価値化に成功しています。
本来であれば価格を抑えざるを得ない条件の住戸に対して、“眺望以外の価値”を付加することで高単価を実現した点は、非常に興味深い事例です。
今後、新たにマンションを開発する際、「眺望は抜けないが価格は維持・向上させたい」といった局面において、カーギャラリー付き住戸という選択肢が、デベロッパーの間で徐々に広がっていく可能性も考えられます。
本来であれば価格を抑えざるを得ない条件の住戸に対して、“眺望以外の価値”を付加することで高単価を実現した点は、非常に興味深い事例です。
今後、新たにマンションを開発する際、「眺望は抜けないが価格は維持・向上させたい」といった局面において、カーギャラリー付き住戸という選択肢が、デベロッパーの間で徐々に広がっていく可能性も考えられます。
エピローグ
「グラングリーン大阪ザ・ノースレジデンス」は、単なる再開発タワーマンションではなく、”都市における価値の作り方”を示したプロジェクトだと感じました。
土地区画整理事業によって整えられた街の上に、“カーギャラリー付き住戸”という個性的な商品を成立させた点は、従来の価値軸とは異なるラグジュアリーの形を提示しています。
一方で、登記の時間差や精算といった制度特有の注意点もあり、理解の有無によって取引の難易度に差が出る点は見逃せません。
また、眺望に制約がある住戸でも、別の価値を掛け合わせることで価格を引き上げる──この発想は、今後の開発において一つの示唆となるはずです。
都市の贅沢は、ここまで来ました。
その価値をどう評価するかは、これからの市場が答えを出していくでしょう!
私も注意してマーケットをチェックしていこうと思います。
おまけ:グラングリーン大阪近隣で分譲中の新築マンション
今年の大阪の中古マンション市況は、グラングリーン大阪を中心としたエリアが牽引していくことになるでしょう。
そこで、今注目しておくべき本物件近隣の”新築マンション”をざっとご紹介させていただきます!
グランドメゾン梅田レジデンスタワー
公式ホームページはコチラグランドメゾン梅田レジデンスタワー

※公式サイト参照

※公式サイト参照
第1期スケジュール
- 要望書受付期間:3月20日~4月19日
- 登録申込受付期間:5月1日~5月9日
- 抽選会:5月11日

レグナスタワー新梅田
公式ホームページはコチラレグナスタワー新梅田

※公式サイト参照

※公式サイト参照
第3期1次スケジュール
- 2026年5月下旬販売予定

ブランズタワー大阪梅田
公式ホームページはコチラブランズタワー大阪梅田

※公式サイト参照

※公式サイト参照
第3期1次スケジュール
- 2026年5月上旬販売予定

レ・ジェイド大阪梅田
公式ホームページはコチラレ・ジェイド大阪梅田

※公式サイト参照

※公式サイト参照
第2期1次スケジュール
- 2026年4月下旬販売予定

注目物件だったので、「すごろくさんが記事を書いているのでは?」と思い確認してみたところ、なんと全物件の紹介記事を書かれていました。
ということで、勝手ながらご紹介させていただきました。
ということで、勝手ながらご紹介させていただきました。
今後、建設予定のプロジェクトも複数存在します
| グラングリーン大阪The South Residence | 建設予定地を確認する |
| 鶴野町タワープロジェクト | 建設予定地を確認する |
| 神山町タワープロジェクト | 建設予定地を確認する |
上記3物件以外にも、比較的近隣であれば「鷺洲1丁目」のタワー計画、中之島五丁目の2棟のタワー計画、福島三丁目のタワー計画
データマンX(旧Twitter)でも情報発信中
本物件以外にもタワーマンションを中心とした情報発信を行っておりますので、フォローをお願いします!
「ぜひフォローをお願いします☆」
データマンのTwitterはコチラ
スムラボ相談カウンターに登録しました

またスムラボさんの相談カウンターに登録させていただきました。
大阪の新築・中古マンションの「購入」「売却」でお悩みの方がおられましたらお気軽にご相談ください☆
相談カウンターはコチラ
[スムラボ編集部より] 本ブログ記事の情報は投稿日時点のものです。現在の販売情報はLifull Homesをご参照下さい。
スムラボ記事
- 【グランドメゾン梅田レジデンスタワー】梅田まで徒歩10分!西天満エリア20年ぶりの新築タワマンの価格は?!【すごろく】
- 【プレミアム記事】【グランドメゾン梅田レジデンスタワー】アンダー価格考察!大阪の新築タワマンは新時代の価格に突入!?後編【すごろく】
- 【グランドメゾン梅田レジデンスタワー】一般販売開始!意外と魅力的な価格を考察!【すごろく】
この記事を見ている人はこちらも見ています
- 【レ・ジェイド大阪梅田】モデルルーム訪問!梅田ど真ん中のマンションの価格考察!【すごろく】
- 【ブランズタワー大阪梅田】新年早々に販売開始!2期2次販売価格考察【すごろく】
- 【グランドメゾン梅田レジデンスタワー】一般販売開始!意外と魅力的な価格を考察!【すごろく】
- 【BIWARLY HILLS】関西圏最大級・JR石山駅徒歩1分の衝撃 駅直結982戸が滋賀の不動産史を塗り替える!【モルモット】
- 【レグナスタワー新梅田】2期1次販売開始!!前期最高倍率30倍越えのタワマンの2期販売価格考察!値上げしても魅力的か?【すごろく】
























記事にコメントする