今回はザ・パークハウス 用賀プレイス のご紹介 目次
田園都市線沿線に、規模感のある新築マンションが発表と言うことで、キットキャットは個人的にとても気になる立地だったので、より詳しく実際どんな物件だろうと調べてみたことを取り上げたいと思います!
「ザ・パークハウス 用賀プレイス」物件概要
| ザ・パークハウス 用賀プレイス | |
| 所在地 | 東京都世田谷区玉川台2丁目443番5(地番) |
| 交通 | 東急田園都市線「用賀」駅 徒歩7分 ※南口 |
| 総戸数 | 83戸 |
| 販売戸数 | 未定 |
| 駐車場 | (総戸数に対して)25台[平置5台、機械式20台(身障者用1台含む)]※駐車場優先権付き住戸対象8台含む。 |
| 販売価格 | 未定 |
| 予定最多価格帯 | 未定 |
| 間取り | 1LDK+S(納戸)~3LDK |
| 専有面積 | 46.35m2~91.77m2 トランクルーム面積0.37m2~0.46m2 合計専有面積46.75m2~92.20m2 |
| バルコニー面積 | 4.65m2~17.87m2、室外機置場面積:1.93m2~3.20m2、テラス面積:8.62m2~13.68m2、 専用テラス面積:19.21m2~29.28m2、ルーフバルコニー面積:11.68m2~72.18m2 |
| 販売予定 | 【第1期】2025年11月中旬販売開始(予定) [予告広告] 販売を開始するまでは、契約または予約の申し込み、並びに申し込み順位の確保には応じられません。 |
| モデルルーム | 物件エントリー受付中 |
| 完成日または予定日 | 2027年8月中旬(予定) |
| 引渡可能年月 | 2027年10月上旬(予定) |
| 敷地面積 | 1,890.69m2(売買対象面積) |
| 分譲後の敷地の権利形態 | 専有面積割合による所有権の共有 |
| 構造/規模 | 鉄筋コンクリート造(エスコートホール 木造)地上12階地下1階建 |
| 用途地域 | 用途地域:第二種住居地域・緑化地域 高度地区:第三種高度地区 防火地域:防火地域 |
| 建ぺい率/容積率 | 建ぺい率:70% 、容積率:300% |
| 管理形態 | 管理組合設立後、三菱地所コミュニティ株式会社に管理委託 |
| 管理方式 | 通勤管理 |
| 施設費用・償却費 | (総戸数に対して)●駐車施設/25台[平置5台、機械式20台(身障者用1台含む)]※駐車場優先権付き住戸対象8台含む。 ●自転車置場120台(2段ラック式(下部スライド式)97台、平置ラック式15台、子供用平置8台)●ミニバイク置場4台 |
| 備考 | ※2025年9月2日まで公開しておりました第1期販売予定に変更がございましたのでお知らせいたします。 【変更前】2025年11月上旬販売開始(予定)【変更後】2025年11月中旬販売開始(予定)※物件エントリー後、資料の送付はございません。ご了承ください。 本物件は高齢者、障害者等が利用しやすい建築物の整備に関する条例(東京都・建築物バリアフリー条例)に適合。本物件は東京こどもすくすく住宅認定制度の認定を受けた住宅です。 |
| 売主 | 三菱地所レジデンス株式会社、NTT都市開発株式会社 国土交通大臣(6)第5856号 東京都千代田区外神田4-14-1秋葉原UDX、(一社)不動産協会会員、(一社)不動産流通経営協会会員、(公社)首都圏不動産公正取引協議会加盟 |
| 販売会社(取引態様) | 三菱地所レジデンス株式会社<売主・販売提携(代理)>国土交通大臣(16)第408号 東京都千代田区大手町1-9-2 大手町フィナンシャルシティグランキューブ、(一社)不動産協会会員、(公社)首都圏不動産公正取引協議会加盟 |
| 施工会社 | 大豊建設株式会社 東京建築支店 |
| 建築確認番号 | JCIA確認S 23 第00035 号(令和6年5月17日)、JCIA確認S 23 第00035 号(02)(令和7年7月29日) |
| 問い合わせ先 | ザ・パークハウス 用賀プレイス 営業時間 平日11:00~17:00 土日祝10:00~17:00 定休日/火曜・水曜・木曜 0120-083-320 [email protected] |
| [販売戸数(区画数)未定]
供給予定の全住戸(区画)83戸の内容を表示しています。 本物件はすべての予定販売住戸(区画)を一括して販売するか又は数期に分けて販売するかが確定しておりません。 表示の面積等は販売総戸数(区画数)を基にしております。 販売戸数(区画数)決定後の本広告にて戸数(区画数)及びそれに対応する面積等をお知らせします。 |
|
外観
窓を開けて生活したいエリアだからこその、幅広タイプのテラスが用意されたのは良かったですね。敷地が窮屈になってくると、板状マンションでもダイレクトウィンドウタイプがありますが、タワマンのような高層階の眺望であればメリット感じられますが、低層板状マンションでダイレクトウィンドウはどちらかというと、敷地面積が厳しい場合に作られることが少なく無いかと思います。こちらの物件は敷地に余裕があることから、ダイレクトウィンドウではなく、テラスとしたのは評価したい。また、エントランスホールの風除室は木製を採用し、暖かな入り口となりそうなので、帰り路が好きになりそうな印象です。駅からは戸建て街を通過するからこそ、ライトアップが遠くからもで目立ちそうなデザインは、日々帰るときに満足度高そう(ライティングの差は、中古マンションとの差を、良く感じるところなので、その点が売りなのは良き)


現地周辺
周辺エリアは何度かキットキャットは取り上げていますが、「城南らしい」と言う言葉がふさわしい土地だと思います。空が広く、大きな家が多く、緑も多い。そんなエリアだからこそ憧れの世田谷区らしい暮らしが出来るのがこのエリアだと思います。そんな雰囲気の良い城南のエリアの中でも「用賀」駅はスーパーマーケットや環八沿いの商業など、生活利便性の高い施設が多いのが特徴だと思います。他の城南らしいえリアと比べて、ライフ、OKストアなどのスーパーマーケットの充実度は特筆。ライフやOKストアはこの用賀周辺の店舗で評判が良かったので、他のエリアの出店が加速したとも言えるスーパーマーケットなので、中身も伴っているラインナップが期待できるかと思いますね
公式HPのライフスタイルガイドブックがとても充実いしているので、見るだけでも楽しいです


そして、忘れてはいけない「砧公園」については先日取り上げた物件で紹介していますので、ぜひともこちら見てみてくださいね
【プラウド世田谷砧ガーデンコート】砧公園の緑を感じつつ小田急線の利便性を享受できる立地(キットキャット) | スムラボ
周辺で好きなお店。写真は上野毛店ですが、用賀にも店舗あります!
ピッツェリア マルデナポリを共有部として利用できるマンション
— キットキャット🇯🇵🇦🇺🇺🇸 (@Kitcat52001) October 27, 2025
プラウド等々力ガーデンコート
グランドメゾン上野毛 pic.twitter.com/RVo2uqkN4R
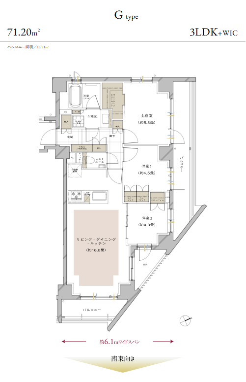
間取り
内廊下仕様と言うことで、田の字型と言うよりもタワマンのような間取りが多いですね、エレベータ2台ということもあり、両面バルコニーの部屋もあるようで、選ぶ楽しみがあります
A タイプ 1LDKS
4階:9400万円(坪664万)、6階:9800万(692万)
※公式HPより
C タイプ 2LDK
4階:10800万(坪645万) 6階:11400万(坪680万)
G タイプ 3LDK
4階:14200万(坪669万) 6階:14800万(坪697万)
Kt タイプ 3LDK+テラス
1階:15200万(坪668万)
K タイプ 3LDK
4階:16200万(坪712万) 6階:17600万(坪713万)
周辺物件紹介
周辺物件①ブリリア深沢8丁目
ブリリア深沢8丁目は用賀の隣の桜新町駅が最寄りの新築マンションです。前作パークホームズ深沢7丁目よりも、より駅ちかではありながら、定借70年物件ということで割高感出ているのか、先着順住戸が2戸販売中。立地は良いのは間違いないと前作で感じましたが、竣工後販売ということで定借の期限が徐々に近づいているのは頂けないかもです。【パークホームズ深沢7丁目】これからの季節、散策が楽しい深沢・砧エリアのマンション(キットキャット) | スムラボ



周辺物件②ドレッセ世田谷松陰神社
ドレッセ世田谷松陰神社 最終1邸が家具付き販売中です。間取りがネックなのか、販売しているうちに東急リバブル販売分が追加供給されてきました。競合物件として取り上げた #ドレッセ世田谷松陰神社
— キットキャット🇯🇵🇦🇺🇺🇸 (@Kitcat52001) October 11, 2025
東急不動産売り主分が追加供給。仲介手数料がかかるところにお値段のメリットが薄れそうだが、街の雰囲気が好きな方は見ても良さそう
【リリーゼ世田谷若林】改めて注目したい路線に良い出物(キットキャット) https://t.co/AFTnlH8OKR pic.twitter.com/NhD6mkeqS4



2LDKにできない1LDK。壁を追加出来そうですが、エアコンの引き込み口が無いため2LDKにできないとのこと。。

現地は落ち着いた住宅街。2方角地の広々とした地なので、印象良い立地でした。特に松陰神社前の商店街がほんわかしつつも新しいおしゃれなお店が出てきてとても散策し甲斐のある街だなと思いました。


周辺の物件③ピアース世田谷上町レジデンス
ピアース世田谷上町レジデンス販売も徐々に進んできて、残りの住戸は1階住戸やグロスの大きい3LDKになる模様。緑道沿いの1階はやはり避ける人が多いのか残っていますね。
落ち着いたエリア感がわかるエリアマップ



周辺の物件④リリーゼ世田谷若林
まもなく販売開始!お値段だけ見たらびっくりな価格帯なので、過去ブログを要チェック!【リリーゼ世田谷若林】改めて注目したい路線に良い出物(キットキャット) | スムラボ
隔て板もコンクリート製で、価格帯以上の品質だと感じました

現地の向かいではブリリアが建築中。向かいも同じくらいの高さとなるようなので、日当たりに影響出るほどではないと思われるとのこと。ただ、同じような値段ではなく、より高値であることは間違い無いとのことでした!

総括
ちょうど東京の反対側のザ・パークハウス 門前仲町が定期借地権70年の物件でありながら、ザ・パークハウス 用賀プレイスと近しいお値段で販売中であるので、比較される方もいらっしゃるのではないでしょうか。だいぶ周囲の雰囲気が異なる環境ではありますが、所有権の当物件が同じお値段であれば、通勤されるエリアによっては比較対象になりうる物件同士です。
周辺販売住戸も紹介いたしましたが、いずれもザ・パークハウス 用賀プレイスよりも規模は小さく、ディスポーザなどの共用施設も無い物件が多いです。つまりは新築マンションとしては他に直接のライバルがあまりいないと言うことですね。あえて言えば、同じ東急沿線のザ・パークハウス 武蔵小杉タワーズもライバルになってきます。
価格帯の同じようなマンションが都心周辺部にある場合に、どのように選んで行けばよいかと言えば、資産性も大事ですが、街に暮らした(行ってみた)際の空気感、歩いている人に好感を持てるかどうかが、実需の住戸選びとしては良いと思います。その点でザ・パークハウス 用賀プレイスは、良いほうの城南エリアの雰囲気を感じながら暮らせる用賀駅徒歩10分以内物件ということで、希少性はありますので(駅徒歩10分超えるマンションが珍しくない)、ぜひとも現地の雰囲気を感じる街歩きをしてみることをおススメします。
金額的には門前仲町(定借)と用賀が同じくらい、若干安めで武蔵小杉と言う、三菱地所レジデンスの値付けはちょうどよい価格帯なのかなと思います。複数路線使えることは共働き出社組には魅力的ですし、選ばないといけない理由が出来てくるので、予算も上げやすいと思いますので、そこを分かっての値段設定なんだと思います。用賀がとても雰囲気の良い駅ではありますが1路線だけで、かつ混みあう田園都市線と言うことで、共働きに選ばれにくい(女性受けしやすいのは用賀ですが)ことから、予算が低めの方が選ぶような印象を持ちます。そんな広域での分析からの値段設定だからこそ、無理ない金額で収まっていると思いますので、予算帯が合ってこのエリアを選びたい方にとっては良い選択だったってことになりそうなので、まずは資料請求から始めてはいかがでしょうか!
Twitterでは、より旬なマンション情報を発信していますのでTwitterもよろしくお願いいたしますm(__)m
「#ブログ用現地写真・映像 」+物件名 で検索すると現地写真・映像なども随時載せています。
マンション周辺の状況を動画で紹介するYouTubeチャンネルを開設しました!
分譲マンションの建築地周辺の様子 – YouTube
徐々に掲載物件を増やしていく予定です。ご覧になりたいマンションの表題の動画をご覧いただければ幸いです。
[スムラボ編集部より] 本ブログ記事の情報は投稿日時点のものです。現在の販売情報は物件公式サイトをご参照下さい。
この記事を見ている人はこちらも見ています
- 2026年 大注目のマンション10選!この中のマンションのどれかを購入したい!!【前編】【すごろく】
- 【リリーゼ世田谷若林】改めて注目したい路線に良い出物(キットキャット)
- 【パークホームズ深沢7丁目】これからの季節、散策が楽しい深沢・砧エリアのマンション(キットキャット)






















記事にコメントする