目次
ビアレ北浦和は、北浦和駅徒歩10分に建設される7階建て、総戸数107戸で2027年3月に引き渡し予定となっています

JR東日本のマンションってどうなんでしょうか?

価格はどのくらいですか?

駅徒歩10分は駅近ではないですよね…
不動産
これまで3回自宅マンション売買を繰り返して資産形成してきた私が解説します!
【結論】
- 平均坪単価390万円。ここ1〜2年の新築マンション高騰をしっかり盛り込んだ価格設定であり、JR東日本の社宅の土地を転用した値ごろ感はない
- Kタイプ、Nタイプのアトリエキッチンは秀逸
- イオン北浦和店の閉店は残念であるものの、建て替えによるイオン新店舗開業の方向
- 北浦和駅に近い中古物件と比較検討することをおすすめします
この記事を読むことで上記結論の理解が深まります
ぜひ最後までお読みください
物件概要

出典;ビアレ北浦和公式HP
- 所在地:埼玉県さいたま市中央区新中里一丁目652番1(地番)
- 交通:京浜東北線北浦和駅徒歩10分
- 総戸数:107戸
- 敷地面積:3,686.11㎡
- 建物竣工:2027年2月
- 売主:株式会社ジェイアール東日本都市開発
- 施工会社:株式会社長谷工コーポレーション
- 駐車場:56台
- 駐輪場:193台
間取りと価格 坪平均390万円

モデルルームを訪問して予定価格表を入手しましたので共有します
私の個人ブログでは坪350万円と予想しており、上振れしてしまいました
管理費と修繕積立金はこれから決定するとのこと
坪単価はたとえば”7,500万円台”であれば下二桁を50万円、7,550万円として算出しましたAタイプ 66.60㎡ 3LDK 西向き
- 2階 7,500万円台(坪374万円)
Brタイプ 65.32㎡ 3LDK 西向き
- 2階 7,900万円台(坪402万円)
Crタイプ 65.32㎡ 3LDK 西向き
- 6階 8,000万円台(坪407万円)
Cタイプ 65.32㎡ 3LDK 西向き
- 4階 7,500万円台(坪382万円)
- 2階 7,400万円台(坪376万円)
Drタイプ 76.93㎡ 3LDK 西向き
- 7階 9,500万円台(坪410万円)
Fタイプ 63.71㎡ 3LDK 西向き
- 6階 7,600万円台(坪396万円)
- 4階 7,400万円台(坪386万円)
- 2階 7,300万円台(坪381万円)
Gタイプ 55.63㎡ 2LDK 西向き

- 6階 6,800万円台(坪406万円)
- 4階 6,600万円台(坪394万円)
- 2階 6,500万円台(坪388万円)
Hタイプ 69.13㎡ 3LDKまたは2LDK+S 南向き

- 6階 8,600万円台(坪413万円)
- 4階 8,500万円台(坪408万円)
- 2階 8,200万円台(坪394万円)
Iタイプ 66.87㎡ 3LDKまたは2LDK+S 南向き
- 6階 8,100万円台(坪402万円)
- 4階 8,000万円台(坪397万円)
- 2階 7,800万円台(坪387万円)
Kタイプ 69.13㎡ 3LDK 南向き

- 4階 8,400万円台(坪403万円)★おすすめ
- 2階 8,100万円台(坪389万円)
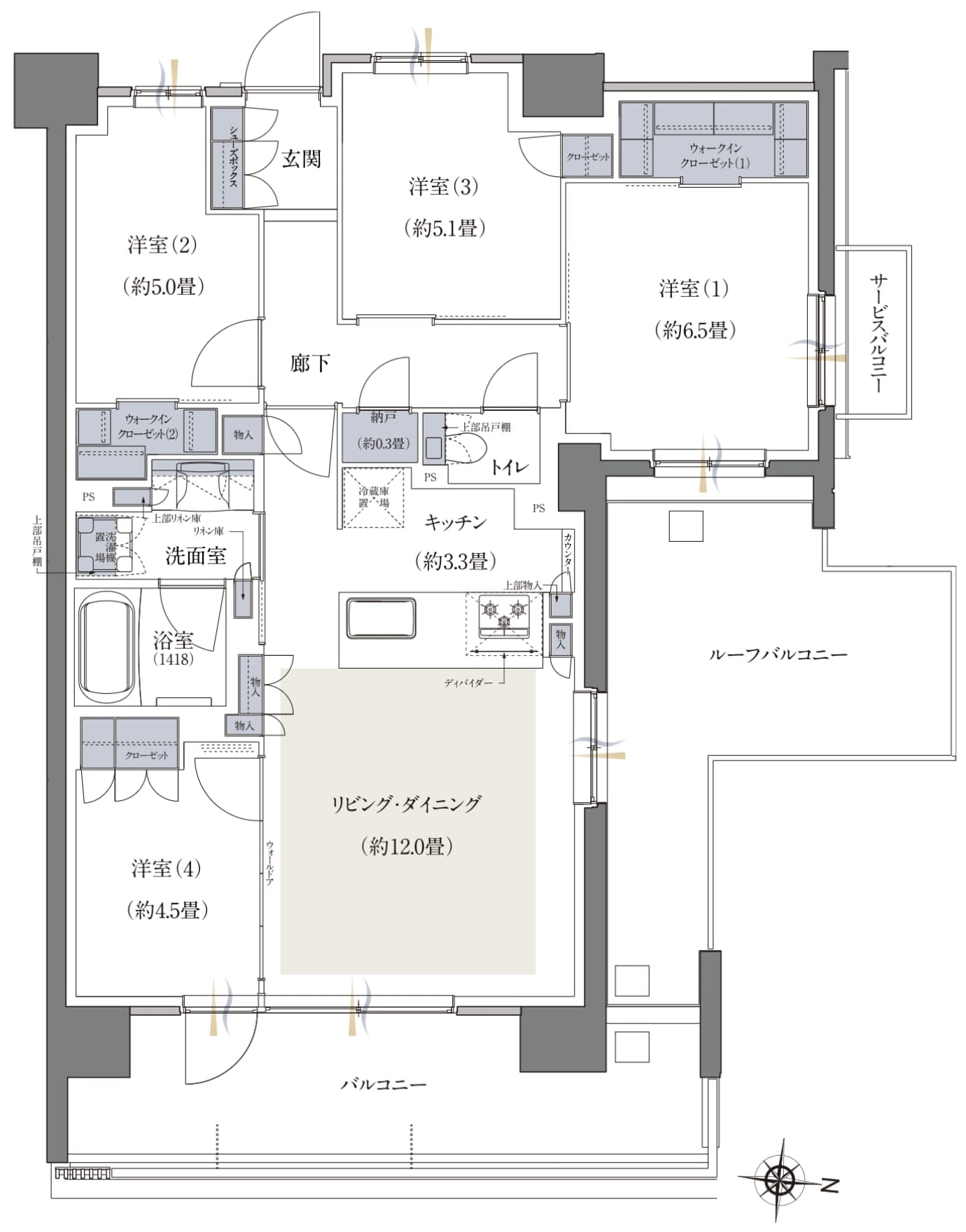
モデルルームで確認しましたが、作業スペースが広くダイニングやリビングとの一体感があります

画像出典;ビアレ北浦和配布パンフレットより
Lタイプ 67.80㎡ 3LDK 南向き
- 6階 8,100万円台(坪402万円)
- 4階 8,000万円台(坪397万円)
- 2階 7,800万円台(坪387万円)
Nタイプ 66.87㎡ 2LDK+S 南向き

- 4階 8,700万円台(坪432万円)★おすすめ
- 2階 8,400万円台(坪417万円)
角住戸ですから坪単価やや高めです
Orタイプ 82.75㎡ 4LDK 東向き

- 7階 11,000万円台(坪441万円)
Oタイプ 66.52㎡ 3LDKまたは2LDK+S 東向き
- 6階 8,000万円台(坪399万円)
- 4階 7,900万円台(坪394万円)
- 2階 7,800万円台(坪389万円)
Prタイプ 82.73㎡ 4LDK 東向き
- 6階 10,000万円台(坪401万円)
Qrタイプ 71.73㎡ 3LDK 東向き
- 5階 8,800万円台(坪407万円)
Qタイプ 67.61㎡ 3LDK 東向き
- 4階 8,000万円台(坪393万円)
- 2階 7,900万円台(坪388万円)
周辺物件との比較
【新築】クリオ北浦和グレイスコート
ビアレ北浦和と隣接し7階建て総戸数65戸で竣工予定は2026年3月となっています最終2戸の販売を残すのみ坪単価400万円ほど
ビアレ北浦和とほぼ同じですね
【中古①】プラウド北浦和
北浦和駅徒歩3分で2021年築、直近では坪370万円ほどで動いていました今後は値上り必至でしょう
【中古②】プラウド浦和常盤マークス
北浦和駅徒歩4分で2014年築、現在の相場は坪340万円ほど同じく駅距離の優位性から値上りが予想されます
中古に抵抗がなければ合わせて検討されることをおすすめします
設備仕様は一定以上 ただし気になる点もあり

評価できる点
①設備仕様- 食洗機
- ディスポーザー
- 床暖房
②外観デザイン◎
敷地入り口から奥まったところにエントランスがあり植栽が豊かなことに加えて、建物のブラウンの色調と調和しています
ジェイアール東日本都市開発第一弾としてデザイン性へのこだわりを感じました
気になる点
①エレベーター1基全107戸のうちエレベーターを使うであろう3階以上は77戸、それでも少ないと感じるのは確かです
②直床仕様
二重床よりもコストダウンされたとの評価になります
イオン北浦和店の閉店は影響大

イオン北浦和の閉店はビアレ北浦和の販売活動においてマイナスになったことは間違いありません
駅徒歩10分とはいえ買い物利便性は抜群とPRできたはずで、これを失ってからのモデルルーム開設はタイミングが悪かったですね
私が2025年8月に訪問した際には閉店売りつくしセールをしていました

そして2025年9月30日をもって45年の歴史に幕を閉じます
正式なプレス発表はありませんが数年後には戻ってくるとの方針が示されています
その数年後が2年後なのか5年後なのかそれ以上なのか、正式発表を待つしかありません
至近距離にビッグ・エーが開店する
スギドラッグ大戸中通り店が閉店した跡地にイオングループの小型ディスカウントスーパー、ビッグ・エーさいたま新中里店が11月15日に開店します小型店とはいえ徒歩1分の場所ですから重宝しそうです
総評

坪単価390万円はここ1、2年の新築マンション高騰をしっかり盛り込んだ価格設定であり、JR東日本社宅の土地を転用した値ごろ感はありません
埼玉県では大宮以南と以北での価格差が広がっており、京浜東北線沿線では浦和や川口以外の駅でも予想以上の売出し価格が目に付きます
私も事前案内会を訪問したお客さんの一人ですが、社宅の土地を転用した第一弾の販売でしたから価格面で期待していました
予定価格表を見せられた瞬間
不動産
こんなに高いのか…
と感じたのは事実です
相場感のアップデートが必要かもしれません
間取りはKタイプまたはNタイプがおすすめ
アトリエキッチンには高級感があり、第一期で間取りや階数の選択肢が多いうちに眺望が抜ける4階以上を購入できれば生活満足度は高いものになり、中古で売却することになっても有利になるでしょう予算の合う方には利用価値と資産価値を両立した選択肢になると予想しています
気になる方はぜひモデルルームを訪問してみてください
中古物件との比較は必須
建物の外観やキッチンが素敵だといっても、資産性にもっとも影響するのは駅力と駅からの距離ですモデルルーム訪問で気持ちが盛り上がったとしても、プラウド北浦和をはじめ北浦和駅により近い中古物件も検討し冷静に比較して購入判断をしましょう
ジェイアール東日本都市開発からの第二弾、第三弾も楽しみ
ビアレ北浦和はJR東日本グループの第一弾としてリリースされ注目を集めます古くなった社宅の土地を転用した敷地に余裕を持たせた建物配置、デザイン性も高いマンションづくりを目指している印象で、価格にはしっかり反映してくる販売方針と感じました
社宅だけでなく鉄道施設跡地など、マンション建設に適した駅近で優良な土地をたくさん保有しているでしょうから、第二弾、第三弾とどのような物件が登場するか楽しみにしています
ご参考になれば幸いです
最後までお読みいただきありがとうございました
[スムラボ編集部より] 本ブログ記事の情報は投稿日時点のものです。現在の販売情報は物件公式サイトをご参照下さい。























記事にコメントする