西千葉レジデンスアベニューのHPが公開され、現地も行って来ましたのでファーストインプレッションをまとめます!
現地行ってみて良いな!と思えるマンションでした。
西千葉レジデンス
— 2LDK (@2ldk18) September 14, 2025
駅徒歩3分、公園・スーパーも作る大規模開発、千葉公園徒歩圏内、わちゃわちゃしてる駅南口側でなく大学隣接の駅北側、学生街で飲食店コスパ◯とバランス良かった。総武快速止まらないのはネガ。
3LDK6,000万を意識した値付けにしそうなので新築3LDK予算6,000万の人は要チェック✅
物件概要
-
- 住所:千葉県千葉市稲毛区弥生町7番2
- 総戸数:512戸
- 完成予定日:2026年10月中旬
- 引渡予定日:2027年2月下旬
- 施工会社:長谷工コーポレーション
- 売主:野村不動産、三菱地所レジデンス、三井不動産レジデンシャル、大和ハウス工業、総合地所、東方地所
- 掲示板:西千葉レジデンス アベニュー
駅距離
- JR中央総武線 「西千葉」駅 徒歩3分
- JR総武中央線 「千葉」駅 徒歩18分
現地案内図
周辺動画です。南側のメインエントランスからスタートしています。
大規模再開発
西千葉駅からわずか徒歩3分、千葉大学に隣接する立地に75,000㎡もの広大な再開発が行われます。街区名称は「千葉 学美の杜(まなびのもり)」です(津田沼の「奏の杜」ぽさを感じたのは私だけではないはず)。分譲マンション(本マンション)に加えて戸建て・学生用賃貸マンション・サービス付き高齢者向け住宅・介護施設・商業施設(スーパー含む!!!)・広場が開発されます。特に広場や商業施設に隣接するのは子育てファミリー目線だとすごくいいですね!スーパーが入るのが特にアツい!公園も12,000㎡とかなり大規模です。ご近所だと幕張ベイパークの若葉三丁目公園や津田沼の谷津奏の杜公園が約22,000㎡なのでその半分くらいと考えると大きさのイメージがつきやすいかと思います(つくのか?)
大規模開発らしく施設は多めです。広場に隣接するコミュニティカフェも雰囲気良さげです。
デザイン
駅から一番近い南西端のメインエントランスイメージです。
特別豪華というわけではないですが、奥行きを持たせてゆとりがありますし。車寄せもあります。隣戸隔て板がトールタイプなことでパッと見が引き締まって見えますね。
エントランスホールも2層吹き抜けでホテル感あります。
共用施設
大規模のスケールメリットを活かし、キッズルーム・パーティルーム・ゲストルーム・テラス・ライブラリーラウンジなど複数の共用施設があります。キッズルーム
パーティルーム
ゲストルーム
アートテラス
ライブラリーラウンジ
ライブラリーラウンジは個室ブースがあるのがアツいですね!
学区
- 弥生小学校
- 轟町中学校
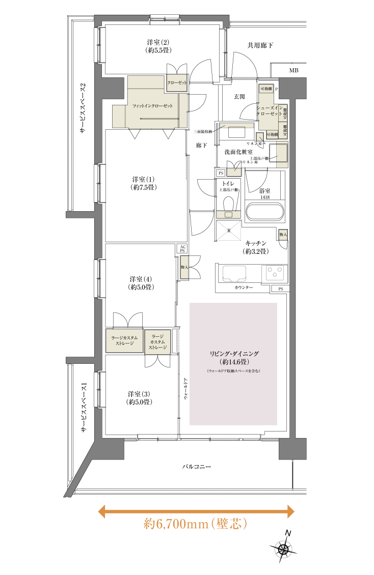
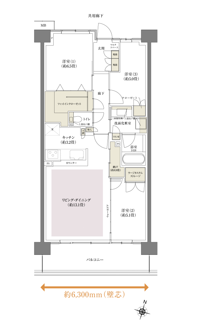
間取り
敷地配置図を見ると西向きは将来的に建設されるⅡ工区と被りますので、選べるうちは南向き・東向きの方が満足度が高そうですが、数も少ない南向きは価格も高そうなので価格含めた総合的な判断が必要になります。
子育てファミリーを意識してそうなマンションなので、4LDKもあります。
間取りは一般的な田の字間取りが多いですが、廊下側の柱の食い込みも抑えられているのは好印象でした(バルコニー側はアウトフレームを謳うも廊下側は柱がガッツリ食い込んでいるマンションも多い)。
仕様
ディスポーザーあり、トイレはタンクありタイプですがおそらく長谷工お得意の古めかしさを感じないタイプっぽいです(タンクを隠してタンクレスぽく見せる)。耐震構造が採用されています。
周辺相場
中古
- ライオンズステーションプラザ西千葉 2003年築 西千葉駅徒歩5分 坪160万程度
- ザノブトヒルズフォレストコート 2008年築 西千葉駅徒歩7分 坪180万程度
- エクセレントシティ西千葉春日 2014年築 西千葉駅徒歩2分 坪240万程度
新築
周辺中古からの逆算だと坪300万程度なのですが、そうすると70㎡の3LDKが6,000万を超えてきます。キャラは違いますが同じ千葉県内だと幕張ベイパークの低層住戸は坪300万を切ってくる単価になるので検討者目線だとベイパークに流れる人も一定出てくるでしょう(街の個性は全く違うのでどちらが良いという話ではなく広域で見る人は価格帯的に比較対象になるという意味です)。本マンションは戸数も多い上にⅡ工区も控えています。Ⅰ工区の1期1次からコケてしまって不人気マンションの烙印を押されることは避けたいのでは?と思うので、6,000万を意識した値付けにしてくるような気がします。途中からしれっと売主も増えたりしていて全体的に弱気になっているように見えます。
そうなると平均坪280万程度になってきますが、坪280万であれば周辺中古と比較しても買いやすいですし、おすすめしやすい新築マンションになってきます。
まとめ
津田沼駅南側(奏の杜アドレス)の中古は少し予算オーバー、千葉駅周辺は少しわちゃわちゃしすぎている(千葉セントラルタワーやエクセレントザタワーも良いのですが駅までのわちゃわちゃ感や小学校距離が気になる人は気になりそう。杉田家がエクセレントザタワー足元に来たのはアツすぎるのですが)、少し落ち着いた住環境でできれば新築が良い、といった方にはハマりそうです。個人的にはリニューアルされたばかりの千葉公園にも徒歩圏内なのもポイント高いですね。都内までの距離を考えると総武線快速が停車しないというネガはなかなか大きいですが、だからこその価格になっている(なりそう)とも言えます。徒歩圏内の商業充実を優先する方には向かないですが、そうでなければちょっとした買い物はマンション隣のスーパーで、大きめな買い物は電車で千葉駅まで出れば完結します。
建設費が高騰する中で坪300万を切る新築マンションはどんどん希少な存在になっていくと思うので、新築派の方は一度チェックいただくことをおすすめします。
駅距離や都内アクセスが許容できるなら幕張ベイパークの中古は今なら新築のブルームテラスタワー販売前で選択肢多めです。新築派でもっと都内に近い方がいい人は定借ですがリーフシティ市川ザタワーもチェックいただきたいですね。
ご相談は以下から受付しております!
[スムラボ編集部より] 本ブログ記事の情報は投稿日時点のものです。現在の販売情報はLifull Homesをご参照下さい。
記事に出てきた物件の掲示板
- CHIBA CENTRAL TOWER(検討スレ) | (住民スレ) | (まとめ) | (スムログ)
- エクセレントシティ西千葉春日ステーションフロント(検討スレ) | (まとめ)
- ヒルズグランデ稲毛(検討スレ) | (住民スレ) | (まとめ) | (スムラボ) | (スムログ)
- エクセレント ザ タワー(検討スレ) | (住民スレ) | (まとめ) | (スムログ) | (スムレビ)
- Brillia(ブリリア)Tower 千葉(検討スレ) | (住民スレ) | (まとめ) | (スムラボ) | (スムログ)
- リーフシティ市川 ザ・タワー(検討スレ) | (住民スレ) | (まとめ) | (スムラボ) | (スムログ)
- 西千葉レジデンス アベニュー(検討スレ) | (住民スレ) | (まとめ) | (スムラボ)
- 幕張ベイパーク ブルームテラスタワー(検討スレ) | (まとめ) | (スムラボ) | (スムログ)








































記事にコメントする