2月は日数も平日も少なく、本当にあっという間に過ぎていきましたね。その短い期間の中でも、新築マンションの発表は次々と続きました。なかには抽選必至の“お祭り物件”もありましたが、そうした話題性のある物件だけを追いかけていると、なかなか家探しが前に進まないこともあります。
だからこそ、少し視野を広げてみるのも大切だと思っています。自分の行動エリアに合うか、日々の暮らしに心地よさをもたらしてくれるか、趣向にフィットするか——そんな観点から選ぶことで、結果的に満足度の高い住まいに出会えるはずです。
今月も、そのような視点で「気になる物件」を取り上げていきます。
→これまでの気になる物件ブログはこちら
1月に気になる新築マンション(キットキャット) | スムラボ
12月に気になる新築マンション(キットキャット) | スムラボ
11月に気になる新築マンション(キットキャット) | スムラボ
New FRONT JR中野駅、その進化の前線へ。
「アトラス中野フロント」全体物件概要(赤字が注目点)
| 物件名 | アトラス中野フロント |
| 所在地 | 東京都市計画土地区画整理事業 中野三丁目土地区画整理事業地内1街区4画地、5画地 |
| 交通 | JR中央本線・総武線「中野」駅徒歩3分 東京メトロ東西線「中野」駅徒歩3分 |
| 種別 | マンション |
| 用途地域 | 商業地域 |
| 地域地区 | 防火地域・中野駅西口地区地区計画B-2、B-3地区 |
| 敷地面積 | 270.08㎡ |
| 建築面積・延床面積 | 214.48㎡・1,311.45㎡ |
| 建蔽率・容積率 | 79.42%・399.64% |
| 土地権利 | 所有権 |
| 構造・規模 | 鉄筋コンクリート造・地上9階 |
| 総戸数 | 22戸(非分譲住戸2戸含む)、店舗2戸 |
| 建築確認番号 | 第R05普及協会00033(令和5年4月28日付) 第R05普及協会01033(令和6年3月7日付) |
| 分譲後の権利形態 | 敷地・建物共用部分は所有者の共有、建物専有部は区分所有 |
| 管理形態 | 管理組合設立後、旭化成不動産コミュニティ株式会社に管理委託 |
| 管理会社 | 旭化成不動産コミュニティ株式会社 |
| 駐輪場 | 32台(2段式/下段:スライド式11台、ラック式7台・上段:ラック式14台) 【月額使用料】:400円~600円 |
| 竣工日 | 2025年2月17日 |
| 入居予定日 | 2026年10月下旬 |
| 売主 | 旭化成ホームズ株式会社 国土交通大臣(12)第2739号・(一社)不動産協会会員・(一社)不動産流通経営協会会員・(公社)首都圏不動産公正取引協議会加盟 〒101-8101 東京都千代田区神田神保町1丁目105番地 |
| 販売代理 | 旭化成不動産レジデンス株式会社 国土交通大臣(7)第5344号・(一社)不動産協会会員・(一社)不動産流通経営協会会員・(公社)首都圏不動産公正取引協議会加盟 〒101-8101 東京都千代田区神田神保町1丁目105番地 |
| 設計・監理 | パルシップ株式会社 |
| 施工 | 株式会社佐藤秀 |
第1期 販売概要
| 販売戸数 | 4戸 |
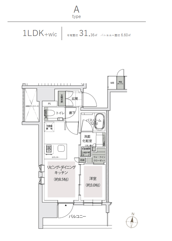
| 間取り | 1LDK~3LDK |
| 専有面積 | 31.36㎡~67.11㎡ |
| バルコニー面積 | 6.60㎡~12.75㎡ |
| 販売価格(税込) | 67,800,000円~179,800,000円 |
| 管理費(月額) | 20,090円~43,010円 |
| 修繕積立金(月額) | 4,220円~9,060円 |
| 管理準備金(引渡時一括) | 20,090円~43,010円 |
| 修繕積立基金(引渡時一括) | 303,840円~652,320円 |
| インターネット使用料(月額・税抜) | 1,800円 |
| 登録受付期間 | 2026年6月6日(土)10:00~6月7日(日)12:00 最終日6月7日(日)は11時30分最終入館、12時退館とさせていただきます。 |
| 抽選 | 2026年6月7日(日)12:30開始予定 |
| 登録受付・抽選会会場 | アトラス中野フロント 現地販売センター |
| ご登録の際に必要なもの | ①お認印 ②本人確認書類(運転免許証もしくはマイナンバーカード) ※融資をご利用の際は、登録受付締切日までに住宅ローン事前審査の承認が下りていることが登録要件となります。 ※ご契約時には手付金(売買代金の10%相当額)をお振込みいただきます。 |
| 備考 | 取引条件の有効期限:2026年6月7日(日) |
| 備考 | 情報更新日:2026年2月20日 次回情報更新日:2026年3月2日 ※上記、価格等には、消費税相当額が含まれております。 ※専有面積や間取り、共用施設、スケジュール等は、今後変更となる可能性があります。 |
「アトラス中野フロント」は、竣工から1年が経ってようやく販売開始となり、そのタイミングにまず驚きました。ただ、この立地であれば“売り渋りたくなる”気持ちも分かるほどの好条件で、自然と気になる存在でした。
中野駅といえば、北側の中野サンプラザ跡地開発やパークシティ中野ザ・タワーが注目されがちですが、実は南側でも再開発が進んでいます。南側の一等地は住友不動産がオフィスと賃貸マンションとして開発したため、これまで分譲マンションが存在しませんでした。しかし、新たに整備される「中野駅西口広場」の目の前に誕生するのが、この「アトラス中野フロント」です。
近年は北側で「リビオ中野レジデンス」や「シティテラス中野」などの新築マンションが供給されてきましたが、南側は長らく“空白地帯”でした。その中で満を持して販売される本物件は、まさに中野駅の“フロント”と呼べる立地で、駅距離だけで見ればパークシティ中野ザ・タワーよりも近く、十分な優位性を感じられる物件だと思います。




そして、間取りが美しいのも特徴的です。小規模物件はどうしても柱の位置の制約が大きいので、柱が食い込みがちですが、まったくと言って良いほど食い込んでいません。前面道路向かいに何か建つ可能性はありますが、今のところは抜け感ある眺望も実需居住者としては良いのではないでしょうか

価格も既に発表されており坪単価714万~904万円ほど。小規模物件かつ中野区と言うことで出しにくいかもしれないですが、類似物件があまりなく、販売戸数も少ないので売れていくのではないでしょうか(ただ、管理費はかなり重いですね、、、40㎡台と60㎡台の管理費は公表金額からの推計金額です)





<過去のブログで取り上げた沿線物件>
東西線沿線:【リビオ高田馬場】現地訪問からの販売価格インプレッション(キットキャット) | スムラボ
【パークシティ高田馬場】間取りにより価格差大きい1期1次販売開始(キットキャット) | スムラボ
10月に気になる新築マンション(キットキャット) | スムラボ
中央線沿線: 1月に気になる新築マンション(キットキャット) | スムラボ
中野区物件:11月に気になる新築マンション(キットキャット) | スムラボ
城西エリア:【城西エリア】まずはエントリーから始めてみよう②ジオ板橋大山で定借よ再び(キットキャット) | スムラボ
舞台は、三軒茶屋。その日常に、刺激と静寂を。
「ピアース三軒茶屋テラス」「ピアース三軒茶屋テラス」全体物件概要
- 所在地
- 東京都世田谷区若林1丁目439番2(地名地番)
- 交通
- 東急田園都市線「三軒茶屋」駅徒歩12分、東急世田谷線「若林」駅徒歩4分・「西太子堂」駅徒歩6分
- 地目
- 宅地
- 地域・地区
- 第1種住居地域、準防火地域、19m 第2種高度地区、景観計画地区(一般地域)
- 建ぺい率
- 60%(建築基準法第53条3項1号により70%)
- 容積率
- 200%
- 総戸数
- 24戸
- 敷地面積
- 710.82m2
- 建築面積
- 482.06m2
- 建築延ベ床面積
- 1,674.12m2
- 構造・規模
- 鉄筋コンクリート造 地上5階建
- 建築確認番号
- 第R07普及協会00139号(令和8年1月30日付)
- バイク置場
- 1台
- 自転車置場
- 27台(ラック式20台、平置7台)
- 分譲後の権利形態
- 敷地:専有面積割合による所有権の共有
建物:専有部分は区分所有権、共有部分は専有面積割合による所有権の共有 - 管理形態
- 区分所有者全員で管理組合を構成し、管理会社に委託
- 管理会社
- 未定
- 完成予定日
- 2027年8月下旬
- 引渡予定日
- 2027年10月中旬
- 設計・監理
- 有限会社庵都市建築設計事務所
- デザイン監修
- 株式会社ツズキオフィス
- 施工
- 未定
- 設計図書閲覧場所
- 株式会社モリモト 本社事務所
- 手付金等の保証機関
- 不動産信用保証株式会社
- 売主
- 株式会社モリモト
〒100-6314 東京都千代田区丸の内2-4-1 丸の内ビルディング14階 0120-624-200
国土交通大臣(6)第5998号(公社)首都圏不動産公正取引協議会加盟、(一社)全国住宅産業協会会員、(一社)不動産協会会員
「ピアース三軒茶屋テラス」は、東急田園都市線・三軒茶屋駅から徒歩12分と小規模物件ながら、世田谷線・若林駅から徒歩4分という点に惹かれました。以前世田谷線沿線を歩いた際、街の雰囲気がとても良く、暮らしやすさを強く感じたこともあり、この沿線の物件には自然と注目しています。
もちろん、都心へ向かうには乗り換えが必要だったり、バス便が中心だったりと、アクセス面でひと手間かかる地域ではあります。ただ、都内でありながらどこか穏やかで、ゆったりと時間が流れるような空気感は、このエリアならではの魅力だと思います。
直近では「リリーゼ世田谷若林」「ドレッセ世田谷松陰神社」「ピアース世田谷上町」などがいずれも早期に完売しており、好きな人にはしっかり刺さる街であることがうかがえます。さらに今後は若林エリアでブリリアの新築マンション販売も控えており、市場がより活性化する可能性もあります。
そうした背景を踏まえると、このエリアは今後も注目しておきたい場所のひとつだと思います。
<スムラボ掲載の周辺物件>
【リリーゼ世田谷若林】改めて注目したい路線に良い出物(キットキャット) | スムラボ
ピアース世田谷上町:1月に気になる物件3つ!(キットキャット) | スムラボ

モリモトのピアースらしいスタイリッシュなデザイン。街並みが良くなるような物件を城南エリアに供給し続けてくれるのは、モリモト社にはほんと感謝です。城南エリアの風景にモリモトあり、と言っても過言では無いかと


<過去のブログで取り上げた沿線物件>
【ザ・パークハウス用賀プレイス】予定価格と物件概要からのファーストインプレッション(キットキャット) | スムラボ
【プラウド世田谷砧ガーデンコート】砧公園の緑を感じつつ小田急線の利便性を享受できる立地(キットキャット) | スムラボ
【番外編】坪単価から気になるマンション3選(キットキャット) | スムラボ
競合物件として取り上げた #ドレッセ世田谷松陰神社
— キットキャット🇯🇵🇦🇺🇺🇸 (@Kitcat52001) October 11, 2025
東急不動産売り主分が追加供給。仲介手数料がかかるところにお値段のメリットが薄れそうだが、街の雰囲気が好きな方は見ても良さそう
【リリーゼ世田谷若林】改めて注目したい路線に良い出物(キットキャット) https://t.co/AFTnlH8OKR pic.twitter.com/NhD6mkeqS4
第1期販売が開始。価格発表時点でも「おおっと」と思える価格だったのですが、周辺物件がどんどん売れていくことで、さらに「おおっと」思える価格帯になりそうです
— キットキャット🇯🇵🇦🇺🇺🇸 (@Kitcat52001) November 5, 2025
【リリーゼ世田谷若林】改めて注目したい路線に良い出物(キットキャット) https://t.co/AFTnlH8OKR @Kitcat52001より pic.twitter.com/3fZX9XVAoC
地図で言うとこのあたり。世田谷区だけどほぼ目黒区 https://t.co/pHhQtX3aV6 pic.twitter.com/fZWWCDCRQM
— キットキャット🇯🇵🇦🇺🇺🇸 (@Kitcat52001) April 13, 2025
グラン レ・ジェイド 三宿通り(坪770万円台)
— キットキャット🇯🇵🇦🇺🇺🇸 (@Kitcat52001) April 26, 2025
第一期販売開始 三宿という通な地に10戸(駐車場9戸)という限られた方への分譲マンション
大きな部屋しか用意されず、ガレージ付住戸もあるなど、コンセプトが尖っているマンションですね
三宿通りに素敵な外観の建物が出来上がるのは楽しみです pic.twitter.com/oTPhkJZAtg
総括
今回も「実際に現地へ行ってみたい」と思える物件に出会えたため、ご紹介しました。まず「アトラス中野フロント」は、竣工から時間を置いての販売開始という点に“売り渋り感”を覚えつつも、それだけ立地に自信があるのだろうと感じました。再開発の完成も間近で、今後はより大規模な物件が続々と控えているエリアです。街の変化を肌で感じるためにも、一度訪れてみる価値は十分にあると思います。
一方、「ピアース三軒茶屋テラス」は、街歩きが好きな方にこそ検討してほしいエリアです。当物件だけでなく、周辺の中古物件も含めて選択肢を広げられる場所で、自転車や徒歩での散策がとても楽しい環境です。「この先に何か良いものがありそう」と思わせてくれる街並みが魅力です。
ネットの口コミだけに頼ると、どうしても情報に偏りが出てしまいます。だからこそ、できるだけ多くの街を実際に歩いて、自分の感覚で確かめてほしいと思っています。今後も広い視点で、気になる物件を取り上げていきます。
Twitterでは、より旬なマンション情報を発信していますのでTwitterもよろしくお願いいたしますm(__)m
「#ブログ用現地写真・映像 」+物件名 で検索すると現地写真・映像なども随時載せています。
マンション周辺の状況を動画で紹介するYouTubeチャンネルを開設しました!
分譲マンションの建築地周辺の様子 – YouTube
徐々に掲載物件を増やしていく予定です。ご覧になりたいマンションの表題の動画をご覧いただければ幸いです。
[スムラボ編集部より] 本ブログ記事の情報は投稿日時点のものです。現在の販売情報は物件公式サイトをご参照下さい。
スムラボ記事
記事に出てきた物件の掲示板
公式サイトもチェックしよう!

- 東京都中野区新井二丁目
- 中央本線(JR東日本) 中野 駅 徒歩9分 総武線 中野 駅 徒歩9分 東京メトロ東西線 中野 駅 徒歩9分
- 価格未定
- 2LDK~3LDK
- 55.19m²~71.40m²
- 販売戸数 未定 / 23戸










住井はな-125x125.jpg)










記事にコメントする