プロローグ ~序章~
本記事を書くにあたって
『シエリアタワー中之島』は、本年の再注目タワーマンションと言っても過言ではありません!そんな注目度の高い物件だからこそ「すごろくさん」は気合十分の記事を書いています。
▽▽ すごろくさんの記事はコチラです ▽▽
①「シエリアタワー中之島」大阪屈指の人気エリア中之島の魅力と予想価格
②「シエリアタワー中之島」定期借地物件でも大阪の新価格突入か?!
③「シエリアタワー中之島」魅力的な共用施設と課題が残る設備仕様…ズバリ買いか?【後編】
ということで、今更私が本件の特徴や魅力を説明する記事を書く意味は薄いので、
今回は「”超” データ分析編」と題して、データ分析に特化し、他のブロガーさんとは異なる視点から、この物件の魅力にアプローチを試みてみようと思います☆
定期借地権付きの特徴とは?
最近どんどん増えてきていますが、本物件は70年間の「定期借地権付き」のマンションです。定期借地権に関しては、過去の記事でその特徴について触れているので、
よければコチラをご参照ください
▽▽ 定借に関する過去の記事はコチラです ▽▽
売行き好調の「定期借地権」付きタワー「メトライズタワー大阪上本町」第1期結果・抽選住戸・売行き・お勧めプランなどを徹底分析<前編>♪
因みに、現在大阪市内で販売中の他の「定期借地権付きマンション」は以下の8物件です。
- 「梅田ガーデンレジデンス」
- 「シエリアタワー難波」
- 「ジオ四天王寺一丁目」
- 「シエリア靱本町」
- 「ローレルコート上本町五丁目」
- 「メトライズタワー大阪上本町」
- 「ジオ阪急淡路」
- 「グランドメゾン谷町四丁目」
このように「定借物件」はどんどん増えてる印象です。
また、2024年に発売を予定している「箕面船場」駅直結の2棟定借タワーにも注目です♪
融資可能な金融機関
以前は、「定借は金融機関の融資を受けられない」というようなウィークポイントもありましたが、近年は「定借物件」に融資をしてくれる金融機関も増加中↑↑本件であれば
- りそな銀行
- 三井住友銀行
- みずほ銀行
- 三井住友信託銀行
- 関西みらい銀行
- みなと銀行
- フラット35
などの都市銀行および一部の地銀が融資に対応しているようです。
※ネット銀行は軒並み対応していないですが、この状況のそんなに遠くない将来に変わっていくのかもしれませんね。
また、投資ローンも定借は対象外になります。
法人で取引先の銀行から融資を引っ張ってくるようなケース以外、個人投資家さんは手を出しにくい物件になってしまいますので、タワマン投資ブーム真っただ中の今、そこはやや懸念点になりそうですね。
いずれにしても、本物件の販売が成功をおさめたら、”定借” は更に市民権を有することになるでしょう。
来年には箕面船場駅直結の定借タワマンも販売が開始されますし、本物件に課せられた役割は大きい!!(と勝手に思っています)
物件概要
| 所在地 | 大阪市福島区福島二丁目3番2(地番) |
| 総戸数 | 364戸 |
| 構造・規模 | 鉄筋コンクリート造 地上35階建て |
| 専有面積 | 45.98㎡~168.43㎡ |
| 間取り | 1LDK~4LDK |
| 敷地面積 | 2,972.83㎡ |
| 建築面積 | 1,462.23㎡ |
| 建築延床面積 | 46,721.95㎡ |
| 事業主 | 関電不動産開発 |
| 施工会社 | 大林組 |
| 設計 | IAO竹田設計、大林組 大阪本店一級建築士事務所 |
| 竣工 | 2025年12月予定 |
| 引渡し | 2026年3月予定 |
そこそこ規模感もあって、立地も良くて中古市場に流通したあとを考えても比較的ポテンシャルの高い物件ですね!
仕様・構造などの特徴
ここはすごろくさんのブログがあるので、そこに書いてなさそうなポイントをサクっと箇条書きで補足しておきます。
天井高
- 06-39階 2,450mm
- 40-44階 2,700mm
- 45階 2,600mm
- 46階 2,800mm
39階以下の天井高がもう少し高ければ印象は結構変わったと思いますが。
EV
- 21階より下が「低層階EV」2基・・・対象住戸数160戸
- 22階より上が「高層階EV」3基・・・対象住戸数204戸
上記は別に「非常用EV」も1基用意されています。
第1期の分譲戸数
まだ概要で発表されていませんが、価格表を見ると対象住戸は134戸になっており、第2期以降に値上げ出来るように、敢えて販売対象住戸を絞っているような印象です。特に、比較的人気の出そうな「北西向きの低層階、Hタイプ」などは第1期の分譲対象住戸から外されているのが中々厳しいですね。
駐車場
・40階以上のフロアでは駐車場の権利付きの様子。注意点色々
- 「Aタイプ」は「バルコニー」がなく「サービスバルコニー」のみのため洗濯物が干せない
- 販売価格の中に「前払い地代」が含まれていない
- 床暖房が付いていない(40階以上は標準設置)
- 直床(40階以上は二重床)
- 手付金は10%必要
本件ではそれに加えて「前払い地代」も月々分割支払いになるとのことなので、本件を「居住用」として検討される方にとってはランニング費用は大きなネックになるかもしれませんね。
おまけ情報色々
- 屋上部分には電飾を仕込んでいるため、季節などによって色が変わる
- 中之島美術館と提携し、オーナーは入館料が1年無料。その他絵のサブスク利用も?
- あまり推されていませんが、構造は「DFS(デュアルフレームシステム)」採用
- 土壌汚染は確認済みで「問題なし」とのこと
- 来客用駐車場は2台分用意
- ペットの足洗い場あり(1階)
- 車寄せあり
- 電気室は2階に設置
- 3階部分に「多目的トイレ」「自動販売機」を設置
- ゲストルームは「ツインベッドルーム」と「ダブルベッドルーム」を各1部屋
- 「シエリアタワーオーナー」は販売価格から1.0%割引適用(これは大きい!)
- 返済比率の計算時に「地代」を含んで計算しなければいけない
参考記事:産経新聞NEWS
関電不動産、中之島に新マンション「美術館とタッグ」
中之島美術館との提携などは面白いですね。
入館料無料より、アートのサブスクサービスに個人的に興味が!(アートのことは何も知りませんが・・・
サブスクの運営会社はCasieに決定したとのことです。
まとめ
こういう細かい情報を、販売員さんからヒアリングしていくのは結構大変で時間もかかります。また確認が漏れてしまうことも多いので、少しでも検討の役に立つ情報が入っていれば幸いです☆
『商品構成』に関する分析
さて、ここからは久しぶりにデータマンらしい記事を書いていこうと思います♪☆シエリアタワー中之島の「専有面積帯」別分析☆
商品構成の中心となるのは福島区全体平均同様に「50㎡・60㎡・70㎡台」となり、全体の70%弱を占めています。
その他の面積帯においても特筆して大きな特徴はありませんが、60㎡未満の比較的コンパクトな住戸をやや多めに用意している傾向が見られます。
価格が上昇しているので、グロスを抑えた比較的買い易い住戸を用意するためでしょうか。
因みに、福島区は市内の他の区に比べて広めの住戸がやや多いという特徴があります。
便利で住み易く、子育て環境も良好というイメージが強いので、ファミリー世帯に人気が高いことが影響しているのでしょう。
既に竣工済みのタワーでは、特に「大阪福島タワー」などは子育て世帯が多く暮らしていらっしゃるという印象です。
その他の面積帯においても特筆して大きな特徴はありませんが、60㎡未満の比較的コンパクトな住戸をやや多めに用意している傾向が見られます。
価格が上昇しているので、グロスを抑えた比較的買い易い住戸を用意するためでしょうか。
因みに、福島区は市内の他の区に比べて広めの住戸がやや多いという特徴があります。
便利で住み易く、子育て環境も良好というイメージが強いので、ファミリー世帯に人気が高いことが影響しているのでしょう。
既に竣工済みのタワーでは、特に「大阪福島タワー」などは子育て世帯が多く暮らしていらっしゃるという印象です。
専有面積は上記の通り大きな特徴はなく、冒険をせず無難に作ってきたという感じがしますね。
では、広さだけではなく、同じ商品構成に関して次は「間取り」についても分析してみましょう。
☆シエリアタワー中之島の「間取り」別分析☆
間取りについては、専有面積の傾向に比べて少し特徴が見られますね!
それは、商品構成上「2LDK」プランが多く「1LDK」が少ないという点です。
因みに、大阪市内の中古タワマン市場において、
最も取引が活発に行われているプランは「3LDK」ではなく「2LDK」です。
※ざっくり、全体の約45%程度が「2LDK」です☆
その点を加味すると「2LDK」を比較的多く用意しておくのも合理的ですね。
また「50㎡未満」の「1LDK」プランは、本物件内において希少性が高いとも考えることができます。
それは、商品構成上「2LDK」プランが多く「1LDK」が少ないという点です。
因みに、大阪市内の中古タワマン市場において、
最も取引が活発に行われているプランは「3LDK」ではなく「2LDK」です。
※ざっくり、全体の約45%程度が「2LDK」です☆
その点を加味すると「2LDK」を比較的多く用意しておくのも合理的ですね。
また「50㎡未満」の「1LDK」プランは、本物件内において希少性が高いとも考えることができます。
さて、ではその1LDKについてプランのご紹介も!
希少な1LDKの間取りをご紹介
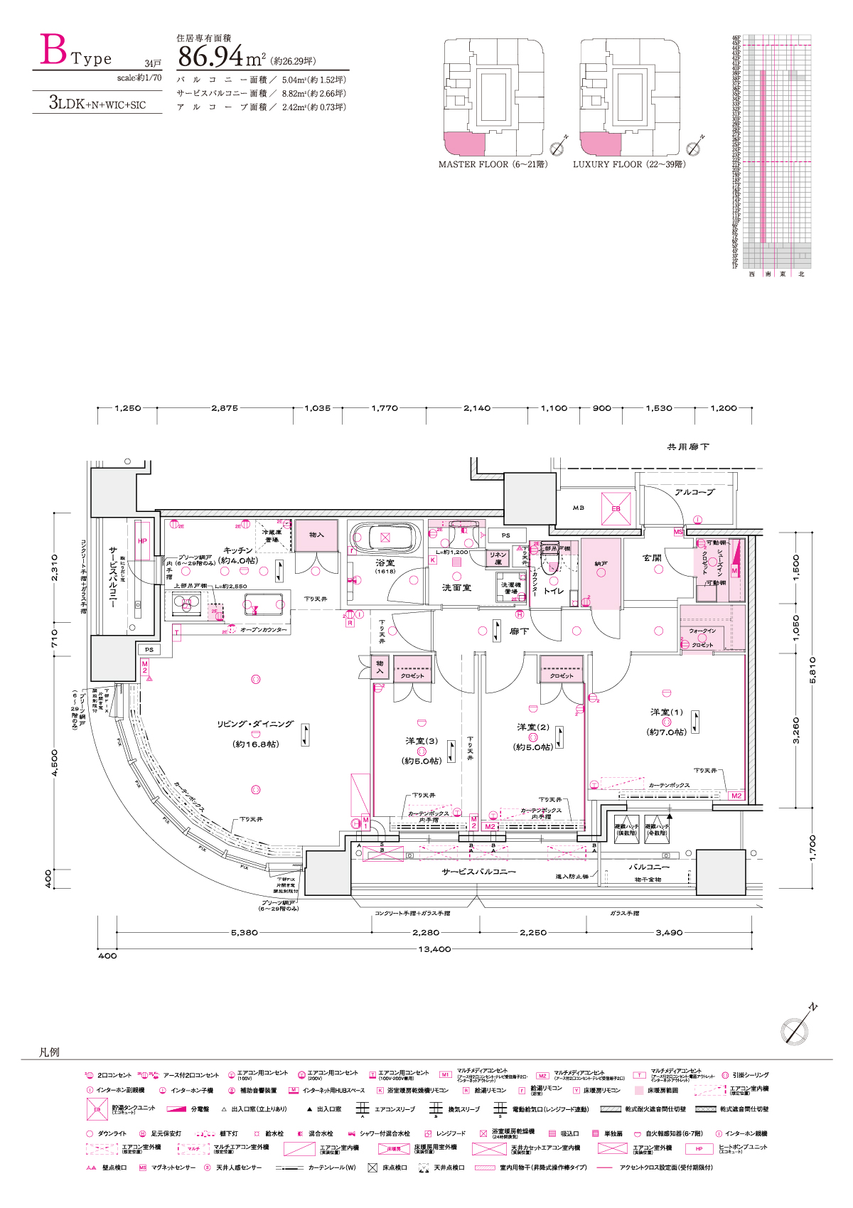
因みに、本物件において忘れてはいけないポイントに間取りが素晴らしいという点があります!1LDKプランの「Hタイプ/北西中部屋」はこの広さの1LDKの最高峰と言える間取りプラン。
・この面積にして約7mのワイドスパン!
・柱型のない整形プラン!
・廊下の短い無駄のないプラン!
・LDと洋室を一体化するスライドドア!
・結構なサイズ感の納戸まで完備!
・クランク廊下風
・バルコニー眺望も良好
・ちょっとした隙間に物入を用意
などなど、優れたポイントがたっぷり☆
ただでさえ希少性の高いプランにも関わらず、これだけのプランなら余計注目度が高いですね!
この部屋は、第1期で分譲して欲しかった・・・
オマケの「新築比騰落率」分析
この棒グラフは、中古市場で取引された物件における「新築時の価格からの値上り率」を
間取り別に分析したものです。
この結果、リセールバリューを考えても「1LDK」はお勧めできますね☆
それと同時に「1R」「1K」「1DK」などは騰落率がグーンと落ちます。
やっぱり1R投資は、あれですね・・・
間取り別に分析したものです。
この結果、リセールバリューを考えても「1LDK」はお勧めできますね☆
それと同時に「1R」「1K」「1DK」などは騰落率がグーンと落ちます。
やっぱり1R投資は、あれですね・・・
さてさて、折角なのでもう一押し深堀してみましょう。
では、先ほどの棒グラフとこちらのグラフを見比べてみましょう!
※こちらは、福島区内の中古市場で取引された物件における「新築時の価格からの値上り率」を間取り別に分析したものです。
福島区内では商品個性上やや少ない「1LDK」が、その希少性の影響もあってか、騰落率においては首位を獲得していることが分かります。
この点からも、福島区内のタワーマンションでは、1LDKへの投資期待値(リセール)が高いと言えます。
※こちらは、福島区内の中古市場で取引された物件における「新築時の価格からの値上り率」を間取り別に分析したものです。
福島区内では商品個性上やや少ない「1LDK」が、その希少性の影響もあってか、騰落率においては首位を獲得していることが分かります。
この点からも、福島区内のタワーマンションでは、1LDKへの投資期待値(リセール)が高いと言えます。
そしてそして、こっちもチェックしておきましょう。
お隣の「クレヴィアタワー中之島」もチェック~♪
はい、こちら本物件の南西側、隣の敷地に建設済みのタワーマンションです。
お隣の物件ですが、シエリアとはちょっと傾向が異なりますね。
50㎡台のコンパクト住戸が多め用意されていて、シエリアでは非常に少ない1LDKの割合が高い傾向が見られますが、3LDKメインで作っているところは商品構成としては似ていますね。
※間取りは新築販売時の基本プランで分析しています。
ただし、ちょっと次のグラフを見ると、住んでいる方の傾向が分かります。
50㎡台のコンパクト住戸が多め用意されていて、シエリアでは非常に少ない1LDKの割合が高い傾向が見られますが、3LDKメインで作っているところは商品構成としては似ていますね。
※間取りは新築販売時の基本プランで分析しています。
ただし、ちょっと次のグラフを見ると、住んでいる方の傾向が分かります。
基本プランでは2LDKが殆ど用意されておらず3LDKが中心であった本物件ですが、実際に市場で取引が行われた部屋を分析すると2LDKが圧倒的に多いです!
これは、新築販売時に3LDKを2LDKに変更されるニーズが高かったということを表しています。
クレヴィアタワーが販売されていたのは2011年前後ですので、今のように「投資目的」で検討していた方の割合は少ないでしょう。
この傾向から、シエリアタワー中之島でも70㎡前後のプランを検討される際には2LDKプランを選択されることで市場のニーズに近づけると言っても良いのではないでしょうか。
これは、新築販売時に3LDKを2LDKに変更されるニーズが高かったということを表しています。
クレヴィアタワーが販売されていたのは2011年前後ですので、今のように「投資目的」で検討していた方の割合は少ないでしょう。
この傾向から、シエリアタワー中之島でも70㎡前後のプランを検討される際には2LDKプランを選択されることで市場のニーズに近づけると言っても良いのではないでしょうか。
さて、ここからは本記事のメインディッシュ!
全住戸の予想価格の発表です☆
全住戸の価格予想
私はいつも物件の価格検証を行う際に、物件ごとに鳥かご(価格表)を自作しています。何故なら、マンションギャラリーで配布される価格表には「単価」の記載がなく価格バランスが分かりにくいからです。
ということで今回は、価格が分かっていない部分も “予想” で埋めて、且つ全住戸の坪単価も一覧表示できるようなものを公開してみようかと思います。
尚、こちらは第1期の価格水準に合わせて全体を予想しているので、第2期以降値上げをする場合は大きくずれてしまいます。
また、第1期で分譲しないと決まっている部屋も「第1期の価格水準で分譲されたら?」という前提で値付けしています。
※一応、出回っても責任は1ミリも責任取れないので転用は一切不可とさせていただきます。
データマン作「シエリアタワー中之島」全体予想価格表
※2枚目はフロア毎にどれぐらいの価格差を付けたのかを可視化するための鳥かごです。第1期の検証価格は坪単価420万円で設定されているようですが、
今、第1期予定価格として公表されている価格をベースに想定価格を作ると、全体平均は坪単価415万円になりました。
ですので、実際はもう少し全体的に高めに設定されている可能性があります。
では、この表をベースにどこを買うべきかを考えてみたいと思います。
本物件においては「リバービュー」に非常に高い価値があると考えるべきで、その差をどの程度までバランスを付けるべきかというのが最大のポイントです。
方位ごとの特徴を確認しましょう
- 「東南」/最良の方位。中之島五丁目開発やリーガロイヤル、また低層階からリバービューが確保
- 「南西」/クレヴィア真正面のど被り方向のためやや微妙か?ただしリバービューもやや確保
- 「北東」/関電病院を正面に見据える(窓は正面に向いていない)。リバービューもやや確保
- 「北西」/比較的低層住宅が多いため、低層でも眺望は良好
次にこれらを写真でも確認するためにGoogle Earthからスクショを撮影してきました!
◇正面に中之島五丁目開発エリアを望んでいるので、これからどうなるかが楽しみな方角ですね☆
◇クレヴィアとコンニチハはちょっと辛いですが、堂島川ビューは素晴らしいですね。ザ・パークハウス中之島タワーも見えてますね☆
◇関電病院の窓は南と西に向けているので、正面にコンニチハはしないのがポイントです!堂島川ビューも素晴らしいので良い方角ですね☆
◇スカイラウンジと同じ方位!上層階からなら淀川の花火も見える方位。リバービューを諦めるなら良い眺望☆
次は、方位別の価格検証
13階部分をベースに「角部屋」の価格検証をすると、
- 東の角部屋が最も高く設定されている<約386万円>
- 次いで南角部屋が<約365万円>
- 北の角部屋は<約348万円>
- 西の角部屋は北と同じ位の<約345万円>
西と北の角はやや小さい部屋、南と東の角が80㎡台のやや広い部屋という設定です。
この価格差であれば、私的にお勧めは「南角/Bプラン」です。
お勧めの角住戸「南向き角部屋/Bタイプ/77.58㎡
ほんと・・・この物件の間取りどれもこれも最高過ぎますね。
この部屋はメニュープランにおそらく用意されているであろう、洋室3をLDに繋いだ2LDKプランが良さそうですね!
メインの開口部は東南の堂島川ビューで、クレヴィア方面への開口部はほんの僅か。
リビングからは「ザ・パークハウス中之島タワー」方面に向けた超リバービュー!!!
バルコニーが少ないですが、まぁそこは大したことではないでしょう。
次に、同じ13階部分をベースに「中部屋」の価格検証をすると、
これ、先ほどの角部屋と比べて、方位別の価格差が小さいと思いませんか?
この価格差であれば、イチ推しのプランは迷うことなくこちらです
この部屋はメニュープランにおそらく用意されているであろう、洋室3をLDに繋いだ2LDKプランが良さそうですね!
メインの開口部は東南の堂島川ビューで、クレヴィア方面への開口部はほんの僅か。
リビングからは「ザ・パークハウス中之島タワー」方面に向けた超リバービュー!!!
バルコニーが少ないですが、まぁそこは大したことではないでしょう。
次に、同じ13階部分をベースに「中部屋」の価格検証をすると、
- 東南は最強の方角で最も設定単価が高い<約333万円>
- 次いで北東が<約319万円>
- 北西は<約313万円>
- 南西は<約311万円>
これ、先ほどの角部屋と比べて、方位別の価格差が小さいと思いませんか?
この価格差であれば、イチ推しのプランは迷うことなくこちらです
お勧めの中住戸「南向き中部屋/Cタイプ/73.92㎡」
これも最高の間取りですね!
先ずは、70㎡台にも関わらず「10mを超える超ワイドスパン」のプラン!!!
キッチンの横の大きな納戸(食品庫スペース)も魅力的。
恐らく低層階のこの部屋は「第1期で最も人気が出るんじゃないか?」と予想しています。
中部屋では、先にご紹介した「北西の中部屋/Hタイプ(1LDK)」も注目度高めですが、個人的にはこっちがイチオシです☆
先ずは、70㎡台にも関わらず「10mを超える超ワイドスパン」のプラン!!!
キッチンの横の大きな納戸(食品庫スペース)も魅力的。
恐らく低層階のこの部屋は「第1期で最も人気が出るんじゃないか?」と予想しています。
中部屋では、先にご紹介した「北西の中部屋/Hタイプ(1LDK)」も注目度高めですが、個人的にはこっちがイチオシです☆
22階~39階のフロアに関して
ここから上のフロアでは「高層階用EV」対応のフロアになります。傾向としては、
方位別での角部屋の価格差は「より大きく」、中部屋の価格差は「より小さく」設定されています。
ただ、リバービューについては低層階でも十分堪能できるので、この辺りの階層に上がる価値はこの価格差程にはないような気がしています。
40階以上のプレミアム住戸
もうこの辺になってくるとどこがいいとかはよくわかりませんね(笑)天井高は2,700mmになります☆
45階以上の超プレミアム住戸
このフロアは、既に購入希望者が複数集まっており、抽選になるかもしれないと販売員の方がおっしゃっていました。
45階の天井高が2,600mm、46階は2,800mmになるのでかなり価格差が付きそうな予感がしています。
因みに、45~46階部分にはビューバス付き住戸の部屋もあります!
本物件のまとめ
堂島川リバーサイドの最前線に位置し、今後の中之島開発の恩恵も受けることのできる非常に注目度の高い物件です。
「共用部の充実」は将来のリセールバリューに影響する大きな要因ですが、本件は非常に充実した共用部を備えている点も大きなセールスポイントです。
恐らく、上層階は「居住用」「セカンド需要」が中心で、下層階は「居住用」「投資用」が中心になるのではないかと予想しています。
投資用で検討する方の懸念点
- ランニングコストが高くなるため表面利回りは高いが、実質利回りは低くなる
- 投資用で検討する方は、リセールが読み難い定期借地権物件をそもそも敬遠しがち
- 投資ローンが使えないため、投資家が物理的に購入できないケースも増える
- 中国人投資家は、土地の所有権を持てない「定借」を敬遠する
- 半住・半投資の目的の方にはランニングコストの負担はネックになる
このように投資を検討する方々にも定借特有の色々な懸念点がそんざいます。
居住用で検討する方の懸念点
これはもう「リセール懸念」「ランニングコスト負担増」の二点に尽きるのではないでしょうか。
「価格が想定より高い」なんていう、そもそものネックも存在するかもしれませんが。
重要な点は、そこそこの戸数があるため「居住用」「セカンド」「投資」の3つの需要をバランスよく取り込めないと販売進捗が思ったように進まず、途中で息切れを起こしてしまう可能性がある点です。
本物件の販売開始時期は8月とまだまだ先なので、第1期住戸への要望状況を確認しつつ「どの住戸に、どんなお客様を取り込めているのか」を確認しつつ検討を進めることをお勧めいたします。
※様々なニーズをバランスよく取り込めていれば、第2期以降も順調な販売進捗が期待できます。
あとがき
さて、ここまでご覧いただきまして、ありがとうございました。また、次回の記事もお楽しみに!
なお、本記事に対するご質問やご感想はお気軽にコメント欄にご記入下さい♪
「Twitterでは、独自のデータ分析を生かし「大阪のタワマンに関する “唯一無二の情報配信” 」を行っているのでぜひフォローをお願いします☆」
データマンのTwitterはコチラ

スムラボ記事
- 京阪沿線再開発で街はどう変わる?大阪「枚方市」駅前の再開発、「夢洲」へ続く京阪中之島線延伸は?そして京都「三条」駅はどうなる?【kyoto1192】
- 大阪で<20棟以上>のタワマン建設ラッシュ時代が到来!?データマンが注目するタワマン建設計画BEST.3!
- 「シエリアタワー中之島」いよいよ3期販売開始!更に値上げも周辺相場と比較すると意外と安い部屋も!【すごろく】
- 【シエリアタワー中之島】4期1次販売開始!3期より値下げした部屋あり!ブリリアショックの影響か…急ぐ竣工前完売?!【すごろく】
- 【シエリアタワー中之島】最終期販売価格考察!周辺の新築・中古価格と比較すると割安?!完売直近!【すごろく】
- 【大阪】【来年販売開始の期待のタワマン】「シエリアタワー中之島」大阪屈指の人気エリア中之島の魅力と予想価格【すごろく】
- 「シエリアタワー中之島」定期借地物件でも大阪の新価格突入か?!【前編】【すごろく】
- シエリアタワー中之島の雑感【大阪タワー】
- 大阪カジノIR認定!! 29年開業目指す! 京都-大阪・夢洲(ゆめしま)をつなぐ最重要なエリアになりえるのか、大注目の京阪「中之島」駅へ、そして『シエリアタワー中之島』現地【kyoto1192】
- 「シエリアタワー中之島」魅力的な共用施設と課題が残る設備仕様…ズバリ買いか?【後編】【すごろく】
記事に出てきた物件の掲示板
- シエリアタワー中之島(検討スレ) | (住民スレ) | (まとめ) | (スムラボ)


































記事にコメントする