目次
パークタワー川口本町は川口駅東口徒歩6分に建設される28階建て、総戸数225戸で2026年11月下旬予定※に引き渡しが予定されています
※2025年8月以降契約住戸は2027年4月下旬予定



不動産
過去に3回の新築マンション売買で資産形成してきた私が解説します
【結論】
- 坪平均495万円、管理費修繕積立金も良心的
- 川口でNo.1のマンションにしようという売主側の意思を感じる
- 階数や面積帯、方角での価格差が大きく55Asタイプ 2LDK 55.57㎡ 南向き中住戸をおすすめ
- プラウドタワー川口クロスとの比較では資産価値は同等と判断
- ただし、タワーマンションが必ず値上りすると妄信して無理な資金計画を立てるのは避けてください
この記事を読むことで上記結論の理解が深まります
ぜひ最後までお読みください
物件概要

出典;パークタワー川口本町公式HP
- 所在地:埼玉県川口市本町4丁目326番(地番)
- 交通:京浜東北線川口駅徒歩6分
- 総戸数:225戸
- 敷地面積:4,753.85㎡
- 建物竣工:2026年8月中旬
- 売主:三井不動産レジデンシャル株式会社
- 施工会社:佐藤工業株式会社
- 駐車場:96台
- 駐輪場:424台
川口駅からの帰宅導線

川口キュポ・ラ

スーパーや書店など商業施設のほか、図書館や行政センターもあります
パークタワー川口本町までの道路

電柱地中化、歩道が広く自転車道も整備され洗練された雰囲気を感じます
物件外観

敷地入り口から植栽を感じながら存在感のあるエントランスホールに向かいます
飲食店がたくさん隣接しているような賑やかな環境ではなく、落ち着いた高級感があります
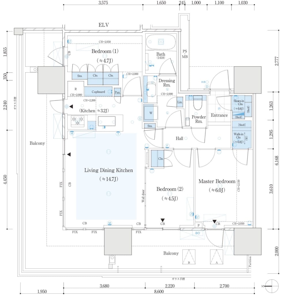
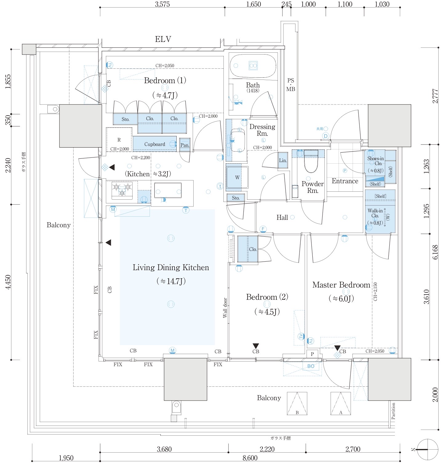
販売住戸の間取りと価格
2025年11月時点での先着順価格および第2期第3次予定価格表を入手しましたので共有します予定価格のたとえば”6,200万円台”の下2桁は50万円とし6,250万円で坪単価を算出しています
間取りは柱の食い込みがほぼなく有効面積が多い印象でした
41Awタイプ 1LDK 41.75㎡ 西向き中住戸

- 17階 6,200万円台(坪495万円)
55Asタイプ 2LDK 55.57㎡ 南向き中住戸

- 11階 8,298万円(坪494万円)※先着順
眺望の抜け感もよく投資目線、実需目線としてもおすすめです
64Awタイプ 3LDK 64.76㎡ 西向き中住戸

- 9階 9,100万円台(坪467万円)
- 3階 8,900万円台(坪457万円)
67Awnタイプ 3LDK 67.37㎡ 北西向き角住戸

- 7階 9,500万円台(坪469万円)
73Aswタイプ 3LDK 73.73㎡ 南西向き角住戸

- 15階 12,088万円(坪542万円)※先着順
79Bwタイプ 3LDK 79.96㎡ 西向き中住戸

- 28階 14,000万円台(坪581万円)
管理費修繕積立金は良心的
- 管理費 26,000円
- 修繕積立金 7,000円
- 合計 33,000円
販売中のタワーマンションとしては良心的です
管理費については前回記事で話題にしましたのでよろしければご覧ください
川口駅中古物件との比較
プラウドタワー川口クロス川口駅東口徒歩4分、2023年竣工のプラウドタワー川口クロスと比較してみましょう
直近では坪460万円ほどで動いています
- 駅距離重視、少し騒がしくても飲食店隣接がいい ➡︎ プラウドタワー川口クロス
- 落ち着いた環境がいい、新築の方がいい ➡︎ パークタワー川口本町
将来の売却価格としてはどちらも同じ程度に落ち着くと予想していますので、ご自身の生活環境、好みで選んでしまってOKでしょう
上野東京ライン停車は将来的な資産価値に寄与する

川口駅が上野東京ラインの停車駅になります
鉄道利便性の向上が周辺不動産価格の上昇に寄与するのは、武蔵小杉や浦和、南流山などの例からも間違いのないところです
川口も京浜東北線の混雑緩和とともに都心方面の所要時間が短縮します
ただし2035年以降からの計画でありすぐに恩恵は受けられませんから現段階ではメリットと感じにくいでしょう
将来的な伸びしろという位置付けですね
総評 投資目線からの私の見解

公式HPの周辺案内図に”プラウドタワー川口クロス”を明記しているのは売主である三井不動産レジデンシャルの意思を感じました
川口駅のマンションでNo.1はどこか?という議論になったとき、ライバルとなるプラウドタワー川口クロスを高く評価し認めていると同時に、パークタワー川口本町をよりよいマンションにしたい
価格は高いが、その期待に応えられるマンションにしよう、駅距離で負けるプラウドタワー川口クロスに勝てるような建物、植栽設計にしよう
同じマンションデベロッパーの大手として野村不動産を認めつつも負けたくない
私のような顧客目線からもそう受けとりました本物件も含めて埼玉県内でもタワーマンションの高騰が進んでいます
都心や湾岸の新築マンションと違い、投資対象として内外の投資家が購入に走り、高倍率の抽選になっているわけではありません
販売中のURAWA THE TOWERは坪700万円、これから販売が開始される蕨駅前のW CITY TOWERSは坪500万円以上との予想もあります
新築マンション、とくにタワーマンションで顕著になっておりこれについて考察していきます売主側は完売できるなら価格を上げてくる
買えば値上りする、何倍もの抽選会になるような物件を販売したら売主側はどう考えるでしょうか?

当然こうなります
営利企業である以上なるべく高く売って完売すればいい
竣工後まで販売が続いても構わない
2024年以降の新築マンション価格の加速度的な伸びは
どのマンションデベロッパーもそのような方針に転換した表れに感じます

出典;国土交通省公式HP
くれぐれも、タワーマンションなら将来値上りすると妄信して無理な住宅ローンを組むのは避けてください値上りしなかった、または値下りすることも想定して、月々の支払いと、ご自身やご家族の生活費や新NISAなどを利用した株式投資との付き合いかたも合わせて資産計画を立ててください
“資産形成の成否は家と車と投資の取り扱いにかかっています”
そのなかでもパークタワー川口本町は、間取りや階数によっては、まだ良心的な価格設定になっていると判断しました
私の情報発信について
私は新築マンションの購入と売却を繰り返して資産形成をしてきた経験がありますから- 賃貸と持ち家なら持ち家がいい
- 戸建てとマンションなら絶対マンションだ
投資とは関係なく自分が住む場所はだれでもひとつ必要です
- 割安な戸建てを購入して月々の支出を減らしたほうがいい方もいます
- 会社からの家賃補助が手厚かったり、個人事業主として経費にできたりと賃貸に向く方もいます
私も高くなりすぎた新築マンションのニュースを目にすると複雑な気持ちになります
不動産
この記事が皆さまのご参考になれば幸いです
最後までお読みいただきありがとうございました
[スムラボ編集部より] 本ブログ記事の情報は投稿日時点のものです。現在の販売情報はLifull Homesをご参照下さい。
スムラボ記事
この記事を見ている人はこちらも見ています
スムログ記事
記事に出てきた物件の掲示板
- プラウドタワー川口クロス(検討スレ) | (住民スレ) | (まとめ) | (スムラボ) | (スムログ) | (スムレビ)
- W CITY TOWERS(検討スレ) | (まとめ) | (スムラボ)
- URAWA THE TOWER(検討スレ) | (住民スレ) | (まとめ) | (スムラボ) | (スムログ)
- パークタワー川口本町(検討スレ) | (住民スレ) | (まとめ) | (スムラボ) | (スムログ)
























記事にコメントする