こんにちは!なごぐらんです。
名古屋もいつの間にか寒いくらいの冬になりましたね!10月くらいまで暑い暑いと言っていた気がするのですが、いったい秋はどこに行ってしまったのでしょうか・・・?去年も同じことを思った気がするので、これからの日本は春夏冬の三季になってしまうんでしょうか。寒暖差やインフルエンザなどもはやり始めているようですので、皆さんも体調最優先で冬を乗り越えていきましょう!わたしは引き続き社畜モード全開で、全くそれどころではありませんが。。。
さて今回は『グランドメゾン栄 The Tower』の後編についての記事となります!前編から1ヶ月ほど経過しましたが、この間にアンダー1期の販売がありましたね!それについてもこの後の本編で触れていきますが、やはり名古屋(の富裕層)においてグランドメゾンの評価が高いことがよく分かる結果だったなあと思います。引き続きアンダー販売中で一般公開はされていない状態ですので、ベラベラと全部書くわけにはいかないのと、文字情報が大半になりますが予めご了承ください。それではいきましょう!
前編の内容
- 物件概要: 『グランドメゾン栄 The Tower』は、地上30階建タワーマンション。
総戸数126戸(1LDK:19戸、2LDK:71戸、 3LDK:36戸)。低層階(3-13F)は1-2LDK中心、 高層階(14-30F)は2-3LDK中心で、 2LDKが中心。売主は積水ハウス、設計はIAO竹田設計、施工は鍛冶田工務店で、完成予定は2027年12月末と見られる。 - 立地・環境:伏見駅徒歩4分、栄駅8分でアクセス良好。
栄2丁目の広小路通近く、白川公園隣接で自然豊かだが、 北東側に雑居ビルなどの嫌悪施設があるが、タワーパーキングを配置して緩和されている。栄・伏見エリアは利便性高く、ハザードリスク低。 治安は栄二丁目は都心の中では少ない方だが、近接する住吉繁華街は犯罪件数が多いことには留意が必要。 - 外観・共用部:シャープなガラスウォールと曲線基壇部、ルーバーが特徴。
角地でないが植栽緑化で敷地活用。内廊下、各階ゴミ置き場、 エレベーター3基(高層優先2基)、駐車場50%確保で充実。
販売スケジュール
冒頭に書いた通り11月下旬にアンダー1期の販売が行われ、現在はそこで票が入らなかった住戸を対象にアンダー先着順販売が実施されている状況です。アンダー1期については総戸数のおよそ3分の1に相当する40戸ほどが分譲されたようで、対象フロアは前編で述べた18階以上の住戸となっています。抽選になった部屋も多かったようで、1番人気のところで8倍、平均倍率もだいたい2倍ほどと人づてに聞きましたので名古屋では例外とも言えるくらいの人気ぶりです。とはいえグランドメゾンのタワーマンションという観点では前作の『グランドメゾンThe池下ガーデンタワー』においても抽選はありましたので、抽選自体はそこまで驚くような内容でもないと個人的には感じました。購入者も県外よりは県内の方が中心だったということで、個人的には名古屋の富裕層に積水ハウスのグランドメゾンシリーズが刺さっているという理解で、これがきっかけで他の物件も抽選だー!!という雰囲気にはならないと考えています。とはいえ最近の名古屋は福岡と似た雰囲気を感じているので、積水をプライスリーダーとして相場はゆるやかに上昇していくでしょう。次期については2026年春頃の予定ですが、こちらもまだ14階以上の壁ドンではない条件のいい住戸が分譲対象で引き続きアンダー販売のみとなる見込みです。後述しますがリセールバリューが最も高くなるのはこの14~19階の住戸ではと考えていますので、資産価値が高い物件を求められている方は、どうにかして次期には参加したいところです。ちなみに今時点ではまだモデルルームがありませんが、次期にはおそらくできているはずですので、設備仕様のイメージも次は持てるようになるかと思います!一般販売はまだまだ先かと思いますので、13階以下などは別弾として記事を書く予定です!
専有部
専有部の仕様についても四種の神器チェックからいきたいのですが、現時点では設備仕様がよくわかっておりません!!現時点では概要レベルで記載していきたいと思います。(20階以上と19階以下などフロアごとで仕様が分かれているようですが・・・)専有部 四種の神器
ディスポーザー :〇
トイレ :〇~◎(手洗いカウンターあり、その他は不明)
キッチン・洗面台天板 :?
設備仕様 :〇~◎(床暖房は全タイプLDのみ、20階以上は天カセエアコン)
グランドメゾンですので洗面台天板は御影石以上と思われ仕様は高いものと考えられますが、個人的に気になったことのは設備仕様の削り方です。前作の『グランドメゾンThe池下ガーデンタワー』でもシャワーヘッドなど一部でコストカットが見えていたので少し気になっていたところではあるのですが床暖房がLDKのみで洋室はなしになったり、19階以上は天カセエアコンがなかったり、低層プランは浴室などもう少し削られたりしています。近くの御園座タワーもそこまでデフォルトの仕様が高くないのもありコンセプトとの兼ね合いだとは思いますが、個人的には名古屋における積水のアイデンティティが1つ消えてしまわないかなあと。次に出てくる錦2丁目のタワーについては本物件よりも高仕様になる予定と聞いており心配はしてないのですが、その分価格はもっと高くなるのでどちらを選択するかというところでしょうか・・・個人的には千種駅前計画については中層階以下はグロスを抑えるために設備仕様は結構削ってくるのではないかと思いました。(いくら190mで東海エリア最高層とはいえ千種ですよ…平均坪750万とかで450戸も売れるとはちょっと…)
天井高については基本的には2,600mmで、20階・29階・30階の3フロアのも2,800mmとなっています。『グランドメゾンThe池下ガーデンタワー』は基本天井高が2,550mm(プレミアムフロアは除く)でしたが、しっかりと2,600mmになっているところは好印象です。天井高などはどう頑張ってもリフォームなどで対応できないですので・・・ちなみに仕様が高くなる方の錦二丁目のタワーは噂では2,700mmと聞いていますので、さらに高級路線に振ってくることは容易に想像できるでしょう!アンダー販売に参加された方でその他の設備仕様の情報をお持ちの方がいればコメントやXのDMなどで教えていただけると大変ありがたいです!
間取り・価格
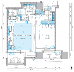
アンダー販売された住戸の中で個人的に印象的だった間取りを2つ紹介したいと思います。- K1タイプ 1LDK 63.92㎡(画像はクリックすると拡大できます)
1LDKは低層1プラン、高層1プラン(厳密には2プラン)ですが、
間取りとしてはPP分離かつ玄関クランク構造と、
価格についてはざっくり1億円(坪500万程度)ということで、ついに名古屋でも1億LDK時代の到来です・・・というか1億の部屋で駐車場優先権もらえないなんてと正直思ってしまいました。当初の想定価格ではもう少し高く設定されており「これは売れないだろう、仮に売れてもリセールはやばいのでは」と思っていましたが、流石にここは価格が見直されて出てきました。想定価格と比較すると広い3LDKの間取りなどはほとんどそのまま予定価格になっており、K1タイプのような狭いタイプは少し下げて出してきたような印象です。駐車場はないとはいえ、高層フロアで坪500なら結構ありなのではと思いましたが、グロスが高いので単身で手が届く人も少ない気がします。
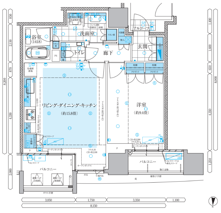
- Hタイプ 2LDK 79.78㎡(画像はクリックすると拡大できます)
こちらは14~19階の中層階のみのプランで、西向き2LDKの角住戸です。アンダー1期販売で最高倍率の8倍がついたのがこちらの間取りです!積水の値付けがかなりミスプライス寄りになっており、坪単価ベースで割安に移ったことが要因と思われます。駐車場優先権がついている中で1億前半で売り出しされたと推定されますので坪単価も500万円台とかなりお得だったかと思います。積水は全体の値付けは妥当なことが多いものの間取り単位で値付けを間違えることが多いイメージで、『グランドメゾンThe池下ガーデンタワー』もプレミアムフロアで特にやらかしていた印象です。購入側としてはラッキー!!という感じですが、名古屋の皆さんは一瞬でそういうのを見抜くため今回のような抽選になりがちです。抽選で夢を見るか、割安ではないが確実に手に入れるか・・・名古屋でも積水を中心に部屋選択にストラテジー要素が必要になってきたなと感じます。ちなみに次期でおそらく14~17階の部屋が開放されるかと思いますが、値上げしなければ再び抽選になるのは間違いなさそうです。間違いなさそうなんですが駐車場の残り台数的に、どこかのフロアから駐車場優先権がなくなるのではないか?と思われます。駐車場を必須とされている方は、どこまで優先権がついてくるかはしっかりと確認した方がいいでしょう!
さて間取りについてですが、こちらも洋室1と2がPP分離されておりプライバシー性の高い間取りとなっています。そして何より14.2mの驚異的なワイドスパンとなっています!!こちらも柱が外に出ていない影響で、洋室1と2については下がり天井がかなり目立つなあという印象です。あとは洋室2で開き戸とクローゼットの扉が重なっていたり、トイレのドアと洋室2のドアの位置も気になるところです。LDKについては20階より下ですので天カセエアコンではなく通常の壁掛けエアコンとなっており、引き渡し時に設置された状態となっています。角住戸ですので本物件の特徴であるラウンドコーナがあり、LDKについてはかなり抜け感を感じられるのではないかと思います。こういうところに住みたいなあと、しみじみ感じさせられました。
まとめ
前編と後編の2つに分かれる形でしたが、最後までご覧いただきありがとうございました!『グランドメゾン栄 The Tower』は今回のアンダー1期は平均坪単価750~800程度と見られ、全体でも平均600~650と名古屋の新価格のファーストペンギンとなるような物件ですが、グロスは高いものの割高感はなくむしろHタイプのように割安に見える住戸もあります。タワーマンションの計画が名古屋では積水以外少なくなってきていますが、都心に住みたいというエリサラの方にはストライクの物件だと思いますので、気になる方はぜひご検討されてみてはいかがでしょうか!?積水の都心戦略は来年以降も続く予定で、本物件についてもまた別で記事を書く予定ですので楽しみにお待ちいただければ幸いです。それでは!スムラボ記事
- 【最速】価値観変わる―都心の新ランドマークタワー『グランドメゾン栄ザタワー』の考察【スムハジメ】
- 【前編】グランドメゾン栄 The Towerの考察(第1弾)【なごぐらん】
- 【番外編②】マンクラ必見‼「新築マンション」の裏側(価格表・物件概要編)【スムハジメ】



-300x184.jpg)
-300x289.png)
-300x158.jpg)


-300x200.jpg)
-1-300x200.png)
-300x200.jpg)












記事にコメントする