明けましておめでとうございます!
本年もみなさまのお役に立てる記事を書けるよう頑張りますので、よろしくお願いいたします!
さて、新年一発目の物件はこちら!【ルネグラン上石神井】をご紹介します!
本件は西武新宿線の急行停車駅である上石神井駅徒歩5分に誕生する大規模低層マンションです!
低層マンションと言えば、静かな住環境が故に駅遠な物件も多いですが、本件は駅徒歩5分ながらも第一種低層住居地域が広がる稀有な物件です。
西武新宿線沿線の高架化についても説明しておりますので、ぜひ最後までお読みください!
それではどうぞ!
ルネグラン上石神井!
— むさしのマンション (@mansion634no) January 3, 2026
駅近ながらも7500 m2超の規模は圧巻。
小・中学校もすぐ隣で良い場所ですね〜! pic.twitter.com/T2ZQblAMtC
物件概要
所在地:東京都練馬区上石神井四丁目610番28他(地番)交通:西武新宿線「上石神井」駅徒歩5分
総戸数:106戸(販売対象戸数105戸)
敷地面積:7688.88㎡
建築面積:3,184.19㎡
建築延床面積:8857.98㎡
用途地域:第一種低層住居専用地域
竣工時期:2026年8月(予定)
入居時期:2026年9月(予定)
売主:総合地所株式会社
管理会社:株式会社長谷工コミュニティ
施工会社:株式会社長谷工コーポレーション
設計:株式会社長谷工コーポレーション エンジニアリング事業部
駐車場:43台/ 20,000円~22,000円(月額)
自転車置場:サイクルポート106区画/600円(月額)(別途レンタサイクル用平置き2台)
バイク置場:6台/3,000円(月額)
口コミ掲示板:ルネグラン上石神井ってどうですか
現地案内図はこちら
ルネは長谷工グループのデベロッパーである総合地所のブランドで、「ルネグラン」はその中でも最上級シリーズです。
現在、関東で分譲中のルネグランシリーズは本件のみですが、関西では、ルネグラン東灘森北町やルネグラン四天王寺夕陽ヶ丘など、いわゆる「邸宅地」の立地で採用されているシリーズです。それだけ本件の立地評価も高いということが伺えますね。
立地
アクセス
西武新宿線と言えば、地下鉄や他私鉄への乗り入れが無い独立路線ですね。上石神井駅は、急行、通勤急行、準急が停車する駅です。急行に乗れば高田馬場駅まで2駅約14分、西武新宿駅まで3駅約18分です。
高田馬場で山手線へ乗り換えれば、新宿駅まで23分、渋谷駅まで30分、東京駅まで37分です。高田馬場駅での西武線からJR線への乗り換え導線は比較的スムーズで、乗り換えストレスは少ないですね。
高田馬場駅では東京メトロ東西線にも乗り換えることができ、大手町駅まで30分です。
上石神井駅は、急行に乗ってしまえば高田馬場駅までスムーズにアクセスできるので、特に山手線を利用し通勤する方には便利な沿線ですね。
現地写真
こちらの敷地配置図と併せてご覧ください!接道は東と北の一部です。▼南側
現地南側には西武新宿線の線路に面しています。上石神井駅は西武新宿線の中でも主要駅であり、両方面合わせると、平日日中時は約1~6分おき、休日日中時は約1~4分おきに電車が発着します。かなり頻繁ですね。
緑のフェンスで囲われている敷地は西武新宿線の連続立体交差事業(高架化)において、事業者が用地取得する部分です。この高架化事業については後ほど詳しくご説明します。

南側の道路です。線路からフェンス内までの敷地を利用し、高架化事業が進められます。撮影は休日の日中ですが、ほとんど人通り、車通りはありません。

こちらは南側から撮影をした東側の道路です。直線の見通しが良く、3方接道している道路のうち最も広い道路です。本件側には車道と分離された歩道もあります。

西隣地にはインドアテニススクールがあります。そして本件はもともとテニスコートがありました。

▼西側
西側は道路に接道していませんが、このように小さな公園があります。第一種低層住居専用地域のため周辺は3階までのマンションや戸建て住宅街となっており、駅徒歩5分とは思えない静かな住環境です。

▼北側北側は敷地配置図を見るとよく分かりますが、敷地の一部だけ接道しており、それ以外はアパートや駐車場に囲まれています。

北側の接道です。道幅は車一台が通れるほどです。ほとんど人通りや車通りはありませんでした。左手(北側)は区立石神井中学校(徒歩2分)です。マンションの目と鼻の先ですね!

▼東側
こちらが東側の接道です。写真右手(東側)は区立石神井小学校(徒歩3分)です。写真左手(西側)は先ほどの区立石神井中学校です。中学校も小学校もとても近く、通学路に関しても、線路や車通りの多い道なども渡る必要は無いため、安心ですね!

東側の道路は道幅が広く、車通りが若干多く感じられました。
こちらは工事中の本件です。建設工事車両が出入りするメインゲートとなっている部分は、竣工後は車両出入り口となります。交通量も少なく、車の出入りがしやすいです。

駅までのアクセス方法
本件から駅までは、一度、赤丸で囲っている踏切を渡る必要があります。本件は線路の北側に位置するので、駅の北口が近いのかと思いきや、北口へのルートはかなり遠回りになるため、こちらのルートが最も早いです。本件前の踏切です。駅まで徒歩5分ではありますが、実際は踏切を待つことも想定されるため、多めに時間を見ておく必要がありますね。
こちらは駅までの道のりですが、途中はかなり細い道になっています。住宅が密集していますね。
上石神井駅前のこちらの踏切(上石神井第一号踏切)は開かずの踏切なので、特に通勤ラッシュ時に使用することはオススメしません…。
西武新宿線 高架化について
西武新宿線は開業からかなり時間が経過していますが、沿線に住宅街が貼り付いていることや、道が細いことなど様々な要因となり、他電鉄・沿線と比較すると立体化工事が進んでおらず、いまだに踏切りが大量に存在しています。現在、沼袋駅〜中井駅〜野方駅までの区間は、地下化による「連続立体交差事業」の工事が進められています。
▼こちらは開かずの踏切ベスト3です。これらの踏切は通勤ラッシュ時は1時間のうち40分も閉まっていると公式も申しています。ヤバすぎ。
上石神井第一号踏切(以下、激ヤバ踏切)は、踏切を通過する交通量(自動車・自転車・歩行者)が多く、更に路線バスも通過します。
踏切の南にもバス停が、北にもターミナル形状のバス停があり、ただでさえバスにより混雑する道路なのにもかかわらず、踏切も開かず、まさにカオスの状態となっていることが多々。
▼今後計画されている事業区間は、井荻駅〜西武柳沢駅までの区間です。これにより上石神井駅は高架化され、激ヤバ踏切りも解消予定です。2024年に着工していますが、附帯工事も合わせると、工事完了は2039年の予定です。しばらくは激ヤバ踏切とお付き合いが必要ですね・・・。
▼こちらは側道として線路沿いの土地が買収される範囲です。側道は、高架化工事の際に一時的に仮線を敷設するために使用されます。
工事完了後は、高架化による日影の影響を考慮し住宅などは建てられず、駅までの安全なアクセスのために整備されます。簡単に言うと、事業のために提供し返ってこない敷地のことです。
▼赤丸で囲っている部分が本件です。現地写真でご説明した、緑フェンスで囲われている土地が用地買収の土地です。
▼余談ですが、上石神井駅の東側には巨大な車庫があり、こちらも縮小されます。
沿線ギリギリまで住宅が立ち並んでおり、用地買収に相当な期間を要しそうです。2039年に無事完了するのでしょうか・・・。高架化や駅前の整備完了が待ち遠しいですね!
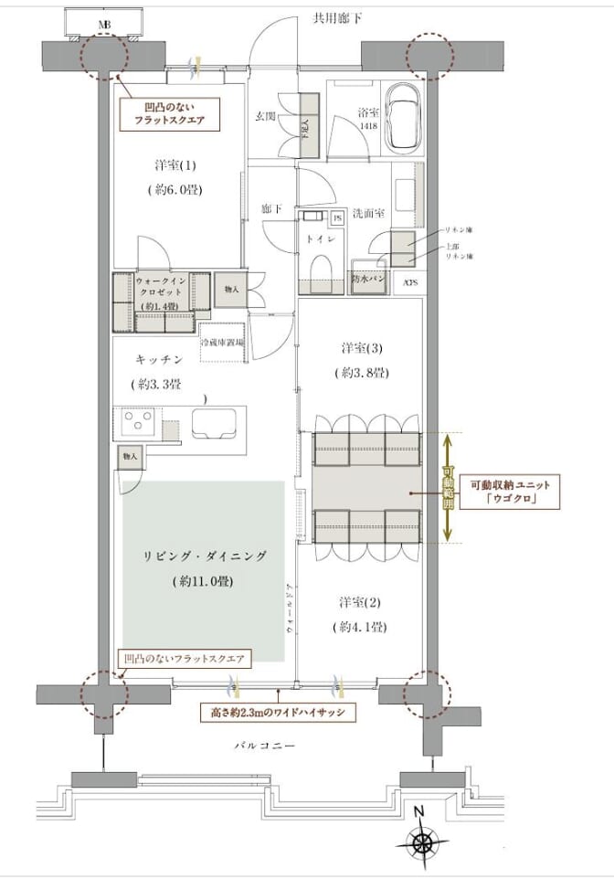
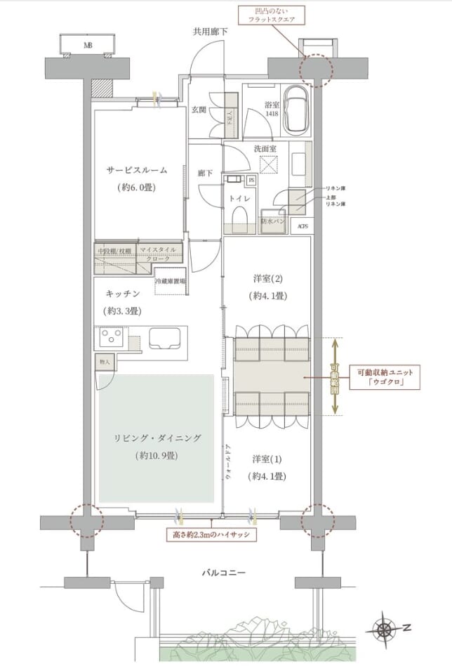
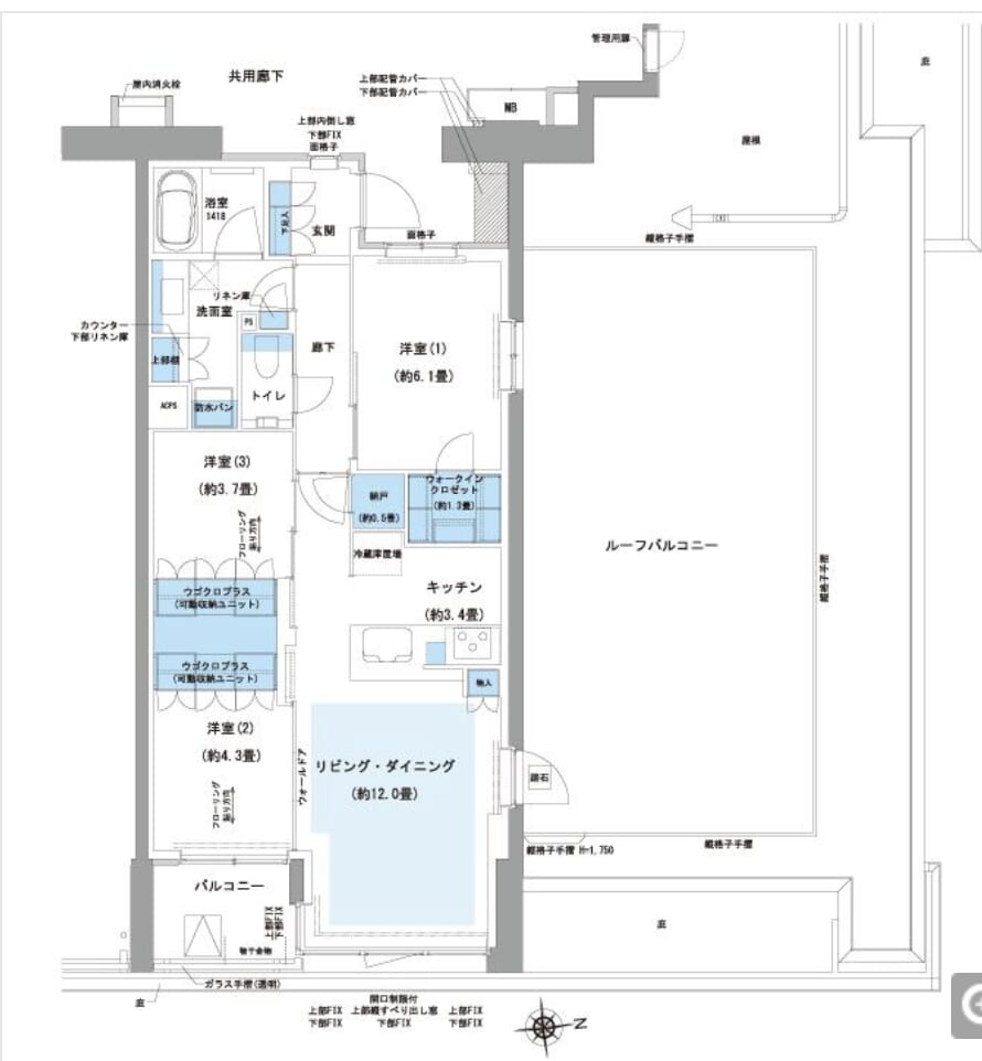
建物
外観ダークブラウンの重厚感と風格のあるルネの最上級シリーズを名乗るべくした外観です。最上部のガラスウォールや、2階・3階のガラス手摺りを組み合わせた凹凸のあるデザインは細部までのこだわりを感じさせます。
シックな外観に植栽のグリーンが鮮やかな差し色になっていますね!コーナーサッシもかっこいいです!
高さ
本件は第一種低層住居専用地域に存在し、一般的には地上3階までしか建てることができないエリアです。
多くの一低層エリアの低層マンションは1階を地下住戸、地上3階の合計4階建てにすることが多いですが、本件は建築基準法55条2項の緩和(敷地が広いことや前面道路が広いことなどの条件で、斜線制限が緩和されること)を利用し、高さ12m、4階建てのマンションとなっています。
1階が地下住戸ではないことや、周辺にはない4階建てというところがポイントです!!
共用部
「都市に1000㎡の森を」というキャッチフレーズのもと、テニスコート5面分に相当する広大な中庭が計画されています。
これだけ植栽・離隔距離を設けた中庭なので、中庭ビューはかなり条件が良い棟になりますね。
駐車場・駐輪場
駐車場
全て平置き駐車場で設置率43%です。平置きなので全てハイルーフ対応です!駐車場の出入り口には専用リモコンで操作できるシャッターゲートがついています。
駐輪場
全住戸にサイクルポートが割り当てられています。サイクルポート内には何台でも止められるので、子供用自転車や、ラックに乗せるのが大変なチャイルドシート付き電動自転車も楽々停められるのはとても良いですね!
設備仕様
<キッチン>
・ディスポーザー
・フィオレストーン天板
<風呂・洗面・トイレ>
・一部ツーボウルタイプ(E、Epタイプ)
・トイレ手洗いカウンター
<構造>
・ハイサッシ2,300mm超
・アウトポール設計
・フラットスラブ二重床
室内空間に凹凸が無い構造をウリにしています!
<その他>
・ハンズフリーキー
・家族の成長や構成に合わせて動くクローゼット「UGOCLO(ウゴクロ)」 長谷工がイチオシしている設備ですね!
UGOCLO(ウゴクロ)はただのウォークインクローゼットではなく、クローゼット自体を間仕切りのように動かせる設備です。間仕切りだけでなく、収納のカタチも部屋の用途に併せて向きや組み合わせを変えることができます。
このあたりは使い勝手に賛否両論ある部分なので、モデルルームで実際に使い勝手を確認したいところです。
価格
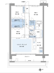
▼H1東向き3階 2LDK+サービスルーム 68.4㎡ 8,998万円
坪単価 434万
▼H1g
東向き1階 2LDK+サービスルーム 68.4㎡ 8,698万円
坪単価 419万
▼B5
南向き3階 3LDK 67.55㎡ 9,298万円
坪単価 454万
▼E
東向き3階 3LDK 90.09㎡ 13,298万円
坪単価 487万
▼H2pr
東向き4階 3LDK 72.27㎡ 10,498万円
坪単価 479万
▼N1
南向き3階 3LDK 68.97㎡ 9,198万円
坪単価 440万
▼N1
南向き2階 4LDK 84.20㎡ 12,998万円
坪単価 509万
平均坪単価 約460万
周辺事例
新築マンション
【ヴェレーナ上石神井】(完売済)所在地:東京都練馬区上石神井1丁目
駅距離:西武新宿線「上石神井」駅徒歩5分
築年月:2024年1月
規模:42戸
新築時販売価格:坪単価約386万
【シティテラス善福寺公園】
所在地:東京都練馬区関町南二丁目
駅距離:西武新宿線「上石神井」駅徒歩11分
築年月:2023年9月
規模:170戸
新築販売価格:坪単価約355万※現在は410万程度で分譲中
中古マンション
【ブリリアシティ石神井台】所在地:東京都練馬区石神井台4丁目
駅距離:西武新宿線「上石神井」駅徒歩11分
築年月:2017年6月(築8年)
・6,900万 71.46㎡ 坪単価319万(2025年12月成約)
・6,980万 71.91㎡ 坪単価320万(2025年12月成約)
・6,780万 70.01㎡ 坪単価320万(2025年9月成約)
【ブリリアシティ石神井公園アトラス】ブリリアシティ石神井公園アトラス!
— むさしのマンション (@mansion634no) January 3, 2026
東京建物のCMでもお馴染み、大規模建て替えのフラッグシップマンションですね!
改めてロケーション、規模感とも素晴らしく、1階まいばすも売り場面積が広く有難い。
駅距離のある大規模マンションの一つの正解ではないでしょうか✨ pic.twitter.com/vPGs0tODaG
所在地:東京都上石神井3丁目
駅距離:西武新宿線「上石神井」駅徒歩12分
築年月:2023年6月(築2年)
・6,980万 57.41㎡ 坪単価373万(2025年11月成約)
・8,150万 82.06㎡ 坪単価328万(2025年4月成約)
・6,850万 65.40㎡ 坪単価346万(2025年3月成約)
【ザ・パークハウス上石神井レジデンス】ザ・パークハウス上石神井レジデンス!
— むさしのマンション (@mansion634no) January 3, 2026
地所レジの低層マンションにハズレなし! pic.twitter.com/OrtvK7QACJ
所在地:東京都練馬区上石神井4丁目
駅距離:西武新宿線「上石神井」駅徒歩11分
築年月:2015年1月(築11年)
・5,380万 72.22㎡ 坪単価246万(2024年11月成約)
・5,650万 72.22㎡ 坪単価258万(2023年12月成約)
・5,550万 76.55㎡ 坪単価239万(2023年11月成約)
このように、「上石神井」✖️「駅近」のマンションってほとんど無いんです。駅周辺は商店街になっており、飲食店やスーパーなど店舗が立ち並び、マンションを建てることができる条件の揃った土地はほとんどありません。本件から駅の間を歩くだけでも、道幅は狭く、開発が難しい場所が多い印象を受けます。そんな中で、ヴェレーナ上石神井は駅の南西側にあり、エリアは異なるものの、同じ駅距離で坪386万です。2024年竣工、すでに完売していますが、それと比較すると本件はかなり高くなっています。
駅距離は遠くなるものの、大規模建替えの代表とも言えるブリリアシティ石神井公園アトラスは、新築時は坪280万程度でしたが現在は大きく価格が上昇しています。駅遠物件でありながらも、しっかりと評価されて値上がりしています。
総括
周辺事例に目を向けると上石神井の相場を大きく上回る水準であるわけですが、第一期の売れ行きは好調でした。理由としては、やはり代替の効く物件がないことが大きいでしょう。
上石神井駅徒歩5分の立地で、約7,500m2超の広大な敷地という恵まれた土地があること自体が大変貴重です。
周辺は細い道路や区画の狭い土地が多く、本件が唯一無二の立地であると言えます。
マンションの商品力としても、設備仕様は十分ですし、何よりこの駅距離で駐車場設置率43%を全て平置きで確保しているのは素晴らしいですね!また、全住戸にサイクルポートが完備されている点も非常にありがたいです!
住環境をとってみると、駅周辺には飲食店やスーパー・小売店が多く、日常的に飲食や買い物が楽しめる住環境です。また、自然豊かな善福寺公園や石神井公園が近く、小中学校も目と鼻の先の距離にあるため、子育て環境も抜群ですね。
西武新宿線沿線及び、上石神井駅の生まれ変わりにはまだ時間を要しそうですが、この駅距離と充実した住環境を兼ね備えている立地ですので、永住目的で購入される方も多いのではないでしょうか。他と比較せず本件だけを目掛けて買いに来る方も多いのでしょう。
駅距離が呑めれば僕も大好きなブリリアシティ石神井公園アトラス!があるわけですが、圧倒的な駅距離の差があるので、上石神井駅の駅近かつ低層マンションが良い方にとって必然的に本件の優先順位が上がります。
高くても新築を選びたくなる商品力・絶妙な価格設定ですね。
この商品力で23区内、駅徒歩5分圏内であれば、他エリアと比較しても高すぎない水準なので、エリアを変えようとはならないですしね。上石神井駅は西武新宿線沿線の中でも都心部寄りの急行停車駅であり、住環境と駅力のバランスの取れた数少ない駅でもあります。
マクロな視点で西武新宿線沿線を見ても、ミクロな視点で上石神井駅エリアを見ても唯一無二の物件であり、本件の立地を気に入るのであれば迷わず買っておきたい物件ですね!
今回の記事はここまでです。
今後もむさしの的オススメできる最新のマンション情報を定期的に発信していきます!また、昨年11月より開始したプレミアム記事では、むさしのイチオシの狙い目住戸、むさしのマンションのちょっとプライベートなお話など、よりディープに楽しんでいただける記事も執筆していますので、よろしければ覗いてみてくださいね。
引き続き、個別相談も承っています。
それでは、本日も最後までお付き合いいただきありがとうございました!また次回の記事でお会いしましょう!
[スムラボ編集部より] 本ブログ記事の情報は投稿日時点のものです。現在の販売情報は物件公式サイトをご参照下さい。
この記事を見ている人はこちらも見ています
- 2026年販売予定のおすすめマンション【yossy】
- 駅徒歩1分×総戸数396戸!大規模分譲マンション『クレストプライムシティ南砂』【SUGAR】
- バウス新狭山の価格は?シニア世帯のマンション出口戦略としてもおすすめ【キウイ不動産】
- 【プレミアム記事】【パークタワー大阪天満橋】アンダー価格考察!眺望最高なタワマンはぶっちゃけ買いか?【すごろく】
- 2025年の記事PVランキング【むさしのマンション】












































記事にコメントする