いつも記事をご覧いただき大変ありがとうございます!
今月も注目の新着物件のファーストインプレッション、価格予想をしていきます!
最後までご覧いただけますと幸いです。
それではどうぞ!
(仮称)クリオ立川プロジェクト
新発表!クリオ立川プロジェクト!
— むさしのマンション (@mansion634no) February 21, 2026
<ポイント>
・立川駅北口徒歩7分、昭和記念公園隣接の希少立地!戸数も105戸とそれなりに規模感もあり。
・66m2〜133m2と広専有中心の間取り。76m2の間取りもいいですね!
立川南口は供給が多くなっていますが、北口は定借ブリリアを除き久しぶりの新築ですね!… pic.twitter.com/4KKTvsvWwV
物件概要
所在地:東京都立川市曙町一丁目14番13、他(地番)交通:JR中央本線・南武線・青梅線・五日市線「立川」駅徒歩7分、多摩都市モノレール「立川北」駅徒歩6分
規模:鉄筋コンクリート造・地上11階、105戸(住戸103戸、事業協力者住戸1戸、管理事務室1戸)
面積:2,970.76m2(登記簿)、3,466.66m2(実測)、3,388.99m2(建築確認対象敷地面積)
竣工時期:2029年3月下旬
入居時期:2029年3月下旬
売主:明和地所株式会社
管理会社:明和地所コミュニティ株式会社 本店営業部
施工会社:未定
駐車場:敷地内に36台設置(平置式台5、機械式30台、車いす使用者優先契約駐車場1台)<月額使用料/未定>、他に一時停車スペース1台
バイク置き場:建物内に10台設置
駐輪場(自転車置場):建物内に200台設置<月額使用料/未定>
掲示板:(仮称)クリオ立川プロジェクトってどうですか
地図はこちらです。
注目ポイント
その1:立地立川駅北口徒歩7分、昭和記念公園隣接と希少な立地です!
立川駅周辺は成熟した街になっているため、徒歩10分圏内に新築が出ること自体が珍しいです。駅の南側は昔からの繁華街、北側は元基地であった広大な土地を再開発して整備されてきたという街の構造をしています。
現在、定借のブリリア立川が建設中ではありますが、立川駅北口では、近年新築分譲マンションの供給がほとんど見られません。その背景には、元基地跡地の一部を取得した立飛グループの存在があります。
立飛グループは広大な所有地を活かし、GREEN SPRINGS、SORANO HOTEL、ららぽーと立川立飛といった商業・文化施設を中心に開発を進めてきました。まとまった土地を長期視点で活用できる体制があるからこそ、北口は「住」よりも「商」を軸とした街づくりが進んでいるといえるでしょう。
そんな中で、繰り返しになりますが、立川駅北口徒歩7分、昭和記念公園隣接は大変貴重な立地です。総戸数104戸とそれなりの規模があり、外観や共用部への期待も高まります!
その2:間取り
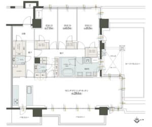
66㎡~133㎡と広専有中心の間取りを用意してくれています。
▼最上階はパティオ(中庭のようなもの)が付いた広々としたルーフバルコニーがあります!北側には昭和記念公園も見えることでしょう!
E-Yタイプ 東向き 133.02㎡ 3LDK
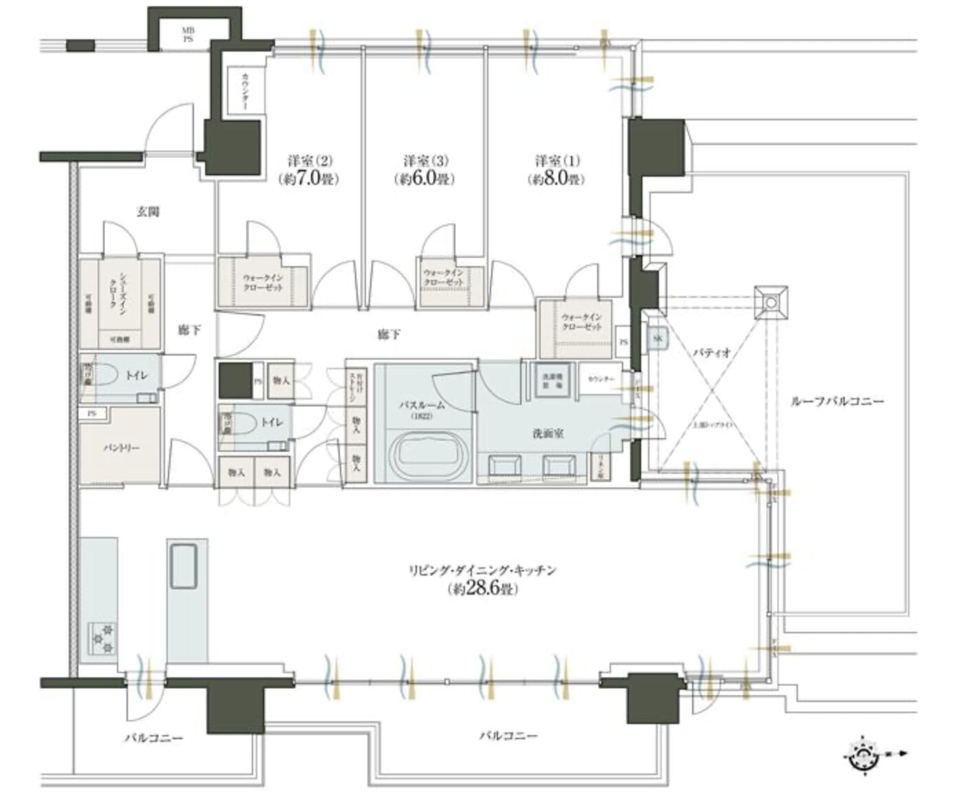
▼角部屋なので、全室開口部が設けられています。
S-Cタイプ 南向き角住戸 93.01㎡ 3LDK+S
サービスルームもカウントすると実質4部屋あります。うち2つはリビングインなのは少し残念ですが、どの部屋も収納・採光が確保されているのはいいですね!
▼E-Gタイプ 東向き 76.18㎡ 3LDK
この間取りほんといいですね…!特に注目すべき点として、①ワイドスパンでLDKが16.3畳と広々しています。洋室と繋げたらさらに開口部も広くなり良いですね〜。②専有部の面積に対して珍しく、洗面2ボウルです!③洗面室からLDK、洋室、ウォークインクローゼットへと3wayの行き来ができるようになっています。
着替えながらお化粧・ヘアセットが出来たり、リビングから洗面台のアクセス・風呂場からリビングを通らずにクローゼットに行ける点を両立できるのが素晴らしいですね!
空間効率が非常に良く、極限まで無駄が少ない間取りですね。
価格予想
平均坪単価500万〜520万程度と予想します。周辺新築物件はこちら
▼販売中
【ブリリア立川】★駅北側
ブリリア立川! pic.twitter.com/GApeU7MSuK
— むさしのマンション (@mansion634no) February 15, 2026
所在地:東京都立川市曙町二丁目201番3
アクセス:JR中央本線「立川」駅徒歩5分、JR南武線「立川」駅徒歩5分、多摩モノレール「立川北」駅徒歩5分
竣工予定:2027年10月中旬(予定)
引渡し予定:2027年11月下旬(予定)
規模:鉄筋コンクリート造地上17階建て、117戸 (一般分譲115戸、提携企業優先住戸2戸)
平均坪単価:約440万程度※定借物件
【グローベル立川プレミアム】※完売済み★駅北側
所在地:東京都立川市曙町1丁目24
アクセス:多摩モノレール 立川北駅 徒歩5分、JR中央本線 立川駅 徒歩6分
竣工予定:2026年3月
規模:鉄筋コンクリート造、11階建、73戸
平均坪単価:約410万程度
【プレシス立川パークフロント】☆駅南側
本日のお目当て、プレシス立川パークフロント!
— むさしのマンション (@mansion634no) February 15, 2026
南東向きのパークビュー最高すぎる! pic.twitter.com/O97yxDV42M
所在地:東京都立川市錦町3丁目3番1 他(地番)
アクセス:JR中央線・南武線・青梅線・五日市線「立川」駅徒歩9分、JR南武線「西国立」駅徒歩8分、多摩モノレール「立川南」駅徒歩9分
竣工:2026年2月12日(竣工済)
引渡し予定:2026年4月上旬(予定)
規模:鉄筋コンクリート造、地上10階建、45戸(他管理員室1戸)
平均坪単価:約450万程度
【アウラ立川】★駅北側
所在地:東京都立川市曙町2丁目225番2(地番)
アクセス:JR中央線・青梅線・五日市線・南武線「立川」駅徒歩6分、多摩都市モノレール「立川北」駅徒歩7分
竣工:2025年10月8日 竣工済み
引渡し予定:2025年11月下旬
規模:鉄筋コンクリート造 地上13階建、72戸
平均坪単価:約440万程度
【プレミスト立川】☆駅南側
プレミスト立川! pic.twitter.com/T8a4Ydfmlb
— むさしのマンション (@mansion634no) February 15, 2026
所在地:東京都立川市錦町1-370(地番)
アクセス:JR中央本線「立川」駅まで徒歩7分、JR南武線「立川」駅まで徒歩7分、多摩都市モノレール「立川南」駅まで徒歩8分
竣工:令和8年9月予定
引渡し予定:令和8年9月予定
規模:鉄筋コンクリート造地上15階建、116戸
平均坪単価:約410万程度
【ポレスター立川】☆駅南側
所在地:東京都立川市錦町一丁目72-18(地番)
アクセス:JR中央本線・南武線・青梅線・五日市線「立川」駅徒歩8分、多摩都市モノレール線「立川南」駅徒歩9分
竣工:2028年2月下旬
引渡し予定:2028年4月下旬
規模:鉄筋コンクリート造地上11階建、50戸
平均坪単価:約420万程度
周辺中古物件はこちら
【ザ・パークハウス立川】
ザ・パークハウス立川!
— むさしのマンション (@mansion634no) February 15, 2026
地所レジの重厚感好きすぎる…! pic.twitter.com/wMyrxTSiJS
所在地:東京都立川市曙町3丁目5-30
アクセス:JR南武線立川駅 徒歩8分、多摩モノレール立川北駅 徒歩10分
築年月:2018年5月(築7年)
規模:地上4階建て、84戸
成約相場:坪300万程度
【プラウドタワー立川】
立川ナンバーワン物件ですね。
所在地:東京都立川市曙町2丁目2-28
アクセス:多摩モノレール立川北駅 徒歩1分、JR南武線立川駅 徒歩2分
築年月:2016年7月(築9年)
規模:地下2階付32階建
成約相場:坪550万程度
まとめ
特に立川駅の南側には新築の出物が多くなっています。駅北側に立地するブリリア立川やアウラ立川の周辺は商業・オフィス色が強いですね。
本件も住宅街と言えるような環境ではなく、大衆演劇場が隣接したそこそこ賑わいのある立地ではありますが、昭和記念公園目の前というのが最大の売りですね。自然を身近に感じながらGREEN SPRINGSや駅前の商業施設、ららぽーとも近く、なんでも揃う素晴らしい立地ですね。
さてそんな立地に誕生するクリオ、価格は強気で出してくるでしょうね。最近のクリオはデザイン性・仕様が非常に高く、強気価格で出してくるのが特徴です。
公園が側という点で共通するプレシス立川パークフロント、こちらは現在の立川駅新築としては最高値の坪455万程度ですが、プレシスより高いことは間違いなく、駅前のプラウドタワー立川の成約相場坪550万には届かない程度の坪500〜520万程度と予想します。
まだまだ情報が少ないので続報が楽しみです!
プレミアムレジデンス立川
新発表!
— むさしのマンション (@mansion634no) February 13, 2026
【プレミアムレジデンス立川】
立川に尖った物件が新登場!!
<注目ポイント>
・立川駅バス9分、リバーフロントの立地に敷地面積8,000m2超え210戸の大規模レジデンス!
・サウナ付ゲストルーム、ランドリールーム、ワークルームなど充実した共用部。駐車場設置率も80%超🚗… pic.twitter.com/pPfWtKR5QZ
物件概要
所在地:東京都立川市富士見町六丁目313番1他(地番)交通:JR中央本線・南武線「立川」駅 バス約9分、バス停 徒歩4分
※所要時間は、時間帯及び道路状況により異なります。
または JR中央本線・南武線「立川」駅 徒歩28分
構造・規模:鉄筋コンクリート造 地上8階建、210戸(他に管理員室1戸・ゲストルーム1戸)
面積:8,029.14㎡(登記簿面積)、7,959.76㎡(実測・建築確認対象敷地面積)
建築面積:3,513.82㎡
建築延床面積:17,388.96㎡(エレベーターの昇降路の部分114.48㎡、共同住宅の共用廊下等の部分844.25㎡、自動車車庫等の部分514.14㎡、備蓄倉庫の部分5.04㎡の容積対象外面積を含む)
竣工時期:2028年1月(予定)
入居時期:2028年3月(予定)
売主:三信住建株式会社、中央日本土地建物株式会社、第一交通産業株式会社、旭化成ホームズ株式会社、大和地所レジデンス株式会社
管理会社:三信住建株式会社
施工会社:ファーストコーポレーション株式会社・三信住建株式会社 共同企業体
駐車場:敷地内に176台設置(機械式158台、平置式18台 ※内カーシェア1台・身障者用4台・来客用1台・専用駐車場2台を含む)(月額使用料:未定)
他:ごみ収集用1台・荷捌き用1台あり
自転車置場:敷地内に420台設置(月額使用料:未定)
バイク置き場:敷地内に平置式22台設置(月額使用料:未定)
掲示板:プレミアムレジデンス立川
地図はこちらです。
プレミアムシリーズとは事業主チャンピオンの三信住建のラグジュアリーブランドであり、中でもプレミアムレジデンスはその中でもフラッグシップ的な位置付けのブランドです。
立川駅からバス便と距離があるものの、大規模な敷地・戸数を活かし個性的な物件が出てきましたね!
注目ポイント
その1:リバービュー中心立川駅バス9分と駅距離はありますが、リバーフロントの立地に個性的な共用部やプランが光るワクワクする物件です!
バス便かーバスも混むし駅まで遠いんでしょ、と思う方もいらっしゃると思いますが、特別な交通手段も設けてくれています。
まず駅までのアクセス方法として、バスでは徒歩4分の富士見町7丁目のバス停から立川駅南口バス停まで約9分です。
平日6時半〜8時半の時間帯においてバスは24本あり、5分に1本の間隔で運行しています。
また有料ではありますが、入居者専用のシャトルタクシーもあり、7時台限定で5分に1本の間隔で運行しています。シャトルバスを運行させている物件はたまに目にしますが、シャトルタクシーは初耳でした。荷物が多い、天候が悪い、子どもがぐずってバス停まで連れて行けないなんて日には助かりますね。
さて、本件は南向き多摩川ビューの住戸が75%を占めています。実際には本件と多摩川との間に300mほどの緑地帯を挟むため、多摩川シーズンズほど目の前ということはありませんが、対岸の500m先まで建物がないので、開放感のある眺望であることは間違いありません。
その2:共用部・駐車場が充実
敷地面積8,000㎡超、210戸の大規模レジデンスですので、共用部や設備も充実しています。
サウナ付ゲストルーム、ランドリールーム、ワークルーム、パーティールームもあります。駐車場設置率80%で176台も設置されているのは良いですね!車所有していない方向けに居住者専用のカーシェアリングサービスもあります。
その3:個性的なプラン
①専用駐車場付住戸
敷地配置概念図を見ると、東向き1階に2邸、専用駐車場付住戸が確認できます。まさに戸建てとマンションの良いとこ取りすぎるプランですね!
専用駐車場付きマンションに一度住んでみたい。
— むさしのマンション (@mansion634no) February 14, 2026
戸建てでいいじゃん、と言われそうだが「分譲マンションなのに自宅前に車を停めてベランダから入れる特別感」がいい。 pic.twitter.com/pIABq0D6of
②スカイテラス付住戸
最上階の住戸にはスカイテラスがあり、より開放的な景色を楽しむことができます!贅沢〜!
③ウッドデッキ付住戸
オープンエアスペースと名付けられたフレキシブルウインドウでリビングダイニングと繋げることができたり、専用庭の一部としても利用できるウッドデッキスペースが設けられています。
④コンサバトリースペース
このプランも面白いですね!
2面ガラスに囲まれたコンサバトリースペースというのを一部住戸に用意してくれています。趣味スペースになったり、ペットのためのスペース、赤ちゃんの遊び場、洗濯物を干すスペースなど、自由な使い方ができるこのちょっとした空間、ありそうで無かった良いプランですよね。

価格予想
予想価格ですが、坪320~330万程度と予想します。周辺新築マンションはこちら
【ローレルコート立川錦町】☆駅南側
所在地:東京都立川市錦町六丁目43番1
アクセス:JR南武線「西国立」駅徒歩11分
竣工:2025年12月竣工済
規模:鉄筋コンクリート造地上5階建1棟、86戸
平均坪単価:約310万程度
【プラウドシティ国立】
立川のお隣り国立駅バス便の大規模建替えプロジェクトです!
所在地:東京都国立市富士見台1-28-1、22(地番)
アクセス:JR中央線快速「国立」駅へ徒歩20分~23分、または「国立高校前」バス停徒歩4分~8分、立川バス「国立駅南口」行きバス約7分、JR南武線「谷保」駅へ徒歩9分~12分
規模:589戸(ウエストコート159戸・イーストコート430戸)(非分譲住戸207戸・募集対象外住戸1戸含む)
竣工時期:2026年3月下旬予定
引き渡し時期:2026年8月下旬予定
平均坪単価約330万程度
まとめ
同エリアの物件はありませんが、同じ中央線バス便物件のプラウドシティ国立、西国立駅最寄りのローレルコート立川錦町、このあたりの価格帯がバス便物件の限界値ではないかと考えています。
立川徒歩圏の新築供給は多い中、非メジャーデベのバス便物件と条件は厳しいですが、リバービュー・充実した共用部・個性的な間取りと特徴を設けて魅力ある物件にしてくれていますね!
立川駅前も相場が上がってきている中で、立川を使いたいものの予算的に難しい場合や、駅前の喧騒からは離れて開放的な眺望や自然を楽しみたいという方にはぜひ検討いただきたい物件です。
今回の記事はここまでです。
今後もむさしの的オススメできる最新のマンション情報を定期的に発信していきます!
また、昨年11月より開始したプレミアム記事では、むさしのイチオシの狙い目住戸、むさしのマンションのちょっとプライベートなお話など、よりディープに楽しんでいただける記事も執筆していますので、よろしければ覗いてみてくださいね。過去記事も含め、月額500円で全ての記事が読めます!
引き続き、個別相談も承っています。
それでは、本日も最後までお付き合いいただきありがとうございました!また次回の記事でお会いしましょう!


































記事にコメントする