桑園、初見で「くわぞの」と読まれがち。
こんにちは!
地元愛の塊、札幌タワマンくんです!
私が社会人になって初めて持った後輩(東京出身)が桑園のことを何の迷いもなく「くわぞの」と呼んでいて、新しい着眼点に大笑いした思い出が蘇りました。その伝説は一瞬で全世界中に広まり、そして彼は翌年に札幌から東京へと転勤になりました。
今回はそんな「くわぞの」エリアにある「アルビオ・ステーション札幌桑園」(平均坪単価270万円)をレビューします!
昨年7月に販売予定マンションまとめ【札幌タワマンくん】で軽〜く触れた物件です。当時は売れるには売れると思っていましたが価格も未定で、そこまで注目していませんでした。いざ販売開始してみると、2025年の札幌新築マンションでダントツで好調とのことだったので緊急でブログを回す運びとなりました。
昨今の札幌新築マンションマーケットが微妙すぎて、ぶっちゃけ最近は少し辛口なレビューが多かったのですが、今回は刺さる方には結構オススメな物件です。

「アルビオ・ステーション札幌桑園」公式HPより引用
物件概要
- 所在地(EAST):北海道札幌市中央区北11条西18丁目36-138
- 所在地(WEST):北海道札幌市中央区北11条西18丁目36-139
- 交通:JR北海道「桑園」駅 徒歩6分
- 総戸数(EAST):57戸 2LDK(21戸)/3LDK(26戸)/4LDK(10戸)
- 総戸数(WEST):57戸 2LDK(21戸)/3LDK(29戸)/4LDK(7戸)
- 構造・規模:鉄筋コンクリート造 地上11階建
- 竣工年月(EAST):2027年3月下旬予定
- 竣工年月(WEST):2027年3月下旬予定
- 入居開始予定(EAST):2027年4月上旬予定
- 入居開始予定(WEST):2027年4月上旬予定
- 敷地面積(EAST):2,028.07㎡
- 敷地面積(WEST):1,993.30㎡
- 販売価格:3,960万円~7,010万円(2LDK〜4LDK)
- 販売予定間取り:2LDK〜4LDK
- 販売予定専有面積(EAST):54.76㎡~81.98㎡
- 販売予定専有面積(WEST):55.24㎡~88.98㎡
- 売主:ミサワホーム北海道株式会社/北海道旅客鉄道株式会社
- 施工:株式会社砂子組
- 駐車場:平置き駐車場113台(内、車椅子利用者優先2区画)10,000円/月〜
- 自転車置場総台数(EAST):57台 平置き400円/月
- 自転車置場総台数(WEST):58台 ラック式、平置き200円/月~400円/月
立地
マクロ立地

ファミリー層から絶大な支持を誇る、桑園エリアに属します。
個人的にも住居中心の成熟した街という印象があります。
ブログの視察がてら、とある金曜日の夜に桑園イオンに行ったのですが、フードコートにいる家族数が多いこと多いこと、とてもびっくりしました。週末はどこのイオンもそうかもしれませんが、特に圧倒的な印象でした。また、札幌市内の大型イオンの中では一番治安が良く感じました。さすが中央区。桑園イオンのスタッフさん曰く、土日はもっと人が多く、駐車するのも大変とのことでした。ヒェ
戸建ては一部地域に残るものの、土地価格の高騰もあり供給の中心はマンションとなっており、利便性と居住性を両立した住宅街として、近年も新しい供給が続いています。(住民基本台帳ベースで10年前と比較して3000人増えている(2026年1月末3万611人))
上記のように買い物環境・医療機関・札幌中心部へのアクセスが整っていることから、「住む」ための機能が徒歩圏で揃う立地として桑園エリアはファミリー層からの人気があります。
ミクロ立地

「アルビオ・ステーション札幌桑園」公式HPより引用
JR「桑園」駅が徒歩6分でメイン。
地下鉄「二十四軒」駅も徒歩13分で行けます。

「アルビオ・ステーション札幌桑園」公式HPより引用
桑園エリアは元々JR北海道の社宅跡地開発拠点として再開発が進み、当物件から約50mの場所にも商業・医療・住宅の複合街区「桑園クワノワ・スクエア」の基盤が整いつつあります。

「アルビオ・ステーション札幌桑園」公式HPより引用
約24mの場所には公園もあり、札幌中心地でありながらも緑を感じることができ、買い物や暮らしの便利さもあり、住環境のゆとりが確保されている立地です。
学区は、札幌屈指のマンモス校である桑園小学校が徒歩5分であり、子どもに大人気のキッズランドがある札幌競馬場までも車7分で、小さいお子さまの教育環境としても整っております。
ただ陵北中学校までは徒歩16分とまぁまぁの距離感ではあります。
建物

「アルビオ・ステーション札幌桑園」公式HPより引用
デザインは普通です。
桑園のランドマークマンション!になり得る外観デザインではありません。
ただ現時点で桑園にランドマークたるマンションがないこと、新築供給数が減っていることから、ランドマークにはならなくても、今後も存在感を放つことは間違い無いでしょう。

「アルビオ・ステーション札幌桑園」公式HPより引用
設備仕様は一般的です。ZEH-M Oriented認証。
共有部は一切ありません。個人的には残念ポイントです。

「アルビオ・ステーション札幌桑園」公式HPより引用
間取り・価格
平均坪単価270万円で昨年11月末に販売開始。
約3ヶ月で約80%が成約済となっております。
明らかに他新築マンションと比較して売れ行きスピードが速いです。
そもそも桑園エリアは「どうしても桑園が良い」という桑園一択で住み続ける方が多いことから、中古4LDKは流通量が少ない上に出たらすぐ売れて非常に動きが速いです。
なので以前から新築を待ち望んでいた層がグワっと駆け込んだというのも大きい理由かなと思います。
近隣中古と比較してもそこまで価格差を感じない坪270万円という値付け、周辺の開発への期待も相まって、他新築と圧倒的な差がついたのかなと思います。
営業さんのお話では、ファミリー層はもちろん、40〜50代の子なし夫婦、30代のDINKsなど幅広い年代の方に実需として刺さっているとのことでした。
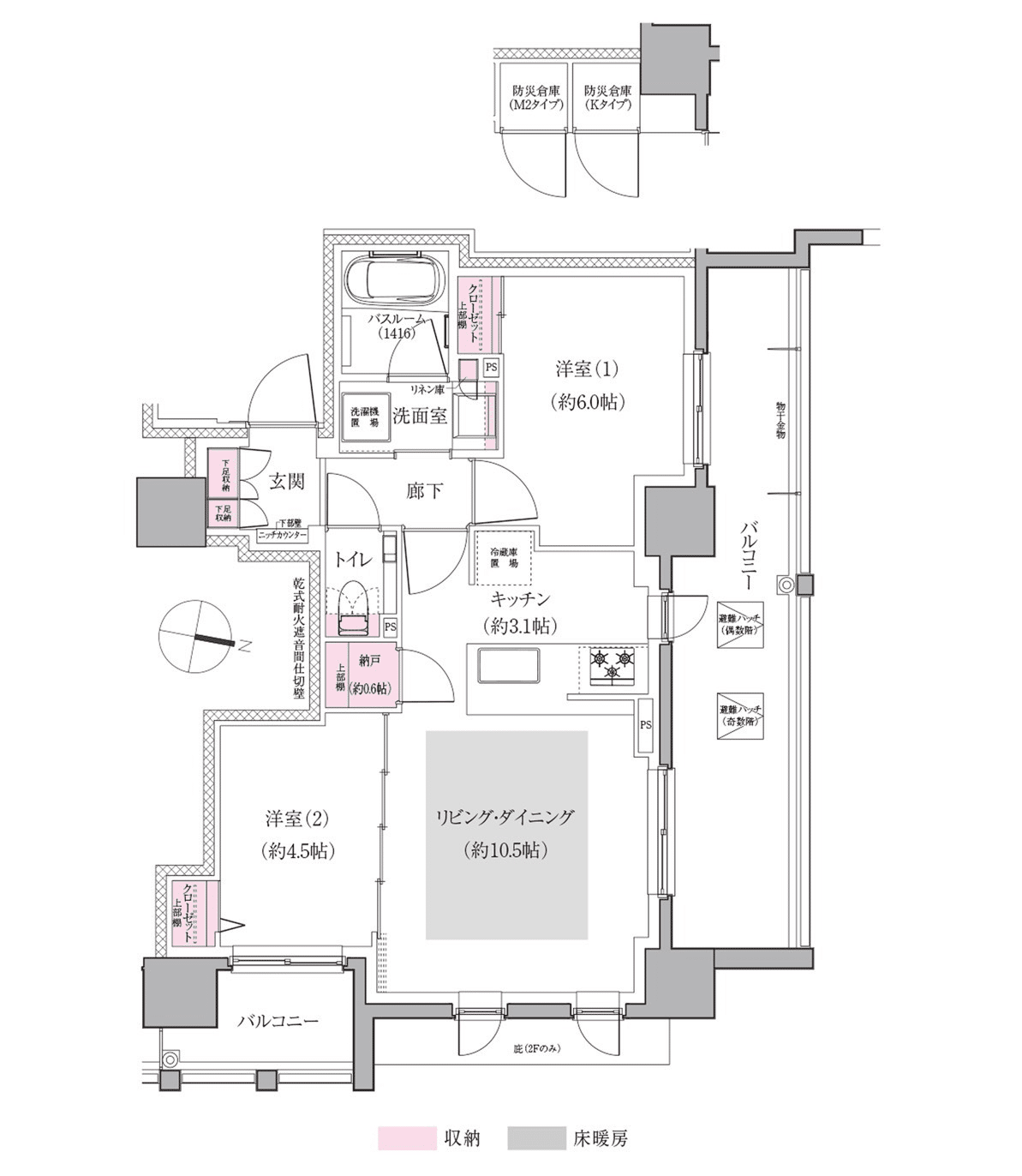
M2type(EAST):2LDK/54.76㎡/3,960万(1階)

Ktype(EAST):3LDK/72.71㎡/5,790万(1階)

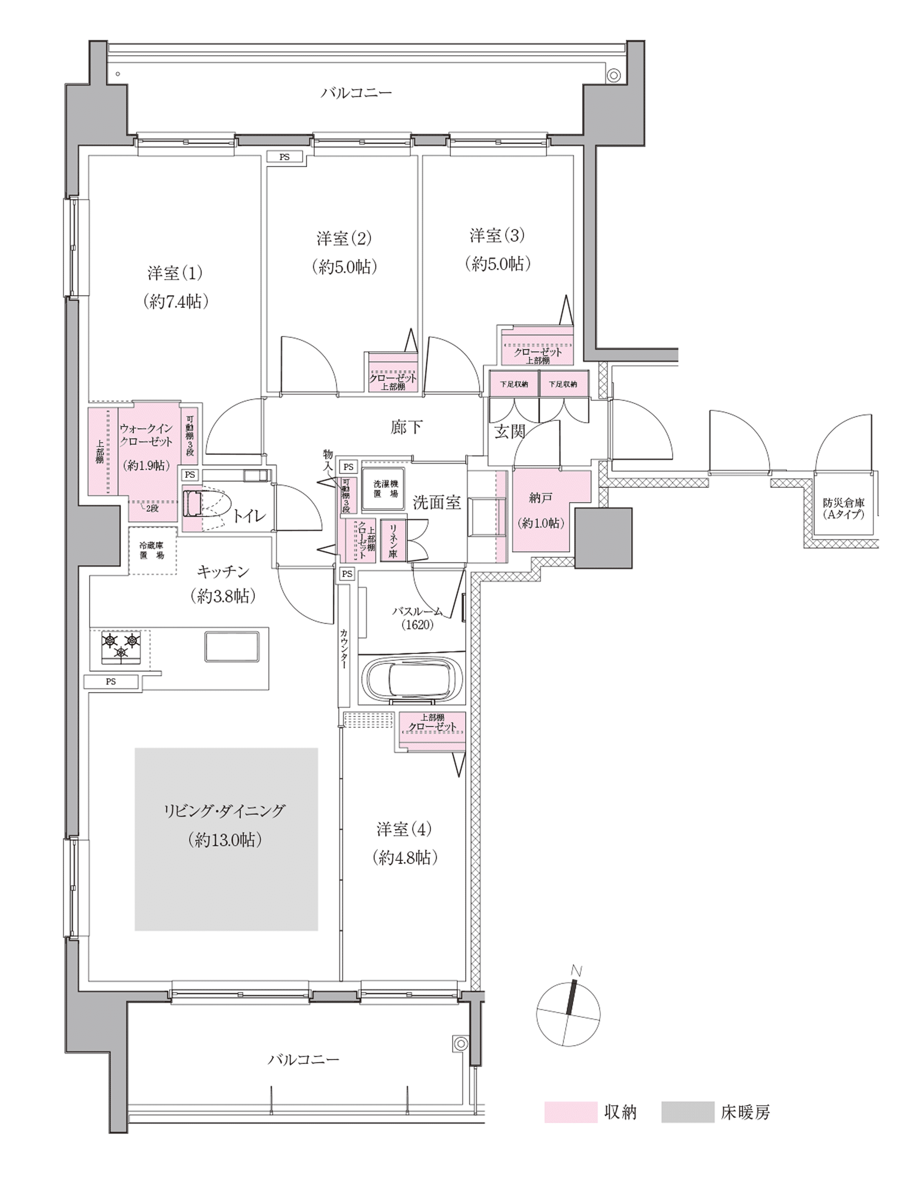
Atype(WEST):4LDK/88.98㎡/6,810万円(2階)

間取りは2LDK〜4LDKの幅広いプランを用意されており、DINKs〜ファミリー層がターゲットとされております。
上記の3間取りの価格は全て低層階ですが、ファミリー層にとっての子どもの走る音を気にしなくていい・エレベーターが棟ごとに2台なことを踏まえると、むしろ最低層階の方がオススメな物件ではあります。
総評
ということで、当物件は桑園に住みたい方にはオススメな物件です!
シンプルにこれですね。近隣の中古と比較するとちょい高いですが、それでも築年数や周辺環境を踏まえるとトントンに感じるので、実需としてGOな物件だと思います。
迷っている方がいらしたら行っちゃってください!
ここまでプラスで言っていますがもちろん売主から金銭の授与等は一切ありません。裏技を使ったので、そもそも売主は私の来場を把握していないと思います(笑)
これほど持ち上げるほどに、昨今の新築マンションマーケットが悪すぎます。
ぶっちゃけ当物件も共有部分なしであったり、デザインであったり、100%では無いのですが、それも逆にコストカットですし、それ以上に価格×立地が良いと感じました。(そもそも100%のマンションは存在しません。)
桑園エリアがこれほどまでに人気なのを身に沁みて感じているからこそ、買いたい人は多いだろうなと。
たぶんこの物件を買う人は桑園のことを「くわぞの」と呼んだことはありません。
最初から「そうえん」だと認識して、「桑園エリア」に住むことに価値を感じる。
そういう方にオススメな物件です。
「くわぞの」と呼んだ瞬間転勤になりますよ。
今回も最後まで読んでいただきありがとうございました!!
少しでもためになったと思ってくださった方は、Xやインスタのフォロー、いいね!をいただけると嬉しくなります!!
中古マンションのご売却やご購入の相談も受け付けておりますのでお気軽にお問い合わせください!!
以上、「アルビオ・ステーション札幌桑園」のレビューでした!

「アルビオ・ステーション札幌桑園」公式HPより引用
- 資料をお取り寄せ
-
この記事を読んで 【アルビオ・ステーション札幌桑園】 が気になったら資料請求してみよう
[スムラボ編集部より] 本ブログ記事の情報は投稿日時点のものです。現在の販売情報はLifull Homesをご参照下さい。







-1-150x150.png)














記事にコメントする