こんにちは!なごぐらんです。
この記事を2月下旬に書いているのですが、最近は名古屋も徐々に春の訪れを感じさせるような暖かい日が出てきましたね!1月くらいは本当に寒くてたまったもんではありませんが、マンションの専有部の床は戸建てに比べると床暖房なしでもかなり暖かいので助かっています。たまに実家に帰るときがあるのですが、戸建ての床は本当に冷たい!マンションの良さをこういうところで感じますね。(戸建てもカーペット敷くとかでやりようはあるとは思いますが・・・)
ということで今回はパークホームズ池下の後編記事となります!前編でもお伝えしたようにタワーマンションではなく通常の板状マンションなので、資産性という部分ではやや弱いですが、なんといっても東山線徒歩3分の三井のブランドマンションです!実需の方には本当にオススメしやすい物件ですし、後述の価格も旧価格寄りになっていますのでグロスとしてもまだ手が届く範囲かと思います。こういう物件は時間がたつにつれてどんどんなくなっていきますので、マンションを探されている方はここに限らず是非いろんな物件を今のうちに見ていただきたいところです!それでは本題の後編に進んでいきましょう!
前編の内容
- 立地:名古屋市千種区春岡1丁目で最寄りは池下駅で徒歩3分、
RC15階建42戸で広小路通沿い全戸南向きの2LDK〜3LDK - 2024/11に一度販売休止したが、2025/10に販売再開。第1期は2026/
3引渡し予定。 - 栄まで8分・名駅まで13分の好立地で生活施設が充実、春岡小までは徒歩6分
- 外観はクラシック調で内廊下が採用されている。エレベータは1基で24hゴミストック有、駐車場設置率は72%。
専有部
専有部の仕様についても、四種の神器チェックからいきましょう!専有部については最下層の2階から15階まで標準設備については同じで、オプションの差のみだったかとおもいます。ディスポーザー :〇
トイレ :◎(床タイル、手洗いカウンター、スティックリモコン)
キッチン・洗面台天板 :◎(フィオレストーン)
設備仕様 :◎(ZEH、ガラストップコンロ、LD床暖房など)
設備仕様については上記の通り板状マンションの中ではかなり良い方ではないでしょうか!?モデルルーム訪問に担当の方からパークホームズの中でも最上級グレードの設備仕様を採用しているとお聞きした理由が改めてよく分かりました。東京だとパークホームズとはいえ設備仕様を削っている物件も多いですので、名古屋の良さが出ていますね。 洗面所・トイレの床にタイルが採用されているところや、スティックリモコン採用など細かいところの設備もしっかりと良いものになっていますので高級感を感じられます。また旧価格物件ですが、ZEHが取れているところも大きいですね。今後の新築物件はZEHが採用されるのがスタンダードになっていきますので、そういった後発の物件に劣ることがないというのは実需の方はもちろん、もし手放さないといけなくなったときも安心できるポイントかと思います。
またキッチンについては食洗機はもちろんビルトインで標準ですし、ガラストップコンロはドイツのショット社のものが採用されているようです。標準天井高は2,500mで板状マンションとしては標準~やや良いくらいですが、個人的にマイナスポイントだったのはサッシ高ですね。すべての部屋タイプを実際に見れたわけではにですが、図面上は2,100mmとなっていても梁がもう1段あって実際には1,800mm~1,900mm程度しかにように感じました。私は割と背が高い方なのですが、ベランダに出る際に思わずかがんでしまうほどでしたのでここは結構辛いところだなと思いました。この後の間取り紹介でも出てきますが、この物件は下がり天井がきついところがところどころあり、それはサイト上では確認できないのでこういったところは現地でしっかりと確認した方が良いのではないかと思います。
間取り
間取りについては全フロア共通でA~Cタイプの3種類となっており、A・Cタイプが3KLDK、Bタイプが2LDK(4階までは1LDK+S)となっています。それでは1つずつ見ていきましょう!なお全体の注意点として主開口の南向きは現在は中層階でも眺望が抜けていますが、目の前は駐車場となっており前建てリスクを抱えています。重要事項説明などで計画がないかはもちろん確認するとして、将来的な眺望リスクは認識したうえで検討されることをおすすめします。(パークホームズ今池ステーションプレミアも今まさにそうなっている状況なのもあり)
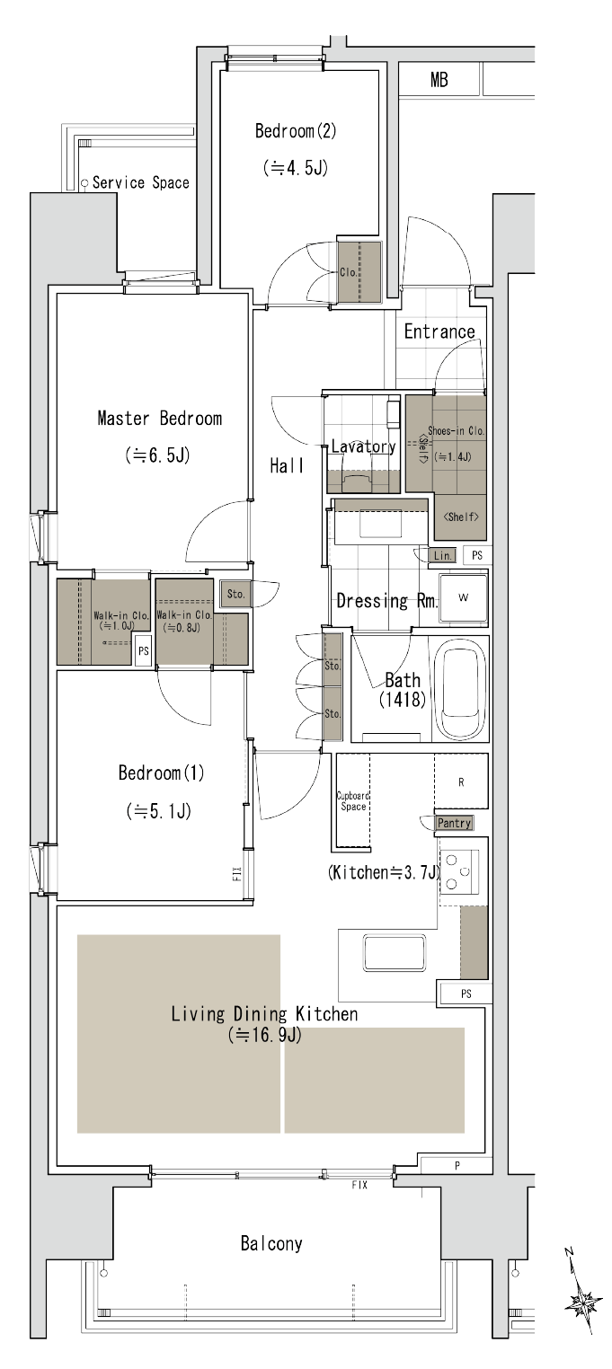
- Aタイプ 3LDK 77.42㎡(画像はクリックすると拡大できます)
スパンについては6,000mmと何とかワイドスパンといったところですが、洋室3部屋中2部屋がリビングアウトしているのは良いですね。玄関もクランク構造になっていてプライバシーが確保されていますし、LDKについても家具配置は比較的しやすく、洗濯導線も確保しやすいような印象です。浴室は3LDKとしては標準的な1418サイズとなっています。
この間取りの最大のマイナスポイントは洋室2の入口部分の下がり天井で、なんと1,890mmしかありません!!2,000mmを切ってくると多くのかたにとってはかなり圧迫感を感じるようになりますので、ここを許容できるかどうかはしっかりと現地で確認された方が良いかと思います。個人的には結構辛いなあと感じましたが、子供部屋にするなど使い方によっては対応できるとは思いますので具体的な配置イメージを検討されると良いかなとは思いました。その他は全体的に使いやすい間取りではないかなとも感じます。
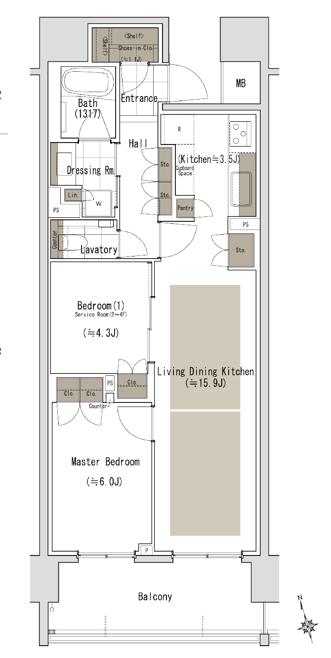
- Bタイプ 2LDK(1LDK+S) 62.30㎡(画像はクリックすると拡大できます)
こちらは2LDKの間取りで、2~4階については採光要件を満たしていないため1LDK+Sとなっています。将来的に住み替えを検討されている方は基本的には5階以上の2LDKを選ばれることをおすすめします。(リセールとなると検索条件によって出てこなくなったりするため)
こちらは全体的には悪くなく十分快適に過ごせそうなんですが、ちょくちょく残念ポイントがあります。まずはスパンで5,250mmとかなりのナロースパンで縦長の間取りになっています。ただ導線が直線主体ではなく何度か曲がるところがあり、個人的にはそこまで不便に感じませんでした。また玄関のシューズインクローゼットはAタイプと同じく1,890mmの下がり天井なので圧迫感がすごいのと、浴室がBタイプのみ1317タイプが採用されています。いや三井さん…もう少し他をいじめたら1418入れれたと思いますよ!?最上級のパークホームズならここは1418にしてほしかったところです、1317と1418って10cmの差ですがだいぶ快適性が変わってくるラインで男性が足を伸ばせるかどうかが変わってくるところです。
洋室は2部屋ともリビングインで1部屋は行燈部屋とよくあるタイプですが、エアコンの配管は通っていますので行燈部屋にもエアコン設置は可能になっています。サッシ高の低さとあわせて全体的には良いんだけど残念ポイントがちょくちょくあって惜しいなあと感じる間取りと感じました。
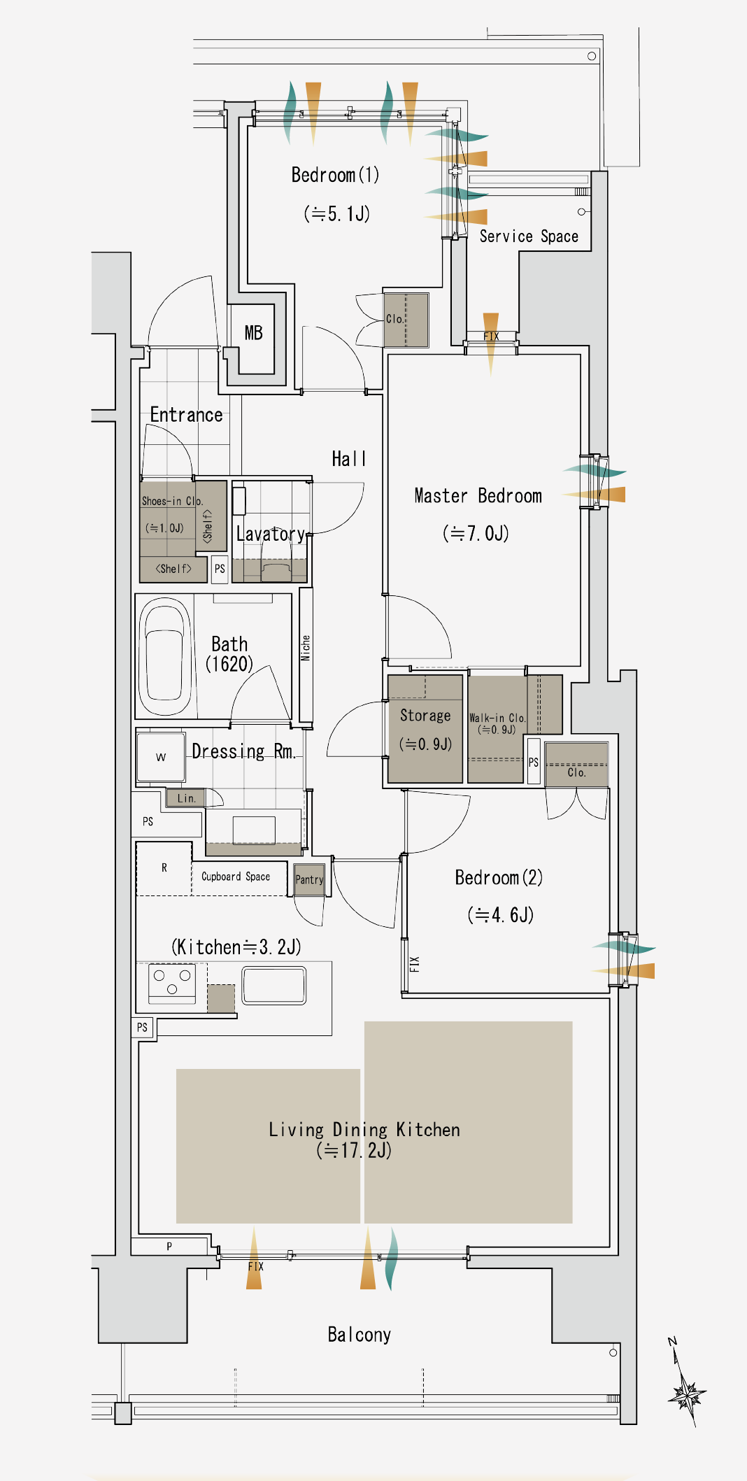
- Cタイプ 3LDK 81.30㎡(画像はクリックすると拡大できます)
最後はAタイプと同じく3LDKのCタイプでこちらはやや広い81.30㎡となっています。スパンが6,420mmとワイドスパンになっており、Aタイプが少し横に長くなったようなイメージで良いかと思います。基本的にAタイプを反転させたような間取りになっていますが、こちらはキッチンはカウンターキッチンが採用されています。またこちらは洋室3部屋すべてがリビングアウトさせることができるため、間取りとしてはCタイプが1番良いかと思います。浴室もしっかりと1620が採用されていますので、手が届くなら基本的にはCタイプを選んだ方が良いのではないかと思います。ここも洋室2の入口部分は同様に1,890mmの下がり天井になっていますので、そこだけがネックだなあと感じました。それ以外については収納スペースも納戸などがあって結構良い感じなのではないでしょうか。
予定販売価格
ここまで立地や専有部の仕様を見ていく限りはパークホームズのブランドバリューもあわせて魅力的に感じる方も一定いるのではないでしょうか!?もちろんタワマンと比較すると仕様や特に共用部については劣るところがありますが、実需として暮らしていく分には十分すぎると思います。さて皆さんお待ちかねの予定価格を見ていきましょう。※画像はクリックすると拡大できます
-300x191.png)
価格表(第1期販売)全戸平均ではなく第1期販売の平均にはなりますが、平均坪単価が323万円と直近の新築物件と比較してもかなり抑えられた水準となっており、TMD(坪単価満足度)は高い物件といえるのではないでしょうか。部屋タイプごとに見ていきますと中住戸のBタイプが最も単価が低く、次にAタイプ、最後にCタイプとなっています。ただAタイプとCタイプの坪単価に大差はありませんので、個人的にはグロスが届く限りはCタイプの方が良いのではないかなとは思いました。ただAタイプとCタイプ共通で主開口でない西・東の両サイドは壁ドンになっていますので、基本的には壁ドンを抜ける上層階の方が良いかなと思います。基本的にはBタイプに割安感を感じるくらいで他は新価格に近いイメージです。なお2階だけ異常に安くなっていますが、これは事務所等で使用していた(いる)ことによるものとのことです。
現在は第1期1次販売が終了して、3月上旬に第1期2次販売が予定されています。物件概要から推察するに、1期1次ではグロスの低いBタイプが盛況で、AタイプとCタイプはほとんど売れなかったといったところでしょう。特にBタイプは他の新築物件と比較しても上述の通り割安感を感じますので、予算6,000万の方にはとてもおすすめできます!AタイプとCタイプも高くはないのですが、グロス8,000万の壁が名古屋には強くありますので販売はある程度長期化していくのではないかと予想しています。個人的に池下ガーデンタワーやファインタワー今池がほぼ完売した現状で新築をこのあたりで探すなら良いのではないかなと感じます。
まとめ
最後まで読んでいただきありがとうございました!それにしても名古屋の新築価格はどんどん高くなっていますね、、、個人的には当面は新価格の新築物件の動きは悪くなって(グランドメゾンなどは除く)、割高感のない中古物件を待ち構える人が多くなりそうな印象と、郊外に逃げていく動きが中心になっていくのかなと思います。新築が高すぎて築浅中古に流れるという、少し前東京であったようなな流れを名古屋も追っていくのではないかと予想しております。このあたりは話し始めると記事一本書けてしまいそうなのでまたの機会として、パークホームズ池下は利便性とグロス価格のバランスが取れているように感じますので、いまマンションを探されている実需の方には有力な選択肢になるのではないかと思っています!興味ある方はぜひモデルルームに一度足を運んでみてはいかがでしょうか。それでは![スムラボ編集部より] 本ブログ記事の情報は投稿日時点のものです。現在の販売情報はLifull Homesをご参照下さい。



-1-300x167.png)
-134x300.png)
-151x300.png)
-151x300.png)




-300x200.jpg)
-1-300x200.png)
-300x200.jpg)













記事にコメントする