いつも記事を読んでいただきありがとうございます! 目次
今回は新築マンションラッシュの立川に行ってまいりました!
2月のオススメ物件では立川の2物件(クリオ立川PJとプレミアムレジデンス立川)をピックアップしましたが、今回はその際に取り上げられなかった注目マンションと併せてに立川の相場感についても考察しています。
それではどうぞ!
立川駅徒歩圏の新築マンション
▼立川の新築マンションプロット図はこちら(凡例:w7とは徒歩7分、@400とは坪単価400万)こう見ると、立川通りに供給が多くなっているのがわかりますね。価格帯としては坪410万〜450万といった相場感になっています。
立川は駅前の商業施設の利便はもちろんですが、昭和記念公園、GREEN SPRINGS、少し足を延ばすとららぽーと、IKEA、スケートリンクなど立飛グループが開発したエリアも含め楽しめるスポットがたくさんありますね。
立川、子育ての街すぎる pic.twitter.com/3dci2bbJ1a
— むさしのマンション (@mansion634no) February 15, 2026
さて、そんな立川で新たに登場する新築マンションのうち、むさしの的にピックアップしたい物件が以下の3物件です!
ブリリア立川
1件目は【ブリリア立川】です!物件概要
所在地:東京都立川市曙町二丁目201番3アクセス:JR中央本線「立川」駅徒歩5分、JR南武線「立川」駅徒歩5分、多摩モノレール「立川北」駅徒歩5分
敷地面積:1,387.06m2
建築面積:843.12m2
建築延床面積:10,583.97m2
竣工予定:2027年10月中旬(予定)
引渡し予定:2027年11月下旬(予定)
規模:鉄筋コンクリート造地上17階建て、117戸 (一般分譲115戸、提携企業優先住戸2戸)
土地の権利:地上権
借地の種類・期間:一般定期借地権2023年1月6日~2097年11月30日
駐車場台数/使用料:33台(平置き(身障者用含む):1台、機械式:32台)、28,000円~37,000円(月額)
駐輪場台数/使用料:191台(ラック式:186台、子供用平置き:5台)、300円~1,000円(月額)
バイク置場台数/使用料:1台、4,000円(月額)
管理会社:株式会社東京建物アメニティサポート
施工:川口土木建築工業株式会社
設計:川口土木建築工業株式会社一級建築士事務所
デザイン監修:株式会社日建設計
売主:東京建物株式会社
口コミ:ブリリア立川ってどうですか
ブリリア立川! pic.twitter.com/GApeU7MSuK
— むさしのマンション (@mansion634no) February 15, 2026
立地
本件周辺及び駅北側の商業・利便施設について簡単に解説します。<日用品>
スーパーは、高島屋S.C.1階のOKが徒歩3分で最寄りのスーパーとなります。肉のハナマサ(お肉中心に野菜や魚介も揃います)が徒歩7分にあり、使い分けに良いですね。
ドラッグストアも高島屋S.C.1階にサンドラッグがあり、買い物ついでに立ち寄れるので便利です。MEGAドンキも徒歩3分にあり、ドラッグストアでは買えないドンキならではの商品を揃えられるのはQOLが上がります。
<北側の商業施設について>
立川の高島屋は2023年で百貨店としての業態は終了し、全館専門店としてリニューアルしました。現在は、ディスカウントストアのOK、ニトリ、ユザワヤなどが入居する駅前のショッピングセンターとして機能しているんですよね。
一方で徒歩4分の伊勢丹は、売り場面積は約38,000㎡とルミネ立川より広く、新宿伊勢丹のブランド構成をそのまま立川に移動させ、多摩地域の旗艦店としての立ち位置です。
徒歩2分のフロム中武は60年以上の地元密着デパートであり、かつてはサブカル発信拠点でした。現在はカラオケ、スシロー、ダイソーなど学生中心に大衆向けテナントが入る一方、韓国食品・コスメを扱う店やカードショップなど個性的なお店も入居しています。
それぞれ個性や役割の異なる商業施設がギュッと集まっているのが駅北側の良さです。もちろんGREEN SPRINGSをはじめとした立飛が開発したエリアや昭和記念公園公園も近く、これらを使いこなせる本件の立地がいかに特別かお分かりいただけるかと思います。
現地写真
敷地配置図と一緒にご覧ください!
ブリリア立川は、北口大通りからファーレ立川へ分岐する五差路付近に立地し、車通り・人通りが非常に多いです。都道16号線(通称緑川通り)を越えると、商業施設や飲食店街の賑やかな雰囲気から、オフィスビルが多く都会的な雰囲気に変わります。
右隣のオフィス・商業棟は一足先に完成しており、残すは住宅棟部分です。オフィス・商業棟と住宅棟を併せてブリリア立川スクエアという名称です。
大通りから見えるのは一部分ですが、敷地配置図を見るとL字型のような敷地をしており、通りの反対側にも住棟があります。立地としては非常に視認性がある場所なので、完成すればこの立地だけに羨望の眼差しが向けられることでしょう!



建物
外観デザイン本件は住宅棟とオフィス・商業棟の2棟構成です。オフィス・商業棟と並び一体感のあるデザインとなるよう、バルコニーは全面ガラス手摺が採用され、カラーテイストも同系色です。
ガラス手摺りの屈折が流線的になっており洗練された外観です。外構の植栽もオフィス・商業棟と一体的に整備されます。
エントランス
個人的に好みなのはアート・自然が融合したエントランスです。壁面緑化は生きた植物で作られています。パブリックアートを楽しめるファーレ立川が本件からほど近いことも意識し、ファーレ立川に呼応するアート作品がエントランスに設置される予定です。
建物の一歩外に出ると立川の都心部なのですが、それを忘れてしまいそうな自然いっぱいに枯山水も品があり素敵です。それほど広くない空間ではありますが、周辺の街の特徴がギュッと取り入れられ、工夫が凝らされたデザインに感服してしまいます。
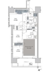
間取り・価格
大通りから見えたのはH・G・Fタイプで北西を向いています。一方、E、D、C、B、Aタイプはオフィス・商業棟の裏側になり、バルコニーの向きは南東向きです。▼Gタイプ
3LDK 64.00㎡ 北西向き8階
8,490万 坪単価438万
▼Eタイプ
3LDK 68.49㎡ 南東向き2階
7,390万 坪単価356万
▼Fタイプ
3LDK 80.82㎡ 北西向き4階
10,899万 坪単価454万
▼Hタイプ
3LDK 81.90㎡ 北西向き10階
11,490万 坪単価463万
平均坪単価:約430万程度
定期借地権について
▼本件は定期借地権マンションになりますので、購入時に敷金、毎月の費用として管理費・修繕積立金とは別に地代・解体準備金が発生します。(※HP先着順販売概要から抜粋)地代:5,981円~8,972円(月額)
解体準備積立金:5,067円~7,600円(月額)
敷金:143,544円~215,328円
地代は110円/㎡、解体準備金は94円/㎡です。
管理費が368円/㎡、修繕積立金が175円/㎡、これだけでも高めではありますが、これに地代・解体準備金を含めると747円/㎡になります。
68㎡で換算すると月々約50,796円、毎月の支出としては負担の大きい金額になりますね。
周辺相場
新築マンション【ポレスター立川】
所在地:東京都立川市錦町一丁目72-18(地番)
アクセス:JR中央本線・南武線・青梅線・五日市線「立川」駅徒歩8分、多摩都市モノレール線「立川南」駅徒歩9分
竣工:2028年2月下旬
引渡し予定:2028年4月下旬
規模:鉄筋コンクリート造地上11階建、50戸
平均坪単価:約420万程度
中古マンション
【プラウドタワー立川】
所在地:東京都立川市曙町2丁目
アクセス:多摩モノレール 立川北駅 徒歩1分、JR中央線・南武線 立川駅 徒歩2分
築年月:2016年7月(築9年)
成約相場:坪550万程度
【プラウド立川マークス】
所在地:東京都立川市曙町1丁目16
アクセス:多摩モノレール 立川北駅 徒歩3分、JR中央線・南武線 立川駅 徒歩4分
築年月:2015年5月(築11年)
成約相場:坪370万程度
【ザ・パークハウス立川】
所在地:東京都立川市曙町3丁目5-30
アクセス:多摩モノレール 立川北駅 徒歩10分、JR中央線・南武線 立川駅 徒歩8分
築年月:2018年5月(築8年)
成約相場:坪350万程度
レビュー
立川駅の北口エリアは特に、従来から親しまれてきた駅前商業施設に加え、GREEN SPRINGSなど近年開発されたエリアも広がり、さらに昭和記念公園も含めた多彩な魅力を楽しめます。さらには北口大通り沿いかつ、複数道路が交差するシンボリックな立地であり、立川随一のポジションであることは間違いありません。
そんな立地・デザイン性・ブリリアブランドではありますが、定借ということもあり周辺の新築相場と同程度の価格帯に収まってくれています。とはいえ、地代や解体費を含めたトータルの月々の支払いにするとやはり重くはなってきますので、定借でも立川ピン立地に住みたい方に合ってくる物件ですね!
プレミスト立川
2件目は【プレミスト立川】です!物件概要
所在地:東京都立川市錦町1-370(地番)アクセス:JR中央本線「立川」駅まで徒歩7分、JR南武線「立川」駅まで徒歩7分、多摩都市モノレール「立川南」駅まで徒歩8分
敷地面積:1,817.75m2
竣工:令和8年9月予定
引渡し予定:令和8年9月予定
規模:鉄筋コンクリート造地上15階建、116戸
駐車場空台数/月額:28台/19,000円~27,000円 機械式:24台、平置き:4台(内、身障者用:1台)
駐輪場空台数/月額:116台/100円~600円 平面式:34台、ラック式:82台
バイク置き場空台数/月額:3台/1,500円
その他の費用:トランクルーム(58区画)/月額:500円~1,100円
施工会社:株式会社長谷工コーポレーション
管理形態:管理組合と管理会社(大和ライフネクスト株式会社)との間で管理委託契約を締結
売主:大和ハウス工業株式会社
口コミ:プレミスト立川ってどうですか
プレミスト立川! pic.twitter.com/T8a4Ydfmlb
— むさしのマンション (@mansion634no) February 15, 2026
立地
立川駅南口のロータリーから居酒屋など飲食店を中心に、賑やかなすずらん通り及びやすらぎ通りを東に進み徒歩7分です。駅南側にある商業施設グランデュオには、生鮮食品やグローサリー店が入居しています。
駅の北側は張り巡らされたペデストリアンデッキがあり街の立体的な把握も必要ですが、南側はそんな必要もなく初めて訪れる人でもわかりやすい街並みです。
もちろん北側の方が賑わいはありますが、かといって南側に寂しい雰囲気は全くなく、駅までの道のりにはチェーン飲食店、コンビニ、薬局などが複数存在し、普段使いにおいては利便性バッチリです。
現地写真
すずらん通り・やすらぎ通りから1本中に入った場所に位置し、現地周辺の車通りはほとんどありません。
周囲に高い建物が多いとはいえ、15階116戸の規模感は圧倒されます。視認性が高い立地ではないものの、竣工すれば相当存在感のあるマンションになりそうで、竣工が楽しみです!




建物
▼エントランスアプローチです。前面道路からセットバックによって生み出された広いアプローチ部分は植栽によりバルコニーからの景色に緑を添えるほか、離隔距離の確保にも繋がっています。緑の植栽とブラウンのタイルをあしらった外観は、周囲の建物と異なる温かみのある外観になりそうです!
▼北西側からのパース写真です。角住戸のAタイプIタイプのコーナーサッシがっこよく、翼を広げたような見た目と立体感がありますね。
▼共用部はオープンラウンジ、リモート&ゲーミングルーム及びホビースペースが設けられています。外壁タイルと統一感を意識したデザインで、リモート&ゲーミングルームの格子状の扉や街灯をイメージした照明、ウォールアートなど遊び心を感じられます。
このほか、トランクルームが戸数の50%分設けられています。
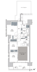
価格・間取り
配棟図を見るとB1〜H1タイプが南東向き、角住戸のAタイプとIタイプは北西向きに主開口部があります。囲まれ感のある立地ではありますが、エントランスのある南東側は約26m、北西側は約46mの離隔距離があります。眺望の抜け感があるのは一部住戸のみですが、セットバックのおかげで圧迫感は軽減されていますね。
▼Aタイプ
2LDK 58.39㎡ 北西向き 角住戸7階
7,698万 坪単価435万
▼B1タイプ
3LDK 71.43㎡ 南東向き9階
9,238万 坪単価427万
▼B2タイプ
3LDK 71.43㎡ 南東向きルーフバルコニー付11階
9,798万 坪単価453万
平均坪単価:約410万程度
レビュー
囲まれ感のある立地で眺望・採光に期待ができる物件ではありませんが、大通りから一本入った立地だからこそ、駅近ながらも静かな環境の立地となっています。価格も立川徒歩圏内の中では最安値の価格帯ではありますが、建物デザインや設備仕様など非常に頑張ってくれています。
立川駅近の新築ブランドマンションに住みたい!という方にハマってくるかと思うので、是非比較検討いただきたい物件です。
プレシス立川パークフロント
3件目は【プレシス立川パークフロント】です!物件概要
所在地:東京都立川市錦町3丁目3番1 他(地番)アクセス:JR中央線・南武線・青梅線・五日市線「立川」駅徒歩9分、JR南武線「西国立」駅徒歩8分、多摩モノレール「立川南」駅徒歩9分
敷地面積:646.81㎡
建築面積:422.68㎡
延床面積:3204.83㎡
構造・規模:鉄筋コンクリート造、地上10階建、45戸(他管理員室1戸)
駐輪場:敷地内に81台(2段式ラック54台、平ラック式27台)(月額使用料:100円~500円)
駐車場:敷地内に6台(平置5台、福祉用駐車場1台)(月額使用料:28,000円・30,000円)
ミニバイク置場:敷地内に3台(月額使用料:2,000円)
竣工:2026年2月12日(竣工済)
引渡し予定:2026年4月上旬(予定)
売主:一建設株式会社
設計・監理:株式会社光和設計 一級建築士事務所
施工会社:菊池建設株式会社
管理形態:区分所有者全員により管理組合を結成し管理を委託(通勤)
管理会社:伏見管理サービス株式会社
口コミ:プレシス立川パークフロントってどうですか
本日のお目当て、プレシス立川パークフロント!
— むさしのマンション (@mansion634no) February 15, 2026
南東向きのパークビュー最高すぎる! pic.twitter.com/O97yxDV42M
立地
本件は立川市役所の跡地に誕生した物件で、早くも竣工しておりました!本件周辺から西国立駅エリアにかけて、公益施設が順次整備されています。
再開発というほど規模が大きいわけではなく、既存の建物を活用したリノベーション事業であり、これにより、まんがぱーくや立川市子育て支援・保健センターがオープンしています。
本件は全室赤い公園を向いたパークビューです。公園を向いているマンション自体は珍しくはありませんが、立川市により整備された街並みが眺望となります。小学校は徒歩3分と非常に近く、子育て環境がそろった周辺環境が最大のストロングポイントですね。
現在販売中の新築物件の中では駅が遠い場所ではありますが、立川駅徒歩9分に加え、南武線の西国立やモノレールなど複数路線利用できるメリットもあります。
現地写真
赤い公園は遊具などはなく、芝生が広がっています。開放感バッチリですね。


▼立川通り沿いから撮影しています。

▼立川通りは車両や歩行者が多く、視認性抜群の立地です。立川通りを向く面は開放廊下側となっており、ガラス手摺りになっています。


▼角部屋のフィックス窓が縦に並び素敵です。縦のルーバーもリズミカルで良いアクセントになっていますね。

建物
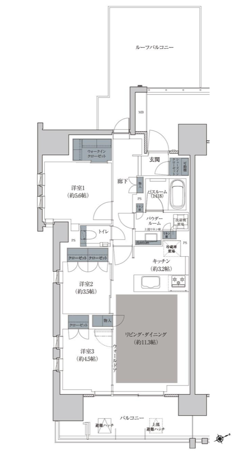
公園側からも立川通りからもどちらから見ても美しいデザインです。間取り・価格
▼Aタイプ3LDK 70.94㎡ 南東向き角住戸
▼Bタイプ
3LDK 56.47㎡ 南東向き
平均坪単価:約450万程度
間取りは全部で以下5タイプです。
①Aタイプ 3LDK 70.94㎡
②Bタイプ 3LDK 56.47㎡
③Cタイプ 1LDK 32.34㎡
③Dタイプ 3LDK 56.22㎡
④Eタイプ 3LDK 66.29㎡
56㎡ながら間取りは3LDKと今どきな専有面積ですね…
とはいえ柱は外に出ていますし、効率の良い間取りではあるので、グロスを抑えて部屋数が必要な方にとっては十分選択肢になり得るプランですね。
総括
現在販売中の立川新築物件としては、1番高価格帯となっています。非大手分譲である点や、駅まで立川通りを渡る必要があり少し駅距離がある点、ディスポーザーなしの設備仕様等、弱点はそれなりにありますが、南東向きの永久眺望の強みが圧倒的ですね。
本件はとにかくパークフロント、眺望条件の良い物件に住みたい方に合ってくる物件です。
眺望条件の良いマンションはどうしても駅距離等の条件は悪くなりがちですが、本件は立川通りを渡る必要があるとはいえ、なんといっても立川駅徒歩9分の立地でこれだけ眺望条件の良い立地というのが非常に希少価値のある物件であり、中古を含めた周辺物件と差別化できるポイントですね!
総括
立川の新築マンション3物件、いかがでしょうか。最近なにかと話題に上がることが多い立川ですが、本当訪れてみると毎度立川の魅力的な街づくりに感動してしまいます。そんな立川の徒歩10分圏内にこれだけ新築マンションがあり、周辺中古ともそこまで乖離のない金額で選べる選択肢が多いわけですから、購入者にとっては非常に有り難い供給状況になっています。
一方で立川駅特に南側に関しては分譲マンションの数が多く、今後もより立地条件の良い場所で供給されることも考えられます。
将来的な資産価値を意識する場合は、そういった立川の立地特性を理解し、自身の購入する物件が中古市場に出た時に周辺中古との差別化が図れるポイントを理解する必要があります。
そういった意味では、私が選ぶならプレシスを買いたい…!
本日の記事はここまでです!
スムラボでは無料記事の他に、月額500円で読み放題の有料記事も毎月更新しております!
よりディープな情報を皆様のお役に立てるように発信していますので、よかったら覗いていただけると嬉しいです。
最後まで読んでいただきありがとうございました!



















































記事にコメントする