目次
横須賀中央駅前の若松町一丁目地区、2024年2月に閉店した横須賀プライム跡地では再開発事業が進行し、2029年に33階建、総戸数273戸の商業・ホテル一体型タワーマンションが建設されます
2026年1月21日に起工式が執り行われ、若松町1丁目地区市街地再開発組合および京浜急行電鉄株式会社から最新情報が公表されました
2025年4月に私の個人ブログに公開した内容を、このたび最新の情報に更新してスムラボにて記事化します起工式で何が確定した?

出典;横須賀中央『若松町1丁目地区第一種市街地再開発事業』がいよいよ新築工事着工へ(若松町1丁目地区市街地再開発組合、京浜急行電鉄株式会社;2026年1月21日)
1月21日に起工式が行われ、横須賀中央駅前の大型複合再開発がいよいよ新築工事段階に入りました
竣工は2029年12月、30年春の開業を目指すとのこと
これにより本再開発事業が中止や延期されることなく進むことが確定しました
事業の最新情報と、資産性の観点で注目すべきポイントを整理します
事業概要

- 所在地;横須賀市若松町1丁目100番 ※地番(旧プライム横須賀跡地他)
- 敷地面積;約 3,445 ㎡
- 構造・規模;鉄筋コンクリート造一部鉄骨造地下1階地上 33 階
- 建築面積;約 3,005 ㎡
- 延床面積;約 47,130 ㎡
- 用途;店舗、ホテル、住宅、駐車場
- 高さ;約 128m
- 設計・施工;基本設計・実施設計/株式会社アール・アイ・エー、工事監理/RIA・戸田建設工事監理共同体、施工/戸田建設株式会社横浜支店(特定業務代行者)
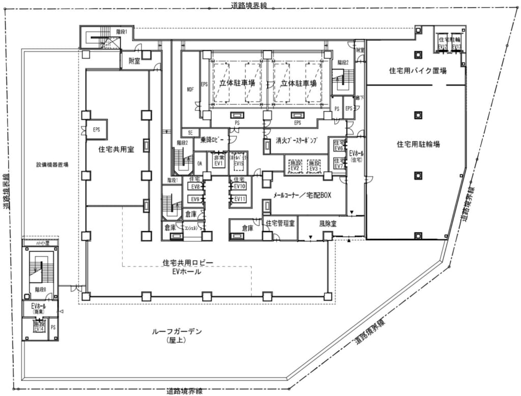
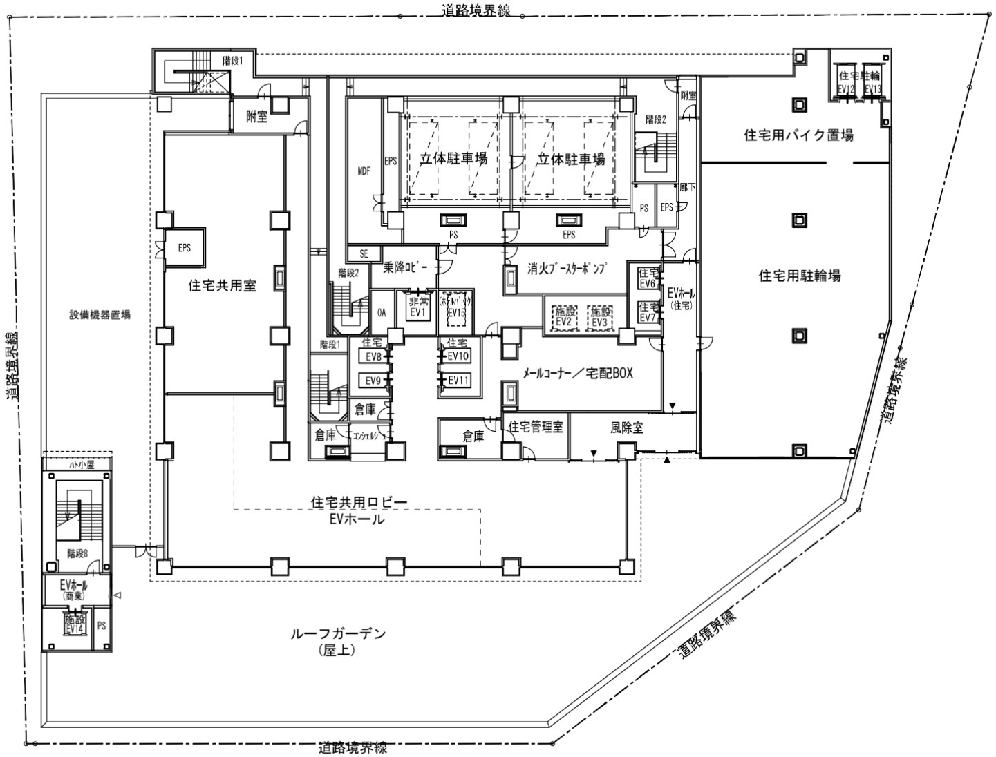
フロア構成


店舗スペースにスーパーマーケットやドラッグストア、各種医療クリニックが入ればエレベーターの移動だけで生活が完結してしまいそうです
横須賀中央駅前Yデッキ

Yデッキ建設予定地側

完成イメージ

続いて「若松町1丁目地区第一種市街地再開発事業 事業計画書(令和6年1月、若松町1丁目地区市街地再開発組合)」には、住宅の型、資金計画、各階の平面図などが記載されていますのでこれも見ていきます
住宅の型と面積概要

70㎡台前半の3LDKと50㎡台前半の2LDKの設定が多くなりそうです
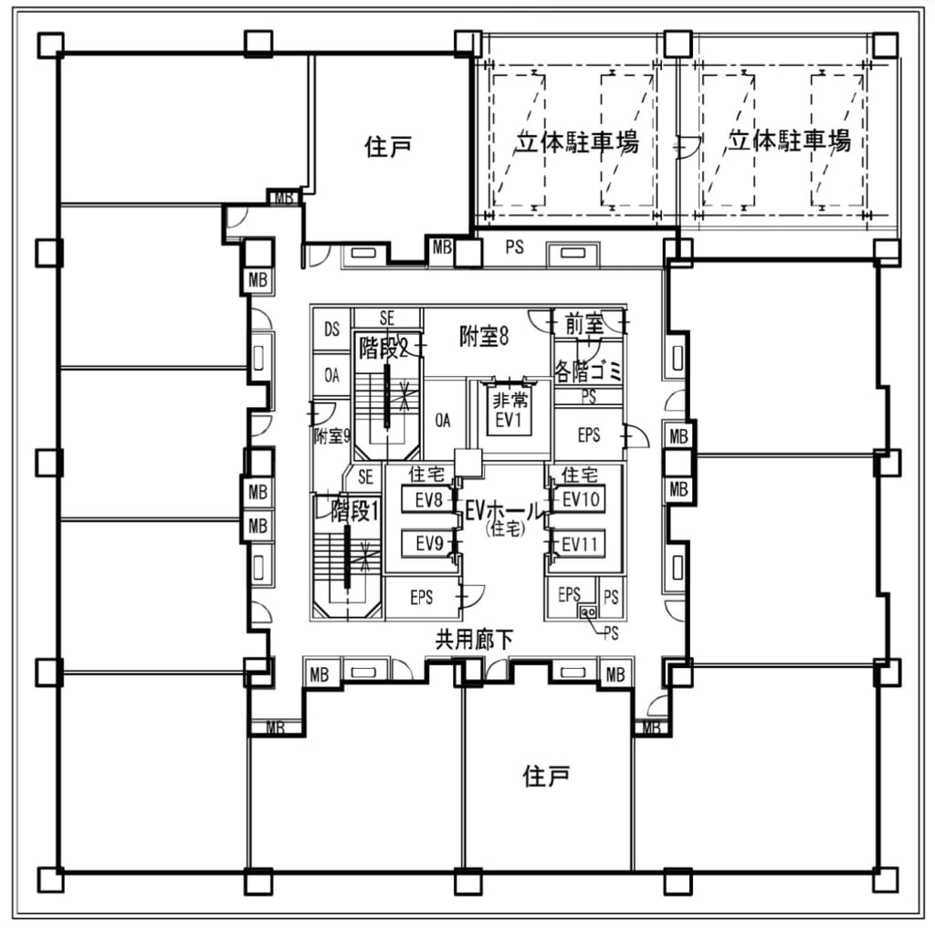
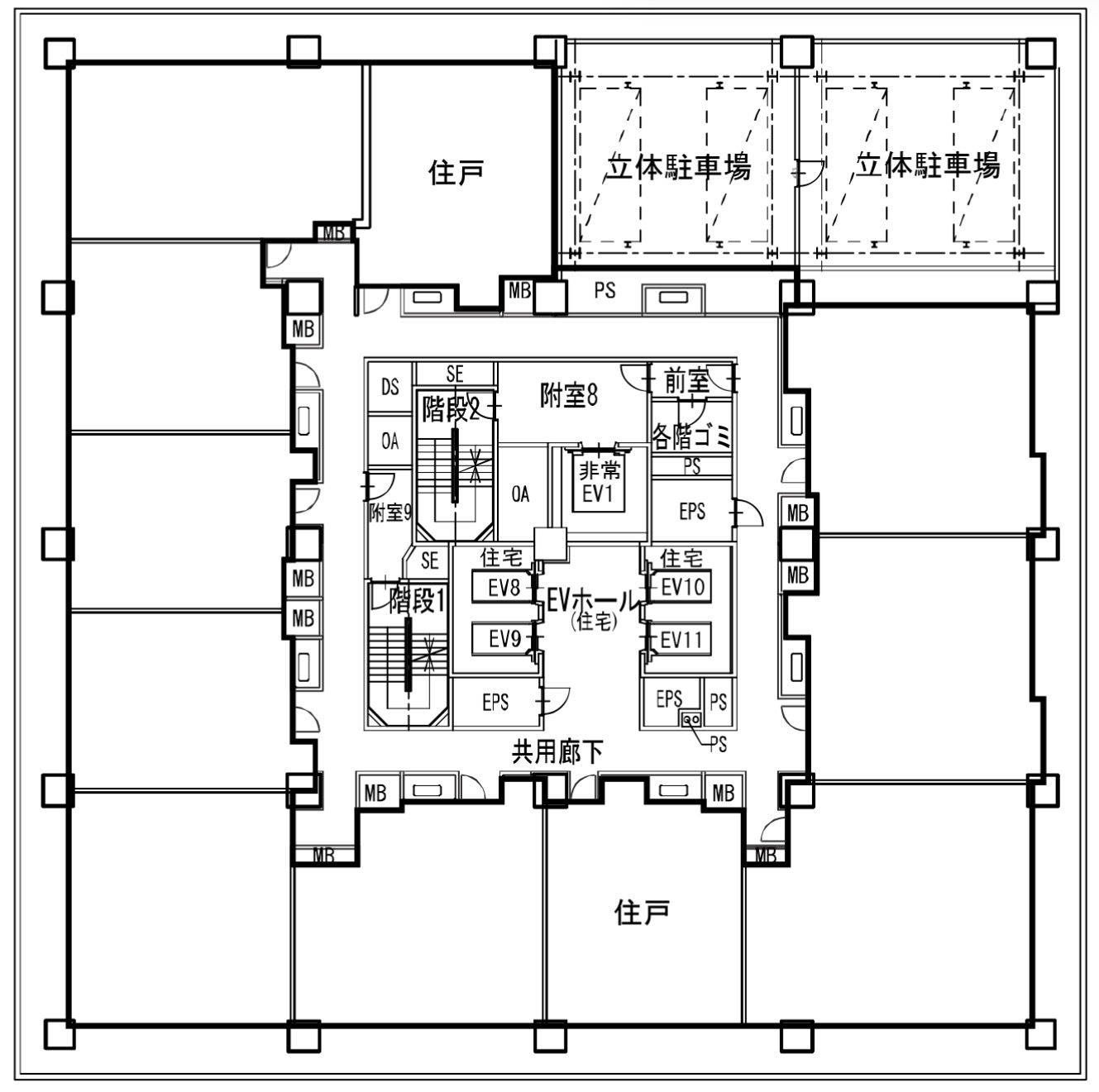
各階平面図
横須賀中央駅からの帰宅導線を確認してみましょう
・2階

Yデッキから住宅エントランスに入りエレベーターで5階に上がります
・5階

メールコーナー/宅配ボックスを通りエレベーターを乗り換えて11階以上の住戸フロアに上がります
5階で乗り換えるのは面倒に感じるかもしれません
・11〜14階

14階まで立体駐車場スペースがあります
・15〜19階

内廊下で各階ゴミ置き場ありと、タワマンらしい設計になっています
・20〜31階

各部屋への柱の食い込みが少なくきれいな間取りになりそうです
・32〜33階

プレミアムフロアの扱いになると思われ、広めの住戸が多くなっています
事業費と補助金の考察
先ほどの事業計画書には資金計画も掲載されています
24年時点での総事業費は304億円で、うち128億円を国や県、横須賀市の補助金でまかなう
とされていましたが、
資材高騰などの影響で総事業費を515億円とし、事業計画の変更申請をする見込みとのこと
補助金事業では販売価格に還元されるのではと期待できる一方で、まったく恩恵を感じられない物件も散見されますから、購入しやすい価格に期待しつつ慎重に判断したいですね
管理費修繕積立金には要注意
商業施設一体型の物件では建物全体のエレベーター数が多くなり、管理費が高額に設定されることがあります資産性の観点では販売価格が購入判断の重要な要素ですが、管理費修繕積立金など毎月の固定費が高額であると将来売却する際に不利になってしまいます
販売価格と同じくらい、毎月の固定費には注意が必要です
周辺中古マンション
既存タワーマンションを見ていきましょう
横須賀中央駅を出て周囲を見渡すと、2棟のタワーマンションが目に入りますザ・タワー横須賀中央(38階建て、2015年築、駅徒歩3分)
2025年現在の中古坪単価300万円(新築時坪190万円)
中心市街地に位置しており新築時より50%以上値上りしています
現時点の横須賀中央No.1物件と言っていいでしょう
サンコリーヌタワー横須賀中央駅前(26階建て、2015年築、駅徒歩2分)
2025年現在の中古坪単価210万円(新築時坪195万円)
こちらは坂上の裏手に位置していることから10%程度の値上りにとどまっています
2030年以降、ペデストリアンデッキ直結となる本事業で誕生するタワーマンションが横須賀中央駅のNo.1物件になることは間違いありません
横須賀市の人口減少データをどう考えるか
- 人口減少都市として上位に入る
- 坂が多く歩行や自転車での移動が不便

この点を理由に、本物件をネガティブに捉える方もいるかもしれません
ただし、不動産価格を考える際に重要なのは、「市全体の人口」ではなく、「どこに人が集約するか」という点です
人口減少局面では、
- 駅から遠い立地
- 中途半端な規模のマンション
本事業は
- 横須賀中央駅前
- 商業・ホテルを含む複合再開発
- 市の玄関口に位置する新ランドマーク
それでも本物件を「買わない方がいい人」
ここまで本物件をポジティブに解説してきましたが、すべての人におすすめできる物件ではありません以下に当てはまる方は、慎重に検討するか、他エリアも併せて比較したほうがよいでしょう
「人口増加エリアでの値上り」を最優先したい人
横須賀市は、将来的に人口が増加していく都市ではありませんから、
- エリア全体の上昇トレンドに乗りたい
- 都心部と同じような値上りを期待したい
本物件の評価は横須賀市の中でのものであり、都心エリアのような高騰を期待すると物足りないかもしれません
それでも本物件を「検討する価値がある人」
横須賀市の人口減少や、複合再開発ならではの注意点を踏まえたうえでも、なお検討する価値があるのは次のような考え方を持つ方です「横須賀という街」に魅力を感じる・住みたいと思える人
最後は、数字では測れない部分です
- 横須賀という街に地縁がある
- 海や観光地も近いこのエリアの中心地に住みたいと思える
- 軍港・商業が混在する街の雰囲気を受け入れられる
人は経済合理性だけで良し悪しを判断しませんからね
総評 評価が分かれるからこそ、検討する意味がある
本物件は、- 横須賀市という人口減少局面の都市
- その中でも駅前一等地の再開発
万人向けではありませんが、条件に合う人にとっては希少な存在でもあります
「自分はどちら側か」を整理したうえで検討する意味があるでしょう
今回の起工式に合わせて、2029年の竣工、2030年からの開業が正式発表となりました
販売開始は早くて2026年の後半から2027年になるでしょうか
いまから楽しみに待ちたいと思います
本物件は、将来的な住み替えや売却も視野に入れやすい資産価値・利便性を持っています
実際の売却では、価格だけでなく進め方も重要になるため、売り方を押さえておくと安心です
※筆者自身のマンション売却経験(囲い込みを実感した経緯や判断の迷い)を、個人ブログ側で整理しています
売る・売らないを決める前の参考情報としてまとめていますので、ご興味ある方はご覧ください
マンション売却で「囲い込み」を避けたい人が最初に知っておくべき判断軸(キウイ不動産ブログ)
この記事が皆さまのご参考になれば幸いです
最後までお読みいただきありがとうございました
[スムラボ編集部より] 本ブログ記事の情報は投稿日時点のものです。現在の販売情報は物件公式サイトをご参照下さい。
























記事にコメントする