こんにちは!たくすまです!
最近赤羽に行く機会があったため、今回は赤羽で予定されている下記2物件の比較を記事にさせていただきました。
ザ・パークハウス 赤羽台タワー&レジデンス
プラウドタワー赤羽
物件概要
| 物件名 | ザ・パークハウス 赤羽台タワー&レジデンス | プラウドタワー赤羽 |
| 売主 | 三菱地所レジデンス、住友商事、近鉄不動産、住商レジデンシャル | 野村不動産 |
| 施工会社 | 前田建設工業株式会社 | 前田・サムスン物産特定建設共同企業体 |
| 所在地 | 東京都北区赤羽台1丁目1番36他2筆(地番) | 東京都北区赤羽二丁目3番21、23(地番) |
| 最寄駅からの 徒歩分数 |
JR上野東京ライン、湘南新宿ライン、京浜東北線、埼京線、高崎線、宇都宮線、東北本線「赤羽」駅(西口)徒歩4分 東京メトロ南北線、埼玉高速鉄道「赤羽岩淵」駅(3番出口)徒歩9分 |
JR京浜東北線 「赤羽」駅 徒歩6分 JR埼京線 「赤羽」駅 徒歩6分 JR湘南新宿ライン 「赤羽」駅 徒歩6分 JR上野東京ライン(宇都宮線・高崎線) 「赤羽」駅 徒歩6分 東京メトロ南北線、埼玉高速鉄道 「赤羽岩淵」駅 徒歩8分 東京メトロ南北線 「志茂」駅 徒歩10分 |
| 総戸数 | 550戸(他に生活利便施設5区画、公共自転車置場1区画) | 325戸(募集対象外住戸20戸を含む) |
| 敷地面積 | 13,759.57m2(売買対象面積) 13,759.05m2(建築確認対象面積) |
5,097.72 m2(A敷地:4,388.76㎡、B敷地:708.96㎡) |
| 用途地域 | 用途地域:第一種住居地域・第一種中高層住居専用地域・近隣商業地域・商業地域 高度地区:第3種高度地区・第2種高度地区 防火地域:準防火地域・防火地域 |
商業地域 |
| 構造・規模 | 鉄筋コンクリート造一部鉄骨造・地上29階地下2階建 | 鉄筋コンクリート(一部鉄骨造)地上32階 地下1階建て 一部2階建て |
| 分譲後の権利形態 | 専有面積割合による所有権の共有 | 敷地:専有面積割合による所有権の共有。 建物専有部分:区分所有権。 |
| 建物竣工時期 | 2028年10月中旬(予定) | 2027年11月下旬(予定) |
| 引渡可能年月 | 2029年1月中旬(予定) | 2028年3月下旬(予定) |
| 販売開始予定時期 | 2026年5月中旬(予定) | 2026年7月中旬 (予定) |
| 掲示板 | ザ・パークハウス 赤羽台タワー&レジデンスってどうですか? | プラウドタワー赤羽ってどうですか? |
建物
ザ・パークハウス 赤羽台タワー&レジデンス








※上図はいずれもHPより引用
ザ・パークハウス 赤羽台タワー&レジデンスは、敷地面積が広いだけに開発の規模が大きくタワー棟、レジデンス棟と多様なニーズに応えてくれるプロジェクトとなっております。タワー棟、レジデンス棟の低層階であっても高台がゆえに眺望は抜けています。
また、自然を活かした開放感豊かな敷地はマンションに入る前からテンションを高めてくれる空間です。桜の木も植えられるため、桜が見れる季節は毎日の通学・通勤で癒しになるのは間違いなしです。
共用部にはスカイラウンジ以外にもワーキングラウンジやサウンドルーム、バーベキューも楽しめるデックラウンジなどもあるようです。
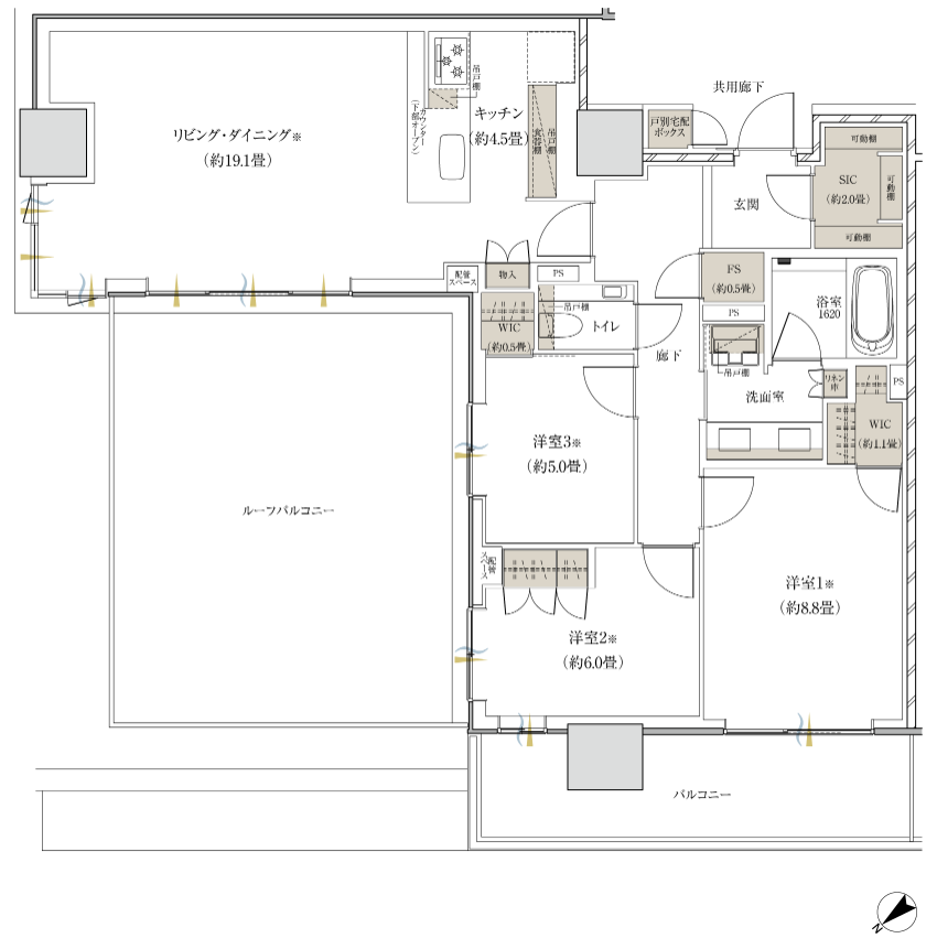
専有部の間取りは、どのプランも戸別宅配ボックスが設置されており、個人的にはかなり便利だと感じます。図面からは全体的に収納面も余裕があるように見えます。食器棚はプレミアムプラン以上でないと標準設置されませんが、プレミアムでなくともオプションで取り付けたいところです。プレミアムプランでは、ルーフバルコニーがあるのは気になります。予算的には手を出せそうにありませんが、いつかルーフバルコニー付の部屋に住んでみたいです。なお、角部屋を除く3LDKの間取りはリビング・ダイニングの窓が2面だけである点は個人的に物足りなさを感じます。
プラウドタワー赤羽








※上図はいずれもHPより引用
プラウドタワー赤羽は敷地面積こそ、ザ・パークハウス 赤羽台タワー&レジデンスよりは小さいですが、建物の外観は個人的にこちらの方が好みです。
マンションの真横にはスーパーマーケットもできるようで、日常的な買い物は大変便利だと思います。スーパーマーケットが敷地内にあるマンションは、雨の日や疲弊しているときなど、ふらっと行けてしまうので、個人的にはスカイラウンジなどの共有部よりも大変有難い存在だと感じています。
なお、共用部にはビューラウンジ、テラス、リーディングエリアなどがございます。
専有部の間取りはどのお部屋もワイドスパンとのことで、洋室の窓面も比較的大きく、リビング・ダイニング以外の洋室も景色が開放的になりやすい作りです。収納面はほんのちょっと物足りなさを感じてしまいます。(実際に完成したらあまり気にならない可能性もあります。)
周辺環境


※上図は各マンションHPより引用
各マンションの現地案内図から、JR赤羽駅の北改札口から西側に徒歩4分のところにあるのがザ・パークハウス 赤羽台タワー&レジデンス、同じくJR赤羽駅の北改札口から東側に徒歩6分のところにあるのがプラウドタワー赤羽となります。
どちらも基本的に生活利便性としては不便はあまりありませんが、飲み屋街から外れて落ち着いて過ごすことや日常的な買い物で便利なビビオやイトーヨーカドーがある点では、西口側のザ・パークハウス 赤羽台タワー&レジデンスが魅力的と考えられます。
一方、賑やかな飲食店が多く、また商店街や銀行、郵便局が近く、加えて小中学校や公園も近い点では東側にあるプラウドタワー赤羽と考えられます。
いずれもそれぞれの良さがあり単純比較することは難しいですが、最早どういう暮らしを過ごしたいかは好みの問題だと言えます。
夜の時間帯(19時台)にはなりますが、現地を歩いた写真も紹介させていただきます。
西側の周辺環境







西側は全体的に落ち着いている印象で、開発地の目の前にはバス停もあり、非常に便利な印象を受けました。敷地までであれば駅からもそう遠くはなく体感的には徒歩1-2分程度でした。高台とは言え坂も緩やかなため歩きやすいです。東側と比較して人通りが少なく、街灯があるとはいえ夜道が落ち着きすぎているのも考えようによっては少し不安に感じるかもしれません。
東側の周辺環境









東側は言わずもがな、人通りが多く賑やかです。商店街も明るいため夜道は光に照らされた道を通って帰宅することになるかと思います。なお、人通りは多く信号もあるためか、駅から開発地まで歩いた体感としては徒歩6分以上かかったようにも感じました。駅からは少し離れますが、賑やかで明るい道を歩ける点ではポジティブかもしれませんし、飲み屋街が近くにあるため道路が汚れにくい可能性もある点ではネガティブかもしれません。
まとめ
個人的に魅力だなと感じたポイントを比較しまとめてみました。〇:相対的に魅力、△:ドロー
| 物件名 | ザ・パークハウス 赤羽台タワー&レジデンス | プラウドタワー赤羽 |
| 開発規模 | 〇 | ー |
| 引渡までの期間 | ー | 〇 |
| 共有部の充実 | 〇 | ー |
| 専有部の充実 | △ | △ |
| 落ち着いた周辺環境 | 〇 | ー |
| 賑やかな周辺環境 | ー | 〇 |
| 日常的な買い物利便性 | △ | △ |
| 公園の近さ | ー | 〇 |
| 幼稚園・保育園の近さ | △ | △ |
| 小中学校の近さ | ー | 〇 |
本記事が少しでも物件検討にお役立ちできれば幸いです。
最後まで読んでくださりありがとうございました。
[スムラボ編集部より] 本ブログ記事の情報は投稿日時点のものです。現在の販売情報は物件公式サイトをご参照下さい。




















-125x125.webp)


記事にコメントする