未来の自分はどんな生活をしていたいですか?
『戸塚新呼吸』というキャッチコピーのように、これからの生活が豊かになっていくことが簡単に想像できるマンションの登場です。
駅からの道のりさえ飲めるのなら、価格も環境もアクセスも全てが一次取得の実需向け。これほどのおすすめマンションが今回紹介するHILLSIDE FOREST横浜戸塚です!
目次
物件概要
|
所在地 |
神奈川県横浜市戸塚区吉田町字上打越1623-1他(地番) |
|
交通 |
横浜市営地下鉄ブルーライン「戸塚」駅徒歩12分(フォレスト棟)、徒歩13分(ヒルサイド棟) JR東海道本線・横須賀線・湘南新宿ライン「戸塚」駅徒歩13分(フォレスト棟)、徒歩14分(ヒルサイド棟) |
|
総戸数 |
204戸 |
|
構造および階数 |
鉄筋コンクリート造 地上10階建 |
|
敷地面積 |
9,784.87㎡ |
|
建築面積 |
2,441.90㎡ |
|
建物延床面積 |
18,637.78㎡(容積対象面積:15,092.95㎡) |
|
用途地域 |
第一種中高層住居専用地域・準住居地域 高度地区/第一種中高層専用地域:第3種高度地区、準住居地域:第4種高度地区 準防火地域 |
|
建築確認番号 |
第JAIC2021X1309A1号(令和4年4月13日付) |
|
分譲後の権利形態 |
建物専有部分は区分所有権、敷地及び建物共用部分は専有面積割合による所有権の共有 |
|
管理形態 |
区分所有者全員により管理組合設立後、管理会社に委託予定 |
|
管理員の勤務形態 |
日勤管理 |
|
建物竣工時期 |
2023年10月中旬予定 |
|
引渡し時期 |
2023年12月中旬予定 |
|
売主 |
鹿島建設株式会社 |
|
売主 |
株式会社日立リアルエステートパートナーズ |
|
販売会社(代理) |
東急リバブル株式会社 |
|
設計・施工 |
鹿島建設株式会社 |
|
管理会社 |
株式会社東急コミュニティー |
|
駐車場 |
108台<機械式5段104台、平置4台(うち車いす使用者用1台、カーシェアリング用1台、荷捌き駐車スペース1台含む)>(月額使用料:10,500円〜23,000円) |
|
自転車置場 |
318台<2段ラック式318台(うちレンタサイクル用4台含む)>(月額使用料:200円・300円) |
|
バイク置場 |
5台(月額使用料:3,000円 |
Yossyview
ヒルサイドフォレスト。その名の通りに丘の上、そして隣には森がありめちゃ大きい公園も完成していきます。周りは築10~15年のマンションが建つ落ち着いた住宅地が広がっており、住宅環境は間違いなく高いです。
周りにそれだけ自然が広がっていながらも、都会の利便性もしっかりと享受できます。戸塚駅周辺には大型商業施設が4つもあり、日常のお買い物はもちろん休日のショッピングまで楽しめるでしょう。
さらにアクセスの部分で詳しく紹介しますが、横浜や都心の主要駅まで乗り換え無しで行けるという抜群のアクセス性を誇っています。
「都会だとうるさいし、自然すぎると便利じゃない、都会と自然の両方に近くしてくれ〜」という『がめつい』方々、都会と自然の境界に建つHILLSIDE FOREST横浜戸塚を見にくればええじゃないか。とyossyは思っています。
ナイスポイント
- 『都会×自然』両方とも妥協することの無い立地
- 『鹿島×日立』という巨大企業がタッグを組んだ物件
- バス停がかなり近く、ラッシュ時の本数も豊富
- ルーフバルコニー付の住戸があったり、プランが豊富に選べる
マイナスポイント
- 駅からの徒歩12〜14分の距離と物件前の長い坂道
- 駐車場が屋外機械式でと設置率が少ない
- 横浜や都心に向かう電車はかなり混雑している
総合成績
- 価格:★★★★☆
日立の保有していた土地で日立自身が売主のため、価格は抑えめになっている印象。徒歩13分と駅距離もあることで買いやすい価格に。 - 仕様・デザイン:★★☆☆☆
仕様やデザインの部分で際立ったような特徴は無いように思うが、必要な仕様や共用部分はしっかりと完備されている。デザインも白を基調とした安定感のある見た目。 - 周辺の街力・治安:★★★★☆
駅周辺に複数の商業施設や商店街もあり、かなりの賑わいがある。西側(物件と逆側)に居酒屋が多く並ぶエリアがあるが、治安は再開発などによって改善された。物件周辺は店舗が少ないが、治安が元々良いエリアにある。 - 防災・安全面:★★☆☆☆
駅周辺は柏尾川の氾濫により3.0~5.0mの浸水が予想されている。また駅南側を中心に内水のハザードもかかる。物件は丘の上にあるため水害のハザードはかかっていないが、土砂災害の警戒区域に入っている。 - 交通利便性:★★★★☆
横浜や都心への直通力、鎌倉や湘南エリアへもダイレクトアクセスで通勤にもレジャーにも利便性は高い。ただし都心への距離があることは否めない、山手線北側へはかなり時間を要する。 - 将来性:★★★☆☆
再開発もほぼ完了しており現時点でかなりの街力を持っている戸塚。今後めざましく発展していく可能性は低いが、長い間一定以上の評価は得られるだろう。
アクセス
物件から戸塚駅までのアクセス紹介
駅までは徒歩13分とめちゃ近い訳では無いですが、歩いても問題なく向かえる距離にあります。
ただマンションから駅へと続く道は長いくだり坂(帰りはのぼり坂)となっているために、夏場や悪天候時など歩くには少し気が引ける時もあるでしょう。
そこで便利なのがバス便です。エントランスを出て2分の場所に「日立和敬寮前」(当物件はこの寮の跡地です)というバス停があり、そこからバスで7分で戸塚駅へとアクセスが可能です。
特にラッシュ時は非常に本数も多くあり、平日7・8時台は合計46本。そして最短1分間隔でバスが到着します。
凄いですね1分間隔、yossyはあまりバスに乗る機会がないのですが首都圏では良くあることなのでしょうか?
「まだ前のバスがおるのに、後ろもう見えてるやん!」みたいなことになりそうですが笑
戸塚駅から主要駅へのアクセスを紹介
戸塚駅にはJR湘南新宿ライン、東海道線、横須賀線と横浜市営地下鉄ブルーラインが通っています。
このラインナップを見ていただいて既に分かる人は分かるでしょう。アクセス最強です。特にダイレクト(乗り換え無し)という面では非常に希少性のある駅でしょう。
Yossyの中でJR湘南新宿ラインと東海道線が停車する駅は、それだけで信頼度がぐんと上がります。
なぜなら湘南新宿ラインは山手線の西側、東海道線は東側を通って小田原・熱海方面から高崎・宇都宮までを1本で繋ぐ路線だからです。
そのため通勤時は
横浜(10分)
品川(28分)
東京(38分)
渋谷(39分)
新宿(46分)と全て乗り換え無しでアクセスが可能ですし、休日のレジャーにも大活躍をしてくれます。
また羽田空港まで乗り換え1回の34分、成田空港へは99分と少し時間はかかりますが成田エクスプレスを使うことで乗り換え無しでアクセスが可能です。
かなり便利な路線が通っている戸塚駅ですが、この便利さ故に混雑率がかなり高く最混雑区間になると200%近くにもなります。
これを回避する方法としてグリーン車という手もあるのですが、お金がかかる+グリーン車でも時間と区間によっては座れない時もあるので注意が必要です。
「グリーン券買ってまで座れへんなんて、、、恐ろしや」
外観・ロケーション
外観は白を基調として、余計な部分を削ぎ落したようなシンプルな顔立ちになっています。階高も10階建てと周囲から目立つほど高くはありません。
ですが丘の上に立つという特性から、開放感そして眺望は同じ高さのマンションと比べても段違いでしょう。
マンションの全体計画では空地率が75%を実現しており、非常にゆとりのある敷地となっています。
東側には機械式の駐車場が並んでおり車は北側の車路から入るようになり、住戸の眺望を邪魔することはありません。車用のピロティもしっかりと完備されております。西側の『シーズンアベニュー』という並木道には桜やモミジが彩りを加え、公園も2つ隣接しており、さらには中央の中庭『フォレストサイドガーデン』と北側の広場『ヒルサイドガーデン』というプライベートガーデンも2つ配置されています。
住戸棟は南側のフォレスト棟と北側のヒルサイド棟の二つに分かれており、どちらもL字型で住戸の向きは南向きと西向きの2通りが大体同じぐらいで配棟されています。
設備・仕様
共用部
鹿島建設が設計・施工を担当しており、その技術や美意識といったクオリティの部分は多くの人が安心、満足できるような造りになっています。
エントランスはL字の繋ぎ目部分にあります。木々に囲まれ、木製の扉に庇もあり温かみを感じられるような雰囲気です。
内部は1層でシンプルですが、白基調の壁と床が石造りで洗練された空間が広がっております。ただ縦には広い造りですが、幅が少し狭いような気がします。
共用施設はそれほど多くはありませんが、ヒルサイド棟の1階にガーデンに面した『コモンラウンジ』、その隣に『キッズスペース』があり遊んでいる子供たちを見守りながらラウンジで寛ぐことができます。
そしてテレワークにも便利な『パーソナルブース』も完備されているので、数は少ないながらも満足度はしっかり得られるでしょう。
中でもyossy1番お気に入りの共用施設がフォレスト棟の屋上にある『スカイビューデッキ』です。これは丘上にあるというHILLSIDE FOREST横浜戸塚の立地や強みを最大限に活かしてますよね!
ウッド調のデッキが敷き詰められたスペースでは広い空と緑の多さ、そして心地よい風を感じることができ「まさしく新(深)呼吸を体現したような場所やん!」と感激でした。
EVは各棟に2基ずつ配備されています。ゴミ捨て場はヒルサイド棟の東側にしかありませんが、ゴミ回収日の朝に玄関前に出しておけば業者の方が回収してくれるサービスがあるそうです。
さあ次は住居内部です!
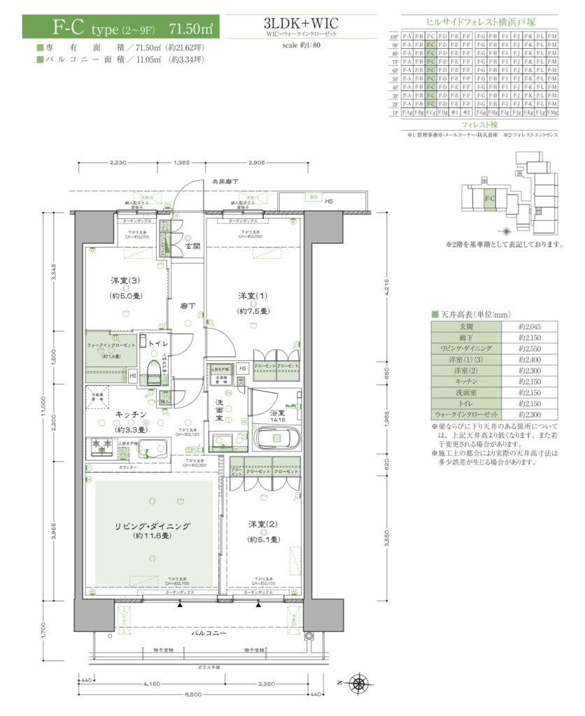
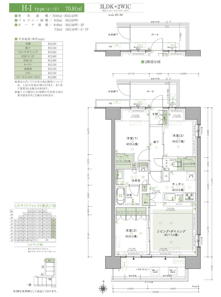
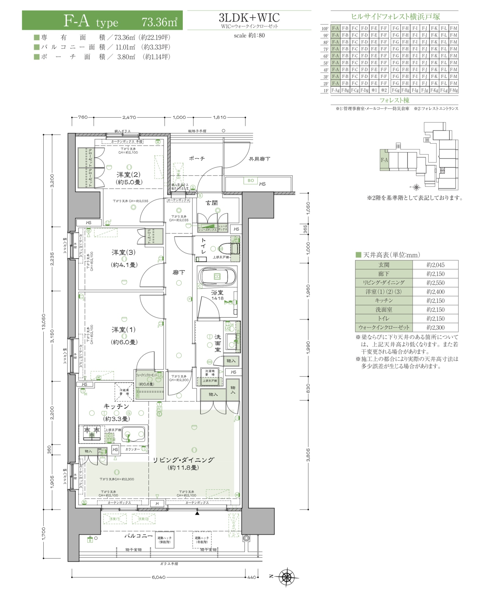
設備はディスポーザー、ローシルエットトイレ、手洗いカウンター、床暖房などが完備され、天井高はリビング・ダイニングが2550mm、洋室が2400mmで梁が内蔵されている構造で下がり天井が少ないために、この数字よりも広々とした空間を実現しています。
省エネを意識したエコジョーズや断熱・防音の壁、24時間換気システム、ALSOK管理のセキュリティシステム、日立グループならではのエレベーターテクノロジーなどと仕様もしっかりと入ります。
その他サービスとしてスマホ連携型のインターホン、クックパッドマート、宅配ロッカーの一体型郵便受け、カーシェア、レンタサイクルなどが取り入れられています。
周辺施設
物件の周辺
物件の周辺は同規模のマンション、南側の戸建エリア、そして東側は『舞岡ふるさとの森』という大きな森と現在整備中の敷地面積が12.6haにもなる『(仮称)舞岡町公園』に囲まれております。
この『(仮称)舞岡町公園』ですが多彩な広場や体験農場、スケボーパークなどが整備され、生活をより豊かにしてくれるでしょう。特にファミリー層にとっては休日の遊び場にもなる重要な存在です。
ただ物件近くにスーパーや薬局などの生活用品店は無く、1番近くても徒歩9分(約660m)ほどの距離にある『アピタ戸塚』まで行かなければなりません。
最寄りのコンビニもアピタ戸塚の手前にあるので、物件周辺の生活利便では少し見劣りする点があります。
戸塚駅の周辺
ただ駅周辺まで出てしまえば何でも揃います。アピタ戸塚には大型スーパーから薬局、100円ショップなどの暮らしを支える店舗を中心にファストフード店など合わせて42店舗(内飲食店4店舗)
駅東側直結には家電量販店のノジマからゴールドジムまでバラエティ豊かな店構えで、計75店舗(内飲食店11店舗)が入る『戸塚モディ』
西側に直結している東急ストアを中心とした無印良品や3coins、UNIQLOといったライフスタイルショップからクリニックや豊富な飲食店街まで計114店舗(内飲食店33店舗)を誇るエリア最大の商業施設『トツカーナモール』
さらにその奥にはニトリや西松屋、アルペンといった多様なニーズに対応できるような店舗を要する『サクラス戸塚』計29店舗(内飲食店2店舗)
などなど、駅周辺にはかなり充実した商業施設が立ち並んでいます。そのため仕事帰りなど、駅を使う時に寄って帰ってくるというような使い方には非常に便利でしょう。
その他にも区役所やりそな、三井住友、横浜銀行、郵便局などと日常的に使う施設も駅の周りではありますが充実しております。学校は東戸塚小学校が徒歩8分、舞岡中学校が徒歩17分という距離感です。
さて、ここで気になるのはやはり駅とマンションの間にある坂道ですよね。これだけ「駅周りはなんでもありまっせ」と言っておきながら、駅までを繋ぐ道のりの紹介をせずに終えるなんてことはできません。
マンションから駅までの1km間で坂道はその内約500mと半分ほどを占めています。体感的にも実質的にもけっこうな坂やなあ、と感じる人が多いと思います。
物件側の歩道はガードレールもありしっかりと整備されていますが、道沿いに木々も無いため日影が無く夏場はかなり大変でしょう。ベビーカーや荷物があると尚更でしょう。
マンションから出て坂を降りれば、商業施設が広がってきますので平坦な道のりになります。ただこの辺りまで来ると、人通りやバスを含めた車通りも多くなるので注意が必要ですね。
yossy的には自転車(電動は必須)をお勧めしたいと思います。商業施設をいくつかまわる際も便利ですし、駅周辺には駐輪場がかなり多くあります。
またファミリー世帯は休日に公園へと子供を乗せて行くこともでき、ヒルサイドフォレスト横浜戸塚×電動自転車は非常に便利な組み合わせではないでしょうか。
間取り・価格
ここからは間取りと価格を紹介していきます。フォレスト棟
南側にあるフォレスト棟は駅からも近く、眺望・採光に長けています。その分価格はヒルサイド棟に比べて高くはなります。1F 5100万円台 坪単価230万円
5F 5100万円台 坪単価230万円
9F 5700万円台 坪単価257万円
1F 4800万円台 坪単価222万円
5F 4800万円台 坪単価222万円
9F 5400万円台 坪単価250万円
1F 4400万円台 坪単価206万円
5F 4600万円台 坪単価216万円
9F 5100万円台 坪単価239万円
1F 6700万円台 坪単価268万円
5F 6900万円台 坪単価276万円
9F 7300万円台 坪単価292万円
1F 4800万円台 坪単価228万円
5F 5000万円台 坪単価237万円
9F 5300万円台 坪単価251万円
1F 5300万円台 坪単価242万円
5F 5400万円台 坪単価247万円
9F 5800万円台 坪単価265万円
1F 5400万円台 坪単価241万円
5F 5500万円台 坪単価245万円
9F 5900万円台 坪単価263万円
1F 5700万円台 坪単価237万円
5F 5900万円台 坪単価245万円
9F 6300万円台 坪単価262万円
ヒルサイド棟
ヒルサイド棟は駅から遠く、南側にあるぶん価格は安めに設定されています。またルーフバルコニー付の住戸はヒルサイド棟にしか無いため、ルーフバルコニー狙いの方は自ずとヒルサイド棟になります。
1F 5300万円台 坪単価239万円
5F 5300万円台 坪単価239万円
5F 4700万円台 坪単価226万円
9F 5600万円台 坪単価270万円(ルーフバルコニー付)
1F 4500万円台 坪単価227万円
5F 4500万円台 坪単価227万円
9F 5000万円台 坪単価252万円
2F 5000万円台 坪単価237万円
5F 5100万円台 坪単価242万円
9F 5600万円台 坪単価265万円
2F 4600万円台 坪単価215万円
5F 4900万円台 坪単価229万円
9F 5300万円台 坪単価247万円
2F 4800万円台 坪単価223万円
5F 5100万円台 坪単価237万円
9F 6300万円台 坪単価275万円(ルーフバルコニー付)
2F 4800万円台 坪単価224万円
5F 5200万円台 坪単価243万円
1Fは専用庭が付いているために価格が高くなっています。ルーフバルコニーはヒルサイド棟のB.C.D.G.Hの最上階に付いています。
販売予定価格は4400万円台〜で最多予定価格帯は5100万円台と価格は抑えめな印象です。
ルーフバルコニー付きの住戸は価格が張るものの非常におすすめできます!ヒルサイドフォレスト横浜戸塚の1番の売りが丘上の開放感ですから、ルーフバルコニーがあれば大満喫できることは間違いなし!
価格が張るといってもルーフバルコニーの部屋だけ特別広かったりする訳では無く、5000万台中盤から購入が可能になっているために全員が検討できる価格ではないでしょうか。
周辺相場
- ルネ横浜戸塚 築1年 平均坪単価約251万円
JR東海道線「戸塚駅」徒歩13分
横浜市営地下鉄ブルーライン「舞岡駅」徒歩29分 - ココテラス横浜戸塚ヒルトップウエスト 築7年 平均坪単価約185万円
横浜市営地下鉄ブルーライン「舞岡駅」徒歩10分
JR東海道線「戸塚駅」徒歩14分 - モデラピークス戸塚 築17年 坪単価約185万円
横浜市営地下鉄ブルーライン「舞岡駅」徒歩12分
JR東海道線「戸塚駅」徒歩13分 - 戸塚パークホームズヒルサイドレジデンス 築20年 平均坪単価約155万円
横浜市営地下鉄ブルーライン「舞岡駅」徒歩10分
JR東海道線「戸塚駅」徒歩13分
ルネ横浜戸塚以外は全て当物件周辺のマンションを選びました。1〜8まであるモデラピークスを筆頭に、この他にも多くのマンションが建っているエリアです。
周辺に多くのマンションがあるということは現在の相場感が分かりやすい、一気に値崩れしてしまうリスクが少ないというメリットがありますが、一方で売り出し時にライバルが多く高値で売れにくいというデメリットがあります。
物件自体に付加価値があればそのデメリットは解消されるでしょう。HILLSIDE FOREST横浜戸塚で言えばそれは南側の眺望と採光では無いかとyossyは考えます。
南側は吉田町大谷公園に隣接し、さらにその奥にも吉田町大日谷公園が広がっているためかなり開けた眺望を取ることが可能です。
たださらに奥には低い位置ではありますがマンションが建っているので予算が届くギリギリなら、値は張ってもフォレスト棟の南向き・上層階(5階より上)を強くおすすめします!
ただ低層階、ヒルサイド棟もパーク・ガーデンビュー、シーズンアベニュービューと緑を楽しめる眺望なので
「そこまで満足度が低い訳ではないで!!」ということはお伝えさせてください。
まとめ
日立が受け継いできた土地に鹿島の技術を掛け合わせて、豊かな生活を生み出してくれているHILLSIDE FOREST横浜戸塚。
価格も駅までの距離がある分、1次取得者には買いやすい価格に見えます。離れているぶん自然が周辺に豊富ですし、駅から距離があることを悲観する必要はないでしょう。
むしろ実需目的で長く住もうと考えている方達にはプラスだろうと考えます。都会の喧騒近くに住んでいると、仕事とプライベートの切り替えがしづらくなるでしょう。
だからこそ一定の距離を置いた自然の中に暮らして『新(深)呼吸』、そんでもって都会へもアクセスが可能というHILLSIDE FOREST横浜戸塚をぜひ楽しんでください!
最後まで読んでいただきありがとうございます!よろしければこちらもフォローお願いします!スムラボ記事
記事に出てきた物件の掲示板
- モデラ・ピークス戸塚(検討スレ) | (まとめ)
- ココテラス横濱戸塚ヒルトップ(検討スレ) | (住民スレ) | (まとめ)
- HILLSIDE FOREST 横浜戸塚(検討スレ) | (住民スレ) | (まとめ) | (スムラボ)
- ルネ横浜戸塚(検討スレ) | (住民スレ) | (まとめ) | (スムレビ)
- 戸塚パークホームズヒルサイドレジデンス(住民スレ)

































































記事にコメントする