いつも記事をご覧いただき大変ありがとうございます! 目次
今回は、12月の気になるマンションということで、東京の西側エリアの注目物件の紹介をさせていただければと思います!
予想価格の考察もしておりますので、最後までご覧いただけますと幸いです。
それではどうぞ!
クリオ石神井公園ザ・グラン
新発表!待ってました!
— むさしのマンション (@mansion634no) December 5, 2025
【クリオ石神井公園ザ・グラン】
<注目ポイント>
・「石神井公園」駅徒歩4分の好立地!
・駅近ながら、5階建・66戸と規模感のある低層レジデンス!
・平均専有面積93m2超と広専有中心のプラン
・駐車場設置率47%、オール平置き駐車場!(自走式地下駐車場)… pic.twitter.com/HM1lU3A92F
物件概要
所在地:東京都練馬区石神井町一丁目1341番1、他(地番)交通:西武池袋線「石神井公園」駅徒歩4分
規模:地上5階、地下1階、66戸(住戸65戸・管理事務室1戸)
敷地面積:3,119.81m2(登記簿)、3,121.66m2(実測)、2,933.77m2(建築確認対象敷地面積)
竣工時期:2028年3月下旬
入居時期:2028年3月下旬
売主:明和地所株式会社
管理会社:明和地所コミュニティ株式会社 本店営業部
施工会社:未定
駐車場:敷地内および建物内に32台設置(平置式31台、車いす使用者優先契約駐車場1台)<月額使用料/未定>、他に一時停車スペース1台
自転車置場:敷地内に67台設置<月額使用料/未定>
バイク置き場:敷地内に8台設置<月額使用料/未定>
掲示板:クリオ石神井公園グランってどうですか
地図はこちらです。
いや~待望のクリオ石神井公園、遂にHPが公開されてテンション上がりまくりです!施工会社が恐らく一度決まってから降りた(?)ためか未定なので、パースなど建物の外観がわかる画像は全くありませんが、プランや有償・無償オプションなどが紹介されています!
注目ポイント
その1:立地西武池袋線「石神井公園」駅が最寄りの物件です。石神井公園駅のアクセスについて少しご紹介します。
石神井公園駅は西武池袋線の主要駅のうちの一つで、急行停車駅です。石神井公園からは池袋駅まで直通の急行で12分、練馬駅に停車する準急で12分、各駅停車で19分です。新宿へは池袋で山手線へ乗り換え22分~30分です。特に池袋方面へ通勤の方にはアクセスが良い駅ですね!
石神井公園駅周辺については、駅前より石神井公園沿いに行くほど高級住宅街になっています。なかでも石神井町六丁目が最も豪邸の多い場所です。石神井池の見える公園沿いは道路が石畳に整備され、景観が整っていて美しいですね。
そんな石神井六丁目エリアにはプレミアムなマンションも立ち並びます。
▼ザ・パークハウス石神井町六丁目(石神井公園駅徒歩6分、2012年築)
▼グランドメゾン石神井公園パークフロント(石神井公園駅徒歩7分、2005年築)
本件はそんな六丁目ではないものの、公園にも駅にも近く非常にバランスの取れた好立地です。
本件の南側には練馬区立和田堀公園が隣接しており、石神井公園までも徒歩3分。緑溢れる静かな立地ですが、駅徒歩4分とアクセスや駅前の商業施設も利用できる利便性もバッチリな立地です。
9月に現地調査に行った時の写真です!
— むさしのマンション (@mansion634no) December 6, 2025
高低差がありますが、敷地面積3,000m2超えととても広く感じました!
南には和田堀公園があり、低層でも抜け感のある眺望が期待できます! pic.twitter.com/wmg0bYPJFp
その2:駅近なのに…ここが良い!
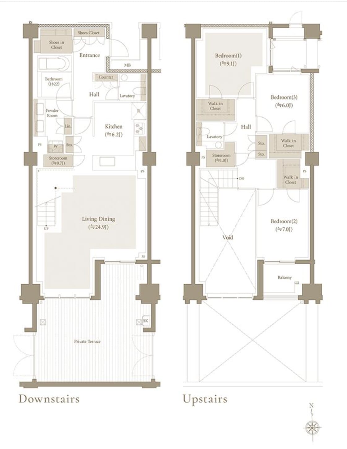
駅近ながらも5階建・66戸と規模感のある低層レジデンスです。
駐車場台数は32台、駐車場設置率は駅近物件にしては高く、47%です!オール平置き駐車場(自走式地下駐車場)なのもポイントですね!
地下駐車場は雨風に晒されず、セキュリティ面でも地上より安心です。
その3:個性的な広い間取り
平均専有面積93㎡超と広い専有面積中心のプラン構成になっています。
▼Dタイプ 西向き 81.55㎡
▼Fタイプ 南向き 3LDK 101.20㎡
▼Hタイプ 南向き 3LDK 121.46㎡
▼Sタイプ(プレミアムプラン) 南向き 3LDK 163.56㎡
とにかくワイドスパンで特徴的な間取りが多いですね!
石神井公園では直近で新築の供給が多くなっていますが、このゆとりあるプラン構成は他物件と差別化になるポイントになっています。
価格予想
予想価格ですが、坪680~700万程度と予想します。石神井公園は駅前の再開発も控えており、新築マンションラッシュです。
販売中の新築マンションはこちら
【クレヴィア石神井公園】
所在地:東京都練馬区石神井町二丁目1363番5(地番)
アクセス:西武池袋線「石神井公園」駅 徒歩3分
規模:83戸
竣工時期:2026年10月下旬(予定)
引き渡し時期:2026年11月下旬(予定)
平均坪単価約580万程度
【ピアース石神井公園】
所在地:東京都練馬区石神井町3丁目927番2外(地名地番)
アクセス:西武池袋線「石神井公園」駅徒歩6分
規模:42戸(他に管理員室1戸あり)
竣工時期:2026年12月下旬
引き渡し時期:2027年1月下旬
平均坪単価約620万程度
ピアースよりも立地・商品力とも勝っているので、価格帯も大きく上回る水準と考えられます。さすがに平均では坪700万いかない価格帯かと予想しますが、駅前再開発を前に石神井公園の新価格になることは間違いないですね…!
専有面積が広いので、とんでもないグロス価格になってしまいそうです!
プレミスト代沢Hillside Forest
新発表!
— むさしのマンション (@mansion634no) December 10, 2025
【プレミスト代沢Hillside Forest】
<注目ポイント>
・「下北沢」駅徒歩15分、代沢四丁目アドレスの好立地!
・第一種低層住居専用地域の高台に4階建46戸の低層レジデンス!
・「恵那錆石」を基壇部や外塀、共用部の壁面に使用し、圧倒的な重厚感を演出!… pic.twitter.com/6ffTP0ZvXp
物件概要
所在地:東京都世田谷区代沢四丁目254番1(地番)交通:小田急電鉄小田原線「下北沢」駅まで徒歩15分、京王電鉄井の頭線「下北沢」駅まで徒歩16分、京王電鉄井の頭線「池ノ上」駅まで徒歩14分
敷地面積:3,300.49m2
規模:地上4階建(建築基準法上は地上3階地下1階建)、46戸
駐車場:34台/40,000円~45,000円 地下水平循環式:34台
自転車置場:48台/600円~3,000円 平置:9台、スライドラック式:39台
建物竣工時期:2027年9月(予定)
入居予定時期:2027年9月(予定)
売主:大和ハウス工業株式会社
管理会社:大和ライフネクスト株式会社
掲示板:プレミスト代沢Hillside Forestってどうですか
地図はこちらです。
突然ですが、「代沢」という地名、なんだか、「代田」と下北沢の「北沢」を合わせたような地名だな~なんて思って調べたら正解でした笑…さて、気を取り直していきましょうッ。
注目ポイント
その1:下北沢徒歩15分、代沢四丁目アドレスの好立地代沢はかつて清風園と呼ばれる佐藤栄作や竹下登など大物政治家たちが住む高級住宅街として知られている地で、渋谷の「松濤園」、代々木上原の「大山園」と並ぶ由緒ある三大高級住宅街のひとつです。
高級住宅街に共通することって高台に位置することなんですよね。代沢は世田谷区の中でも高台の位置にあります。さらに筑波大付属中高や東京大学も近く、偏差値的にも最高峰といえる文教エリアでもあります。
清風園と呼ばれた場所は代沢3丁目が中心ですが、本件もその雰囲気が残る品のある閑静な住宅地です。
そして、一低層地域の高台に4階建46戸の高級感溢れる低層レジデンスが現れます。
下北沢まで徒歩15分ですが、ここを購入する層は車移動がメインなのであまり駅距離は重要視していないでしょう。駐車場設置率は34台/46戸で約74%です。このマンションのターゲット層は車利用が多いと予想されるため、駐車場設置率も高くなっています。むしろ抽選が外れたら厄介ですね。
ちなみに地下水平循環式駐車場とは、一般的なタワーパーキングや機械式駐車場より空間効率や入出庫の効率の良い、地下の機械式駐車場です。
その2:恵那錆石を基壇部・外塀・共用部の壁面に使い、圧倒的な重厚感を演出
恵那錆石とは恵那地方で採れる赤みを帯びた御影石の一種です。大理石のように派手さはありませんが、わかる人にはわかる、そんな奥ゆかしい品の良さを感じられる石が外構にふんだんに使用されています。この重厚感と高級感たるや…。
570本もの木々が植えられ、プライバシーへの配慮と森の中にいるような潤いを感じられるランドスケープになっています。
その3:メゾネット、ルーフテラス、プライベートテラスなど個性ある多彩なプラン
▼B1タイプ (メゾネットタイプ) 南向き1階 3LDK 141.82㎡
▼Fタイプ 北向き 3LDK 80.73㎡
▼Tタイプ (ルーフテラスタイプ) 南向き4階 3LDK 119.44㎡
こんな物件を見たときに出るひとこと、「とんでもねえ・・・」
そうそう、マンション全然知らない人って「何LDKに住んでるの?」とか聞いてきますけど、僕の家も3LDKですし、B1タイプも3LDKなんですよね。何なんでしょう、愚問です。
価格予想
さてさて、本件の予想価格ですが、平均坪単価950万~1000万程度と予想します。それにしても非常に価格予想が難しいです。周辺に近しいアドレスの新築マンションがありませんし、中古事例もほとんどありません…。【ディアナコート東北沢リビオ】
所在地:東京都世田谷北沢一丁目
交通アクセス:小田急小田原線「東北沢」駅 徒歩1分
京王井の頭線「池ノ上」駅 徒歩7分
京王井の頭線・小田急小田原線「下北沢」駅東口 徒歩9分
小田急小田原線・東京メトロ千代田線「代々木上原」駅西口 徒歩12分
総戸数:23戸
竣工:2025年3月竣工済み、完売
平均坪単価約859万
【グランレジェイド三宿通り】
所在地:東京都世田谷区池尻一丁目1番72、5番1(地番)
交通アクセス:東急田園都市線「池尻大橋」駅徒歩14分、「三軒茶屋」駅徒歩14分、
東急東横線「祐天寺」駅徒歩18分
総戸数:10戸(会員優先分譲住戸5戸含む)
竣工:2026年2月予定、完売
平均坪単価約792万
▼近しいアドレスの中古物件です。
【ディアナコート代沢翠景】
所在地:東京都世田谷区代沢二丁目
交通アクセス:京王井の頭線池ノ上徒歩6分
築年:2014年3月(築11年)
2025年11月に坪728万で成約。
▼代沢と並ぶ高級住宅街である大山に位置する二物件の価格も見ていきましょう。
【プレミスト代々木大山】
所在地:東京都渋谷区大山町1050番10(地番)
交通アクセス:小田急電鉄小田原線「東北沢」駅徒歩6分、小田急電鉄小田原線「代々木上原」駅徒歩8分、東京メトロ千代田線「代々木上原」駅徒歩8分
竣工予定:2026年1月(予定)
平均坪単価:約1062万
【ザ・パークハウス代々木大山】
所在地:東京都渋谷区大山町1067-207他2筆(地番)
交通アクセス:東京メトロ千代田線 「代々木上原」駅 徒歩7分
竣工予定:2026年4月(予定)
平均坪単価:約1044万
駅距離はありますが、ディアナコートよりは高いでしょうね、、
エリアは異なりますが、さすがに標準的なプランは代々木大山よりは低い水準の予想です。いやーここまでスペシャルな物件は本当にわからないですね。笑
パークホームズ東高円寺
新発表!
— むさしのマンション (@mansion634no) December 15, 2025
【パークホームズ東高円寺】
東高円寺のオオゼキ跡地来ました!
<注目ポイント>
・丸ノ内線「東高円寺」駅徒歩3分!
・蚕糸の森公園3分、スーパーや小中学校も近く、周辺環境充実🌳
・商店街の交差する角地正面に豪快なダイレクトウィンドウを持ってくる大胆なデザイン!… pic.twitter.com/54x7BiyOJj
物件概要
所在地:東京都杉並区高円寺南1丁目454番7~15、19~20(地番)交通:東京メトロ丸ノ内線「東高円寺」駅徒歩3分
敷地面積:1,108.41㎡
建築面積:779.99㎡㎡
延べ面積:3,291.32㎡
規模:地上5階建、39戸(一般販売対象戸数31戸)
駐車場:総戸数 39戸 に対して 敷地内平面 5台(内1台は身障者用駐車場、1台は一般販売対象外住戸に附設)
自転車置場:総戸数 39戸 に対して50台
建物竣工時期:2027年3月下旬竣工予定
入居予定時期:2027年4月下旬入居予定
売主:三井不動産レジデンシャル株式会社
施工:株式会社興建社
掲示板:パークホームズ東高円寺ってどうですか
地図はこちらです。
注目ポイント
その1:「アクセス・住環境良好」東京メトロ丸ノ内線「東高円寺」駅徒歩3分、加えて中央線の中野駅まで徒歩13分です。東高円寺駅周辺エリアはもちろん、中野駅周辺の施設も使いこなすことができます。
緑豊かな蚕糸の森公園まで徒歩3分です。中野セントラルパーク内の中野四季の森公園は、中野での買い物ついでに自然を感じられるスポットです。
買い物の選択肢豊富!ミニスーパーが徒歩5分圏内に複数あります。徒歩8分にスーパー三徳や東高円寺通り商店街は徒歩1分と買い物の幅が広がりますね!通学区の杉並第三小学校徒歩3分、高南中学校徒歩6分という近さに親も安心できます。
その2:「大胆デザイン」
商店街の交差する角地正面に豪快なダイレクトウインドウを持ってくるという大胆なデザインです!
その3:さすが三井!と思わせる高仕様
エントランスコリドーやラウンジのデザインにもこだわりを感じます。特にラウンジを支える中央の大きな柱が、1本の枝を広げる木のようにデザインされています。
仕様設備に関しては、内廊下、玄関前各戸宅配ボックス、各階ごみ置き場とタワーマンションのような高仕様です!39戸と少規模ながらも、しっかり特徴付けしてくるところはさすが三井だなと思います。
価格予想
本件の予想価格ですが、平均坪単価 710~730万と予想します。以下、ベンチマークとした新築マンションです。
【【レジデンシャル高円寺】
所在地:東京都杉並区高円寺南四丁目4番13、他(地番)
交通アクセス:JR中央線「高円寺」駅徒歩5分、東京メトロ丸ノ内線「新高円寺」駅徒歩9分
規模:総戸数23戸
竣工予定:2026年3月予定
引渡し予定:2026年3月予定
平均坪単価約696万
【サンウッド荻窪】
所在地:東京都杉並区荻窪4丁目
交通アクセス:JR中央線荻窪駅・丸ノ内線 徒歩7分
規模:19戸
竣工:2026年1月中旬(予定)
引渡し:2026年2月下旬(予定)
平均坪単価約713万
中央線を利用できる上記2物件の方が立地としては強いですが、三井分譲・高仕様を考慮して、上記2物件より少し高い価格帯の予想です。
HPのイメージモデルが30台共働き夫婦、小さい子供ありなので、仮に70㎡台3LDKの部屋を購入すると、約1.5億。最低でも世帯年収1400万は必要です。この層が、23区内×都心部へのアクセス良さ×駅近で購入できるギリギリラインの物件ということでしょうか。
デザインや設備も魅力があるので、高年収の感度の高いファミリー層に刺さりそうな商品力ですね!
今回の記事はここまでです。
今後もむさしの的オススメできる最新のマンション情報を定期的に発信していきます!また、最近開始したプレミアム記事では、むさしのイチオシの狙い目住戸、むさしのマンションのちょっとプライベートなお話など、よりディープに楽しんでいただける記事も執筆していますので、よろしければ覗いてみてくださいね。
個別相談も承っています。
それでは、本日も最後までお付き合いいただきありがとうございました!また次回の記事でお会いしましょう!















































記事にコメントする