今回取り上げるのは、パークコート麻布十番東京ザ タワーです。
本物件の情報は早くから公開されていましたが、ついにこの3月からモデルルーム案内が開始されています。
4月上旬に訪問できたものの、環境の変化などでバタバタしており、既に4月末とご無沙汰となってしまいました。
それにしても本物件のモデルルーム予約方式は厳しいですね。開放は都度発生しているものの、メール通知などが無いために予約自体が困難なものとなっています。
目次
物件概要
- 所在地:東京都港区三田一丁目3番(地番)
- 交通:都営地下鉄大江戸線・東京メトロ南北線「麻布十番」駅徒歩2分、都営地下鉄大江戸線「赤羽橋」駅 徒歩8分
- 総戸数:1342戸(一般販売対象戸数762戸)
ノース695戸(一般販売対象戸数480戸)、サウス507戸(一般販売対象戸数282戸)、サウステラス(一般非分譲棟)140戸 - 入居時期:ノース:2030年6月下旬入居予定、サウス:2029年10月下旬入居予定
- 構造・階数:ノース:鉄筋コンクリート造(一部鉄骨造)地上42階地下1階建、サウス:鉄筋コンクリート造(一部鉄骨造)地上31階地下1階建
- 敷地面積:20,436.73㎡
- 建築面積:ノース:5,683.62㎡、サウス:5,026.19㎡
- 延床面積:ノース:106,838.03㎡、サウス:71,082.86㎡
- 竣工時期:ノース:2030年3月下旬(予定)、サウス:2029年7月下旬(予定)
- 入居時期:ノース:2030年6月下旬(予定)、サウス:2029年10月下旬(予定)
- 分譲後の権利形態:敷地は共有、建物は区分所有
- 用途地域:第二種住居地域、近隣商業地域
- 施工会社:ノース:戸田建設株式会社、サウス:大成建設株式会社
- 管理会社:三井不動産レジデンシャルサービス株式会社
周辺環境
都営地下鉄大江戸線と東京メトロ南北線「麻布十番」駅まで徒歩2分です。麻布十番という超都心部、かつ駅至近である希少な立地となります。
現在は囲いがされており、広大な敷地であることが伺えます。
敷地の西側には首都高目黒線が位置しており、交通量が多い高速です。東側はパークコート麻布十番東京ザ・タワー(36階建て)やその先には三田ガーデンヒルズが位置し、南側には大使館もある落ち着いた街並みを有しています。
建物概要
外観・共有部
トライスター型のノースが42階建て695戸、サウスが31建て507戸、非分譲棟のサウステラスが16階建て140戸の合計で1342戸となります。また、ノース北側には地上8階の業務棟も建設されます。
駐車場はノース:機械式256台、平面式10台、サウス:機械式190台、平面式4台です。
機械式のサイズは全長5300mm、全幅2050mm。料金は50000~58000円台と高額ですが、周辺から比較すれば十分抑えられている水準です。僅かではありますが、平面駐車場もあります。
共有部
- ノース
ルーフトップテラス R階
スカイラウンジ、キュレーションレストラン 34、35階
ミュージックラウンジ 2階
フィットネスルーム 2階
ゲストルーム 2階
ランドリーラウンジ 2階
キッズルーム 2階
グランドラウンジ 1階
パティオパーティルーム 1階
プライベートガーデン 1階
ミーティングルーム 1階
ワークブース 1階
サウンドスタジオ B1階
ゴルフルーム B1階
応接室(40-42階の居住者・来訪者のみ) - サウス
パーティルーム&テラス 2階
スパ&サウナ 2階
ランドリーラウンジ 2階
ゴルフルーム 2階
ゲストルーム 2室 28階
スクリーンパーティルーム 2階
キッズルーム 2階
フィットネスルーム 2階
メディテーションルーム 2階
グランドラウンジ 1階
ガーデンラウンジ 1階
ワークブース 1階
応接室(31階の居住者・来訪者のみ)
一部ノースとサウスで類似施設がありますが、相互利用可能とのことでした。
ラウンジではカフェやアルコールの提供もあるそうです。
なお、屋上のルーフトップテラスは、飲酒は不可であり、眺望を楽しむ空間とのことでした。
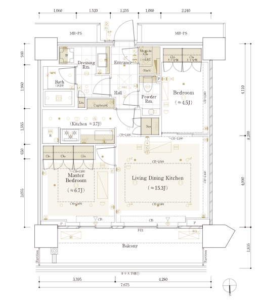
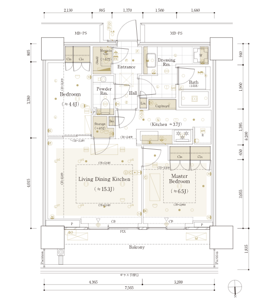
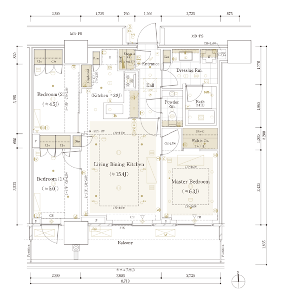
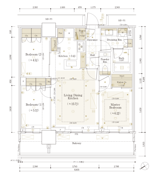
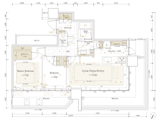
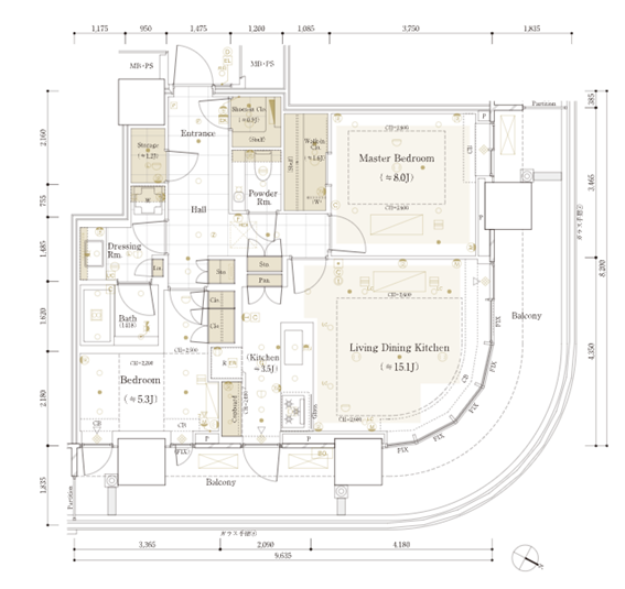
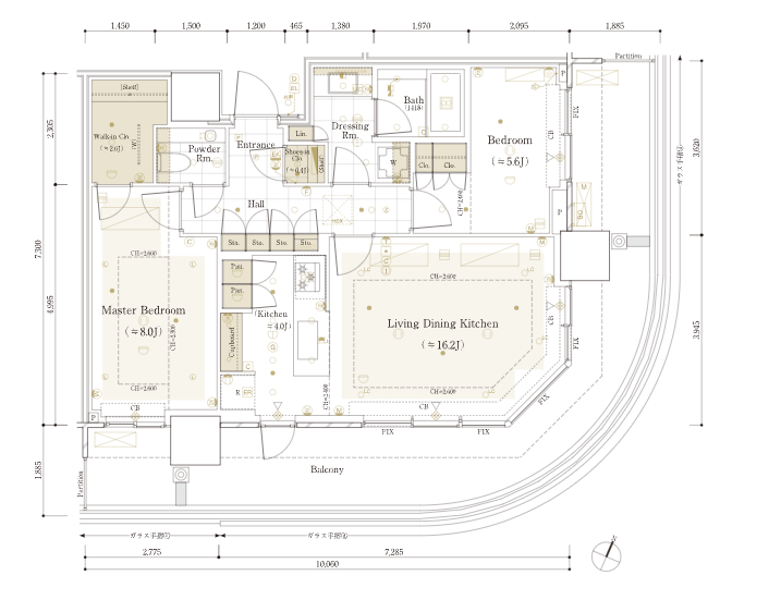
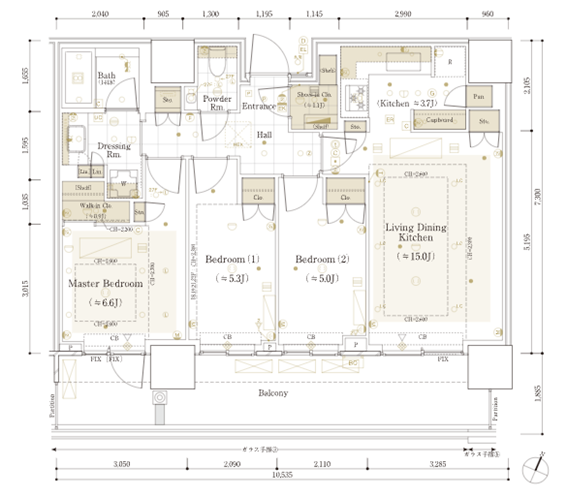
専有部
基本天井高は2800mm。リビングと主寝室は天カセ、全熱交換器採用です。
ノースとサウス、どちらも設備などは同様とのことでした。
眺望
ノースの場合、高層階であれば遮るものは殆どなく都心にいながらも素晴らしい眺望となります。北側は東京タワーが位置しています。
南側にはサウスが位置しており、距離もそこまで離れていないため、被り感は結構ありました。なお、サウスは31階建てのため、高層階になれば抜けてきます。南東の高層階であれば東京湾が見えることに驚きがありました。
西側には首都高があり、その先にもビルが建っていることから、16階程度からは抜けてくる印象です。
サウスの眺望については、北側にノースがあり大きく影響を受けます。
また南東側にサウステラス(一般非分譲棟)があり、こちらはかなり距離が近くなっています。サウステラスを抜けた先は、三田ガーデンヒルズが見え、緑も見える良好な眺望が広がっています。
西側についてはノースと同様16階程度からは抜けてくる印象です。
30階 北東の眺望
価格考察
訪問した4月上旬時点では、まだ価格の大半がクローズとなっていましたが、今期の販売戸数は多くなりそうとのことでした。本物件は多数の間取りがあるため、60~70㎡の一例を掲載しています。階数による価格差は大きい様で、掲載の価格は予定のため変更とる場合があります。
(ノーズ)E61s 61.66㎡ 2LDK
3~8階 27000万円~ 坪1445万円~

(ノーズ)E62An 62.93㎡ 2LDK
20~25階 38000万円~ 坪1992万円~

(ノーズ)E62Bn 62.03㎡ 2LDK
20~23階 38000万円~ 坪2021万円~

(ノーズ)E72s 72.04㎡ 3LDK
19~23階 33000万円~ 坪1511万円~

(ノーズ)N72sw 72.28㎡ 3LDK
21~31階 38000万円~ 坪1734万円~

(ノーズ)S72Bnw 72.44㎡ 3LDK
3~20階 31000万円~ 坪1412万円~

(ノーズ)N71nw 71.36㎡ 2LDK
12~19階 38000万円~ 坪1757万円~

(ノーズ)N72nw 72.44㎡ 2LDK
17~20階 52000万円~ 坪2368万円~

(サウス)71e 71.74㎡ 2LDK
13~15階 33000万円~ 坪1517万円~

(サウス)72se 72.20㎡ 3LDK
16~26階 34000万円~ 坪1554万円~

(サウス)75se 75.40㎡ 3LDK
18~27階 42000万円~ 坪1838万円~

(サウス)79s 79.46㎡ 3LDK
17~20階 45000万円~ 坪1868万円~

今期は60㎡以上の販売であり、2LDKが26000万円台~、3LDKが33000万円台~ですが、この価格帯はいずれも眺望に難があります。特にサウス71eについては、坪単価1500万円程度の角部屋と価格面では好条件ですが、サウステラスと強烈に被ります。
条件が良い東京タワーが望める部屋は、2LDKで38000万円台~、3LDKで52000台~となります。
最近は眺望による価格差が広まっていましたが、本物件も同様で、この価格帯で5割の乖離は強烈なものがあります。
管理費は614円、修繕積立金は180円、合わせて794円です。
近隣で同じく多彩な施設を有する三田ガーデンヒルズよりだいぶ抑えられていますが、湾岸物件と比較するとやはり高額ですね。
スマイルポイント(個人的なポイント)
良いと感じる点
- 充実度MAXの共有施設
施設が多いだけでなく、パークコートならではの映えがあり、強烈に惹きつけられるものがあります。
目玉はキュレーションレストランとスカイラウンジでしょうか。
スカイラウンジは東京タワーが見える2層吹き抜けの至高の空間です。スパ&サウナがあるのも率直に羨ましいです。 - 豊かな植栽
現地からは想像ができないのですが、ランドスケープを生かした豊かな植栽が配置されます。
「都心に、広大な森という贅沢と安らぎを描く。」をコンセプトに生まれる約4800㎡の緑ができることで、異色の空間となりそうです。 - 基本天井高2800mm
2800mmは明らかに部屋に入った瞬間にゆとりを感じるものでした。
更に本物件は、間取りも良く、特に角住戸はサッシ高やバルコニーの広さも相まって数値以上に空間の広さが感じられます。
気になる点
- 今後の眺望リスク
本物件は眺望に大きなプレミアムが乗せらせていることを前述しましたが、周辺は再開発が続いているため、将来的に眺望が変わるリスクがあります。
特に北向きの東京タワービューについては、価格は高いものの一部塞がれるリスクは高いと感じています。 - 高額な手付金
価格が価格なだけに手付金も高額です。更に本物件の場合、60mで10%、70m以上では15%となります。
三田ガーデンヒルズで手付金20%の事例はありましたが、本物件は当時よりも価格が相当上昇しています。
3LDK希望者は約5000万円~もの手付金を収める必要があります。 - 駐車場確保は難しい
駐車台数と優先権を考慮すると、ノースでは80m以上、サウスでは72m以上で確約となります。
本物件では購入者層から多くの方が駐車場を希望することが想定できます。
ノースの場合70m台の3LDKが多数あるものの、駐車場確保は難しい現実を受け入れる必要があります。
今後の予定
- 4月上旬~ 希望住戸アンケート受付開始
- 5月下旬 登録申込受付・抽選
- 引き渡し ノース 2030年6月下旬頃、サウス 2029年10月下旬頃
まとめ
パークコートブランドとして最大規模。この立地この規模に応えるように、建物外観やランドスケープ、共有施設の充実度、どこから見ても相当気合が入ったものとなっています。パークタワー勝どきをパークコート級に進化させたような、まさに今のトレンドを詰め込んだ物件です。
その人気を裏付けするようにモデルルームは予約困難を極めています。
担当者の話では、既に希望者が大変多く、東京タワービューと低価格帯(といっても2億円以上)を中心に抽選が多数発生しそうとのことでした。
一方で、先年秋頃から徐々に不動産市況の様子が変わってきました。本物件より格上と思われる三田ガーデンヒルズにおいても、大差ない価格で市場に出ており、踊り場というには少し苦しい展開にも見えます。
本物件は価格なりの魅力がありますが、流石に2億以上となると購入できる層も限られてきます。
もっとも、この価格帯をものともしない富裕層が多いことも事実ですし、ターゲットもそこなのでしょうが。
このタイミングで勇気をもって購入した者が王者になれるのかもしれません。住んでみたい!
[スムラボ編集部より] 本ブログ記事の情報は投稿日時点のものです。現在の販売情報は物件公式サイトをご参照下さい。
スムラボ記事
この記事を見ている人はこちらも見ています
- 新築マンション建築予定地を巡る!イオンモールの敷地内にマンションが!?((仮称)プレディア祇園、(仮称)ヴェルディ祗園3丁目2番館、(仮称)アルファステイツ祇園、ガーデンコネクトシティ祇園)【ひろしマンション】
- マンションプレミアム住戸についての考え方【ナカハラ】
- 首都圏で1~3月に販売・登録開始するタワーマンション10選【すまいるん】
スムログ記事
- 遂に発表!パークコート麻布十番東京ザタワー!!
- 白金ザ・スカイ 2025年12月時点の相場 ~売買も賃貸も相場上昇~【マンションマニア】
- 『超高価格帯住戸の動き』『2億円の壁』『マイホームの特権を活かして最低3年、できれば5年以上を前提に購入がおすすめ』【マンションマニア】
- パークコート麻布十番東京 ザ タワーノース/ザ タワーサウス 予定価格と間取り モデルルーム訪問後のファーストインプレッション
- パークコート麻布十番東京 予定価格と間取り② 平均坪単価約2000万円
- 「儲かるマンション」より「住みたいマンション」を買って住みながら投資!リセールバリューの呪縛から解き放たれよ!【マンションマニア】






















-125x125.webp)









記事にコメントする