目次
今回は大阪市中央区に完成するブランズタワー大阪本町のモデルルーム訪問レポートです。
物件単体のご紹介の前に触れておくべきことは本物件がある本町駅・堺筋本町駅を最寄りとする新築タワーマンションは供給数が関西一多いということ…
徒歩10分以内の新築タワーマンションが現時点で9棟あり、現在、資料請求出来る本町駅周辺のタワーマンションとしては最後に販売開始されるタワーマンションが今回ご紹介する「ブランズタワー大阪本町」です。
※来年にはジオシリーズのタワーマンションの新規情報が出るかと思います。
■販売中の9棟の新築タワーマンション
※リンクがある物件名はクリックすると過去記事にジャンプしますので合わせてご覧ください。
※以下の価格表はスマホの場合、スワイプして動かすことが可能です。スマホの場合は横向きにすると見やすいです。
|
物件名 |
数 |
階数 |
最寄り駅 |
徒歩 |
平均坪単価 |
入居時期 |
|
ローレルタワー御堂筋本町 |
241 |
30階 |
本町駅(御堂筋線) |
4分 |
@330万円 |
即(2021年2月竣工済み) |
|
クレヴィアタワー御堂筋本町 |
170 |
30階 |
本町駅(御堂筋線) |
1分 |
@380万円 |
2022年3月 |
|
クラッシィタワー靱公園 |
176 |
27階 |
・阿波座駅 |
・7分 |
@360万円 |
2022年3月 |
|
プレサンスレジェンド大阪新町タワー |
120 |
20階 |
・四ツ橋駅(四つ橋線) |
・4分 |
@350万円 |
2022年9月 |
|
シティタワー大阪本町 |
855 |
48階 |
・堺筋本町駅 |
・3分 |
@390万円 |
2022年11月 |
|
ウエリスタワー谷町四丁目 |
148 |
25階 |
・谷町四丁目駅 |
・5分 |
@330万円 |
2023年3月 |
|
プレミストタワー靱本町 |
350 |
36階 |
本町駅(四つ橋線) |
1分 |
@380万円 |
2023年3月 |
|
ローレルタワー堺筋本町 |
511 |
44階 |
堺筋本町駅 |
1分 |
@380万円 |
2024年3月 |
|
ブランズタワー大阪本町 |
302 |
43階 |
・堺筋本町駅 |
・3分 |
@400万円 |
2024年3月 |
※プレサンスレジェンド大阪新町タワーを追加しました。
上記の新築タワーマンションの戸数だけで2,873戸と本町駅は関西で一番供給戸数が多いエリアです。
(東京の「パークタワー勝どき」が2,786戸なのでほぼ同数。パークタワー勝どきの規模の大きさが改めてすごいな。)
更には中古タワーマンションも含めるとかなりの選択肢があるエリアのため、差別化をしないと販売は苦戦するのが本町駅周辺のタワーマンションの特徴です。
実際、「ローレルタワー御堂筋本町」は駅近ではあるものの入居開始から半年以上経ちますが結構残数がありますし、2022年3月入居開始の「クレヴィアタワー御堂筋本町」、「クラッシィタワー靱公園」も入居前完売は厳しい売れ行きです。
それだけ競合が激しいエリアのため、「ブランズタワー大阪本町」は最上階42階にスカイラウンジ/スタディールーム/ゲストルームなどの共用施設を用意する【アマ・テラス】という素晴らしいコンセプトで差別化を図っておりますので、共用施設のクオリティは本町界隈ではNo1だと思います。
※階数的には43階が最上階ですが43階は設備スペースのみのため42階を最上階と記載しています。
※最上階共用施設だと「ブリリアタワー堂島(過去記事にジャンプします)」が49階、50階にラウンジ等を設けています。
また【3つの日本初】を要しており、注目度は非常に高いタワーマンションです。
それでは早速、総評からレポートを始めていきます。
総評
一言
『共用施設・デザインは最高ですが平均坪単価400万円は実需層にはかなり辛い選択!』※premium住戸含む平均
共用施設は本町エリアでNo1と言ったすぐ後に高いと言ってしまい失礼しました…
デザイン性
まず、共用施設は8棟のタワーマンションの中でも一番タイプです。デザインは多くのタワーマンションのデザインを手掛けてきた「光井純」さんが担当しているだけあって、エントランスの雰囲気もとてもカッコ良いですし、一番の売りである最上階のスカイラウンジは圧巻です。
(マンションのモデルルームでゴーグル使ってリアルに近い体験が可能です)
私はテレワークメインのため最上階の個室のスタディルームで仕事が出来るのは非常にポイントが高いですし、スカイラウンジのガラス面が大きいので眺望は非常に期待できそうです。
BARも併設されるためお酒好きにはたまらんですね。
正直価格は…
ただ、価格が高いです。間取りも厳しいタイプが多いですし、本町駅周辺はビジネス街のため背が高いビルも多く中層階〜高層階でも眺望が抜けないケースも多いのですが、
- 平均坪単価:400万円(premium住戸除くと平均370万円)
- 低層階3LDK72平米7,100万円台スタート(約325万円)
2年前にグランドメゾン新梅田タワーザクラブレジデンスで高いと思って、半年前にプレミストタワー靱本町を高いと思って、それよりも高くなってきました(汗)。
なお、私は78平米の間取りを事前に拝見してモデルルームに行きましたが8階で8,000万円台(坪340万円)と手が出しづらい価格帯…
この水準は駅1分の「ローレルタワー堺筋本町」、「プレミストタワー靱本町」、「クレヴィアタワー御堂筋本町」より少し高い価格帯なので、駅近利便性よりマンション内共用施設クオリティやデザイン等を重視する方に本物件をオススメしたいです。
よって、アマテラスの最上階共用施設がドストライクになるのであればGOすべきですが、『共用施設はあまり使わないから間取りや住環境、価格を総合的に判断したい』という方は、本町界隈の新築タワーマンションを全て見て比較検討いただければと思います。
(最大の売りである最上階共用施設にはbarがあるのに20時30分でクローズはダメですよね、せめて22時までは…)
推しポイント
- タワーマンション競合エリアの本町駅最寄り物件の中でTOPクラスにカッコ良い最上階共用施設とデザイン
- ビジネス街エリアであるものの、神戸の旧居留地のように街並みが保全されている「三休橋筋沿い」に位置している
- 堺筋本町駅/御堂筋線本町駅を両方4分以内にアクセス可能な欲張り立地
残念ポイント
- 供給過多エリアでも一番高い価格帯のためリセール観点でも不安が残る(シティタワー大阪本町と同等クラスの値段)
- 本町駅周辺は駅直結/駅1分のタワーマンションが複数あるため、中古時の競合が強い
- 管理費修繕積立金がブリリアタワー堂島に次ぐ高値(474円/平米)
- 間取りや眺望が難ありの住戸が多い
- 最大の売りである最上階共用施設もクローズ時間が20時半と早いため多様出来ない可能性あり
すごろく期待値
すごろく期待値:50点
すごろく期待値とは
転勤や家族構成の変化などで自宅を売却して次の物件を購入する際に、購入価格より高く売れて(売却益)、次の物件の頭金などに活用できる可能性があるかを筆者独自で数値化したものです。※関西マンションすごろく独自の考えのため、あくまで参考としてください。
物件概要
- 名称:ブランズタワー大阪本町
- 所在地:大阪府大阪市中央区南本町2丁目2番
- 交通:Osaka Metro堺筋線・中央線「堺筋本町」駅 から徒歩3分
Osaka Metro御堂筋線 ・中央線・四ツ橋線「本町」駅 から徒歩4分 - 総戸数:302戸
- 規模: 鉄筋コンクリート造(一部鉄骨造) 地上43階建
- 販売開始:2022年2月上旬(予定)
- 入居予定:2024年3月下旬(予定)
- 売主:東急不動産株式会社
大和ハウス工業株式会社
住友商事株式会社
株式会社コスモスイニシア - 施工:株式会社 竹中工務店
- 掲示板:ブランズタワー大阪本町ってどうですか?
アクセス
- 堺筋本町駅:徒歩3分
- 本町駅:徒歩4分(御堂筋線が一番近い)
もしくは、本町駅周辺のオフィスビルで徒歩通勤の方も一定数はいるかと。
御堂筋線本町駅から電車で…
- 梅田駅まで:5分
- なんば駅まで:4分
- 新大阪駅まで:11分
なお、自転車があれば梅田もなんばも10分程度で移動が可能です。
また、2025年大阪・関西万博の時期に合わせて中央線コスモスクエア駅が延伸して夢洲駅(仮称)に行くことが可能となります。
万博会場まで一本で行くことができるようになりますし、大阪IRも確定すれば同じく一本でアクセス可能なので中央線を使えることも大きなメリットになりそうです。
周辺環境
本物件から近い場所に位置するシティタワー大阪本町の時に記載しましたが、オフィス街だけあって公園や学校関係は結構距離感があります。■公園
- 久宝公園(徒歩4分):小さめですが滑り台やブランコなどの遊具は少しあります
- 東横堀公園(徒歩9分):遊具がないため、あまり使うことはなさそうです
- 靱公園(徒歩12分):徒歩で行くには遠い距離ですが遊具も多く、敷地もかなり広いので私なら自転車でメイン使いをします
保育園は徒歩10分圏に5つほどありますので選択肢は多いですが、小学校以降は子供の足には少し遠い距離感です。
- 市立愛珠幼稚園:徒歩12分(大阪で一番古くからある歴史のある幼稚園)
-
市立開平小学校:徒歩15分
-
市立東中学校:徒歩18分
小さいスーパーも考慮すると選択肢は多いですが、私が本物件に住んだら新しく品数も多いライフ堺筋本町店に通います。
-
フレスコミニ御堂筋本町店:徒歩6分
-
ライフ堺筋本町店:徒歩7分(2階建てて医療品も取り扱い有り)
- KOHYO 南船場店:徒歩9分
共用施設・設備
共用施設
- 内廊下
- コンシェルジュ(大丸松坂屋のコンシェルジュを受託する会社が運営するようでレベルは高そうです)
- 各階ゴミ置き場
- 車寄せ
- 5階:フィットネスルーム
- 42階:スカイラウンジ/スカイテラス
- 42階:フォーカスルーム/ミーティングルーム(=スタディルーム)
- 42階:ゲストルーム
42階まで移動するのであればフロア分けがあっても良かったと思いますが、移動シミュレーション的には全フロア停止の方が相対的には早く移動が可能なようです(とはいえ高層階に住むなら一気に降りたい)。
また、42階の共用施設に行くには「非常用エレベーター」でしか移動できませんので注意が必要です。
42階にフォーカスルームと言う名のスタディルームが4室あり無料で利用可能です。
ミーティングルームは複数人で会議利用可能な個室が1室あり、こちらは有料です。
ただ、個室利用可能な点はポイント高いですが、共用施設は20時半までのため正直物足りないです。
22時頃までは使えるとありがたいなと感じています。
ゲストルームはビューバス付きでラグジュアリー感がありそうです。
ただ、北東のため少し離れて「シティタワー大阪本町」が目線には入ってきそうです。
スカイラウンジとBARコーナー。
西〜北西側に位置しており眺望的には抜けるポジションのため、ここで飲むお酒は格別でしょう!
スカイラウンジにはソファやテーブル数なども多くゆとりある贅沢な空間です。
BARメニューは未定でしたが、アルコール、ソフトドリンクの他、軽食も注文可能であれば嬉しいですね。
また、この42階でスターバックスの味を堪能することが可能です。
ちなみに、このスカイラウンジ&BARコーナーも20時半までの営業のため残念ではあります。
これだけ雰囲気ある施設であればこちらも22時頃まで利用可能であれば嬉しいですね。
※先日遊びに行った「ザ・パークハウス中之島タワー」のBARは22時まで利用可能でした。
設備(5階〜39階のsuperiorフロア)
天井高2.7mは「ブリリアタワー堂島」のOceanフロアと同じ高さで一般的なタワーマンションより15㎝〜20㎝高いことは非常に素晴らしいですね、後からオプションが効かない部分ですし。ただ、この価格帯であればトイレはローシルエットタイプにするとか、浴室もダウンライトにするとか、もう少しグレードアップしてくれたら良かったなと思います。
- ○ フィオレストーン天板
- ○ ディスポーザー
- ○ 玄関前カメラ ※1LDKは無し
- ○ 天井高2.7m
- × タンク有りトイレ ※32階以上のタイプはローシルエットタイプにグレードアップ
- × 浴室ライトブランケット
- × 浴室アクセントタイルは1面のみ
- × 一部住戸の窓部分は網目タイプ
- × ベランダ物干しNG(ファミリー層には結構辛い)
販売価格
- 平均坪単価(premium含む):400万円
- 平均坪単価(premium除く):370万円
- 管理費/修繕積立金:474円/平米
眺望は本町駅周辺のタワーマンションは高層オフィスが立ち並ぶため、どのタワーマンションもどっこいどっこいと思って良いですが、間取りは「シティタワー大阪本町」の方が圧倒的に使いやすい印象です。
数字の割には居住面積は狭く感じる間取りが多いので、必然的に広い部屋を検討することなりグロスが更に厳しくなる負のスパイラルに陥りました。
(やはり間取りは大事だよね、と改めて認識)
本物件の低層階のスタート価格も結構辛いものもありますし、眺望が比較抜けてくるような中層階以上になると更にキツイ価格帯のため、二馬力世帯や既にマンションを保有してて売却益を考慮して購入する方がメインターゲットになるかと思います。
また、毎月の管理費/修繕積立金はブリリアタワー堂島よりは安いものの周辺のタワーマンションと比較しても高額です。
42階全てが共用施設ですし、大丸松坂屋レベルの接客スキルを保有する方でコンシェルジュや42階のBAR運営などが影響してそうですね。
現時点の販売予定価格
予定価格は100万円台ですが正式価格が決まっていないため50万円で記載しています。※予定価格6,000万円台の場合、6,050万円で表記。
※以下の価格表はスマホの場合、スワイプして動かすことが可能です。スマホの場合、横向きにすると見やすいです。
|
方角 |
タイプ |
階数 |
部屋数 |
平米数 |
価格 |
坪単価 |
|
北西 |
A |
8階 |
2LDK |
66.77 |
6,050 |
299 |
|
10階 |
6,650 |
329 |
||||
|
12階 |
7,150 |
353 |
||||
|
14階 |
7,250 |
358 |
||||
|
16階 |
7,350 |
363 |
||||
|
西 |
B |
8階 |
1LDK |
44.5 |
4,750 |
352 |
|
10階 |
4,950 |
367 |
||||
|
12階 |
5,050 |
374 |
||||
|
14階 |
5,050 |
374 |
||||
|
西 |
C |
8階 |
1LDK |
44.1 |
4,750 |
355 |
|
10階 |
4,950 |
370 |
||||
|
12階 |
4,950 |
370 |
||||
|
14階 |
5,050 |
378 |
||||
|
16階 |
5,050 |
378 |
||||
|
南西 |
D1 |
8階 |
3LDK |
72.47 |
7,150 |
326 |
|
10階 |
7,450 |
339 |
||||
|
12階 |
7,650 |
348 |
||||
|
14階 |
7,750 |
353 |
||||
|
16階 |
7,750 |
353 |
||||
|
南 |
E |
8階 |
1LDK |
48.65 |
5,150 |
349 |
|
10階 |
5,350 |
363 |
||||
|
12階 |
5,450 |
370 |
||||
|
14階 |
5,450 |
370 |
||||
|
16階 |
5,550 |
376 |
||||
|
南 |
F |
8階 |
1LDK |
41.52 |
4,350 |
346 |
|
10階 |
4,550 |
362 |
||||
|
12階 |
4,650 |
370 |
||||
|
14階 |
4,650 |
370 |
||||
|
16階 |
4,750 |
378 |
||||
|
南東 |
G |
8階 |
3LDK |
77.9 |
8,050 |
341 |
|
10階 |
8,450 |
358 |
||||
|
12階 |
8,550 |
362 |
||||
|
14階 |
8,650 |
366 |
||||
|
16階 |
8,750 |
371 |
||||
|
東 |
H |
8階 |
1LDK |
40.57 |
4,350 |
354 |
|
10階 |
4,450 |
362 |
||||
|
12階 |
4,550 |
370 |
||||
|
14階 |
4,550 |
370 |
||||
|
16階 |
4,650 |
378 |
||||
|
東 |
I |
8階 |
2LDK |
57.26 |
5,850 |
337 |
|
10階 |
6,050 |
349 |
||||
|
12階 |
6,250 |
360 |
||||
|
14階 |
6,250 |
360 |
||||
|
16階 |
6,250 |
360 |
||||
|
北東 |
J |
8階 |
2LDK |
57.22 |
5,350 |
309 |
|
10階 |
5,550 |
320 |
||||
|
12階 |
5,650 |
326 |
||||
|
14階 |
5,750 |
332 |
||||
|
16階 |
5,850 |
337 |
||||
|
北西 |
K |
17階 |
3LDK |
77.13 |
8,350 |
357 |
|
20階 |
8,550 |
366 |
||||
|
23階 |
8,650 |
370 |
||||
|
西 |
L |
17階 |
3LDK |
77.61 |
8,350 |
355 |
|
20階 |
8,550 |
364 |
||||
|
23階 |
8,650 |
368 |
||||
|
北東 |
G |
17階 |
2LDK |
68.88 |
7,550 |
362 |
|
20階 |
7,950 |
381 |
||||
|
23階 |
8,050 |
386 |
||||
|
北西 |
R |
32階 |
3LDK |
86.28 |
9,850 |
377 |
|
39階 |
10,250 |
392 |
||||
|
南西 |
S |
32階 |
3LDK |
108.56 |
16,650 |
506 |
|
39階 |
17,050 |
518 |
||||
|
南東 |
V |
32階 |
3LDK |
103.22 |
16,050 |
513 |
|
34階 |
16,150 |
516 |
||||
|
北東 |
X |
32階 |
3LDK |
79.74 |
9,650 |
399 |
|
39階 |
9,950 |
412 |
||||
|
北西 |
p-A |
40階 |
3LDK |
128.49 |
25,050 |
643 |
|
41階 |
26,050 |
669 |
||||
|
南西 |
P-B |
40階 |
3LDK |
144.28 |
28,050 |
642 |
|
41階 |
30,050 |
687 |
||||
|
南東 |
P-C |
40階 |
3LDK |
155.83 |
30,050 |
636 |
|
41階 |
32,050 |
679 |
||||
|
北東 |
P-D |
40階 |
3LDK |
142.11 |
26,060 |
605 |
|
41階 |
28,050 |
651 |
(現地調査写真がなぜか見つからず・・・子供に削除されたかも)
- 全体的に低層階は囲まれ感がある
- 南:高速道路が近い位置にある
- 南西:背の高いオフィスビルあり
- 北東:背の高い大阪国際ビルディング、シティタワー大阪本町あり
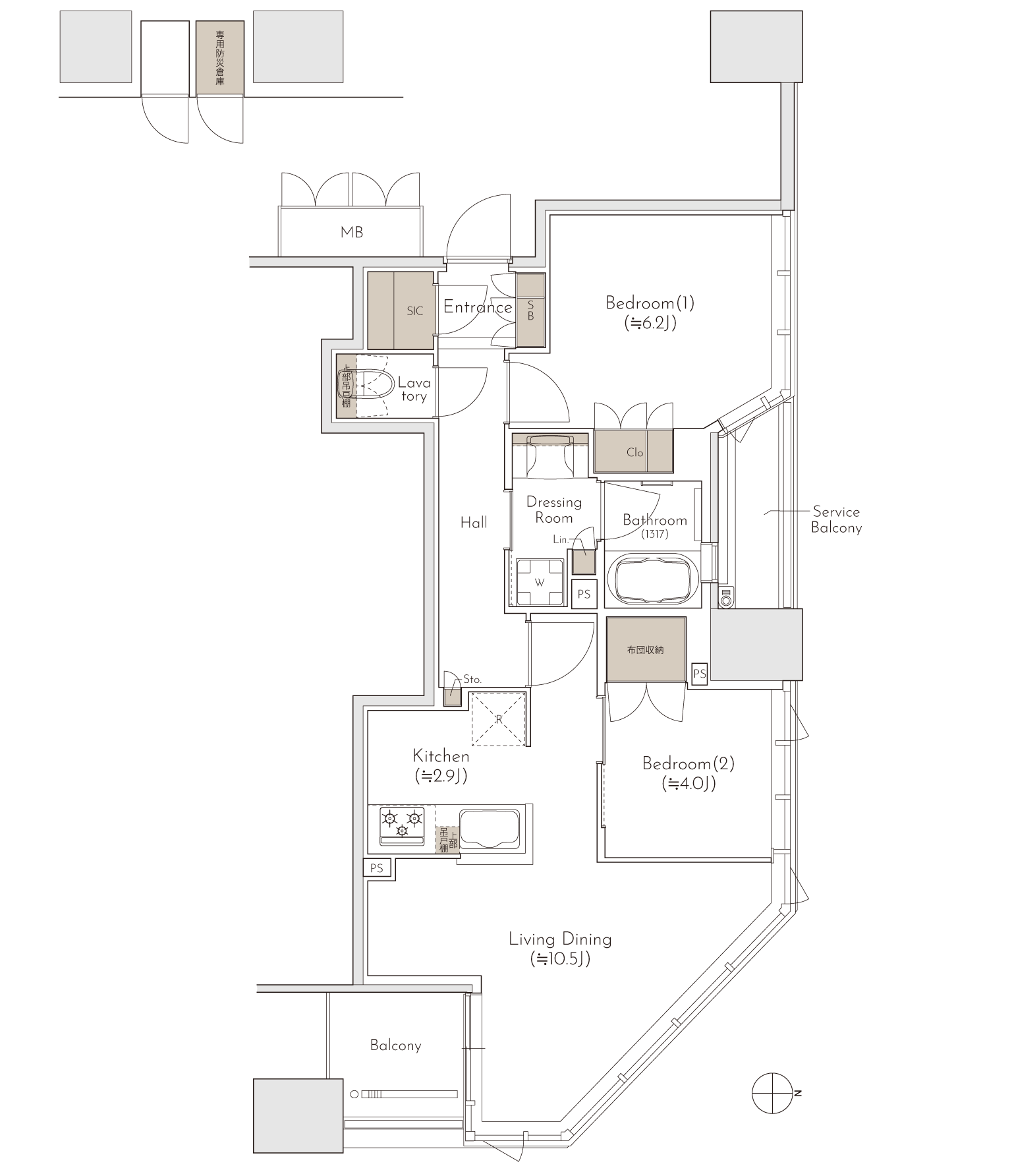
検討した間取り
Jタイプ:57.22m2
予定価格:8階 5,350万円(@309万円)本物件の中では間取りは綺麗なタイプです。
角部屋でお風呂にも窓が付くのはポイントが高いです。
2LDKなら風呂サイズは1418は欲しいですね。
D1タイプ:72.47m2
予定価格:8階 7,150万円(@326万円)間取りは綺麗なタイプでリビングの広さも十分かと思いますが廊下が長く、ベットルーム2・3の狭さは気になる所です。
収納は少なめのため、ベットルーム2を物置部屋にして使うことを妄想していました。
Kタイプ:77.13m2
予定価格:17階 8,350万円(@357万円)収納が多い点がポイント高いですが、リビングの形が独特な造りです。
D1タイプと比較すると各部屋の広さはとれていますが77m2にしてはリビングが少々狭いなという印象です。

Kタイプ
Xタイプ:79.74m2
予定価格:32階 9,650万円(@399万円)高層階のため価格帯は初期費用含めると1億円コースで悩ましいです。
理想はリビングアウトで2室欲しいところですが間取りは使いやすいかと思います。
目の前ではありませんが、リビングからは「シティタワー大阪本町」が見えますので高層階でも眺望は抜けることはできません。
比較対象となる新築タワーマンションの一言寸評
|
物件名 |
どんな人におすすめ? |
||||
|
ローレルタワー御堂筋本町 |
・坪単価重視 ・御堂筋線、四つ橋線も使いたい |
||||
|
クレヴィアタワー御堂筋本町 |
・とにかく一番利便性が高い御堂筋線に一番近い物件に住みたい | ||||
|
クラッシィタワー靱公園 |
・住環境重視、静かに生活したい ・靱公園が好き(徒歩10秒) |
||||
|
プレサンスレジェンド大阪新町タワー |
・人気の西区新町に住みたい ・堀江や心斎橋も徒歩圏内に住みたい(徒歩7分程でアクセス可能) |
||||
|
シティタワー大阪本町 |
・本町周辺で最大規模のタワーマンションに住みたい ・間取り重視(間取りが綺麗な住戸が多い) |
||||
|
ウエリスタワー谷町四丁目 |
・坪単価重視(谷町線も利用可能) ・近くにスーパーが欲しい、いや、複数店舗欲しい |
||||
|
プレミストタワー靱本町 |
・四つ橋線ヘビーユーザー(四つ橋線本町駅には一番近い) ・靱公園が好き(駅1分×大規模公園1分) |
||||
|
ローレルタワー堺筋本町 |
・堺筋線or中央線ヘビーユーザー ・大型スーパーライフや心斎橋などにも頻繁に行く |
||||
|
ブランズタワー大阪本町 |
・共用施設やデザインなどを重視(本町界隈ではTOPクラス) ・マンション周辺の雰囲気重視(三休橋筋は雰囲気抜群) |
||||
まとめ
正直価格は高いですが、共用施設のクオリティは本町周辺のタワーマンションではTOPクラスですし、最上階の共用施設のクオリティーだけで勝負すると先日抽選祭りで一期一次が即日完売した「ブリリアタワー堂島」にも匹敵するレベルだと思います。そんな唯一無二で語れる共用施設があるため所有すること、住むことの満足感は非常に高くなるようなマンションです。
ただ、中古市場では競合となるタワーマンションが多すぎるため、リセールバリューの面はあまり期待できないと考え、比較的長期間住むことを前提とした検討を進めることをオススメします。
なお、要望書を出すと抽選倍率が上がる特典を行っておりますので気になっている方はぜひ早めに資料請求の上、モデルルームに足を運んでみてください。
ブランズタワー大阪本町
記事化の物件リクエストもお待ちしております!
※100%ではありませんが記事化していきます。
次回のブログもぜひご一読ください。
Twitterにもマンション情報、高層ビル等を投稿しています。ぜひフォローお願い致します!
すごろくTwitter
スムラボ記事
この記事を見ている人はこちらも見ています
記事に出てきた物件の掲示板
- ザ・パークハウス 中之島タワー(検討スレ) | (住民スレ) | (まとめ) | (スムラボ) | (スムレビ)
- ウエリスタワー谷町四丁目(検討スレ) | (住民スレ) | (まとめ) | (スムラボ)
- グランドメゾン新梅田タワー THE CLUB RESIDENCE(検討スレ) | (住民スレ) | (まとめ) | (スムラボ) | (スムログ) | (スムレビ)
- ローレルタワー御堂筋本町(検討スレ) | (住民スレ) | (まとめ) | (スムラボ)
- シティタワー大阪本町(検討スレ) | (住民スレ) | (まとめ) | (スムラボ) | (スムログ) | (スムレビ)
- クレヴィアタワー御堂筋本町(検討スレ) | (住民スレ) | (まとめ)
- クラッシィタワー靱公園(検討スレ) | (住民スレ) | (まとめ) | (スムラボ)
- パークタワー勝どき ミッド/サウス(検討スレ) | (住民スレ) | (まとめ) | (スムラボ) | (スムログ) | (スムレビ)
- ローレルタワー堺筋本町(検討スレ) | (住民スレ) | (まとめ) | (スムラボ)
- プレサンス レジェンド 大阪新町タワー(検討スレ) | (まとめ)
- ブランズタワー大阪本町(検討スレ) | (住民スレ) | (まとめ) | (スムラボ)
- Brillia(ブリリア) Tower 堂島(検討スレ) | (住民スレ) | (まとめ) | (スムラボ) | (スムログ)








































記事にコメントする