目次
ソライエ南桜井は、南桜井駅徒歩4分に建設される10階建て、総戸数146戸で2026年3月に引き渡し予定となっています

価格を教えてください!

郊外のマンションは値下りしやすいですよね?

スーパーとか駅前にそろってて便利そう!
不動産
モデルルームに行っていろいろ聞いてきましたよ!
駅徒歩4分、駅前の大型商業施設に隣接
ソライエ南桜井のモデルルームを訪問し現地周辺を見てきました
これまで3回の自宅マンション売買で資産形成してきた私が、最近の新築マンション市況も含めてレポートします
【結論】
- 平均坪単価205万円。首都圏で販売中の新築マンションとしては最安レベル
- 南桜井駅からの帰宅導線に商業施設あり利便性が高い
- 初期コストを抑えたはじめてのマンション購入に適しています
- 中古に抵抗がなければ春日部駅周辺の物件も合わせて検討しましょう
この記事を読むことで上記結論の理解が深まります
ぜひ最後までお読みください
物件概要

出典;ソライエ南桜井公式HP
- 所在地:埼玉県春日部市大衾字原496番546(地番)
- 交通:東武アーバンパークライン南桜井駅徒歩4分
- 総戸数:146戸
- 敷地面積:5,120.25㎡
- 建物竣工:2026年3月
- 売主:東武鉄道株式会社、第一交通産業株式会社
- 施工会社:株式会社長谷工コーポレーション
- 駐車場:98台
- 駐輪場:292台
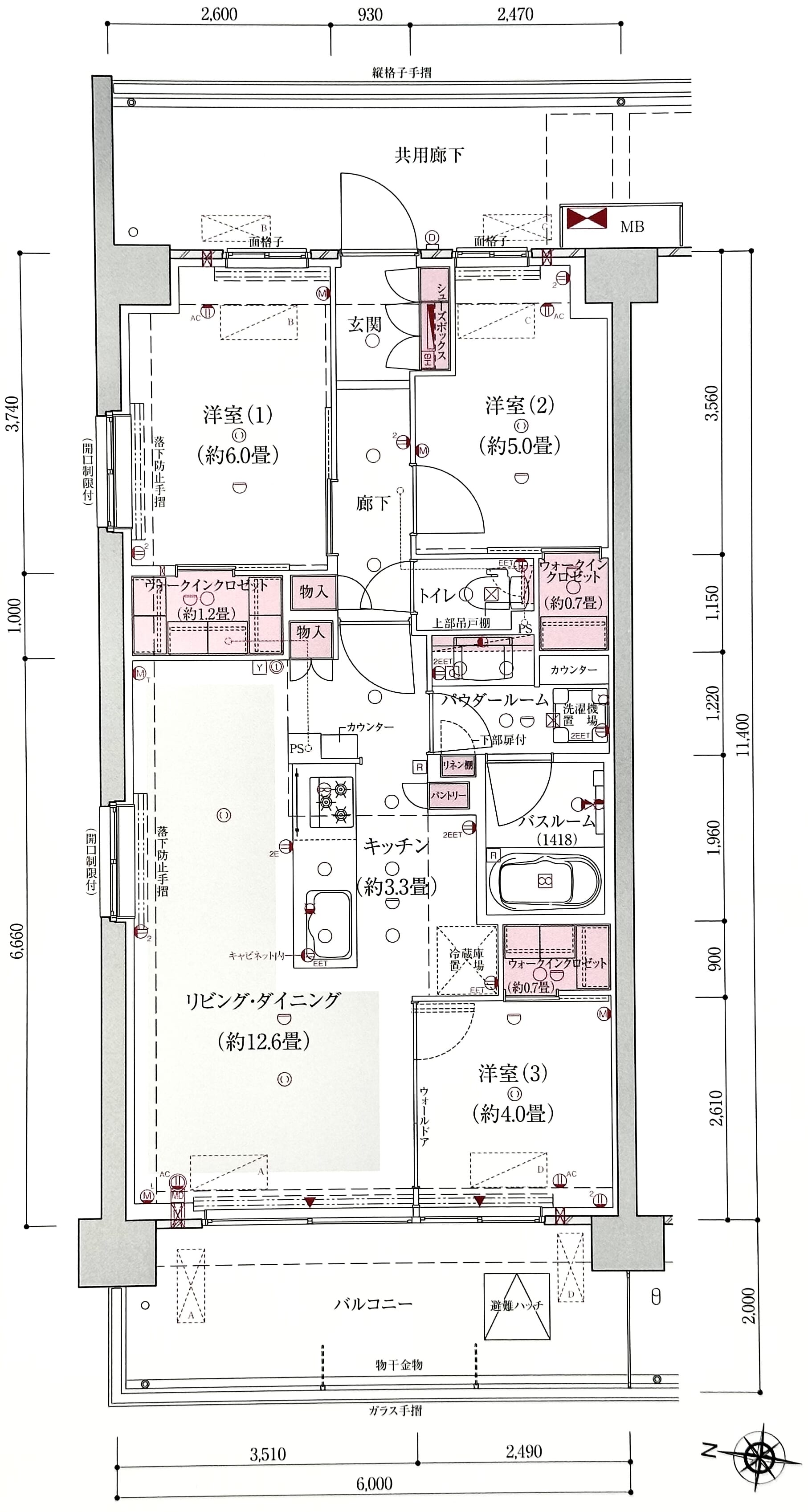
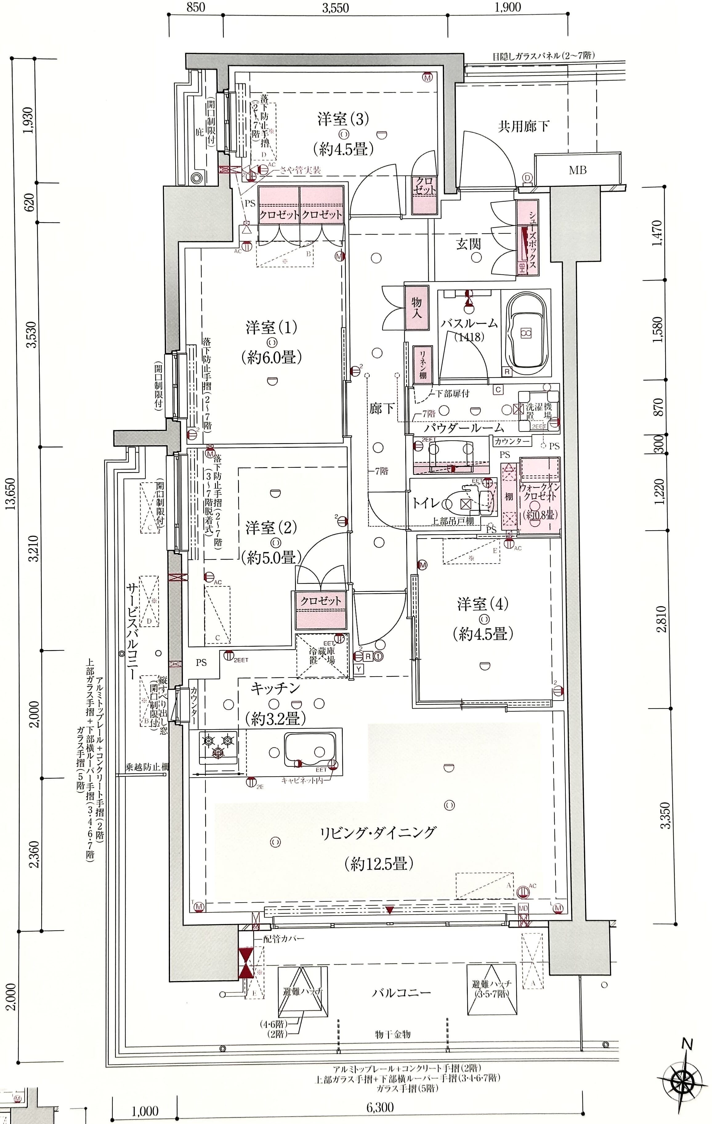
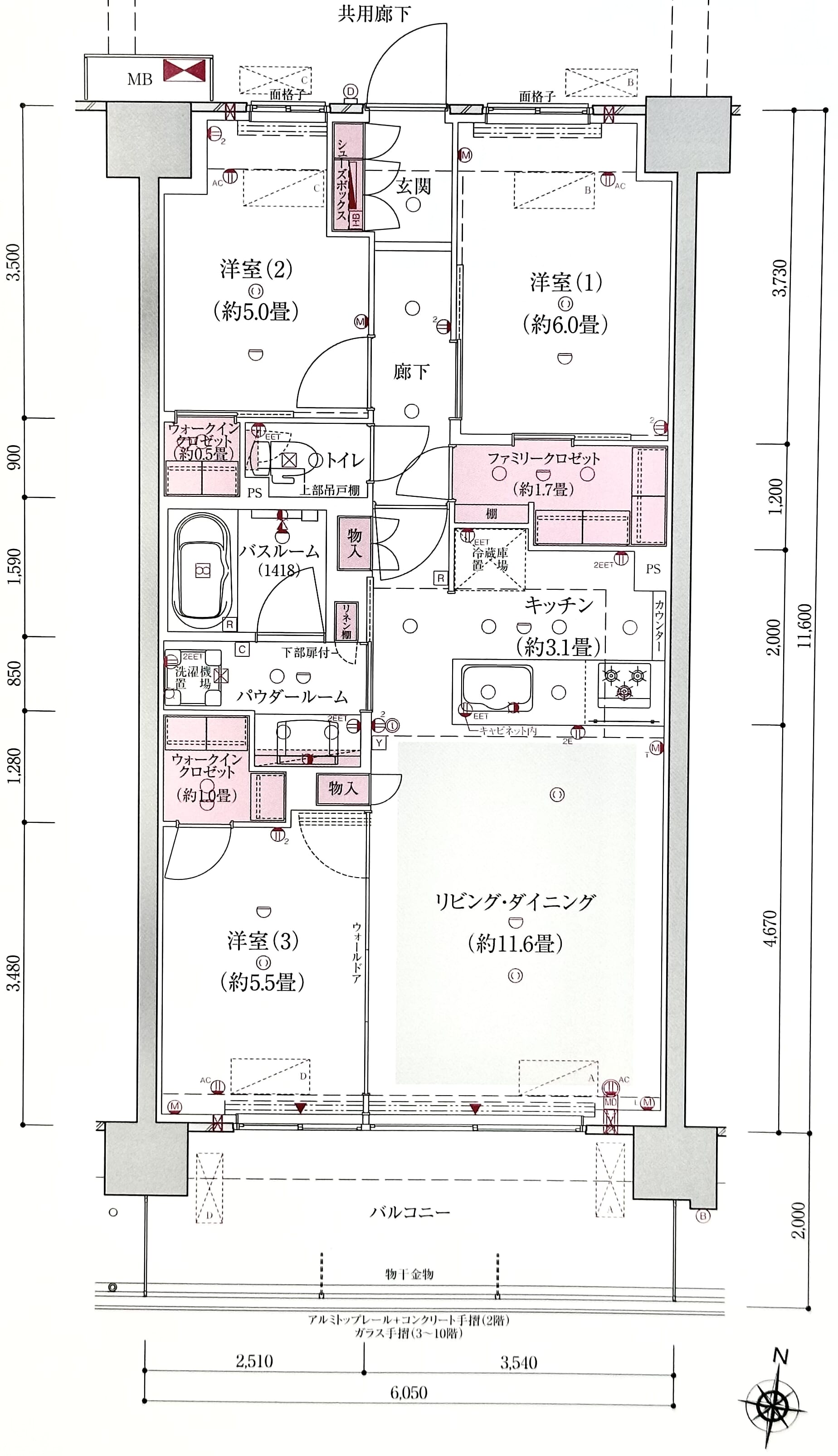
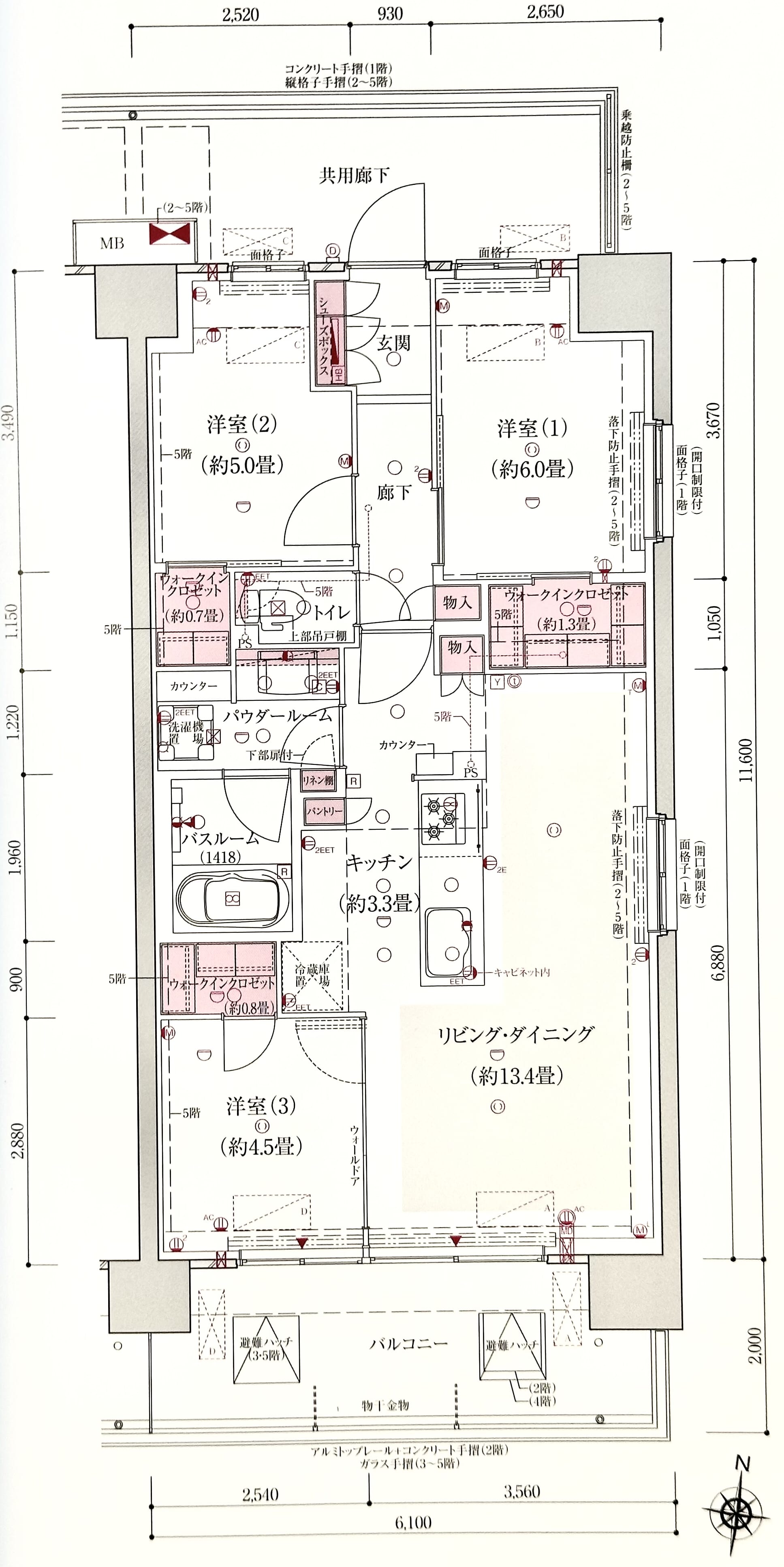
間取りと価格 坪平均205万円

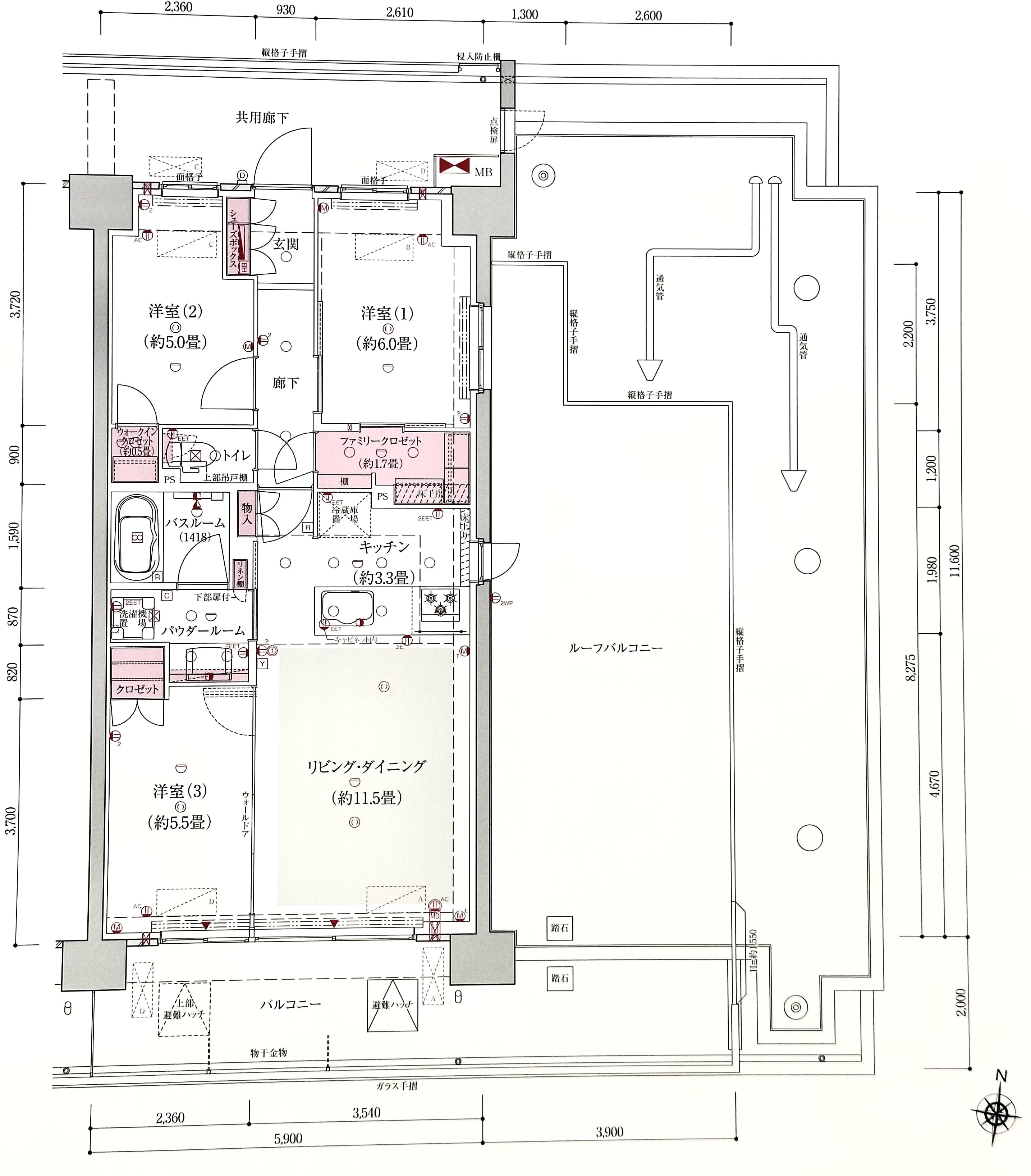
販売予定の間取りと価格を共有します
間取り画像は配布冊子から引用しました
A2wタイプ 68.40㎡ 3LDK 西向き角住戸

- 6階 4,448万円(坪215万円)
B1タイプ 80.04㎡ 4LDK 南向き角住戸

- 4階 5,148万円(坪213万円)
- 3階 5,098万円(坪211万円)
B4タイプ 66.78㎡ 2LDK +S 南向き中住戸

- 10階 4,498万円(坪223万円)
- 9階 4,298万円(坪213万円)
- 6階 4,098万円(坪203万円)
B6タイプ 68.44㎡ 3LDK 南向き中住戸

- 8階 4,248万円(坪205万円)
- 7階 4,198万円(坪203万円)
- 1階 3,698万円(坪179万円)
B7タイプ 70.18㎡ 3LDK 南向き中住戸

- 10階 4,698万円(坪221万円)
B8タイプ 70.18㎡ 3LDK 南向き中住戸

- 10階 4,698万円(坪221万円)
- 9階 4,498万円(坪212万円)
- 8階 4,448万円(坪210万円)
- 7階 4,398万円(坪207万円)
- 4階 4,248万円(坪200万円)
- 3階 4,198万円(坪198万円)
- 1階 3,898万円(坪184万円)
B11タイプ 68.44㎡ 3LDK 南向き中住戸

- 6階 4,148万円(坪200万円)
B12rタイプ 68.44㎡ 3LDK 南向き角住戸

- 6階 5,348万円(坪258万円)
B13タイプ 70.76㎡ 3LDK 南向き角住戸

- 3階 4,298万円(坪201万円)
- 1階 3,798万円(坪163万円)
管理費修繕積立金は平均的
- 管理費 214円/㎡ ※70㎡換算 月額1.5万円
- 修繕積立金 90円/㎡ ※70㎡換算 月額6,320円
- インターネット使用料 月額583円
- 給湯器リース料金 月額3,256円
また平置きの駐車場使用料は月額8,000円とのこと
近年のインフレを考慮した価格設定ですね
設備仕様ではコストカットあり
- 床暖房 ➡︎ あり⭕️
- 食洗機 ➡︎ あり⭕️
- ディスポーザー ➡︎ なし❌
- 直床or二重床 ➡︎ 直床❌
- トイレ手洗いカウンター ➡︎ なし❌
春日部駅中古物件との比較
春日部駅東口徒歩3分、2021年竣工のサーパス春日部ゲートレジデンス と比較してみましょう2025年11月現在、坪220万円(9階)での売出し物件があります
この価格で成約に至るかわかりませんが、坪210万円ほどが相場になりそうです
ソライエ南桜井竣工後、2030年時点の売却相場を予想しました

近年のインフレの流れから価格上昇も見込めるでしょう
買い物利便性は抜群

出典;ソライエ南桜井公式HP
ヤオコー、ミスターマックス、セキ薬局、セブンイレブンと、商業施設が駅からの帰宅導線に位置しており利便性は高いですね
商業施設の敷地内から直接マンションの敷地に入れませんので、いったん線路沿いの道路に戻ってからマンション西側のエントランスまで回り込む必要があります実際歩いて写真を撮ってきました
南桜井駅北口

エレベーターがありますからベビーカーでも不便はなさそうです
駅北口前の道路

駅から直接帰宅するなら横断歩道を渡って左折します
この線路沿いの道を歩いていると店舗に出入りする車に注意する必要があると感じました
マンション前のセブンイレブン ※右側の白い建物がセキ薬局

ここも駐車場に出入りする車に注意が必要です
セブンイレブン前の間取りなら3階以上、セキ薬局前の間取りでは4階以上なら眺望は抜けます
マンション西側のエントランス付近

歩道も整備されますから安全性は確保されます
商業施設の敷地から直接マンションの敷地に入れればもっと便利でしたがそこは惜しいところですね
南桜井駅の整備も進む

出典;ソライエ南桜井公式HP
売主に東武鉄道が入っていますから駅の整備を進めてくれるのもメリットになります南桜井駅ホーム

現状は郊外の古い駅という印象
ホームドアの設置や駅舎のリニューアルに期待です
郊外でもマンションに住みたい需要はある

建築費が高騰した現在の市況では、マンションデベロッパーは郊外地域での供給量を減らしています
海外からの投資マネーを目当てに都心物件をやりたがり、これらのキャピタルゲインをねらった投資家による投機的な動きも目立つようになりました
本物件のような郊外であっても買い物利便性の高い利用価値の高いマンションは将来的に希少性を持つことになると予想しています

郊外のマンションは値下りするからダメだよ
このような風潮を信じて無理して高額物件を購入することは避けてください
大宮など埼玉県内通勤のはじめてのマンション購入におすすめ

出典;ソライエ南桜井公式HP
春日部から都心方面への通勤も可能ではあるものの、乗り換えのない大宮か埼玉県内への通勤の方におすすめします東武スカイツリーラインでは越谷以北と以南での価格差がついてきており、春日部を含むアーバンパークライン沿線ではまだ目にやさしい価格帯で購入できます
今後ますます郊外での新築マンションの供給が減ってくるでしょうから、通勤の利便性など条件に合うのでしたら手堅い選択肢になるはずです
車を所有しない生活スタイルの提案
私の記事ではいつも同じことを提案していて恐縮なのですが不動産
せっかく鉄道利便性や買い物利便性の高い物件ですから、車を所有しない生活スタイルにしてみませんか?
郊外マンションで車を持たない生活を実現できれば
- 住宅ローンの負担が比較的少ない
- 車の維持費がかからない
- 株式投資に資金を回す余裕ができる
私も埼玉県郊外に長年住んでいながら車がなくて生活に困ったことはありません
私は郊外であっても駅近の資産性の高い物件をおすすめしていますので、必然的に鉄道利便性が高くなることと連動します
資産価値の高い自宅マンションを購入し車を所有しない生活スタイルを確立することで家計管理が劇的に改善します
“資産価値が高い”とは、購入した価格よりも値下りしにくく値上りも期待できることを指します
はじめて自宅マンションを購入する方に特にお伝えしたい
資産形成の成否は家と車と投資の取り扱いにかかっています
ご参考になれば幸いです
最後までお読みいただきありがとうございました




















記事にコメントする