SUGARです!第2弾は1期1次で検討した『クレストプライムシティ南砂』をご紹介します!
「タワマン!タワマン!」と大規模タワマンに人や話題が殺到しがちですが、タワマンと同じような共有施設、駅距離、総戸数を誇る分譲マンションこそ今回ご紹介する南砂町の新築マンション。
「都心へのダイレクト通勤」+「駅近」+「大規模マンション」と誰もが求める要素をクリアしていることはもちろん、「商業施設」や「公園」など、実はファミリー層が求めるニーズが揃っている街である【南砂町】についても合わせてご紹介します!
物件概要
所在地:東京都江東区南砂3丁目11-118他(地名地番)交通:東京メトロ東西線「南砂町」駅 徒歩1分、東京メトロ東西線「東陽町」駅 徒歩12分
間取:2LDK+S、3LDK
面積:58.04㎡~82.35㎡
総戸数:396戸総(管理員室1戸、ゲストルーム1戸、パーティールーム1戸)
階数:地上15階建
構造:鉄筋コンクリ-ト造一部、鉄骨造
売主:株式会社ゴールドクレスト
施工会社:五洋建設株式会社東京建築支店
管理会社:株式会社ゴールドクレストコミュニティ
用途地域: 都市計画区域(市街化区域)、第一種中高層住居専用地域、準防火地域、第3種高度地域
駐車場:119台収容(機械式116台、平置き2台、身障者用1台、月額利用料:27,000円~40,000円)
駐輪場:792台収容(屋根付・二段ラック式774台、平置18台、月額利用料:300円~600円)
バイク置場:8台収容(屋根付、月額利用料:5,000円)
ミニバイク置場:32台収容(屋根付24台、屋根なし8台、月額利用料:2,000円~2,500円)
レンタサイクル:8台
竣工予定:2026年6月下旬予定、入居予定:2027年3月下旬予定
掲示板:クレストプライムシティ南砂
アクセス
「南砂町駅」は「日本橋駅」まで10分-11分、「大手町駅」まで11分-13分、「飯田橋駅」まで17分-20分と、流石は東西線と言える抜群なアクセスを誇ります。東西線の停車駅は東京メトロ線や都営線に繋がる駅が目立ちますが、東西線の「大手町駅」で『東改札』から乗り換えをするとJR線の「東京駅」までも歩ける距離となりますので「東京駅」を利用する出張族にもオススメできる駅と言えます。「いや、そもそも東西線めちゃくちゃ混むじゃん…」っていう声が聞こえてきそうなので補足しておくと、確かに東西線は過去2019年度の混雑路線ランキングで日本一の称号を手にした路線ですが、パンデミックをきっかけに状況も変わったようで、今では混雑ランキングも10位圏外と超満員電車ではなくなりはじめていると言われています!
Xでも話題になったこのランキング。背景としては、日本橋や大手町に点在する、大手コンサルティング会社や大手IT企業がパンデミック以降もリモート勤務を継続したことから、満員電車が緩和した?との見解もあります(大手企業の影響力って凄い…)。
ちなみにこのランキング2023年では「舎人ライナー>日比谷線>埼京線>中央線>つくばエクスプレス線」が混雑路線ランキング上位5位の顔ぶれでしたが、2025年に入りAmazon JapanやAccentureといった世界的な外資系大手企業もリモート勤務解禁で週5出社になっており、ランキングの顔ぶれの変動がまたあるかもしれません。
混雑路線今昔
— あずさ🛋️🌃🎄 (@azzzzzzusa) January 19, 2025
☑️北から都心に入る路線が混雑
☑️南西から都心に入る路線の混雑率は大きく下がった
・日比谷線急上昇。中央線と埼京線は⁰上位維持。
・つくばエクスプレス、武蔵野線、大江戸線が特に順位を上げた。
・かつての王者東西線はランキング外。ITやコンサルが多くテレワーク進む。狙い目。 pic.twitter.com/vLZBLnw3By
なお「南砂町駅」はポジションで言うと、「東京駅」まで6kmの立地となります!同じ6km圏内で他にどんな駅があるかというと、高さ約170mの超高層複合施設の開発が発表された「西日暮里駅」や、カメイドクロック×タワーマンション開発で有名になった「亀戸駅」などが該当します。資産性の観点では「東京駅」や「新宿駅」といったビックターミナルへの距離や乗車分数が1つ指標と言われていますので、「南砂町駅」も同じように評価されてもおかしくありません。そんなまだ光を浴びていない「南砂町駅」ですが、正直自身も電車では駅を降りたことはなく、車でも素通りをしてしまっていたエリアになります。今回駅前に大規模マンションが建築されるという広告を見て街を1から歩いてみたのでご紹介です!
周辺環境
学校、公園、ショッピングモール、商店街、病院などが1つの街に点在します。密集している訳ではないためそれぞれやや距離はありますが、利便性は申し分ありません。駅前
駅の3、4、5番出口を出るとヤマダ電機、マクドナルド、サイゼリヤ、ダイソー、ドラックぱぱす、AOKIなどが密集しています。当マンションからも程近く、個人的にマクドナルドとサイゼリヤにささっと行けてしまう生活はグットポイントです。3つの大型ショッピングモール
また、駅前ではありませんが南砂町には3つの大型ショッピングモールがあります!SUNAMO
マンションから徒歩10分-11分の距離に位置し8つの大型店が入る商業施設です。『スーパー』はイオンフードスタイルが。『買い物』は西松屋、トイザらス、無印良品、ユニクロ、GU、カルディ、CAINZが。『グルメ』はスターバックスコーヒー、サーティワンアイスクリーム、丸亀製麺、大戸屋、ペッパーランチ、回転寿司みさき、焼肉のトラジなどが入り、日常生活が完結します。
トピレックプラザ
マンションから徒歩10分の立地で、3棟構成からなる商業施設です。『スーパー』はイオンスタイルが。『買い物』はホームセンターコーナン、キャンドゥが。『グルメ』はマクドナルド、ケンタッキー、スターバックスコーヒー、サイゼリヤ、バーミヤン、デニーズなど、ファミレスが多く入ります。他にもラウンドワンや屋上にはフットサルコート、テニスコート、BBQ施設などスポーツ、エンタメ色も強い施設となります。
アリオ北砂
マンションから徒歩20分前後と少し離れますが、『スーパー』はイトーヨーカドーが。『買い物』は、赤ちゃん本舗、ユニクロ、GU、LOFT、3COINSが。『グルメ』はマクドナルド、ケンタッキー、サイゼリヤ、ミスタードーナツ、スターバックスコーヒー、モスバーガー、SUBWAY、築地銀だこ、Gong Chaなどが入ります。その他1階の中央吹き抜け広場では定期的にイベントが開催されたり、3階にはキッズスペースがあったりと、賑わいのある商業施設です。
砂町銀座商店街
南砂町にはショッピングモールだけでなく商店街もあります。戸越銀座商店街、十条銀座商店街と並ぶ三大銀座商店街のひとつで、全長約670mに約130店が軒を連ねる商店街です。「南砂町駅」と「西大島駅」から徒歩20分と、決して立地が良い商店街ではありませんが、平日には約15,000人、休日になると約20,000人もの人が訪れる有名な商店街になります。毎年8月1週目金土日の3日間では「七夕祭り」が開催され、縁日やライブ、ダンスイベントで夏を盛り上げます。また、毎年10月末~11月頭土日の2日間では「すなぎんハロウィン」が開催され、仮装パレードや仮装コンテストで商店街が華やかになります。
その他、「ばか値市」といった月1のセールをはじめ、「豆まき大会」「サマーフェスティバル」など季節的なイベントが定期的に企画されており、マンション住民とのご近所付き合いだけでなく、地元の方々との交流もしやすい環境下と言えます。
南砂三丁目公園
ショッピングモールや商店街は何となく知っていた前情報でしたが、実際に街を歩いてみて感じたのは「あれ、良さそうな公園いっぱいあるじゃん…」という気付き。南砂三丁目公園、新砂のぞみ公園、新砂あゆみ公園、仙台堀川公園、荒川砂町公園、北砂公園、亀高公園、城東公園、東砂三丁目第二公園、日曹橋公園…などなどGoogleMAPで公園を探してみてもかなりの数の公園があることが分かります。特にマンションから徒歩5分に位置する『南砂三丁目公園』は魅力的な公園でオススメです!『南砂三丁目公園』は3つの遊具エリアに分かれ、砂場、すべり台、ブランコ、ターザンロープ、コンクリートのお山、複合遊具(すべり台、ネット、トンネル、うんてい)などなど、多くの遊具が揃っている公園で、特に幼稚園児から小学生まで多くの親子連れが遊んでいました。また野球場やバスケットゴールのあるエリアでは小学生高学年~中学生の子供達がのびのびとスポーツを楽しんでいたりと、特に土日は賑わう公園です。
また公園内は自然が豊かで12種類もの野鳥が集まる公園としても有名で、朝には鳥のさえずりも聞こえるようです。公園内には散歩ロードもあるので、子供達だけでなく、年配の方やペット連れのご家庭で賑わっています。
ちなみに、家に帰った後調べて知ったのですが、「メトロ スナチカ」という施設が公園内にあります。中には東西線の運転シミュレーターがあったり、はたらくクルマの展示があったりと、乗り物好きのお子さんにはたまらない施設になっているようです。雨の日はもちろん、何より無料で遊べる点はありがたい限り…
荒川・砂町水辺公園×江東花火大会
また、荒川沿いまで歩けば『荒川・砂町水辺公園』という広大な広場が見えてきます。こちらは毎年8月に開催される『江東花火大会』の開催場所でもあります!打上げ場所と客席がとにかく近く、迫力満点の中6,000発の花火を楽しむことができ、部屋の方位や階数によってはマンション内から花火鑑賞することができるかもしれません。部屋から見えなくても『荒川・砂町水辺公園』で花火鑑賞を楽しんでそのまま歩いて自宅に帰るというのもある意味贅沢だなと思いご紹介です。順天堂大学 東京江東高齢者医療センター
その他、ショッピングモール「SUNAMO」の向かいには大学病院があります。病院名に高齢者医療センターと記載はあるものの、小児科と産科を除く内科系、外科系の全診療科がある大学病院となるため、大きな病院まで歩いていける点は何かあった際の安心材料です。ざっと【南砂町】という街紹介をしてきましたが、冒頭にあげたように東京駅まで6km圏内だからこそ色んな街に近い点も知っておきたいポイント。
近隣の街
東陽町・木場・門前仲町・清澄白河隣町としては「東陽町駅」「木場駅」「門前仲町駅」「清澄白河駅」などがあります。木場エリアで広大な木場公園を楽しむも良し、門前仲町で下町の雰囲気や富岡八幡宮を参拝するも良し、清澄白河エリアでカフェやグルメを楽しむも良し、駅単位で独自の特徴があるのである意味飽きないエリアです。
また隣駅の「東陽町駅」までも実は歩いて11分-12分の距離なため、東陽町エリアも日常使いができてしまいます…オフィスも多いエリアなため、南砂町エリアよりも居酒屋やラーメン屋など個人店が多いエリアなので、チェーン店以外の味を求める時は東陽町エリアまで足をのばしても良いでしょう。
日本橋・銀座エリア
「日本橋駅」まで電車にて10分-11分で行けるアクセス性なので、土日にも気軽に日本橋にお出掛けが出来てしまいます。特にオフィス街である日本橋エリアは土日になると人通りも少なくなるため、グルメを楽しむにはきっと最高なお出掛けSPOTです。もちろん「日本橋駅」から東京メトロの銀座線で「銀座駅」までも2駅なので、買い物をする際は銀座エリアにお出掛けすることも増えそうです。
シーサイド、湾岸エリア
電車での移動はやや不便な行き先ですが、バスや車での移動ができれば、新木場エリアには「夢の島公園」が、葛西臨海公園エリアに行けば「葛西臨海公園の水族館」が、湾岸エリアに行けば豊洲やお台場をはじめ「買い物」や「エンタメ」を楽しむことができます。
敷地、配置
9,400㎡の敷地に5棟構成のマンションが建築されます。4方向の道路に接道しており、東側にはグランプロムナードというこのマンションに併設する形で新たな歩道が作られます。(とても綺麗な街並みに…)。さらに、マンションの1階部分には新たにスーパーマーケットが誘致されることに(これはデカイ!)。買い物の選択肢の多い「南砂町駅」ですが、平日は仕事返りにマンション内のスーパーで済ましつつ、土日は大型ショッピングモールでまとめ買い、なんて使い分けができそうです。
そして当マンションの一番の目玉は何よりも駅距離。敷地図の通りエントランスを出てから「南砂町駅」の1番出口までは目と鼻の先。徒歩1分という名の【ほぼ直結】です。駅からマンションまでの距離は約60m。駅の出口を出てすぐ、マンションの外観が見え、整備された道路を歩くともうマンションのエントランスです。(いやほんと近い…)
外観、エントランス
淡い色味の外壁で落ち着きのある外観と、重厚感のある門がエントランスとなります。真ん中にシンボルツリーを配置されることで、外からマンション内を覗きにくい設計となっているとのこと。駅近だからこそ人通りも多くなるので、まさに配慮された設計です。エントランスを進むと、THE LUXURY!最大約3.8mの天井高と100㎡超の広さのエントランスラウンジに繋がります(部屋着では歩けない…)。
共有部
ゲストルーム(地上10階)
なんとゲストルームがあります!これは想定していなかった…もちろん有償ですが、親戚や友人が泊りにくる際は大活躍間違いなし。パーティールーム(地上9階)
続いてはルーフデッキ付きのパーティールームも!住民同士の交流の場としても良し。ゲストを招いて過ごすも良し。記念日などに家族の時間で使うも良し。様々な用途で使うことが可能です(こちらも有償です)。ワークスペース(地上1階)
ワークラウンジまで!半個室があるもの嬉しいポイント。もちろん電源とWi-Fiも完備でリモートワークや勉強も捗りそうです。ゴールドジム(マンションより徒歩1分)
マンション内にはジムや運動ができるスペースはありませんが、マンションから徒歩1分の距離に「ゴールドジム」があり、共有部とは言えないですが当マンション入居者様優待で利用することができるそうです!(これは珍しい…)当然ジムなだけに器具の種類は豊富。スタジオではダンスやヨガ、ホットスタジオなどの教室も頻繁に開催。さらにはサウナも完備。これらが通常価格の半額で、尚且つ徒歩1分の環境で利用することができます。入居者の多くの方が利用するのでは?と思ってしまう共有部オプションです。その他、「レンタサイクル」や「雑誌読み放題サービス」があるなど、共有サービスとして使うことが可能です。「ゲストルーム」「パーティールーム」「ワークラウンジ」「フィットネス、ジム、サウナ」が使えるマンションと聞いて、”いやもうほぼタワマンじゃん”と感じ自身も検討しました。
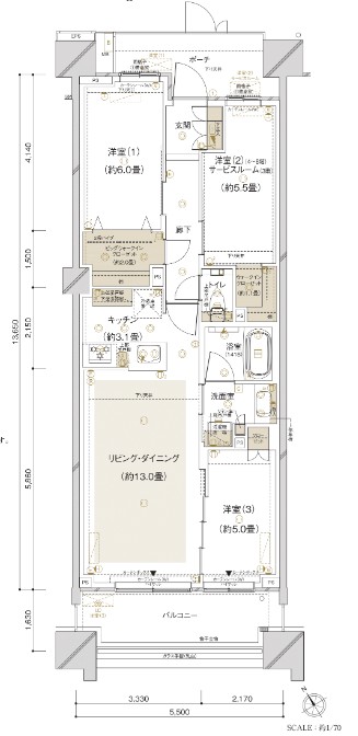
間取り
部屋の間取りや価格、仕様について確認していきます。3LDKを中心に、53㎡~104㎡の間取りがあり、次期の「第1期7次」もしくは「第2期1次」では下記4つの間取りがメインになるようです。【S-F Type】3LDK+BW+WIC(※4~8階)

【B-Bg Type】3LDK+2LDK+N:70.42㎡

【A-K Type】3LDK+WIC:67.74㎡

【M-B Type】3LDK+WIC:65.34㎡

間取りについては、【S-F Type】は見物で約2帖もの大きなWICがあり(「BW」=BigWICの略名)洋服も2列収納することが可能となります。一方、どの間取りも間口が5.4m~5.6mとなるため、個人的には【A-K Type】の横リビングタイプが㎡数のわりに広く感じるのでは?と予測しています。
販売価格
次期である「第1期7次」もしくは「第2期1次」の販売価格はまだ未発表ですが、これまでの販売実績は下記の通りです。第1期1次
販売戸数:40戸
販売価格:8,390万円~16,200万円
専有面積:53.23㎡~82.52㎡
第1期2次
販売戸数:20戸
販売価格:8,900万円台~12,800万円台
専有面積:60.32㎡~75.84㎡
第1期3次
販売戸数:15戸
販売価格:9,050万円~13,820万円台
専有面積:60.32㎡~75.84㎡
第1期4次
販売戸数:22戸
販売価格:8,990万円~17,900万円
専有面積:60.32㎡~82.52㎡
第1期5次
販売戸数:20戸
販売価格:9,040万円~13,900万円
専有面積:60.32㎡~75.10㎡
第1期6次
販売戸数:15戸
販売価格:8,870万円~14,010万円
専有面積:65.34㎡~73.72㎡
2025年6月に販売開始後、既に6回も販売会が開催されましたが、396戸の内100戸前後の供給ですので、まだまだ間取りや階数に縛られることなく選べる状況。直近の坪単価も448万円~628万円で推移しており、平均坪単価も520万円~530万円前後で販売されています。
他の新築マンションで話題になったような「1期1次の販売会を見送ったら1期2次で販売価格が10%-20%値上がった…」みたいなことは今のところ起きていない印象です。とはいえ2026年都心部の新築マンションの在庫も減ってきているのも事実。2026年は坪単価平均540~550万円前後で売出開始されるのでは?と予測しています。
良い部屋から埋まっていくのが新築マンションでもあり、ゴールドクレストは長い期間を設けて販売活動を行う傾向ですので、インフレが進むのであれば、じわりじわりと上がっていくことは容易に予測がつきます。検討するのであればお早めに…
仕様
ゴールドクレストのマンションギャラリー実は今回が初めてでしたが、印象としては「アウトフレーム工法」でデットスペースが生まれにくい間取りがまずは好印象でした。「カップボード(カウンター食器棚)」が標準導入なのも嬉しいポイント。また「ディスポーザー」も採用されていたので皆がまず第一に欲しい仕様は揃っている印象です。ネガティブポイント
良いことばかり書いてきましたが、ネガティブポイントも知っておいておきましょう。主に3点ご紹介です。ハザードマップ
南砂町エリアは荒川沿いになりますので、特に洪水に関するハザードマップは大きく関わってきます。そのため部屋の階数はハザードマップをしっかりと確認した上で選択することをオススメします。
物流センターや工場エリア
物流センターや工場が一部集中している関係から大型トラックが通るエリアになります。騒音や排気ガスは現地では気にならなかったものの、小学校の通学区である「南砂小学校」に行くには1本大きな道路(306号線)を通る必要があるため、交通事故リスクの観点では心配にはなりました(通学時間には大人が横断歩道前に立って誘導、監視してくれるのでは?と勝手に考えています)。ちなみに中学校は「第三砂町中学校」で徒歩2分の場所で安心です!
団地エリア
マンションの裏手には昔ながらの団地も多く残ります。新しい街ではないので当たり前ですが、新築マンションを検討する中で気にする方も一定数いらっしゃるためこちらも現地で体感してみることをオススメします。
どこの街でもあり得るポイントなので、上記3点があるから検討を辞めることはないように…何はともあれ現地を歩いて体感することが一番の答え合わせです。是非足を運んでみて下さい。
今後の発展、開発
最後に、「南砂町今後どうなるの?」という疑問に対し調べた限りの情報を整理してみました!
新砂二・三丁目地区まちづくり
南砂町駅の南側である新砂⼆・三丁目地区ではまちづくり計画が公表されています。駅前開発の計画ですが、まだまだ詳細な内容は具体化していません。とはいえマンション近くに開発の構想がある点は期待が高まります。南砂町駅のリニューアル
2つに分かれていた改札口を1つに統合したことで綺麗な改札口に生まれ変わっています。出入口のついては一部絶賛工事中で、2026年春前後に「南砂3丁目公園」近くの3番出口が再開される予定と聞いています。隣駅「東陽町駅」の『有楽町線延伸計画』
隣駅である「東陽町駅」まで徒歩11分-12分の距離となりますので、豊洲駅から住吉駅を結ぶ『有楽町線延伸計画』も間接的に影響を受けるでしょう。2030年代半ば開業予定とまだまだ先ですが、東京メトロ有楽町線や半蔵門線、都営新宿線、JR総武線などの路線にもアクセスしやすくなります。後発マンション
一部独自ヒアリング情報なため確かではない情報もあるかもしれませんが、南砂町エリアには今後も建築計画や工事計画がいくつかあります。・NTTデータセンターの跡地計画 → 住友不動産が土地を取得済
・ニトリ砂町の移転による跡地計画 → 住居用マンション予定(分譲か賃貸かは不明)
・東京オリンピック駐車場跡地計画(マクドナルド向かい) → 競売予定
その他、ヤマダ電機の横には空き地があり何ができるかは不明ですが東京メトロの保有地のようです。当マンションに限らず【南砂町】の開発情報は今後も話題になると予測しています。
ベンチマーク
南砂町エリアでベンチマークするべき物件をご紹介します。グランエスタ
今現在の南砂町エリアNO.1マンションは総戸数671戸を誇る『グランエスタ』です!「南砂町駅」まで徒歩2分-4分の立地でこの規模感は後にも先にも出てこないでしょう。2005年築と築21年を経過したマンションではありますが、2025年の取引事例では坪単価380万円~420万円で取引がされており、今現在は坪単価417万円~446万円で売出情報があります。築20年前後の中古マンション『グランエスタ』と新築マンション『クレストプライムシティ南砂』の価格差(単価の差)はそこまで大きく開いていないように感じました。
シティテラス南砂
また、2024年に既に竣工している住友不動産の『シティテラス南砂』は当マンションと同単価感で現在も販売中です。南砂町駅徒歩7分の立地ではありますが、通学校の「第三砂町小学校」や「トピレックプラザ」「南砂3丁目公園」に近いポジションとなるため、子育て環境は『シティテラス南砂』の方が良いのでは?…という見解もあります。今現在は坪単価486万円~662万円にて売出中とやや価格幅のある物件となります。
その他、NTTデータセンターの跡地も住友不動産が土地を取得しています。分譲マンションになる可能性も加味すると、エリアの相場を引き上げてくれる住友不動産の企画が2つもある点は、資産性の観点でプラスの要素と言えるでしょう。
まとめ
タワーマンションは存在しないものの板状の大型分譲マンションが多い南砂町エリア。駅1分でシンボル的な立地にある『クレストプライムシティ南砂』はエリアNO.1マンションになる可能性を秘めています。”資産性”も”利便性”も”居住性”も叶えるには駅近、駅前物件の選択が最も近道だと個人的に考えています。『南砂町駅はあまり知らないから…』というイメージだけで見送って欲しくない当マンション…街を歩けばきっとその魅力に気付くはず…ファミレスやチェーン店のバリエーションとラインナップはターミナル駅と遜色ありません!また、西松屋、トイザらス、赤ちゃん本舗、ユニクロ、GUがあればもう子育ての買い物は完結します!
時間を有効に、大手町や日本橋で働きながら家族や子供との時間も充実させたい…そんなファミリー層がターゲットになるようなマンションでした!
[スムラボ編集部より] 本ブログ記事の情報は投稿日時点のものです。現在の販売情報は物件公式サイトをご参照下さい。
スムラボ記事
この記事を見ている人はこちらも見ています
- 【穴場タワマン】利便性抜群の錦糸町北口にポジションセット『シティタワー錦糸公園』【SUGAR】
- MJR鹿児島中央駅前ザ・レジデンス(最新価格情報あり)【マンションタビト】
- 【バウス北綾瀬タワー】駅徒歩3分×優秀な間取りはQOLを引き上げる【Sana】
- 6月に気になる物件(重複無しで選んでみた・ザ・ライオンズ世田谷八幡山)(キットキャット)
スムログ記事
記事に出てきた物件の掲示板
- シティテラス南砂(検討スレ) | (住民スレ) | (まとめ) | (スムログ)
- クレストプライムシティ南砂(検討スレ) | (まとめ) | (スムラボ) | (スムログ)
公式サイトもチェックしよう!

- 東京都江東区南砂3-
- 東京メトロ東西線 南砂町 駅徒歩1分
- 価格未定
- 2LDK+S(納戸)~3LDK
- 58.04m2~82.35m2
- 販売戸数 未定 / 396戸














































記事にコメントする