こんにちは、よかレジです。
本日は、全部屋億ション&全部屋竣工前アンダー完売した幻の物件(?)プレミスト大濠公園を紹介します。
オーナーさまのご好意でお部屋にご招待いただきましたので、恐れ多いですがレビューさせていただきます。
それではいってみましょう!
物件概要
・物件名:プレミスト大濠公園・所在地:福岡県福岡市中央区荒戸3丁目373番 (地番)
・交通:福岡市営地下鉄空港線 「唐人町」駅 徒歩3分
・用途地域:商業地域
・建ぺい率:67.22%
・容積率:399.96%
・総戸数:23戸 (他に管理事務室1戸)
・敷地面積:646.53㎡ (建築確認対象面積)
・建築面積:434.63㎡
・延床面積:3735.21㎡
・構造および階数:鉄筋コンクリート造・地上13階建
・間取り:3LDK
・住居専有面積:90.97㎡~180.43㎡
・バルコニー面積:14.20㎡~24.24㎡
・サービスバルコニー面積:2.83㎡
・ルーフバルコニー面積:34.51㎡
・駐車場:25台 (タワーパーキング: 24台、平置: 1台)
・自転車置場:35台 (垂直昇降式11台、スライドラック: 24台)
・バイク置場:2台
・工事完了年月日:2025年6月
・引渡可能年月:2025年7月
・事業主・売主:大和ハウス工業株式会社 マンション事業本部
・管理会社:大和ライフネクスト株式会社
・設計・管理:株式会社エスプラスアーキテクトデザインオフィス
・施工:金子建設株式会社
立地

プレミスト大濠公園公式資料より

プレミスト大濠公園公式資料より
アドレスは福岡市中央区荒戸3丁目。
明治通り沿いに位置し、もともとプレミスト大濠二丁目のモデルルームがあった場所に本物件が建っています。
“プレミスト大濠公園”の名の通り、まさに大濠公園を眺めるためのマンションという立地です。
まず、荒戸は用途地域が商業地域で、比較的高い建物が建てやすいという特徴があります。
一方で、明治通りの反対側(大濠公園アドレス)はまた用途地域が変わり、さらに大濠公園までに建つ建物が
・2階建の交番
・5階建の賃貸マンション
・6階建相当の事務所兼個人宅(?)
といった低層の建物のみとなるため、将来的な前建てリスクはかなり低いと言えるでしょう。
大濠公園の湖面が見えはじめるのが、おそらく本物件の7階からになると予想されます。
湖面の輪郭まで綺麗に見えるお部屋となると10階以上が目安といったところでしょうか。

本物件の前建て。Googleマップに筆者加筆

本物件は建蔽率・容積率緩和の境目に位置します。福岡市Webマップに筆者加筆
本物件を検討する方は車移動メインの方も多いと思いますが、地下鉄空港線唐人町駅から徒歩3分と、公共交通機関での移動も便利な立地です。
また、物件としては小規模物件に属しますが、視認性が高くなかなか目立つのも高評価です。
特に黒門川のほうから見ると本物件がとても綺麗に見えます。

黒門川から本物件を撮影。写真真ん中に写るのがプレミスト大濠公園!
デザイン

プレミスト大濠公園公式資料より
ベージュ系の落ち着いたデザインです。
直近の福岡におけるプレミストシリーズはプレミスト大濠二丁目、プレミスト赤坂けやき通りがありますが、個人的にそのラインナップで一番好みのデザインです。
本物件のデザインの格を一段も二段も上げていると感じる最大の要因、それは間違いなくサッシ(ダイレクトウィンドウ)の大きさにあります。
最近、首都圏某物件での「なんちゃってハイサッシ」採用がXで物議を醸していましたが(?)、高級感を演出する上でサッシのデザインは必要不可欠な要素だとよかレジは思います。
※後から変えられない要素ですので、デベロッパーの方にはこの点を本当に軽視しないでほしいと切に願います…!
本物件のサッシは、その重要性を理解した設計になっています。
特徴としては、中央部のサッシの幅が特大で中桟(切れ目)がない!
この仕様により、窓全体がスッキリしていて、また高級感もグッと増して非常にカッコいいです。
サイドのサッシは通風のために開閉式で、これはまあ構造上仕方ない部分ですが、リビングの中心となるメインの窓は、絵画のように風景を切り取ってくれる大きな窓面が採用されています。
本物件が大濠公園を眼下に収める立地であることを考えれば、この大きなダイレクトウィンドウは、まさにうってつけです。
今回、このような素晴らしいサッシを採用してくれたダイワハウスさんにはあっぱれと言いたいです!(誰)
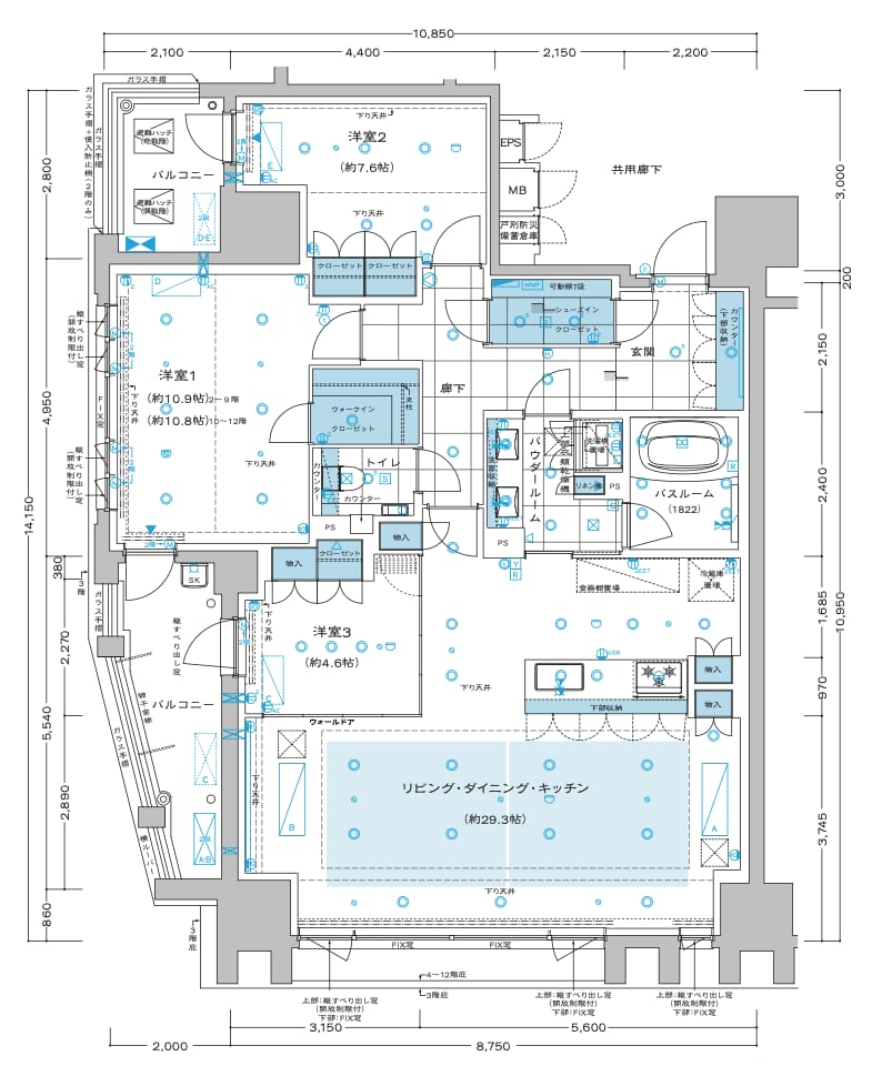
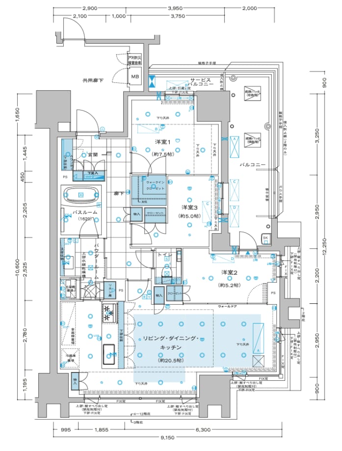
間取り
間取りは全部で3プランです。一番小さいお部屋で90㎡。続いて120㎡。最上階13階は1フロア1部屋の180㎡ペントハウス!
各プラン、大濠公園方面(南側)に大きなダイレクトウィンドウを備えたリビングが特徴的な間取りです。
なお、最上階はダイレクトウィンドウに加えてルーフバルコニーもあるため、リビングのみならず、バルコニーから風を感じながら大濠公園を眺めることもできます。贅沢すぎる・・!

プレミスト大濠公園公式資料より Aタイプ120.71㎡

プレミスト大濠公園公式資料より Bタイプ90.97㎡
それでは建物内にお邪魔します(ウィーン)
エントランス

ラウンジ

ラウンジに使われている石材

エントランス(まだ養生がついています)
落ち着いたエントランスで、和の雰囲気も感じるテイスト。
ダイワハウスの物件は石材の使い方が上手い印象で、今作も非常に高級感・重厚感ある作りに仕上げています。
共用施設は小規模物件ゆえにこのエントランスラウンジのみです。
ちょっとした来客対応や商談などに使えそうですが、わりと外からの視線も気になります。(画角的にはそう見えないかもしれませんが)
プライベート感の演出という点では、もう少しやりようがあったのかなと素人ながらに感じました。
駐車場
駐車場は総戸数23戸に対して25区画です。内訳
・平置き:1区画 ※1301号室(最上階)に専用使用権付与
・タワーパーキング(EV対応):4区画 ※1201号室に専用使用権付与
・タワーパーキング(EV非対応):20区画
上から2つのお部屋(1301号室、1201号室)については2区画が確約。それ以外のお部屋は1区画が確約です。
地下鉄空港線唐人町徒歩3分のマンションでありながら、100%を超える駐車場設置率は流石といったところです。
続いてパレットサイズはこちら。
パレットサイズ
・全長:5,300mm
・全幅:2,050mm
・全高:2,050mm
・車両重量:2,500kg
・最低地上高:100mm
・タイヤ外幅:1,960mm
高級物件らしくパレットサイズはかなり優秀です。
欲を言えば、フラットパレットを採用してもらえるとより良かったと思います。
※プレミストシリーズでいうと、プレミスト天神赤坂タワーがフラットパレットを採用
また、駐車場動線については雨に濡れない動線となっていて、この辺はしっかりとツボを抑えています。

画像だと分かりにくいですが雨に濡れない動線です
管理
管理面についてもこちらで紹介します。首都圏の水準から比べると安いかもしれませんが、福岡のマンションとしてはやや重ためのランニングコスト。
管理費・修繕積立金
・管理費:267円/㎡
・修繕積立金:201円/㎡
・インターネット使用料:1837円
→ランニングコスト合計:483円/㎡
第三者管理の採用
管理方式は第三者管理方式を採用しています。
区分所有者で構成される理事会によってマンションを管理する従来の方式に変わり、マンション管理士等の専門資格を有した管理のプロに業務を委託する「第三者管理方式」を採用。通常は理事会で行う業務をプロに任せることで、所有者の負担を軽減できるほか、理事のなり手不足などの問題も解消します。
プレミスト大濠公園公式資料より抜粋
本物件を検討する方はセカンドハウスでの購入も多いと推察しますので、これは住民にとってポジティブな要素かと思います。
内廊下

内廊下その1

内廊下その2(空調)

内廊下(専有部ドア前)

内廊下(専有部ドア前)
とても高級感のある内廊下です。
壁面タイルの色もあいまって、かなり暗めです。(個人的には暗めな内廊下好きです)
壁にクロスではなくタイルを採用しているのはGoodです。
直近ですと、ザ・パークハウス大濠翠景も内廊下にタイルを採用していてとてもカッコよかったです。
エントランスから専有部分までの一連の設えは、ハイレベルで、完成されている印象を受けました。
毎日通る動線が満足いくものかどうかはとても大事なポイントです。
ここで、よかレジが最も重視する分譲マンション三種の神器(仮)についても紹介します。
三種の神器(仮)
・内廊下:⚪︎
・ディスポーザー:⚪︎
・各階ゴミ置き場:×
小規模物件なので仕方ない部分はありますが、各階ゴミ置き場はなしです。
ゴミ捨て動線は、屋外に一瞬出ますが雨には濡れないようになっています。
また、プライバシー性も保たれた動線となっています。
それではようやく専有部分にお邪魔します(ガチャ)
まず専有部に入った瞬間に感じたのは空間の広さです。それもそのはずで、本物件は玄関も廊下もかなりの高さが設けられています。

玄関。ゆとりありますね〜!

玄関天井高は2.5m近くあります

玄関と廊下(写真だとなかなか広々とした空間が伝わらずすみません..)
また、フルハイトドア(床から天井まで高さがあるドア)を採用しており、空間全体として伸びやかな印象をより際立てていました。

ほぼ全てのドアで床から天井まで伸びるフルハイトドアを採用。こちらは洗面所内ドア
専有部分の仕様
・基本天井高:2,700mm・LD天カセエアコン
・CUCINA製キッチン
・CUCINA製洗面
・玄関、廊下、トイレ、洗面所、タイル貼り
・タンクレストイレ
・乾太くん標準装備
・共用廊下側に防災備蓄倉庫
・スロップシンク
専有部分の仕様・スペックはプレミスト大濠二丁目とプレミスト赤坂けやき通りの仕様をミックスしたような仕上がり、といった感じでしょうか。

CUCINA製キッチン

CUCINA製洗面

天板マテリアル。質感高かったです!
前作、プレミスト赤坂けやき通りでも採用されているCUCINA製のキッチンや洗面は質感も高く、暇があれば思わず天板をスリスリしてしまいそうです。

床材マテリアル(廊下)

床材マテリアル(LDKフローリング)

クロスマテリアル
廊下と水回りの床材はNAGOYA MOSAIC製のタイルが採用されています。
また、LDKや各居室にはグレージュ系の比較的大判のフローリングを採用。
壁もグレー系のクロスを使っており、全体的なテイストはグレーやベージュをベースとしたイマ風なトーンで仕上げられています。

乾太くんが標準搭載
乾太くんも標準装備!(本物件を検討する層が好む設備仕様かどうかは諸説ありそうですが)
個人的には、乾太くん標準装備という点より洗濯機置き場(乾太くん置き場)にしっかりドアがついていることの方が注目ポイントです。洗濯機置き場にドアがついているのは控えめに言って最高です。

ドア部分セットバック。空間の優雅さに繋がる。
プレミスト大濠二丁目でも採用されていましたが、ドア部分のセットバック幅が広めに取られています。こういった細かいところに格や上品さが表れますね。
眺望。いや、超望
リビング等の室内は詳細までお見せすることができませんが、ダイレクトウィンドウからの眺望写真をお見せいたします。
眺望。いや、超望!
先にデザイン、特にサッシの素晴らしさについて語りましたが、やはりこの物件の真の魅力は、その窓の先に広がる眺望にあります。
正直なところ、いくら写真を撮ってもこの空間に身を置いて感じた美しさや迫力は伝えきれません。しかし、言葉を尽くしてその魅力をお伝えします!
「動きのある眺望」は、飽きることがない。
単に「眺望が抜けている」だけでなく、この物件からの眺めは、まさに飽きにくい眺望の理想形です。なぜなら、そこには常に動きがあるからです。
・大濠公園の湖面に浮かぶアヒルボート
・池の外周を散歩、ジョギングする人々
・空を舞う鳥たち
・季節で変わる木々の色
などなど、そのすべてがこのリビングから一望できます。
私が訪問した日中の時間帯も、太陽の光を受けた湖面が美しかったですが、オーナーさま曰く
「朝は太陽の光が湖面いっぱいに降り注ぎ、キラキラと光って本当に絶景なんですよ。」とのこと。最高すぎやないかい!
総評
よかレジが評価するのも烏滸がましいレベルですが、総じて、この価格帯・この立地を選ぶ方のニーズを的確に捉え、マンション全体で妥協なく応えている、そんな印象を受けました。繰り返しになりますが、やはりまずはサッシ(ダイレクトウィンドウ)が良いですね。
あの幅広サッシからの眺望は本当に贅沢です。訪問させていただいた際も、ついつい窓のほうに目が向いてしまい気づいたら見惚れてました(笑)
また、眺望だけではなくプレミストシリーズらしい設備仕様の高さも素晴らしかったです。
各階ゴミ置き場がなかったり、タワーパーキングが非フラットパレットであったり、「より完璧を目指すならここをこうしたい・・!」といった細部の追求は残るものの、総合的なスペックとしては福岡のマンションの中でもかなり上位に入ってくるでしょう。
立地も、大濠公園を眺めることができるマンションは数多くあれど、条件良く湖面を眺めるという点においては、前建てや法令制限(用途地域)の特性も踏まえ、トップクラスのマンションだと感じます。※今回おじゃましたお部屋が比較的高層階だったこともありますが
加えて、間取りも3LDKのみ・専有面積90㎡、120㎡、180㎡とコンパクトなプランを排除した思い切りの良いユニット構成で、ステータスと希少性を際立たせています。
近年、スペシャルな条件のマンションは単なる不動産ではなく、一点ものの美術品や骨董品のように捉えられる傾向が強まっています。
全部屋億ション&全部屋竣工前アンダー完売という事実が示すとおり、福岡や大濠公園を愛する富裕層が「いつか辿り着きたい。高くても欲しい。」そう思えるような、まさにアートのようなマンションだと感じます。
最後に、個人的に妄想するプレミスト大濠公園ライフですが、私が住むなら電動のカーテンレールを取り付けたいと思います。
朝起きたら、まずはカーテンオープンのスイッチをポチッとな。すると今日も始まるわけです、ワイの大濠公園ライフが…(完)
最後までご覧いただきありがとうございました!
今後、新築マンション訪問や、オーナーさまへのインタビューなど、福岡のマンションに関する情報発信をもっと強化していきたいです。
もしも、お付き合いいただける方がいらっしゃったらTwitter(現X)や、よかレジの公式LINEからご連絡いただけると幸いです!
あらためまして、オーナーさま、この度は素晴らしいお部屋に招待いただきましてありがとうございます!
それでは、また!
スムラボ記事
この記事を見ている人はこちらも見ています
- 【福岡】グランドメゾンOne大濠Parkの雑感【よかレジ】
- 【プレミアム記事】住宅ローンを3本契約(3重ローン)して支払額がとんでもなかった話【すごろく】
- 【福岡】ザ・パークハウス大濠翠景 モデルルーム訪問後の考察 ※予定価格あり【よかレジ】





















記事にコメントする