こんにちは!なごぐらんです。
今回は初めてファーストインプレッション記事を書こうと思います!記念すべき最初の物件はパークタワー栄になります。
2月下旬にXでファーストインプレッションとして書いてほしい記事をアンケートで募集しましたが、僅差でパークタワー栄が1位となりました!2位のレーベン御器所 M’s TOWERとはおよそ5票差の僅差だったので、個人的にはやや意外な印象を持ちました。特に東海エリア外の方でマンション名だけ見たらパークタワー栄かブランズタワー名古屋今池と思った方もいるのではないでしょうか??ここはファミリー向けの物件を探されている方のほとんどがレーベン御器所 M’s TOWERに流れたのが要因ではないかと思っております。今回は私なごぐらんが地元民目線でこの物件をどう捉えているのかを忖度なしでぶったぎっていきます!!他の2物件も近いうちに記事を上げようと思っていますので、他に投票された方はもう少々お待ちいただければと思います。それでは早速見ていきましょう!
物件概要
所在地 :愛知県名古屋市中区栄2丁目1403番(地番)
交通 :名古屋市東山線「栄」駅 徒歩10分
名古屋市東山線「伏見」駅 徒歩8分
名古屋市名城線「矢場町」駅 徒歩9分
用途地域 :商業地域
敷地面積 :1,121.15㎡
建築面積 :599.28㎡
建築延床面積 :9,811.92㎡
総戸数 :95戸
間取 :1LDK~3LDK
面積 :50.01㎡~161.43㎡
構造・規模 :鉄筋コンクリート造地上24階建
権利形態 :敷地は共有、建物は区分所有
竣工時期 :2029年1月下旬竣工予定
入居時期 :2029年2月下旬入居予定
駐車場 :54台(敷地内機械式52台、敷地内平面2台)
売主 :三井不動産レジデンシャル株式会社
施工会社 :矢作建設工業株式会社
管理会社 :三井不動産レジデンシャルサービス株式会社
掲示板:パークタワー栄ってどうですか?
立地・周辺環境
立地としては栄2丁目ということで、栄と伏見の中間付近になり紛れもなく都心エリアになります。が、しかし駅からはどの駅からも8~10分と絶妙に遠い形です。アクセスだけでいえばここより優れているタワーマンションは沢山あるといえるでしょう。以前の記事にも書いたとおり、名古屋は駅から遠いマンションはたとえタワーマンションであっても評価されていないのが現状です。基本的には駅徒歩5分以内を私としてもおすすめしていますので、そういう意味ではこの物件はあまり実需には向いていないと言えるかもしれません。この記事を書くうえで真っ先に比較対象に上がるのが積水ハウスのグランドメゾン栄 The Towerになるとおもいますが、そちらは伏見駅より徒歩4分を取れていますので、立地についてははっきり劣っていると考えます。立地でいうとタワー・ザ・ファースト栄三丁目が新築では近いかなと思いますがこちらも竣工販売が続いていますので、栄三丁目といえどもこの周辺は現状はエリアとしてはあまり評価されずにブランド性やスーパーが近くにあるかなど物件ごとに評価されていると個人的には見ています。まあファミリー向けではないエリアですのでシングル向きかなと思っていたのですが、後述の間取りでは意外にもそうではないような・・・このあたりは間取りのところで触れていきたいと思います。
周辺環境については、まずはなんと言っても都心最大級の白川公園まで徒歩2分というのはストロングポイントでしょう!白川公園以外で都心に大規模な公園はありませんので、ここは他の物件との差別化ポイントになると思います。ただスーパーは至近には存在せず、東に動いて松坂屋や三越のデパ地下に行くか、西に動いてMEGAドンキにいくか、北に歩いてタチヤに行くか・・・全部が10分ほど歩く距離ですので買い物利便は低いかなと。グランドメゾン御園座タワーの1階にある御園小町が1番近いでしょうか、ここも基本的には御園座に来る方向けのラインナップなので物足りないんですよね・・・また教育環境についても公立ですと栄小学校まで13分、前津中学校まで19分と遠いですので、インターナショナルなどを検討しても良いかもしれません。インターナショナルスクールが入るとも言われている、「ザ・ランドマーク名古屋栄」(タワマンみたいな名前・・・)までは徒歩10分となります。
6月11日(木)に開業ということでもう3ヶ月を切っていますが、TOHOシネマズや低層部には「HAERA」というラグジュアリーモールができるとのことで私はかなり楽しみにしています!!名駅の再開発がうまく進んでいない中で、「ザ・ランドマーク名古屋栄」は完成までこれて感無量って感じです。パークタワー栄からも近いは近いですが、電車に乗ればザ・ファインタワー名古屋今池やグランドメゾンThe池下ガーデンタワーからも10分くらいで来れるので、ストロングポイントといえるかは微妙です。歩きの方がいいじゃんと思いがちですが、名古屋の夏をナメてると本当にきついですからね・・・ただカフェなどお店は都心エリアですので沢山ありますので、ここは何を求めるか次第といったところでしょう!ここでもやはりファミリー向けではなく、シングルやセカンドハウス向けの印象を持ちました。
デザイン
この物件の最大の目玉は、デザイン監修があのホシノアーキテクツであるところでしょう!東京でいうと豊海タワーなどのデザインを監修しており、それらは非常に高い評価を受けています。名古屋でいうとパークコート覚王山山門町に続いて2物件目でしょうか?本物件についてはこれまで多かった曲線主体のデザインではなく、角を強調したスタイリッシュなデザインが特徴的です。
個人的に惹かれたのはエントランスのデザインですね!モダンな雰囲気を醸しつつ、和の気配も感じさせるようなバランスが非常に絶妙で、個人的には帰宅時のテンションが上がりそうだなあと思いました。
共用部
1階については徒歩・自転車・自動車の3つの導線が敷地形状をうまく利用して分けられています。またエントランスとラウンジ部分(建物北東部分)については、敷地平面図から二層吹き抜けになっていることが読み取れます。(敷地平面図は限定サイトから閲覧できます)
共用部 四種の神器
エレベーター:〇(非常用含め2機)
内廊下 :〇
ゴミストック:◎(各階ゴミ置き場あり)
駐車場 :△(およそ57%)
共用部についてはタワーマンションとして最低限必要な設備は用意されています!また構造もしっかりと免震構造が採用されているのは良い感じです。しかし平面図を見る限り、1番共用部がありそうな2階部分は吹き抜け以外は住戸と電気室しかなくゲストルームなどの共用施設は一切ないように見えます。(可能性があるならスカイラウンジくらい・・・?)
総戸数95戸という規模感からするとこのラインナップは当然な範囲と思えますが、個人的に名古屋初のパークタワーでゲストルームすらないのはちょっとどうなの??というのが正直に感じたところです。ホシノアーキテクツデザインであることを除けば、仕様感は分かりませんがその他はパークホームズと言われても仕方ないような・・・グランドメゾンやプラウドタワーに目が肥えすぎているだけかもしれませんが、価格も高いことが予想されるためそれを納得させるような何かはほしいなと率直に感じました。
専有部
先に総戸数95戸の内訳から見ていきましょう。- 全体:95戸
2LDK:20戸 (21%)
3LDK:64戸 (67%)
- 低層(3〜12F):53戸
2LDK:20戸 (38%)
3LDK:22戸 (41%)
- 中~高層(13〜24F):42戸
2LDK:0戸 (0%)
3LDK:42戸 (100%)
総戸数の2/3が3LDKとかなり尖った間取り構成となっており、特に13階以上の中高層階ではベーシックプランは3LDKのみとなっています。HPを見るとメニュープランは用意されているとのことですが、ファミリー向けの立地ではないのに3LDK主体にするのはどういう意図かは単純に気になります。(MR訪問時に忘れてなければ聞いておこう)
参考までにグランドメゾン栄 The Towerは2LDK主体となっており、2つの物件で大きく違うように見えます。グランドメゾン栄 The Towerは71平米でも2LDKですが、パークタワー栄は63平米の3LDKと攻めた間取りがあり、その差は歴然でしょう。富裕層に売りたいのか、実需に訴求したいのか私が素人だからかよく分かっておりません・・・
▶参考記事
設備仕様についてはHP上で未公開ですので詳細は不明ですが、食洗機は90平米以下はリンナイ社製、91平米以上はミーレ社製とグレード分けされているようで、オプションでのグレードアップは可能なようです。(時期による)間取りについては公式HPに一部が、限定サイトにすべての間取りが記載されています。気になる方は限定サイトに登録してぜひすべての間取りをご覧いただければと思います!
個別の間取りに入る前に気になったことが一つ。HPで「LD天井高2,400㎜~2,750㎜を確保
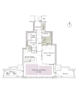
ピラミッド型のクセが圧倒的に1番強い1LDKです。中住戸ですがLDにダイレクトウインドウ(?)が採用されており、バルコニーが両サイドに伸びていることでこのようになっています。高層階の3LDKの一部を刈り取ってそのまま1LDKにしたため、この形状になったものと思われます。バルコニーを省けば普通の間取りですが、1LDKはこの間取りしかないので何とも言いがたいところです。
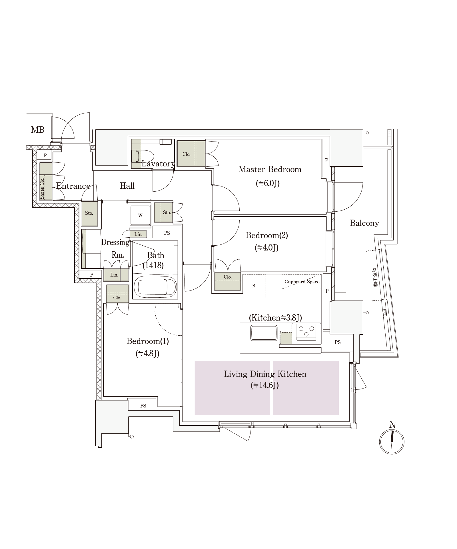
こちらは2~12階までの低層階で南東角住戸3LDKですが、こちらは比較的きれいな間取りになっています。ただ廊下部分が広いことで収納部分がかわりに狭くなってしまっているのが少し残念ポイントですね。LDにはダイレクトウィンドウが採用されていて、トイレには手洗いカウンターがついていることが読み取れます。床暖房がLDしかないのはコストカットの影響でしょうか・・・もう最近はこれが標準になってきているくらいですね。眺望についてはスムハジメさんのスムラボ記事できれいにまとめられていますので、ぜひそちらをご覧いただければと思います。
なごぐらんの本音
パークタワー栄ですが、一部では平均坪単価が590万円ほどでは?と噂されています。その情報の正確性について私レベルでは把握できませんが、仮に本当だとしたならば「高いな」というのが私なごぐらんの現時点の感想です。間違いなくライバルになるであろうグランドメゾン栄 The Towerの平均坪単価が600万円前半ですので、この価格差で資産性を考えるならばグランドメゾンの方を間違いなく買うべきであろうというのが私の考えです。名古屋ではグランドメゾンが頭1つ以上抜けており、それはリセールバリューにも直結しています。また伏見駅という視点で考えると、プラウドタワー名古屋栄やプラウドタワー名古屋錦など商業施設を下駄に履かせて共用部が充実しているタワーマンションも複数あり、中古市場に並んだときに共用部がほとんどない本物件は相対的に築浅以外のストロングポイントを出すことは難しいのではないかと考えています。(これらで現状は坪400前後くらいが成約相場でしょうか)
この記事を読まれている方で名古屋エリア以外の方(特に首都圏の方)だとパークタワーブランドは高く評価されている方も多いと思いますが、名古屋ではグランドメゾンやプラウドよりも序列としては少なくとも現状は下の立ち位置です。同じくホシノアーキテクツデザインのパークコート覚王山山門町も中古では最近ようやく坪400弱で成約が出始めたところで、名古屋ではそこまで高く評価される要素ではないように感じています。タワーと低層で全く違うので単純比較はできませんが、だいたい都心:近郊は同条件だと1:0.8くらいの単価差が体感なので、それだと現時点では坪500前後くらいが中古での一つ目安になるラインかなと思います。これは2026年時点の感覚ですので、竣工する2029年には建築費がさらに高騰して割安になっているかもしれませんし、経済不況でマンション購入どころではないかもしれません。名古屋初のパークタワーなので相場がどう評価するかというところでしょうか、地元民の私のファーストインプレッション時点での感想はこんなところです。
最後までご覧いただき、ありがとうございました!またMR訪問後に第2弾の記事を書ければと思っていますので、どうぞお楽しみにしていただければと思います。(MRに1度いったら手のひらくるりが現実的にありそう)
Xで情報発信もしてますので、ぜひフォローいただけますと幸いです。それでは!!
なごぐらんのXはこちら
[スムラボ編集部より] 本ブログ記事の情報は投稿日時点のものです。現在の販売情報はLifull Homesをご参照下さい。



-268x300.jpeg)
-300x268.jpg)
-300x176.jpg)
-156x300.png)
-300x150.jpg)
-300x238.png)
-250x300.png)
-250x300.png)




-300x200.jpg)
-300x200.webp)
-300x200.jpg)
-300x200.jpg)












記事にコメントする