ハロー、住む場所は人生を豊かにする、がモットーのクリスティーヌです。
「ブリリアタワー 池袋 West」を検討するにあたって押さえておきたい事項や、注目のお部屋について、予定価格と共にお伝えします。
ここは、【2021年12~2022年2月版】スムラボブロガーが本音で選んだ気になるマンションBEST3《関東/東日本編》で、クリスティーヌの気になるマンションの一つでした!池袋の西口がわりと好きで、西口まで近いことと、あたりののんびりとした雰囲気が、これは池袋の中でも希少なポジションなのではとピンポイントで非常にしっくりきたんです。
そのあたりについては前回の記事をご覧ください。こちらです。
目次
外観

出典 公式HP
店舗棟について
大型スーパーが1階に入ります。マンションの住宅棟の正面向かって左隣に、低層の店舗棟が併設されます。まだどのスーパーが入るかは未定です。
- 店舗棟は2階建てです。
- 2階部分は、1階部分の半分以下の広さです。
- 1階はスーパーですが、2階は同じスーパーになるのか、2階は別の店舗になるのかは未定です。

出典 公式HP 一部加筆
店舗棟は奥に深く伸びています。

出典 公式HP
現状では小さな「まいばすけっと」が、道の向かいにあるのみです。
物件概要
- 名称 ブリリアタワー 池袋 West
- キャッチフレーズ IKE・NISHI 住み尽くせる池袋、愛し尽くせる人生
- スケジュール(予定)
- 竣工 2024年1月下旬
- 入居 2024年3月中旬
- 販売開始 2022年4月下旬
- 場所
- 東京都豊島区池袋三丁目1631-1、1631-50、1631-51(地番)
- 交通
- 東京メトロ丸ノ内線「池袋」駅徒歩5分(C1出口より)
- JR山手線「池袋」駅徒歩10分(西口より)
- 東京メトロ有楽町線「要町」駅徒歩3分(5出口より)
- 敷地面積 3,691.63m2
- 建物
- 総戸数 230戸 (他、店舗1区画)
- 地上30階 地下1階建て鉄骨造
- 所有権
- お部屋
- 1LDK~3LDK
- 専有面積 38.61m2~103.72m2 (トランクルーム0.31m2~1.01m2含む)
- バルコニー面積 7.21m2~39.77m2
- サービスバルコニー面積 4.37m2
- 駐車場他
- 駐車場台数 54台(機械式:46台、平置き(身障者用1台、カーシェア用1台、荷捌きスペース1台含む):8台)
- 駐輪場 232台(ラック式:173台、平置き:59台)
- ミニバイク置場 6台
- 企業
- 売主 東京建物株式会社・三菱地所レジデンス株式会社・東急不動産株式会社
- 施工 前田建設工業株式会社東京建築支店
- 設計 前田建設工業株式会社一級建築士事務所
- デザイン監修 アーキサイトメビウス株式会社
- 管理 株式会社東京建物アメニティサポート
立地
エントランス
「ブリリアタワー 池袋 West」のエントランスは、一番池袋駅に近い側に作られます。2層吹き抜けのエントランスラウンジです。
良いと思ったポイント
ディスポーザー、床暖房など、一通り揃っています。カーシェア(テスラ)が一台用意されます
米テスラ社製の電気自動車「モデル3」です。住民専用のカーシェアリングです。
各階ゴミステーション
各階で良かったです!
スマホで解錠できるインターホン
スマホでインターホンを操作でき、外出時でも外から開け閉めできます。
個別宅配ボックス
玄関ドア付近に個別宅配ボックスがあります。不在の時は、配達の人がメインエントランスのインターホンを押し、スマホで応答し、スマホでメインエントランスを解錠して、自宅玄関横の宅配ボックスに入れておいてもらう、という使い方ができます。
玄関横のトランクルーム
トランクルームも個別宅配ボックスと同じように玄関横あたりに設置されます。
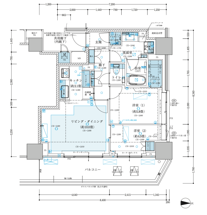
天井高が260センチ
基本の天井高は260センチです。ただし、ハリが下がっているところはそれよりも低いです。
キッチン浄水器
最近の浄水器には、蛇口の中にカートリッジが埋め込まれているタイプが多いですが、そうではなく、浄水器をシンク下に置くタイプなので、カートリッジを交換する頻度が少なめに済むことが嬉しいです。
オプションが豊富
初回の訪問では個別のオプションまで進みませんが、キッチンの棚が選べる等、わりとふんだんにオプションが用意されている印象でした。お部屋にもよりますので、ご確認ください。
エアコン
リビングには1台エアコンが標準装備されるとのことです。
第一期で低層階を売り出すこと
最近は、タワーマンションの販売の際に低層階や1LDKは第一期に売り出さないケースもあるのですが、今回、第一期で低層階や1LDKを選ぶことができるのはいいなと思います。グロスを抑えめで考えたい方には助かりますね。
懸念ポイント
良いところがいっぱいある「ブリリアタワー池袋West」なだけに、検討にお役に立つことを願って、懸念ポイントも挙げておきます。なお、以下に挙げた懸念ポイントは、まったく気にならないという人もいるかと思います。スーパーにたくさん人がやってくるだろうこと
大型スーパーが併設され、これで近隣の人の流れが一気に変わると思います。
近隣に大型スーパーがないため、わりと広範囲に住んでいる近所の人たちが、かなりの確率で自転車でやってくることが予測されます。最近ではたいてい警備員さんなどが配置され、自転車の不法駐車などを避けるようにしていますが、それでも数が捌き切れない場合もあるかもしれません。
エントランスからは離れているので、そこまで気にならないかとは思いますが、スーパーがあるために、スーパーにやってくる人の往来が多くなることは、静かに暮らしたい人にとっては懸念ポイントです。
ただ便利さではダントツにメリットなので、隣にスーパーがあった方がいいか、ない方がいいかというと、あった方がいいです!
(下の敷地配置図で、スーパー用駐車場の位置をご確認ください。スーパーの前面部分にあります。)
スーパー部分を、こちらのイメージでご確認ください。

出典 公式HP
スーパーの業務用トラック等が出入りすること
これは上の敷地配置図の「駐車場出入り口」を見ていただきたいのですが、ここから、マンション住民の駐車場の他に、スーパーへ納入する車両などが出入りすることになります。駐車場を使わなければまったく気にならないとは思いますが、運転される方は場合によっては気を遣うこともあるかと思います。その分、スーパーが敷地内にあるという大きなメリットがあるわけですが・・・。
一部お墓ビューがあること
中高層階の方にはまったく関係ないと思います。
西向き、そして北西向きには、階数によってはお墓ビューが気になるかと思います。気にしない人は気にしないと思いますが、モデルルームで眺望をチェックする際に、気をつけてみてください。ちなみにクリスティーヌは気にしない派です。ただし、お墓がきちんと管理されている場合のみ、ですが。お墓ビューのお部屋に住んだ時は、いつもお参りにくる方々を眺めて、すがすがしい気持ちで日々を過ごした、という経験があります。ただし、一般的には賃貸に出される時など、お墓ビューが好まれない側面もあります。

出典 google earth
現地を訪れると、歴史のある祥雲寺はとても気持ちのいいお寺です。なので、逆にお寺がある雰囲気はプラスなのではと感じています。
エントランスが非常にシンプルなこと
シンプルというか、アートが置かれているだけの空間です。ベンチは座りにくそうで、また外から丸見えなので、あまりゆっくりしたいという感じがしません。
一時的に人と会ったりする時に、エントランスにちょっとした応接スペース的な低いソファー椅子とテーブルがあったら、非常に便利なのですが、そのような使い方には適していない作りになっています。

出典 公式HP
共有施設が少ないこと、高層ビューラウンジがないこと
タワーマンションだと、ゲスト用のお部屋や、ビューラウンジを期待する向きもありますが、「ブリリアタワー 池袋 West」に限っては、非常にシンプルな共有施設です。
2階にあるユーティリティラウンジは、キッチン付きで貸切利用もできます。他に、テレワーク等ができる個室のプライベートブースが4席分、用意されます。
ただ共有施設が少ない方がメリットだという考え方もあります。

出典 公式HP
エレベーターは、30階建て230戸に対して3機(うち1機は業務用も兼ねる)です。
駐車場が少ないこと
駐車場設置率は、23%。
総戸数230戸に対して、駐車場台数 54台(機械式:46台、平置き(身障者用1台、カーシェア用1台、荷捌きスペース1台含む):8台)です。平置きは、プレミアムフロアのオーナーが優先されます。
ただ便利なところなので、車を所有する人が少ないご時世かもしれません。
駐車場のイメージはこちらをご覧ください。

出典 公式HP
隔て板が気になる人がいるかもしれないこと
ベランダの隔板には、上部に隙間があります。ただこのことで購入をするしないと決定する人などいないと思いますので、これはちょっとしたポイントということで・・・。
アンチベランダ干し派には悲報
ベランダで洗濯物を干せます。
ただ、干すのはベランダの内側で、ベランダのガラスは14階以下はブラウン、15階から28階までは乳白色なので、洗濯物が外から見えるわけではないので、外観的には気にならないはずです。
1LDKの仕様は要確認
トイレに手洗いタンクがない、ガスコンロが2口コンロなど、他のお部屋と違う部分がありますので、ご確認ください。
予定価格・坪単価
「ブリリアタワー 池袋 West」の予定価格をお伝えします。間取りはクリックすると大きくなります。I Type 1LDK 39.00㎡ 北東角向き
3階 5,600万円台 坪単価478万円
15階 6,000万円台 坪単価512万円
Q Type 2LDK 59.47㎡ 北東角向き
20階 9,400万円台 坪単価525万円
V Type 3LDK 86.93㎡ 北東角向き
29階 17,200万円台 坪単価655万円
G Type 2LDK 59.23㎡ 東向き
3階 8,300万円台 坪単価466万円
K Type 2LDK 62.06㎡ 東向き
15階 9,400万円台 坪単価503万円
P Type 2LDK 67.57㎡ 東向き
20階 10,500万円台 坪単価516万円
O Type 3LDK 70.57㎡ 南東角向き
20階 12,300万円台 坪単価578万円
U Type 3LDK 101.14㎡ 南東角向き
29階 20,200万円台 坪単価661万円
E Type 2LDK 55.92㎡ 南向き
3階 8,200万円台 坪単価487万円
15階 8,900万円台 坪単価529万円
N Type 3LDK 73.93㎡ 南向き
20階 12,900万円台 坪単価579万円
T Type 3LDK 103.72㎡ 南向き
29階 21,200万円台 坪単価677万円
D Type 2LDK 64.60㎡ 南西角向き
3階 9,500万円台 坪単価488万円
15階 10,400万円台 坪単価534万円
M Type 3LDK 78.07㎡ 南西角向き
20階 13,500万円台 坪単価573万円
S Type 3LDK 101.56㎡ 南西角向き
29階 20,200万円台 坪単価659万円
B Type 1LDK 45.41㎡ 西向き
3階 6,300万円台 坪単価462万円
15階 6,800万円台 坪単価498万円

L Type 3LDK 72.49㎡ 西向き
20階 11,800万円台 坪単価540万円
A Type 2LDK 64.14㎡ 北西角向き
3階 8,900万円台 坪単価461万円
15階 9,500万円台 坪単価492万円
20階 9,800万円台 坪単価507万円
R Type 3LDK 98.35㎡ 北西角向き
29階 18,300万円台 坪単価616万円
(坪単価は中央値、端数切り捨てで出しています。)
注目のお部屋
どのお部屋がいいか、を考えた時に、やはり外からも目につくのは、この部分です。カーブが美しいです。(カーブではなくシャープな印象の最上階の2階分はプレミアムフロアです。)
上に予定価格が掲載されているOタイプ(20階から28階)は、このバルコニー付きの角部屋になります。(バルコニーの形に注目!)
O Type 3LDK 70.57㎡ 南東角向き
20階 12,300万円 坪単価514万円
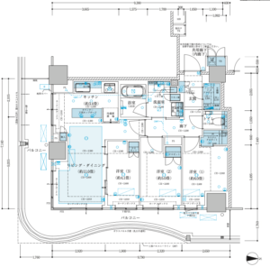
ただ、クリスティーヌが注目するのは、このOタイプの下にある、Jタイプです。

15階から19階にのみ、2LDK(Jタイプ)が作られているんです。
15階なら眺望も期待できるため、ピンポイントで15階Jタイプがおすすめです!

出典 公式HP 一部加筆
ただ、このJタイプはすべて第一期では販売しません。
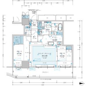
Jタイプ 69.96平米
こちらは柱の出っ張りも、それほどは気にならないし、また15階以上であれば視界も抜けてきます。アルコーブもあり、1.4畳のワークルームも使い勝手が良さそうです。

出典 公式HP
実は、こうしたベランダ付きのJタイプを推すのには、バルコニーがかっこいいという外観だけの理由ではありません。
14階以下のJタイプには、ベランダがありません。ベランダがないため、防災の規定から、このガラスが、網入りガラスになります。

出典 公式HP 一部加筆
このようなベランダなしの部分を作らなければならなかった理由は、建築上の理由でデザインのためではないということです。
おすすめする方角、階数
クリスティーヌが選ぶなら、西向きです。ちなみに高層階であれば、好きな方角で良いかと思います。西向きを、中層階あるいは低層階を検討している方へ、おすすめの方角は、西向きです。5階ぐらいから眺望を期待できるからです。
南向きは、15階ぐらいから抜けてきて、東向きも同様です。ただ東向きはお部屋の場所によって、眺望の抜け具合が違ってきますので、確認してみてください。
敷地の東西南北
南東の角です。「ブリリアタワー池袋west」の東側に沿った、この道路は50メートル先で一方通行になります。よって、駐車場へはここから出入りできます。
この道を入ってみましょう。ちょうど「ブリリアタワー池袋West」の敷地の出入り口を過ぎたところに一方通行の表示があります。
東に隣接した建物は、この写真の正面にある建物群です。
東側の建物を、もう少しアップにしました。
西に隣接した建物です。
南側は、大通りの向こう側にマンションが並んでいます。
北側の建物です。北側は低層住宅が並んでいます。
建築計画のお知らせ
クリスティーヌの見学メシ
池袋における食の楽しみ。それは本場の中華料理を食べられること!「ブリリアタワー 池袋 West」から、池袋のチャイナタウンと呼ばれるエリアも、近いんです。
麻辣刀削麺、ものすごく辛かった!最高でした!辛さと、牛肉の大きさと、もやしのバランスがよくて。
中国東北家庭料理なら、本当はクミンやラム肉のお料理もおすすめなんですが、なにせ胃袋は一つ。笑。
中国東北家郷料理 永利 池袋西口店 食べログはこちら
まとめ。クリスティーヌの意見
【2021年12~2022年2月版】スムラボブロガーが本音で選んだ気になるマンションBEST3《関東/東日本編》で名前を挙げたマンションの一つであるため、一生懸命まとめました。内容には至らない点もあるかと思いますが、少しでも参考になれば幸いです。総論としては・・・
何より、あたりの空気感が、すがすがしい立地です。
周りにたくさんタワーマンションや高層オフィスビルが建っているエリアではないので、非常に空が広く感じます。眺望もいいでしょうねえ。
・・・池袋が進化することは確実なので、池袋の街のダイナミックさと、ゆったりとしたエリアの静けさと、その両方のいいとこ取りをできるポジションにある「ブリリアタワー 池袋 West」です。
こんな考えの方におすすめします
共有施設はあまり使わないから、そこまでたくさん共有施設がなくてもいいか、と思う人にとっては、ぴったりのマンションです。駅近でもあるし、池袋もすぐなので、カーシェアを利用して、車を持たなくてもいい、という人にもぴったりです。
また、今後、池袋で販売されるタワーマンションの価格はこれから高くなるだろうから、今、ちょっぴり抑え目の価格で出てくるこちらを購入するのがバランス的にいいのではないか、と考える人にもぴったりです。
南池袋二丁目C地区と比較して
南池袋二丁目C地区とこちら、どちらも検討したいという気持ちの方も多くいると思われます。南池袋二丁目C地区の竣工予定は2025年度。「年度」なので2026年3月までの期間です。
「ブリリアタワー 池袋 West」の入居予定は 2024年3月。引渡しの時期を考えると2年ぐらいの差があります。
現時点で予測される「南池袋二丁目C地区」の価格よりも、ブリリアタワー 池袋 West」の価格は低めに抑えられていることが魅力です。
なので、価格を取るならこちら、という選択方法もありかと思います。住環境としてはとても良い場所なので。
南池袋二丁目C地区については、以前書きましたので詳細はこちらをご覧ください。
近隣マンション
近隣には「シティハウス西池袋」があります。そちらもあわせてチェックしてみてください。以上となります!ここまで読んでくださって、ありがとうございました!
・・・皆さまの、今日一日が、素敵な日でありますように。住む場所は人生を豊かにする、がモットーの、クリスティーヌより愛をこめて。
(クリスティーヌのTwitter、こちらです。Twitterされている方は、フォローしてね)
(クリスティーヌの記事一覧は、こちらです)









































私もMR見学しましたが、天井高が「160センチ」は間違いで、「260センチ」が正解では?
尚、私は西隣地店舗とスーパー混雑の懸念及び、ゲストルーム他の共用施設がもっと欲しいので、C地区ツインを待ちます
くれよんまりちゃんさま
クリスティーヌです。コメントありがとうございます!おっしゃる通り260の間違いで、訂正いたしました。
くれよんまりちゃんさんは、C地区を待つのですね。あちらも本当に素晴らしく、非常に楽しみなところです。
またお気軽に、いつでもコメントよろしくお願いいたします。
クリスティーヌ