目次
THE TOYOMI TOWER MARINE&SKYは、勝どき駅徒歩10分に建設される53階建てのツインタワーで第3期1次の販売が開始されようとしています
このたびこの人気物件の案内会に運良く参加でき、現地写真など含めて記事化しましたのでぜひご覧ください

店舗は何が入るか決まってますか?

周辺に今後マンションが建つ予定ありますか?
タワマンバブルが崩壊するって記事が多くて心配です…
不動産
得られた情報と私の見解をお伝えします!
私はこれまで3回の自宅マンション売買で資産形成に成功してきました
竣工すれば東京湾岸でもっともデザイン性に優れたタワーマンションになると称され、その物件を購入することの意味も解説します
【この記事でお伝えしたいこと】
- 第3期1次販売では西向き1LDK43㎡で7,400万円台(坪単価675万円)からあり、各部屋の価格と毎月の固定費、代表階の眺望画像を掲載しました
- テナントに幼稚園とファミリーマートが入ることが決定している。スーパーが入るかどうかは未確定
- 南西側水産倉庫地区は都条例の漁港区に指定されており、今後マンションは建たない見込み
- デザイン性の高さもあり湾岸相場の上昇を牽引し周辺タワーマンションとの眺望の相乗効果が期待できる
この記事を読むことで上記内容の理解が深まります
ぜひ最後までお読みください
概要

出典;THE TOYOMI TOWER MARINE&SKY公式HP
- 所在地:東京都中央区豊海町41番(地番)
- 交通:都営地下鉄大江戸線「勝どき」駅 徒歩10分
- 総戸数:2046戸
- 敷地面積:15,901.57㎡
- 建物竣工:2026年11月下旬予定
- 入居時期:2027年8月下旬入居予定:2期2次迄の販売住戸、3期1次販売の3LDK住戸(MENU PLANの2LDK住戸含む) 2028年4月下旬入居予定:3期1次販売の1LDK・2LDK住戸、4期以降販売住戸
- 売主:三井不動産レジデンシャル株式会社、東急不動産株式会社、東京建物株式会社、野村不動産株式会社、三菱地所レジデンス株式会社、清水建設株式会社
- 施工会社:清水建設株式会社
- 駐車場:敷地内機械式 650台 敷地内平面 18台
- 駐輪場:3097台
第3期1次 販売予定スケジュール
- 2月中旬〜 登録申込受付・抽選会
- 2月下旬〜3月上旬 当選者・資金計画確認
- 2月下旬〜3月中旬 購入申込会・契約会
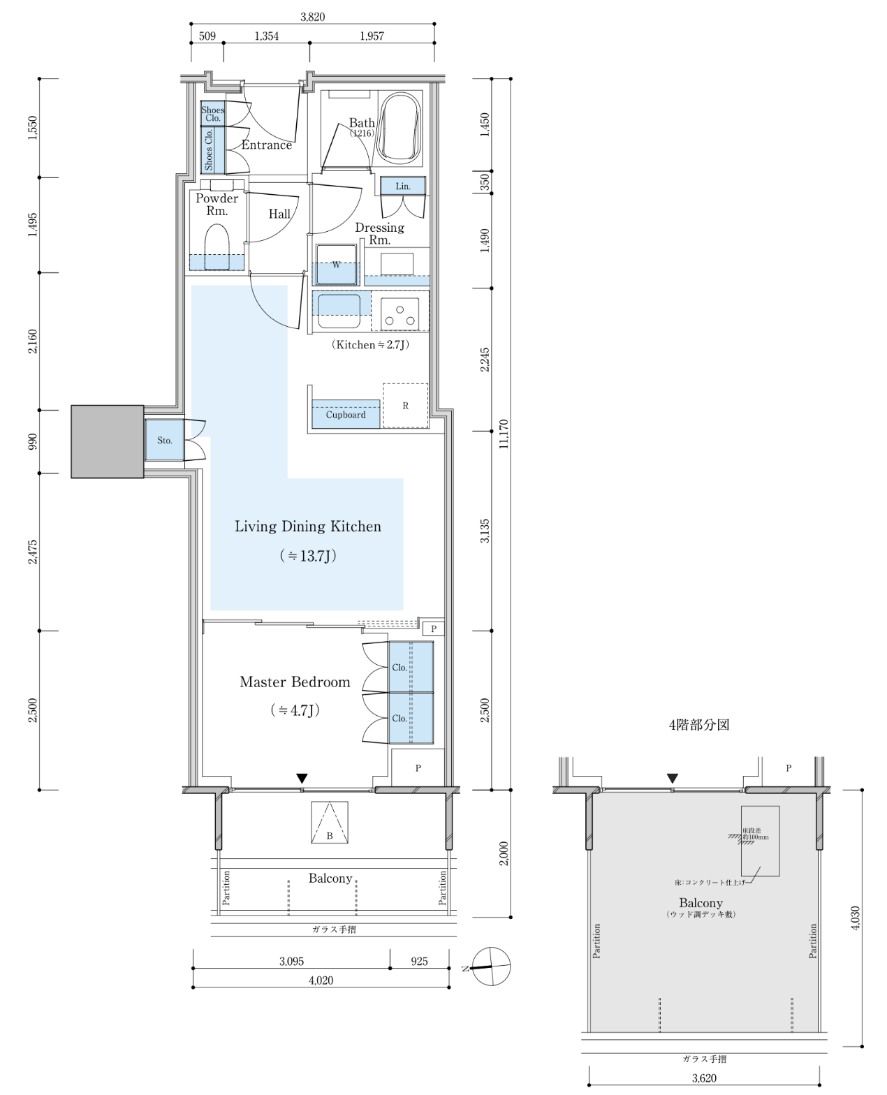
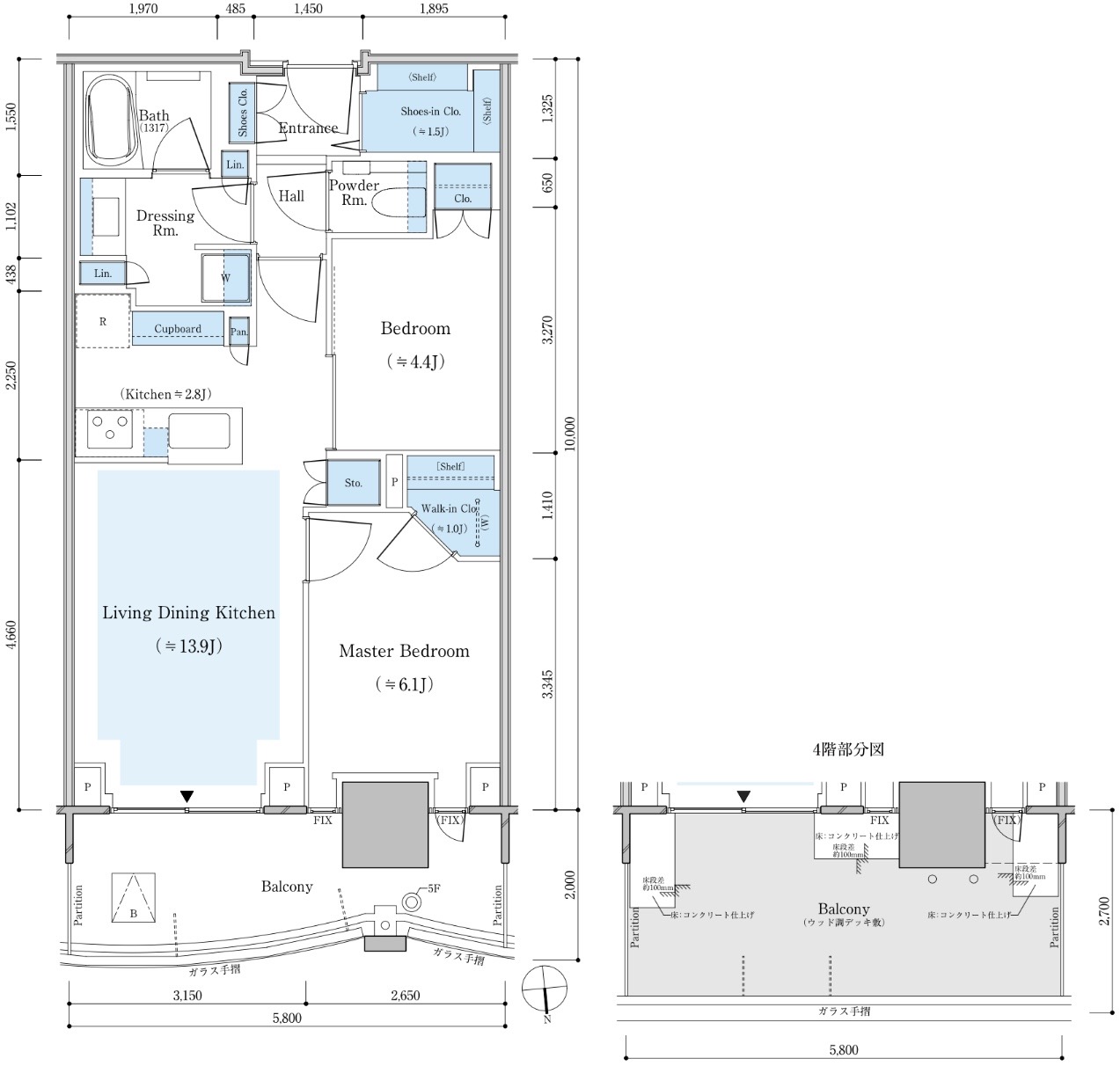
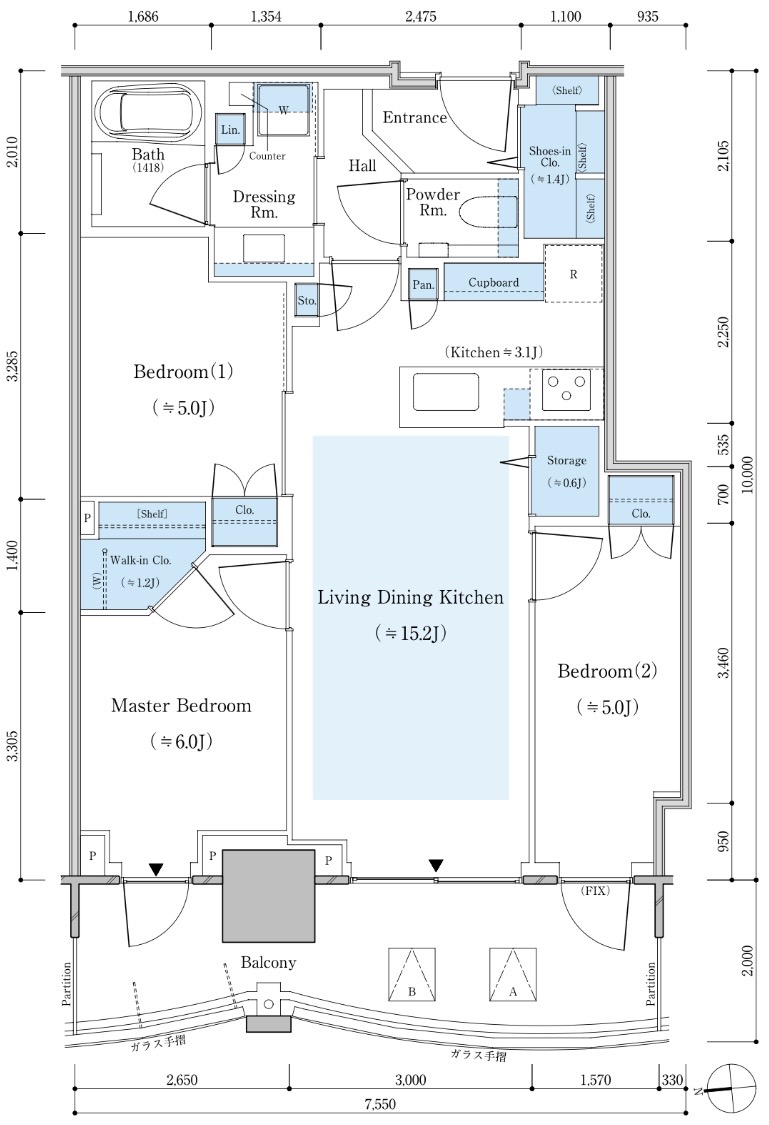
間取りと価格
第3期1次販売予定の間取りと価格、代表的な階数の眺望画像を共有します※画像はすべて公式HPから引用させていただきました
西ウイング
W-43Awタイプ 43.48㎡ 1LDK 西向き
- 4階 7,440万円(坪566万円)
- 5階 7,460万円(坪567万円)
- 6階 7,480万円(坪569万円)
修繕積立金;7,660円/月
インターネット等使用料;715円/月
月額合計;26,005円
4階眺望

6階眺望

W-44Anタイプ 44.32㎡ 1LDK 北向き

- 20階 8,900万円(坪664万円)
- 21階 8,920万円(坪666万円)
- 22階 8,940万円(坪667万円)
- 23階 8,960万円(坪669万円)
- 24階 8,980万円(坪670万円)
- 25階 9,000万円(坪672万円)
- 26階 9,020万円(坪673万円)
- 27階 9,040万円(坪675万円)
- 28階 9,060万円(坪676万円)
- 29階 9,080万円(坪678万円)
修繕積立金;7,820円/月
インターネット等使用料;715円/月
月額合計;26,545円
20階眺望

29階眺望

W-45Awタイプ 45.55㎡ 1LDK 西向き

- 4階 7,940万円(坪577万円)
- 5階 7,960万円(坪578万円)
- 6階 7,980万円(坪580万円)
修繕積立金;8,020円/月
インターネット等使用料;715円/月
月額合計;27,185円
4階眺望

6階眺望

W-50Aswタイプ 50.85㎡ 1LDK 南西向き

- 4階 8,480万円(坪551万円)
- 5階 8,500万円(坪553万円)
- 6階 8,520万円(坪554万円)
- 8階 8,560万円(坪557万円)
- 9階 8,980万円(坪584万円)
- 10階 9,480万円(坪616万円)
修繕積立金;8,960円/月
インターネット等使用料;715円/月
月額合計;30,285円
4階眺望

8階眺望

9階眺望

10階眺望

W-67Cneタイプ 67.58㎡ 2LDK 北東向き

- 18階 13,690万円(坪670万円)
- 19階 13,710万円(坪671万円)
- 20階 13,730万円(坪672万円)
- 21階 13,750万円(坪673万円)
- 22階 13,770万円(坪674万円)
- 23階 13,790万円(坪675万円)
- 24階 13,810万円(坪676万円)
- 25階 13,830万円(坪677万円)
- 26階 13,850万円(坪678万円)
- 27階 13,870万円(坪679万円)
- 28階 13,890万円(坪680万円)
- 29階 13,910万円(坪681万円)
- 30階 14,110万円(坪690万円)
- 31階 14,150万円(坪692万円)
- 32階 14,190万円(坪694万円)
- 33階 14,230万円(坪696万円)
- 34階 14,270万円(坪698万円)
- 35階 14,310万円(坪700万円)
- 36階 14,350万円(坪702万円)
- 37階 14,390万円(坪704万円)
修繕積立金;11,860円/月
インターネット等使用料;715円/月
月額合計;39,835円
18階眺望

34階眺望

W-67Dneタイプ 67.58㎡ 2LDK 北東向き

- 38階 14,590万円(坪714万円)
- 39階 14,630万円(坪716万円)
- 40階 14,670万円(坪718万円)
- 41階 14,710万円(坪720万円)
- 42階 14,750万円(坪722万円)
- 43階 14,790万円(坪724万円)
- 44階 14,830万円(坪726万円)
- 45階 14,870万円(坪727万円)
- 46階 14,910万円(坪729万円)
- 47階 14,950万円(坪731万円)
- 48階 14,990万円(坪733万円)
- 49階 15,090万円(坪738万円)
- 50階 15,290万円(坪748万円)
修繕積立金;11,860円/月
インターネット等使用料;715円/月
月額合計;39,835円
50階眺望

W-77Aseタイプ 77.15㎡ 3LDK 南東向き

- 4階 17,790万円(坪763万円)
- 5階 17,840万円(坪765万円)
- 6階 17,890万円(坪767万円)
- 7階 17,940万円(坪769万円)
- 8階 17,990万円(坪771万円)※2LDK
- 12階 19,790万円(坪848万円)
- 13階 19,840万円(坪850万円)
- 16階 19,990万円(坪857万円)
修繕積立金;13,500円/月
インターネット等使用料;715円/月
月額合計;45,285円
4階眺望

8階眺望

16階眺望

W-79Bseタイプ 79.90㎡ 3LDK 南東向き

- 20階 21,140万円(坪875万円)
- 21階 21,190万円(坪877万円)
- 22階 21,240万円(坪879万円)
- 24階 21,340万円(坪883万円)
- 25階 21,390万円(坪885万円)
- 26階 21,440万円(坪887万円)
- 27階 21,490万円(坪889万円)
- 29階 21,590万円(坪894万円)※2LDK
- 30階 21,640万円(坪896万円)
修繕積立金;13,980円/月
インターネット等使用料;715円/月
月額合計;46,865円
20階眺望

34階眺望

49階眺望

W-97Asタイプ 97.35㎡ 3LDK 南向き

- 51階 37,400万円(坪1,240万円)
- 52階 37,500万円(坪1,274万円)
修繕積立金;17,100円/月
インターネット等使用料;715円/月
月額合計;57,155円
52階眺望

W-97Cnタイプ 97.76㎡ 3LDK 北向き

- 51階 33,900万円(坪1,146万円)
- 52階 34,000万円(坪1,151万円)
修繕積立金;17,170円/月
インターネット等使用料;715円/月
月額合計;57,385円
52階眺望

W-113Aseタイプ 113.33㎡ 3LDK 南東向き

- 51階 44,480万円(坪1,298万円)
- 52階 44,580万円(坪1,300万円)
修繕積立金;19,860円/月
インターネット等使用料;715円/月
月額合計;66,275円
52階眺望

東ウイング
E-57Bnタイプ 57.69㎡ 2LDK 北向き
- 4階 12,670万円(坪726万円)
- 5階 12,700万円(坪728万円)
- 6階 12,730万円(坪730万円)
- 7階 12,760万円(坪731万円)
- 8階 12,790万円(坪733万円)
- 9階 12,820万円(坪735万円)
- 10階 12,850万円(坪736万円)
- 11階 12,880万円(坪738万円)
- 12階 12,910万円(坪740万円)
- 13階 12,940万円(坪742万円)
修繕積立金;10,140円/月
インターネット等使用料;715円/月
月額合計;34,185円
4階眺望

8階眺望

13階眺望

E-57Dnタイプ 57.76㎡ 2LDK 北向き

- 4階 12,670万円(坪726万円)
- 5階 12,700万円(坪728万円)
- 7階 12,760万円(坪731万円)
- 8階 12,790万円(坪733万円)
- 9階 12,820万円(坪735万円)
- 10階 12,850万円(坪736万円)
- 11階 12,880万円(坪738万円)
- 14階 12,970万円(坪742万円)
修繕積立金;10,150円/月
インターネット等使用料;715円/月
月額合計;34,215円
4階眺望

8階眺望

14階眺望

E-66Bnwタイプ 66.95㎡ 2LDK 北西向き

- 20階 17,800万円(坪879万円)
- 21階 17,850万円(坪881万円)
- 22階 17,900万円(坪884万円)
- 23階 17,950万円(坪886万円)
- 24階 18,000万円(坪889万円)
修繕積立金;11,750円/月
インターネット等使用料;715円/月
月額合計;39,475円
22階眺望

E-70Cwタイプ 70.37㎡ 3LDK 西向き

- 21階 18,190万円(坪855万円)
- 22階 18,240万円(坪857万円)
- 23階 18,290万円(坪859万円)
- 24階 18,340万円(坪862万円)
- 26階 18,440万円(坪867万円)
- 27階 18,490万円(坪869万円)
- 28階 18,540万円(坪871万円)
- 29階 18,590万円(坪874万円)
- 30階 18,640万円(坪876万円)
- 31階 18,690万円(坪878万円)
- 32階 18,740万円(坪881万円)
- 33階 18,790万円(坪883万円)
- 34階 18,840万円(坪885万円)
- 35階 18,890万円(坪888万円)
- 36階 18,940万円(坪890万円)
- 37階 18,990万円(坪892万円)
修繕積立金;12,330円/月
インターネット等使用料;715円/月
月額合計;41,425円
21階眺望

30階眺望

E-70Dwタイプ 70.37㎡ 3LDK 西向き

- 38階 19,190万円(坪902万円)
- 39階 19,240万円(坪904万円)
- 40階 19,290万円(坪906万円)
- 41階 19,340万円(坪909万円)
- 42階 19,390万円(坪911万円)
- 43階 19,440万円(坪914万円)
- 44階 19,490万円(坪916万円)
- 45階 19,540万円(坪918万円)
- 46階 19,590万円(坪921万円)
- 47階 19,640万円(坪923万円)
- 48階 19,690万円(坪925万円)
- 49階 19,790万円(坪930万円)
- 50階 19,990万円(坪939万円)
修繕積立金;12,330円/月
インターネット等使用料;715円/月
月額合計;41,425円
40階眺望

50階眺望

E-96Bwタイプ 96.61㎡ 3LDK 西向き

- 51階 34,900万円(坪1,194万円)
- 52階 35,000万円(坪1,198万円)
修繕積立金;16,970円/月
インターネット等使用料;715円/月
月額合計;56,735円
52階眺望

E-94Aswタイプ 94.52㎡ 3LDK 南西向き

- 53階 33,000万円(坪1,154万円)
修繕積立金;16,730円/月
インターネット等使用料;715円/月
月額合計;55,935円
53階眺望

E-124Anタイプ 124.32㎡ 3LDK 北向き

- 53階 49,900万円(坪1,327万円)
修繕積立金;21,970円/月
インターネット等使用料;715円/月
月額合計;73,215円
53階眺望

E-130Bnタイプ 130.31㎡ 3LDK 北向き

- 53階 50,980万円(坪1,294万円)
修繕積立金;23,010円/月
インターネット等使用料;715円/月
月額合計;76,675円
53階眺望

E-133Aeタイプ 133.42㎡ 3LDK 東向き

- 53階 49,900万円(坪1,237万円)
修繕積立金;23,540円/月
インターネット等使用料;715円/月
月額合計;78,405円
53階眺望

テナントはファミリーマートと幼稚園が決定
東ウイング1階平面図
画像右側の小さな“店舗”スペースがファミリーマートで決定、大きな“店舗”にスーパーが入ってくれれば最高ですが未定とのこと
東ウイング2階平面図

“子育て支援施設”には幼稚園が決定、居住者以外のお子様も入園できるそうです
小学校もすぐとなりですから小さなお子様を持つご家庭にとっては朗報でしょう
唯一無二のデザインと多様な共用施設

※2026年1月下旬筆者撮影
スカイラウンジ

51階、52階吹抜けで圧巻の湾岸ビューを楽しめます
オープンテラス

海外のリゾートホテルさながらですね
公式HPにはその他数えきれないほどの共用施設が掲載されており、外観デザインも含め居住者の満足度・優越感は高いものになるでしょう
現地写真(2026年1月下旬)
いくつか写真を撮影してきましたので掲載しますもう最上階まで外観はできあがっており、そのデザイン性と規模感には圧倒されます


エントランスに続くエスカレーターがいい感じです

西ウイング南西側に隣接する豊海センタービルには飲食店がいくつか入っています
平日は周辺水産倉庫社員の利用が多そうですね

前面道路の整備も進んでいました
勝どき駅よりも路線バスかBRTの使い勝手がよい
路線バス
目の前の山九本社前バス停から、築地、銀座、有楽町を経由する東京駅丸の内南口行きの使い勝手が良さそうです

新交通システムBRT

新橋、虎ノ門方面に行くなら勝どきBRT停留所まで徒歩6分ほど
南西側水産倉庫地区には今後マンションは建たない

引用;「勝どき・豊海地区まちづくりガイドライン」:2016年9月(中央区)
2016年「新しい都心ライフスタイルを育むまち 勝どき・豊海」として指定されたのが画像の対象範囲で、今やタワーマンションの建設や道路の整備が進み資産価値の高い街並みに変貌しています
一方、本物件の南西側は水産倉庫会社が建ち並ぶ「漁港区」に指定され、倉庫の所有者がマンションデベロッパーに土地を売って新たなタワーマンションが誕生する、といったことは中央区の条例が改定されない限りできません
新たな計画としては、月島埠頭に面した勝どき五丁目地区に野村不動産が14階程度の板状マンションを建設予定です
月島埠頭

水辺リゾート感はなく漁港の雰囲気ですね
総評

いつもは埼玉県のマンション情報を発信している私ですが、このたびTHE TOYOMI TOWER MARINE&SKYの案内会に参加でき、どのような方が購入するのか、投資や実需、ほかの投資商品との違い、などを考えさせられ
私も購入する可能性があるがゆえに、これからの人生なにを優先したいか思い巡らすきっかけにもなりました
投資の世界では「適正なリスクをとりましょう」と指南する書籍やYoutube動画を目にします
リスクとは今後起こりうる値上りと値下りの振れ幅のことを指します
決して悪いことだけの意味ではありません
“世の中はリスクを取ってもいいと思う人が、リスクを取りたくない人から利益を吸い上げるようにできている”
これは私が信頼する経済評論家、山崎元さんの著書からの引用です
投資効率だけを考えれば、信託報酬の低い、広く分散された株式インデックスファンドを購入して長期間持っていること、これが王道になります
私もこれらの情報が株式投資をはじめるきっかけになりました
そうなると、本物件を購入することは投資目線では王道からは外れます
その一方で、新築マンションを購入して数年住んでから売却して利益を得る、住んでいるだけで結果的にお金がもらえてしまう状況が10年以上続き、いわゆる3,000万円譲渡所得控除や住宅ローン減税といった優遇税制も追い風となり株式投資よりも早く大きな富を築いた方がいます
ところが、不動産、マンション価格を予想する最近の情報を見渡すと
金利の上昇、空き家の増加、高くなりすぎたマンション価格はもう上限に近い、管理費など維持費もどんどん上がる、そろそろ暴落するだろう…
記事閲覧数目的もあり極端なセンセーショナルなワードが多くなりました
それでは、THE TOYOMI TOWER MARINE&SKYは買わないほうがいいのかと考えたとき
“人間が持っている投資には向かない感情”
のことを思い出します
株式投資とは頻繁に売買を繰り返すことではない、持っていることだ
この基本を守れずに、値上りした銘柄に飛びつく、値下りしたら怖くなって売ってしまう…
人は合理的には行動できないのです
誰かにこのマンションを持っていることを見せたい、友人や家族に遊びにきてもらいたい
といった承認欲求であったり、
築いた富をなにか形あるものに替えたいと思うのも人の自然な感情、行動なのかもしれません
一点ものの絵画や美術品、大谷選手のホームランボールが理解できない価格で取引されるのもそれに近いものでしょう
そういった感情がある限り、それを増幅させるようなデザイン性と眺望、共用施設をもつTHE TOYOMI TOWER MARINE&SKYが将来売れなくなり価格が大きく下がる・・・そんな可能性はきわめて低いと私個人は予想します
人生は最後に資産がいくらに増えたかを競うゲームではありませんからね
家族や友人と楽しい時を共有する、思い出に残る体験をする
そのためには健康でいなければならない
私もこの第3期で購入が叶うかわかりませんが、本業の仕事を頑張るモチベーションであったり、今まさにやっているマンション関連の記事を書いて情報発信をしていく意欲につながりそうです
私がどの部屋に申し込むかは、伏せさせてください(笑)
本物件は、将来の売却を含めた「出口戦略」を見据えている方も多いでしょう
どのように市場に出し、どのような仲介で進めるか
いずれ売るかもしれないという前提で、相場の見方や進め方を把握しておくと後々の判断が楽になります
※筆者自身のマンション売却経験(囲い込みを実感した経緯や判断の迷い)を、個人ブログ側で整理しています
売る・売らないを決める前の参考情報としてまとめていますので、ご興味ある方はご覧ください
マンション売却で「囲い込み」を避けたい人が最初に知っておくべき判断軸(キウイ不動産ブログ)
この記事が皆さまのご参考になれば幸いです
最後までお読みいただきありがとうございました
[スムラボ編集部より] 本ブログ記事の情報は投稿日時点のものです。現在の販売情報はLifull Homesをご参照下さい。
スムラボ記事
- 【すごろくテクニック】含み益は無意味か?!実は含み益がもたらす効果がすごい!【すごろく】
- 2024年買いたかったマンション
- 【売買ノウハウ④】マンション売却で“税金ゼロ”は本当に可能?3,000万円譲渡所得控除の条件を実例で解説【キウイ不動産】
- ザ豊海タワーマリン&スカイ(THE TOYOMI TOWER MARINE&SKY) 現地訪問レポート【2LDK】
- THE TOYOMI TOWER MARINE&SKYの現地訪問【住井はな】
- ザ豊海タワーマリン&スカイ(THE TOYOMI TOWER MARINE&SKY) モデルルーム訪問レポート【2LDK】
この記事を見ている人はこちらも見ています
- 【売買ノウハウ④】マンション売却で“税金ゼロ”は本当に可能?3,000万円譲渡所得控除の条件を実例で解説【キウイ不動産】
- THE TOYOMI TOWER MARINE&SKYの現地訪問【住井はな】
- ザ豊海タワーマリン&スカイ(THE TOYOMI TOWER MARINE&SKY) 現地訪問レポート【2LDK】
スムログ記事
- 【THE TOYOMI TOWER MARINE&SKY】徹底考察
- 2024年お祭り候補物件『ザ 豊海タワー マリン&スカイ』ご予算1億円前後のパワーカップルが注目すべき新築マンション【マンションマニア】
- お便り返し その886「ザ・豊海タワー マリン&スカイの引き渡し後1年間は現居に住み続けたい」【マンションマニア】
- ザ 豊海タワー マリン&スカイ おすすめ住戸三選【マンションマニア】
- ザ・豊海タワー マリン&スカイと近隣中古どちらを買うべき?マンション購入を線で考えるという思考について。
- 【お便り返し】晴海フラッグは通勤が厳しく、パークタワー勝どきは高すぎて手が出ません。おすすめ中古は?中古の方が仕様が良いってほんと?
- お便り返し その1052「世帯年収1700万円 共働き 34歳 ザ・豊海タワー マリン&スカイを検討中です」【マンションマニア】
- お便り返し その1043「ザ豊海タワー当選!!引き渡し前に住宅ローンを組んで他のマンションを購入したい!!」【マンションマニア】
- 申し込んだ新築マンション3物件…抽選結果は…【マンションマニア】
- ザ豊海タワー マリン&スカイ 第1期3次の予定価格と間取り 平均坪単価約810万円




















-125x125.jpeg)


記事にコメントする