目次
前回「クレストプライムシティ南砂」を取り上げました。(この記事の最後にリンク置いています)
同じ東西線・南砂町駅が最寄りの「シティテラス南砂」も良いマンションです。
かなり販売が進んでしまっていますが、現在販売中・販売予定のある新築で良い選択肢だと思ったので、今更ながら取り上げます。先着販売なので、気になっている方は早めにオンライン見学会を済ませておくことをおすすめします。(オンライン見学会を済ませないと購入に進めません)
「クレストプライムシティ南砂」の良さは、①駅利便性(徒歩1分)②高級感でした。
一方、「シティテラス南砂」はこの特徴を少し弱める代わりに、居住性をさらに高めたマンションです。自分が向いているのはどちらなのか、よく考えて選びたいですね。
物件概要
- 物件名:シティテラス南砂
- 住所:東京都江東区 南砂四丁目261番10外(地番)
- 交通:東京メトロ東西線「南砂町」駅まで徒歩7分
- 構造:鉄筋コンクリート造 地上15階建
- 総戸数:150戸
- 敷地面積:2652.32m2
- 建築面積:1332.80m2
- 用途地域:準住居地域、第二種住居地域、第一種住居地域
- 間取り:2SLDK~3LDK
- 専有面積:67.33m2~67.37m2
- 駐車場:42台(機械式駐車場:40台、平置駐車場1台、身障者駐車場:1台)、他に平置来客用駐車場1台
- 駐輪場:300台(2段式下段スライド式186台(上段75台、下段111台)、平置114台)
- バイク置き場:15台
- 分譲後の権利形態:所有権
- 管理会社・管理形態:住友不動産建物サービス株式会社
- 売主:住友不動産株式会社
- 施工:株式会社長谷工コーポレーション
- 販売開始時期: (2026年4月24日時点)先着順で販売中
- 竣工時期:2024年3月5日完成済
- 入居時期:2027年4月下旬
掲示板:【口コミ掲示板】シティテラス南砂ってどうですか?
専ら、ファミリー向けのマンションですね。
シティテラス南砂が向いているのはこんな人!
- 家は収納量や使いやすい間取りを重視
- 共用部は豪華さよりも実用性
- イオンみたいな大型ショッピングモールが近くに欲しい
- 大手町・日本橋・茅場町通勤(在宅勤務もそこそこ有り・片方家庭専業)
- 電車に乗ってあちこち出かけるより、近所(徒歩圏)が便利であってほしい
立地|東西線とイオンが近くにあるから平日も休日も便利!
図:大型商業施設をはじめ生活施設が整った街|【公式】シティテラス南砂
東西線「南砂町」駅まで徒歩7分(ホームまでは13分かかることは注意)で、駅近ではないですが駅遠でもなく、多くの人の許容範囲に収まると思います。なにより東西線はまっすぐビジネス街まで伸びているので、Door to大手町駅の通勤時間は25分。一般的には嬉しい範囲だと思います。
最寄りのショッピングモールが「イオンスタイル南砂(トレピックプラザのイオン館)」で徒歩6分。家のこんな近くにイオンがあるなんて、大アドバンテージです。
在宅勤務もそこそこある・夫婦の片方が家庭専業の場合は、「クレストプライムシティ南砂」よりも「シティテラス南砂」の方が便利になるかもしれません。
また、中学校・小学校・複数の保育園も徒歩1~6分圏内にあり、家族みんなが便利に過ごせるポジションなのも魅力です。(トレピックプラザは習い事のテナントも充実しています)
(余談)
既に完売済みですが、住友不動産は北砂エリアで「シティテラス住吉」を分譲していました。こちらは最寄り西大島駅(新宿線)、駅徒歩15分、アリオ北砂(ショッピングモール)まで徒歩6分だったので、この「シティテラス南砂」の立地は良いと思います。
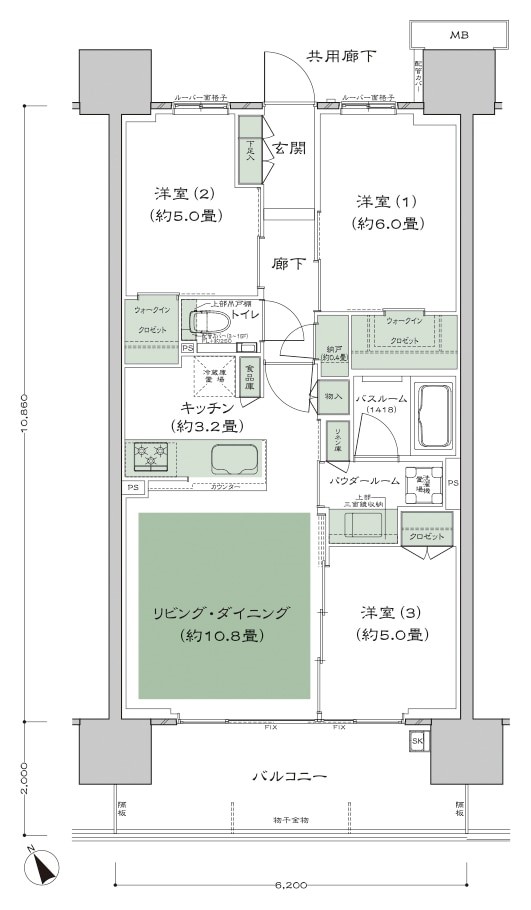
間取り|67㎡でも超効率的で居住性が高い
<間取り例(中住戸)>
図:sumitomo-rd-mansion.jp/shuto/minamisuna/list.php
住友不動産の「シティテラス」の良さは、間取りに手抜かりが無い所です。
専有面積は約67㎡ですが、柱などが殆ど部屋に食い込んでいない&リビングの窓が広々と取られている(+ベランダが透明壁)ので、広さ印象・実態ともに70㎡と大きくは変わらないと思います。
細長い間取り(所謂うなぎ部屋)が無く、最低5畳を確保できているので家具レイアウトもしやすい。収納も多く、適度に分散もしているのでとても使い勝手が良いと思います。
注意点を挙げるとすれば、リビング・ダイニングの広さだと思います。ダイニングテーブル・ソファ両方置けるくらいの広さではありますが、北欧家具のような大きさサイズが好きな方にとっては、少し制限が出てきてしまうかもしれません。
設備|QOLに大事なものは削らない
近年は建設費高騰・コストカットと言われていますが、居住性に大きく影響するものはしっかり残してくれています。- ディスポーザー
- 床暖房
- 食器洗い乾燥機
- 二重天井・二重床
- 天然石キッチン天板
- スロップシンク
- ハンズフリーキー
- 可動ルーバー面格子
共用部|完全個室のテレワークスペースが嬉しい!
- キッズ・パーティールーム兼集会室

- テレワークスペース(完全個室あり!)
各イメージ:共用空間|【公式】シティテラス南砂
エントランスは華美ではありませんが、上質さが感じられます。

写真:迎賓空間|【公式】シティテラス南砂
規模感|ちょうど良い150戸
修繕積立金の高騰が話題になる昨今なので、1人あたりの負担がなるべく大きくならないようにマンションの規模が大きいと少し安心です。しかし、規模が大きいほど人通りも多くなり、それが落ち着かない人もいると思います。「シティテラス南砂」は150戸なので規模を保ちながら人通りが多すぎず、規模と落ち着きのバランスを取りたい人にはピッタリだと思います。ハザード|これを気にしすぎるなら不向き物件かも
「シティテラス南砂」には水害のハザードがあり、駅前≒「クレストプライムシティ南砂」よりも濃色がついてしまいます。どこに行っても水害のハザードがついてくる江東区のなかでも、濃い部類です。高さでリスクヘッジするなら4階以上が目安。ハザードマップは想定し得る最大規模(1000年に1回程度など)で色付けされるので、どこまで気にするのかは難しいところですが、割り切れないのであればこの物件は自分には不向きだったということです。(心配を抱えながら住むのは本末転倒)
図:重ねるハザードマップ
▼「南砂」という町については、こちらの記事でまとめています!
【クレストプライムシティ南砂】は結局アリなのか?【Sana】 | スムラボ
資産性という観点では駅徒歩1分の「クレストプライムシティ南砂」な気がしますが、生活スタイルによっては「シティテラス南砂」の方が満足度が高いかもしれません。(「シティテラス南砂」も住友不動産の高品質マンションなので、資産性が低いという訳ではないと思います。)
[スムラボ編集部より] 本ブログ記事の情報は投稿日時点のものです。現在の販売情報はLifull Homesをご参照下さい。
記事に出てきた物件の掲示板
- シティテラス南砂(検討スレ) | (住民スレ) | (まとめ) | (スムログ)
- クレストプライムシティ南砂(検討スレ) | (住民スレ) | (まとめ) | (スムラボ) | (スムログ)






















記事にコメントする