ハロー、住む場所は人生を豊かにする、がモットーのクリスティーヌです。
【第3期】最新予定価格はこちらをご覧ください。
(1LDK価格は当初より変更されています。)
===
THE YOKOHAMA FRONT TOWER(ザ・ヨコハマフロントタワー)の一般向け販売に向けたモデルルーム予約が始まっています。
横浜駅直結で世界水準のタワーマンションです。第一期はいわゆるお得意様に販売し、一般向け販売は行っていませんでした。販売は非常に好調で、ワールドビジネスサテライトで6億のお部屋が紹介されてから、爆発的に問い合わせが増えたそうです!ちなみに6億のお部屋とは、広さでいうと161平米。ワールドビジネスサテライトで紹介された6億円のモデルルームは、161平米をわざわざ1LDKにしてありました。
【第3期予定価格】1LDK解禁!ザ・ヨコハマフロントタワー|モデルルーム訪問時のツアー案作ってみました 【クリスティーヌ】
第二期では、第一期と違って、予約はすべてホームページ上からの受付です。現状は予約が取りにくく、キャンセルが出るとその都度ホームページ上で空き枠が掲載されるそうですが、空き枠が出ると、1分ほどで埋まってしまうと営業の方より伺いました。
このたび、第一期ですでにモデルルームを訪れていた方に同行させていただき、モデルルームを訪問する機会を得ました。そこで、第二期予定価格をお伝えすると共に、第二期販売のポイント等をお伝えできればと思います。
目次
ザ・ヨコハマフロントタワー 第二期販売のポイント
平均坪単価は約650万円。(予定価格より単純算出した数値は642万円ですが全体では約650万円の予測です。)モデルルームでの説明では第一期より若干(3%から5%)値上げしているとのことです。
第一期で出した129戸は、すべて完売しました。第二期販売住戸は131戸の予定です。
第二期では、1LDK、ワンルームの販売はありません。(1LDK、ワンルームの販売は、第三期以降です)
第二期で販売されるのは、71.44平米(3LDK)のお部屋が一番広く、次に66.21平米(3LDK)で、一番狭いお部屋が50平米台の2LDKです。
第二期に販売されるお部屋の階数は、13階から32階までです。
プレミアムフロアは、第一期ですべて売れました。(その中には、少し前、ワールドビジネスサテライトで報道された6億円のお部屋も含まれます。)
物件概要
THE YOKOHAMA FRONT TOWER 物件概要です。- 名称 THE YOKOHAMA FRONT TOWER(ザ・ヨコハマフロントタワー)
- キャッチコピー
- YOKOHAMA DIRECT 「横浜」駅西口。これからの横浜を牽引する、世界拠点に住む。
- 駅とつながる。空とつながる。世界とつながる。
- スケジュール
- 竣工 2023年12月下旬
- 引渡し 2024年4月下旬予定
- 第2期販売開始 2022年4月上旬
- 場所
- 神奈川県横浜市神奈川区鶴屋町1丁目41番、42番(住居表示未実施地区)
- 交通
- 東急東横線・横浜高速鉄道みなとみらい線・JR京浜東北線(根岸線)・JR東海道本線・JR横須賀線・JR横浜線(根岸線)・JR湘南新宿ライン・JR上野東京ライン・京浜急行電鉄本線「横浜」駅きた西口徒歩3分
- 横浜市交通局ブルーライン 「横浜」駅徒歩8分
- 相鉄本線「横浜」駅徒歩9分
- 敷地面積 6,687.15m2
- 用途地域 商業地域 ※国家戦略住宅整備事業は国家戦略住宅整備事業横浜駅きた西口鶴屋地区。 地区計画は、エキサイトよこはま22横浜駅西口駅前・鶴屋町地区地区計画区域。
- ※敷地の一部に東急電鉄株式会社により鉄道事業施設に関する地上権設定あり。
- 建物
- 地上43階・地下2階
- 総戸数 459戸(一般販売対象外住戸35戸含む)他に宿泊施設・店舗・事務所等
- 所有権
- お部屋(第2期販売物件情報)
- 1R~3LDK
- 専有面積 23.42m2~71.44m2
- サービスバルコニー8.22m2〜16.53m2
- 駐車場等
- 駐車場 130台(タワーパーキング:128台。※EV充電用20台含む。地下1階自走式:2台)
- 自転車置場/ 689台
- バイク置場/バイク13台・ミニバイク6台
- その他
- インターネット使用料 1,210円(月額)
- 企業
- 売主
- 相鉄不動産株式会社
- 東急株式会社
- 管理会社 株式会社東急コミュニティー(全体部分)・株式会社相鉄リビングサポート(住宅部分)
- 施工会社 株式会社大林組
- 設計・監理 株式会社松田平田設計・UG都市建築・株式会社東急設計コンサルタント設計共同企業体
- デザイン
- デザイン監修・外観デザイン 光井純アンドアソシエーツ建築設計事務所株式会社
- 共用部デザイン 株式会社GARDE
- 売主
- その他事項
- ※本マンションの敷地の一部は歩道状空地および広場となっており、居住者以外の第三者が通行することとなります。
- ※敷地内および建物内には、宿泊施設・店舗・事務所等の看板等が設置されます。(設置場所・形状等は未定)
商業施設について
1階には、スーパーが入る可能性があるそうです。ただ現在では可能性が高いという段階で、詳細はまだわかりません。スーパーがどのぐらいの広さなのか(床面積)や、どこのスーパーなのか等は決まっていないそうです。
2階、1階の商業施設にどんなお店が入るのかについては、完成間近になってはっきりする予定です。お店の数、それぞれの床面積などは現在はまだ決まっていません。
3階には、主にクリニックが入るほか、教育支援施設も入る予定です。現在はコンペ中です。
ペデストリアンデッキの下部にもお店が並びます。そのお店の前あたりにはタクシー乗り場も作られます。
セキュリティとエレベーター
横浜駅から来ると、ペデストリアンデッキを通って2階から建物に入ります。横浜駅直結ではあるのですが、横浜駅きた西口のエレベーターから距離を測るとエントランスまで180メートルあります。不動産表記では1分が80メートル計算なので、2分ちょっとかかり、駅徒歩3分という表示になります。
この横浜駅「きた西口」は、このようなイメージで新しくなる予定です。

出典 横浜市
現状のきた西口は、こんな感じです。このエレベーターから180メートルのところにエントランスが設けられる予定です。
「ザ・ヨコハマフロントタワー」の竣工までには、この横浜駅きた西口は、上のイメージのように真新しく、かっこよくなるのです。まさに面的な開発の恩恵を受けられるという構図です。
続けて、そのほかのポイントを見ていきましょう。
鍵はカードキーです。
- 2階または1階の住民用エントランスに入る際
- 5階に入る際
- 住宅用エレベーターホールに入る際
各戸の玄関ドアを含めると、四重のセキュリティーです。
エレベーターですべての人が、いったん5階に行く必要があります。
5階から乗る住宅用エレベーターは、中層階用が3機(13階から32階)、高層階用が3機(33階以上)あります。それとは別に業務用エレベーターがあります。業務用エレベーターは、午前中、すべての階のゴミを回収する際にを使います。
一階の駐車場から直接入れるエレベーターがあり、5階へ行くことができます。
自転車置き場は地下2階です。自転車専用のエレベーターがあります。
共有施設等
各階ゴミ置き場があります。各階宅配ボックスがあります。
ワークプレイス、シガールーム、ライブラリーサロン、フィットネスルームは5階にあり、24時間利用可能です。
パーティーラウンジ、キッズスペースに隣接しテラスラウンジがあります。こちらもパーティーラウンジ、キッズスペースと同様、パーティーラウンジ、キッズスペースを使用する時に有料で貸切に対応しています。(使用は4時間まで)
パーティーラウンジには、キッチン設備はありません。
ゲストルームは一泊7000円です。一回あたり2泊まで。これは連続使用を避けるためでしょう。

サービス等
コンシェルジュは3ヶ国語ぐらいできる人が24時間配置される予定です。横浜ベイシェラトンホテル&タワーズのケータリングサービスが使えます。
高島屋の外商サービスが受けられます。
ジョイナスとの提携サービスの内容はまだ具体的には決まっていません。
方角・眺望について
第二期の販売は、東向き、西向き、南向きのお部屋です。海の方を向いているお部屋は、東向きのお部屋です。海側に向いているお部屋は、階数によって海が見えなくなります。モデルルームの眺望シミュレーションで確認すると、建物の上ギリギリに水平線が見える階は、23階でした。
内陸を向いているお部屋は、西向きのお部屋です。西向きは、富士山方面で、眺望が抜けています。15階、16階ぐらいになると富士山がちゃんと見えるようになります。
サービスバルコニーについて
すべてのお部屋についているのはサービスバルコニーであって、ベランダではありません。そのためベランダに出ることができないだけではなく、窓の形状も、出ることを前提としていないものになっています。サービスバルコニーの奥行きは1.8メートルから2メートルぐらいあり、通常ですとベランダになるのかと思います。しかしながら、ベランダではなくサービスバルコニーにした理由は、JRの線路や高速道路が近いため、万が一ものが落ちるような事態は避けなければならないからです。またもし物が落ちた場合、損害賠償など大変なことになることも予想されるので、この措置は致し方ないのではないでしょうか。
サービスバルコニーには出られない代わりに、というわけではないかもしれませんが、お部屋からの眺望をできるだけ良くするために、サービスバルコニーの色はすべて「透明」です。
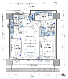
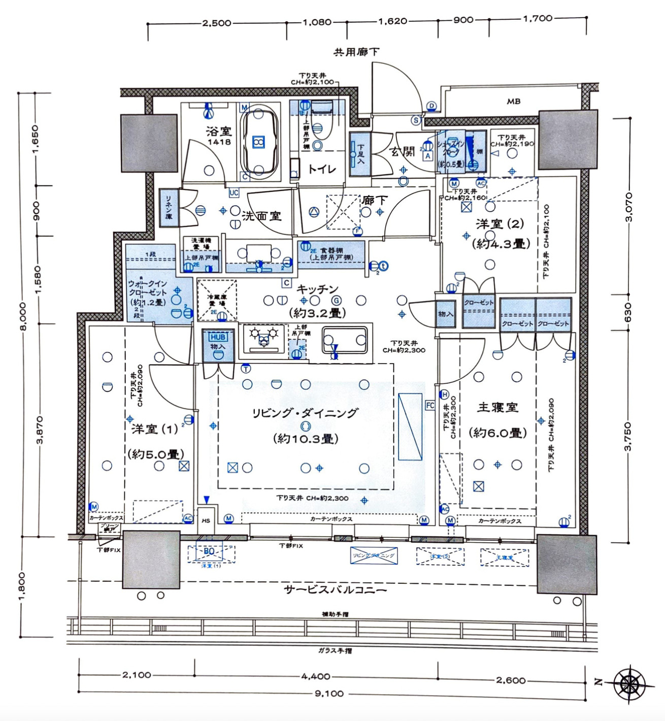
またお部屋や階数によりサービスバルコニーの下部に「コンクリート立ち上がり」が設けられています。図面でご確認ください。
バリアフリーについて
車椅子の方が、横浜駅から自分で車椅子を操作して家まで行けよう、バリアフリー仕様となっています。そのため一例としては、お部屋の中で車椅子の人がコンセントやスイッチを操作しやすいよう、コンセントの位置は低めで、スイッチの位置は高めに設置されています。
家賃収入を得る場合
現段階の賃料予測の一部です。参考にしてみてください。71B 71.44平米 359,000円〜397,000円
40A 40.36平米 201,000円〜215,000円
第二期予定価格と間取り
間取りについては、柱がアウトフレーム方式で外に出ている他、柱の処理がとても上手で、きれいな四角の良い間取りが多いです。53A 2LDK 53.24㎡
管理費: 26,340円 修繕積立金: 6,240円
15階 9,600万円台(坪単価596万円)
19階 9,700万円台(坪単価602万円)
23階 9,800万円台(坪単価608万円)
27階 10,000万円台(坪単価620万円)
31階 10,300万円台(坪単価639万円)
32階 11,100万円台(坪単価689万円)
32階の平面図なので他の階の配置図とは違う部分があります。部屋の位置確認にお使いください。
55A 2LDK 55.48㎡
管理費: 27,440円 修繕積立金: 6,500円
15階 10,000万円台(坪単価595万円)
19階 10,200万円台(坪単価607万円)
23階 10,300万円台(坪単価613万円)
27階 10,500万円台(坪単価625万円)
31階 10,700万円台(坪単価637万円)
32階 11,500万円台(坪単価685万円)
下は32階の平面図なので他の階の配置図とは違う部分があります。部屋の位置確認にお使いください。

66A 3LDK 66.21㎡
管理費: 32,750円 修繕積立金: 7,760円
23階 13,900万円台(坪単価694万円)
27階 14,000万円台(坪単価699万円)
31階 14,100万円台(坪単価703万円)
32階 14,900万円台(坪単価743万円)
下は32階の平面図なので他の階の配置図とは違う部分があります。部屋の位置確認にお使いください。
71A 3LDK 71.44㎡
管理費: 35,340円 修繕積立金: 8,370円
15階 14,500万円台(坪単価670万円)
19階 14,600万円台(坪単価675万円)
23階 14,700万円台(坪単価680万円)
27階 14,900万円台(坪単価689万円)
31階 15,000万円台(坪単価694万円)
32階 15,900万円台(坪単価735万円)
下は32階の平面図なので他の階の配置図とは違う部分があります。部屋の位置確認にお使いください。
54B 2LDK 54.07㎡
管理費: 26,750円 修繕積立金: 6,340円
23階 9,500万円台(坪単価580万円)
27階 9,600万円台(坪単価586万円)
31階 9,800万円台(坪単価599万円)
32階 10,600万円台(坪単価648万円)
下は32階の平面図なので他の階の配置図とは違う部分があります。部屋の位置確認にお使いください。
58B 2LDK 58.88㎡
管理費: 29,130円 修繕積立金: 6,900円
15階 10,400万円台(坪単価583万円)
19階 10,600万円台(坪単価595万円)
23階 10,700万円台(坪単価600万円)
27階 10,800万円台(坪単価606万円)
31階 11,000万円台(坪単価617万円)
32階 11,900万円台(坪単価668万円)
下は32階の平面図なので他の階の配置図とは違う部分があります。部屋の位置確認にお使いください。
66B 3LDK 66.21㎡
管理費: 32,750円 修繕積立金: 7,760円
23階 13,300万円台(坪単価664万円)
27階 13,400万円台(坪単価669万円)
31階 13,500万円台(坪単価674万円)
32階 14,300万円台(坪単価713万円)
下は32階の平面図なので他の階の配置図とは違う部分があります。部屋の位置確認にお使いください。
71B 3LDK 71.44㎡
管理費: 35,340円 修繕積立金: 8,370円
16階 14,000万円台(坪単価647万円)
19階 14,100万円台(坪単価652万円)
23階 14,200万円台(坪単価657万円)
27階 14,300万円台(坪単価661万円)
31階 14,400万円台(坪単価666万円)
32階 15,300万円台(坪単価707万円)
下は32階の平面図なので他の階の配置図とは違う部分があります。部屋の位置確認にお使いください。
58C 2LDK 58.13㎡
管理費: 28,750円 修繕積立金: 6,810円
16階 10,000万円台(坪単価568万円)
19階 10,100万円台(坪単価574万円)
23階 10,200万円台(坪単価580万円)
27階 10,300万円台(坪単価585万円)
31階 10,500万円台(坪単価597万円)
32階 11,400万円台(坪単価648万円)
下は32階の平面図なので他の階の配置図とは違う部分があります。部屋の位置確認にお使いください。
予定価格は変更の可能性があります。
駐車場情報
種別に応じた、台数、月額使用料、サイズ(全長・全幅・高さ)の情報です。- 平置(大) 4台 95,000円 6000×2500×2300
- 平置 2台 93,000円 6000×2250×2300
- ハイルーフ 36台 60,000円 5300×2050×2000
- セミ・ハイルーフ 22台 52,000円 5300×2050×1850
- セミ・ハイルーフ(電気チャージ) 18台 57,000円 5300×2050×1850
- ノーマルルーフ 52台 49,000円 5300×2050×1550
※地権者区画使用区画を含まれます。
販売スケジュール
要望書受付開始2022年2月26日(土)~
正式価格発表会
2022年4月下旬(予定)
登録受付開始
2022年4月下旬(予定)
申込会・重要事項説明会
2022年5月上旬(予定)
契約会
2022年5月中旬(予定)
引き渡し
2024年4月下旬(予定)
ザ・ヨコハマフロントタワー モデルルーム
モデルルームは「横浜ベイシェラトンホテル&タワーズ」の中にあります。モデルルームへいらっしゃる方へ。前日に横浜ベイシェラトンホテル&タワーズに宿泊するというのはいかがでしょう。
これについては、予約時に特におすすめしたいお部屋などがありまして、追ってスムラボで記事をアップする予定です。少々お待ちくださいませ・・・。
モデルルーム(ホテル)の場所
まとめ。クリスティーヌの意見
購入できる方は、迷わず購入するだろうマンションです。今回の記事では、まだお伝えしきれないことも多々あるのですが、モデルルーム予約が始まっていますので、予定価格をお伝えさせていただきました。いいマンションですよね。高層階にリラックスできて眺望がいいラウンジがあって、暖炉には、本物の火を使うそうで、贅沢さと落ち着きと豊かさ、そして国際色を感じられるマンションになるに違いありません。
10路線通っている首都圏の主要ターミナル駅は、5駅あります。新宿、東京、上野、大宮、横浜です。その中で駅直結マンションは50年ぶりだとモデルルームで伺いました。
とても貴重な立地です。
最後に、「モデルルームがホテルの中に作られた理由」についてわかったことをお伝えします。
モデルルームがホテルの中に作られた理由は、主に3つあるそうです。
第一に、横浜ベイシェラトンホテル&タワーズが相鉄ホールディングス株式会社を母体にしていることです。ザ・ヨコハマフロントタワーの売主は相鉄不動産株式会社と東急株式会社なのですが、横浜ベイシェラトンホテル&タワーズが相鉄グループであることから、話がまとまったそうです。
第二に、売主側がモデルルームを探している段階で、「ある程度の広さ」を確保したいと考えていたそうです。ホテルの宴会場は、広さの要求にも答えられるものだったそうです。
第三に、コロナ禍でホテルの宴会場の予約がなくなっていく中で、ホテル側としても、使われなくなった宴会場をモデルルームに使用してもらうことで助かる、という面があったそうです。
実際、モデルルームに入ると、「もしかしてここから花嫁がお色直し後に登場するドア?」というような、重厚なドアがあり、なぜか非常に「ザ・ヨコハマフロントタワー」の高級イメージにマッチしていたんですよね。
横浜ベイシェラトンホテル&タワーズと「ザ・ヨコハマフロントタワー」は相性がいい?
今回、モデルルーム訪問で実感できたのですが、「ザ・ヨコハマフロントタワー」はロビーなどが、ヨーロッパのモダニズムをイメージして、横浜らしさを演出しています。そのクラシックなイメージが、1998年創業で、四半世紀の歴史のある横浜ベイシェラトンホテル&タワーズのイメージにぴったりだと感じました。こちらが、「ザ・ヨコハマフロントタワー」のエントランスロビーのイメージです。

出典 公式サイト
こちらが、横浜ベイシェラトンホテル&タワーズのロビーです。ロゴがなければ、どこかのマンションの車寄せみたいですね。
ホテルの宴会場って、宴会の人数によって、お部屋のサイズを仕切りなどを利用して、普段から変えていますよね。その意味でも、細かい仕切りを作ったり、モデルルームのお部屋をいくつも作ったりするのは、ホテルからすると、わりと手慣れたものなのかなと思いました。
ワールドビジネスサテライトで報道された6億円のお部屋のモデルルームも、宴会場の一角に作られていると考えると、なんだか楽しくなってきます。天井もホテルなら高いですしね。
ホテルとモデルルームは、意外に相性がいいのではないでしょうか。
また最後に話は変わりますが、コロナ禍が長期化しています。そのため外国人の購入は少なくなっているのではないかと伺ってみたところ、コロナのため日本に来られない海外の方に対しても販売は可能であるということでした。
外国からの購入者が少なくなって、抽選倍率が少し低くなるかなあと一縷の望みをかけてモデルルームで聞いてみた質問でした・・・。
さて。
ここまで読んでくださったあなた。
本記事には続編があります。続編はこちらです。ぜひ続けてお読みください!
ザ・ヨコハマフロントタワー|モデルルームはホテル内!横浜ベイシェラトンホテルのクラブラウンジから始める特別な時間【クリスティーヌ】
モデルルームを予約される方に、ぜひ読んでいただきたい記事です。
また、「どんな建物?眺望は?概要は?」については、「ザ・ヨコハマフロントタワー|横浜駅直結タワマン 世界水準のレジデンスに住む」に詳しく書きましたので、そちらの方をお読みください。
【関連記事】
抽選は本当に悩ましい問題ですが、横浜にはもう一つ、注目のマンション「シティハウス横浜」があります。「ザ・ヨコハマフロントタワー」の話題性に押されていますが、実はこちらの立地も非常に希少。横浜駅近でこの立地はそうは出ません。
資料請求して最新情報をゲットしておけば、横浜の価格情報なども入手できるかと思います。こちら(シティハウス横浜|大改造が進む横浜駅周辺エリア!Q&Aと映像付き【クリスティーヌ】)も合わせてチェックすることをおすすめいたします!
・・・皆さまの、今日一日が、素敵な日でありますように。住む場所は人生を豊かにする、がモットーの、クリスティーヌより愛をこめて。
(クリスティーヌのTwitter、こちらです。Twitterされている方は、フォローしてね)
(クリスティーヌの記事一覧は、こちらです)
スムラボ記事
- THE YOKOHAMA FRONT TOWER|鶴屋町が変える横浜の未来!映像付き【クリスティーヌ】
- ザ・ヨコハマフロントタワー|モデルルームはホテル内!横浜ベイシェラトンホテルのクラブラウンジから始める特別な時間【クリスティーヌ】
- ”ザ・ヨコハマフロントタワー”の「私の印象」→「横浜で」ランドマーク性と超絶利便性を兼ね備えた物件は見逃せない、そういう方のための物件。余裕があればコレクションに加えたい、そんな物件【けろけろ准将】
- 【第3期予定価格】1LDK解禁!ザ・ヨコハマフロントタワー|モデルルーム訪問時のツアー案作ってみました 【クリスティーヌ】
- これぞ横浜no.1!『THE YOKOHAMA FRONT TOWER』 の全貌【yossy】
この記事を見ている人はこちらも見ています
- 【第3期予定価格】1LDK解禁!ザ・ヨコハマフロントタワー|モデルルーム訪問時のツアー案作ってみました 【クリスティーヌ】
- ザ・ヨコハマフロントタワー|モデルルームはホテル内!横浜ベイシェラトンホテルのクラブラウンジから始める特別な時間【クリスティーヌ】
記事に出てきた物件の掲示板
- ザ・ヨコハマフロントタワー(検討スレ) | (住民スレ) | (まとめ) | (スムラボ) | (スムログ)
- シティハウス横浜(検討スレ) | (まとめ) | (スムラボ)






























再びこんにちは!お世話になっております。
地方移住をしようかと各地へ飛行機旅行をした末に、結局は東京から大きく離れる事が出来ないで
現在はここだけを検討しております。
私は第二期からの参戦に成りますので、貴重な情報をありがとうございます!参考になります。
予約開始のメールがうちには届かなかったのですが、運良くキャンセルの空き枠をゲット出来ました。
このまま運良く部屋も当選ゲットできると良いのですけど(笑)
平面図を見ると、部屋番号は時計回りに割り振られているのですね。
今まで住んだマンションは全て反時計回りでした。
ではまた。