ブランズって響きだけでカッコいい。
こんにちは!
地元愛の塊、札幌タワマンくんです!
今回レビューするのは「ブランズ札幌大通東」(平均坪単価350万円)です。
ブランズ×大通東ということで名前はトキメクものがあるのですが、坪単価が恐ろしいですね。
先月竣工しまして、現地では存在感を放っていて目立ちます。

「ブランズ札幌大通東」公式HPより引用
目次
物件概要
- 所在地:北海道札幌市中央区大通東3丁目1-29(地番)
- 交通1:札幌市営地下鉄東西線「バスセンター前」駅(8番出口) 徒歩2分
- 交通2:JR函館本線 「札幌」駅 徒歩18分
- 総戸数:67 戸
- 構造・規模:鉄筋コンクリート造 地上15階建
- 竣工時期:竣工済(2025年12月)
- 引渡予定時期:2026年2月下旬予定
- 敷地面積:810.36㎡
- 間取り:1LDK~3LDK
- 専有面積:36.59㎡~86.76㎡(住戸玄関横宅配ボックス面積0.56㎡含む)
- 販売価格:3,458万円~7,898万円(1LDK~3LDK)
- 事業主(売主):東急不動産株式会社
- 施工会社:株式会社NIPPO北海道支店
- 駐車場:21台(機械式18台、平置き3台)月額使用料25,000円~33,000円
- 自転車置場:42台
立地

「ブランズ札幌大通東」公式HPより引用
立地は札幌の心臓部、大通駅から一駅の地下鉄「バスセンター前」駅から徒歩2分の場所に位置し、札幌中心部を流れる創成川の東側にある「創成イーストエリア」に属します。
天候にも左右されず本数も豊富にある地下鉄駅近くであり、また「バスセンター前」駅は「大通」駅まで地下歩道が接続されているため、「さっぽろ」駅「すすきの」駅までも濡れずに歩いていくことができます。サッポロファクトリーまでは徒歩2分(約140m)と隣接しており利便性は高く、また当物件目の前の大通東4丁目の道路整備が行われており、札幌市民には馴染み深いファクトリー横の変形交差点通称「クランク」の解消工事が行われるなど再開発が引き続き行われている、市内では活発なエリアです。

「ブランズ札幌大通東」公式HPより引用
建物

「ブランズ札幌大通東」公式HPより引用
エントランス横にはGREEN TERRACEを設置して、地域の景観作りを意識することで大手ならではの「地域への貢献と街の価値を創出」しています。

「ブランズ札幌大通東」公式HPより引用
「サッポロファクトリー」をモチーフにした三角形状の2階吹き抜けのエントラスホールを用意。
建物の外観にもサッポロビール園のようなレンガを使用するなど、地域との調和を意識した建物作りとなっています。

「ブランズ札幌大通東」公式HPより引用
総戸数67戸中駐車場台数21台というのは残念。ターゲットが車手放した層またはセカンドハウスなのでしょう。学区がいいのでファミリー狙いかと思えば、駐車場台数や下記の現在販売中の間取り的にもファミリーには好まれなさそうです。
間取り・価格
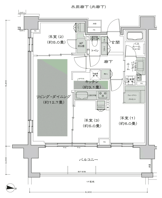
36.59㎡の1LDKから86.76㎡の3LDK(2/2戸成約済)まで全8タイプ。
今回はその中からAタイプ(67.99㎡/3LDK)、Cタイプ(43.95㎡/1LDK)、Eタイプ(58.42㎡/2LDK)の3タイプを紹介します。・Aタイプ
67.99㎡/3LDK/7,188万円(501号室)

ウォールドアの洋室がキッチン、リビングと続いており、独立しているのは2部屋。
それぞれ5.0畳、3.9畳とベッドを置くと部屋の大部分が埋まる形に。さ、3.9…!?
ただ全室南側バルコニーに面しており陽当たりは良好の様子。
お子様含めて家族3人でも十分な暮らしが可能と紹介されましたが、実際住むとかなり手狭ではという印象。勉強机やインテリアなどを置くスペースもかなり限られるためリビング横の部屋でくつろぐ形に。
快適に暮らすには夫婦2人暮らしが適当と考えます。
Cタイプ
43.95㎡/1LDK+WIC/4,708万円(703号室)

リビングに隣接してウォールドアで仕切られた5.0畳の洋室が1室。
ウォークインクローゼットも完備されているため、一人暮らしには十分な暮らしができそうです。(個人的に1LDKはこちらのウォールドアではなく完全独立タイプが好きです)
Eタイプ
58.42㎡/2LDK+2WIC/6,498万円(1005号室)

ウォールドアで仕切られた4.1畳が1室と、独立した6.6畳の洋室が1部屋。
それぞれの部屋にウォークインクローゼットがついており服や季節物を収納することは十分可能そうです。
しかし小さな物入れが1つしかなく、日常雑貨の収納や掃除機などの掃除用具をしまうスペースが少なく、モデルルームをみたところ収納が少ないなという印象。
しかし生活動線や寝る部屋、くつろぐ部屋がはっきりと分かれているのはいいなと感じました。
比較検討
Aタイプ(501号室:67.99㎡/3LDK/7,188万円)と新築比較
・「クリオ札幌苗穂ステーションフロント」(平均坪単価285万円)(スムラボ記事)
現在販売中のBタイプ(4F:66.38㎡/3LDK)が4,996万円(間取り非公開)。
同じ創成イーストエリアではあり学区も同じですが、地下鉄とJRでここまで価格差が生まれております。
そこまで地下鉄にこだわりがなければ2,000万円の差は大きく感じます。JR動かない日を全部タクシー費に当てても余裕でお釣りが来ます。
・「シティテラス宮ヶ丘」(平均坪単価330万円)(スムラボ記事)
現在販売中のC’タイプ(2F:70.47㎡/3LDK)が6,900万円。


こちらは2023年6月完成と時間は経っており、アドレスも円山地区の宮ヶ丘となっているため同じ目線での比較は無理やりかもしれませんが、Aタイプは家族で住む事を想定していると考えると駐車場を含めシティテラスの方にどうしても優位性を感じてしまいます。
Eタイプ(1005号室:58.42㎡/2LDK+2WIC/6,498万円)と同価格帯比較
・新築、中古問わず2LDK、6,500万、最寄駅3分以内苗穂駅徒歩1分、築4年の「プレミストタワーズ札幌苗穂BRIGHTGATE」の73.63㎡/2LDKが6,280万円、


西18丁目駅徒歩1分、築1年の「ザ・レーベン札幌大通MASTERS ONE」(スムラボ記事)の65.98㎡/2LDK+Sが6,498万円、


これらの方がゆとりもあり、どちらも駅から徒歩1分の場所に位置しているため公共交通機関の利用も問題なく、築年数も浅い。
・同エリア同じバスセンターエリア内では駅から徒歩8分の「ザ・タワーズフロンティア札幌」の2LDK/61.94㎡6,280万円が唯一比較検討に(割と高い気がする)。


広さではタワーズフロンティアが勝っていますが、駅からの距離に大きな違い(徒歩2分と8分)、また新築と中古(築7年)という面で比較するとブランズに優位性がある。ただファクトリー直結は強いので引き分け。
以上の競合比較を元から推測すると、”創成イースト×駅徒歩3分以内×新築”
“1人暮らしもしくは2人暮らし”
この条件に当てはまる方が購入検討に入ってくると考えられます。
しかし一方で、現在すぐ近くの大通東4丁目で三井不動産レジデンシャルさんが2025年秋口から新築分譲マンションの着工に着手しており、地上14階建てで52戸、延床面積は4275.68㎡とブランズ札幌大通東(15階建67戸)よりもゆとりのある作りになる予定です。
こちらの分譲計画が本格的に進むと、先ほど記した”創成イースト×駅徒歩3分以内×新築”という条件とまるっきり当てはまる物件が出てきてしまうことになります。
そうなるとエリアに対する供給過多が予測されます。”創成イースト×駅徒歩3分以内×新築”と”1人暮らしもしくは2人暮らし”に当てはまる条件の世帯が100件もあるとは思えません。
で、
で、徒然と比較物件を並べて何が言いたいかというと、1つ目に必ず比較検討は必要だということです。
難しいのが、ただ同エリアや同価格帯で絞り込んで比較するのではなく、ご自身の購入軸で比較するということ。
上記で述べた”創成イースト×駅徒歩3分以内×新築”というのは物件購入に対する条件の最優先事項、つまり購入軸なのですが、これは人それぞれ違います。
例えば、多くの方にとって価格は優先順位が高いと思うので、価格はX軸に固定します。
それでY軸に持ってくるのはどんな要素なのか。
職場までの所要時間なのか、間取りなのか、大きさなのか、新築なのか、築年数なのか、設備なのか、眺望なのか、エリアなのか、商業施設なのか。
人それぞれによってY軸は変わってきますし、Y’やY”など、軸はどんどん増えると思います。
そこでご自身にとって譲れないポイントが見えてくるはずです。妥協できない、価格が多少高くなっても許せるポイントが。
そのポイント軸だけをズラさずに比較検討ができれば、自ずと購入すべき物件が見えてきます。
2つ目に言いたいことが、マンションはフラっとした脳死に近い感じで検討すると痛い目に遭うということです。当物件で例えると”創成イースト×駅徒歩3分以内×新築”が購入軸ではないのに関わらず購入してしまっている方がいるかもしれない。
当物件に限ったことではなく、どんな物件にも少なからずそういう方はいます。「これ以上物件探すの面倒だしここにするか」「なんか今までで一番いいかも」「よく広告見るし運命かも」「雰囲気が気に入った」等十人十色の理由があると思いますが、もっとその方々に物件が他にあるのに脳死で物件を選んでしまう。購入軸を持って検討をしないと本来の目的ではない理由で物件を購入することになってしまいます。
私もモデルルーム見学するごとに、この物件に当てはまる購入軸はどんな軸なんだろうというのを逆算して、その軸で競合比較してからレビューしています。
最近は本当に厳しく、新築が条件(絶対に新築が良い)という方でないと購入しないのではないかという物件が多く見受けられます。
あったら嬉しいポイントではなく、絶対に譲れない軸を探しましょう。
総評
今回は「新築が条件で今物件を買いたい街中で働くDINKs」もしくは「大通公園徒歩圏内で行ける新築セカンドハウス」を探している方にオススメです!
”新築希望”ありきの物件ですね。めちゃくちゃ調べている方や不動産関係者は多分買わない物件だと思っちゃいました。
新築にこだわらない、バスセンター駅にこだわらない、駅近だったら良い(徒歩3分以内)、坪単価350万円前後で購入を検討の方には他にも多くの選択肢があるのかなというのが本音ですね。
今までは「リセール考えたら辞めた方がいいんじゃないか」という購入後の出口が難しい物件がありましたが、これからは「そもそも高くて買えないよね」という入り口時点で難しい物件がどんどん増えてきそうですね。
それでも成約0ではなく売れているというのは、リセールも気にしない、新築価格も気にしない、ここに住みたいんだ!という豪快な方が多くいるのだなとしみじみ思いました。
そして何より、ブランズというブランド、目立つ外観、ハマる方にハマる魅力的なマンションでした!
今回も最後まで読んでいただきありがとうございました!!
少しでもためになったと思ってくださった方は、Xやインスタのフォロー、いいね!をいただけると嬉しくなります!!
新築マンション購入相談、中古マンション売買の仲介相談も受け付けておりますのでお気軽にお問い合わせください!!
以上、「ブランズ札幌大通東」のレビューでした!

「ブランズ札幌大通東」公式HPより引用
[スムラボ編集部より] 本ブログ記事の情報は投稿日時点のものです。現在の販売情報はLifull Homesをご参照下さい。
この記事を見ている人はこちらも見ています
- 「クリオ札幌苗穂ステーションフロント」完全解説【札幌タワマンくん】
- 「ザ・レーベン札幌大通MASTERS ONE」完全解説【札幌タワマンくん】
- 2026年 大注目のマンション10選!この中のマンションのどれかを購入したい!!【前編】【すごろく】
- 【最新版】札幌マンションマーケット完全解説ver.2025【札幌タワマンくん】






















記事にコメントする