こんにちはモルモット滋賀です。 1/24-25の寒波、滋賀県南部は珍しく積雪となりました。 通常、南部は殆ど降らず、若狭湾から滋賀県に流れ込む雪雲は、勢力があまり衰えず、発達したまま伊吹山などにぶつかり、大雪をもたらすため彦根あたりは豪雪、大津草津はほぼ降らないという感じですが今回は逆転したような天気でした。

さて、今回は滋賀県2023年注目のマンションBEST3を紹介いたします。 滋賀県は大阪東京と比較するとそもそも新築マンションの数が限られるので基準としてはゆるくなるのですが今回紹介する物件は他にない特徴を持ついい物件です。この中から通勤やエリアの好みによって選択で問題ないでしょう。もちろん同エリアにも魅力的な物件は多々あります。その際狙い撃ちで決めるのではなく、今回紹介する物件も候補としてぜひご検討ください!
エリアごとの概要については過去記事もぜひ御覧ください。
第三位 プラウドシティ大津京
プラウドシティ大津京は滋賀県では貴重なメジャー7供給物件です。 新築×大規模(353戸)×琵琶湖ビュー最後の物件であろうという貴重な物件です。 詳細は別記事にまとめておりますのでこちらをご参照ください。
琵琶湖ビューはもちろんですが、山側ビューは京都駅乗車11分で価格が坪単価150万円前後とかなり安く、4LDK以上の広い間取りも豊富です。 琵琶湖ビューの間取りはおよそ坪単価220万円程度です。駅徒歩11分の割には高いですが唯一無二の琵琶湖ビューですからね。 湖西は滋賀県民にとってブランドが低く、価格も抑えられています。一方それは京都大阪のベッドタウンとして見るなら「安くて近い」物件になるということは間違いないです。物件から道路挟んでショッピングモールもあり買い物環境もGOODです。
琵琶湖ビュー側は希少性が高く、リゾート感あるセカウンドハウスや富裕層向けもアリで、山側は郊外型ベッドタウンとしてという2面性が面白い物件です。
メジャー7の大規模物件ということでランドマーク性は高いですが、大津京エリアにはさらに大規模・駅チカ・スーパー直結・琵琶湖近いという上位互換であるプレサンスレジェンド琵琶湖があります。設備仕様は新築ということもあり、プラウドシティ大津京のほうが若干上かなという気もします。特に駐車場完全立体式や修繕計画に余裕がある仕様など維持面でも有利です。プレサンスレジェンド琵琶湖は大津京から最も琵琶湖に近い立地に位置し、486戸の気合が入ったマンションです。物件名に「伝説」を冠してるだけはあります。家の名前にレジェンドを入れるぐらいですから名前に恥じないそのランドマーク性はピカイチです。 最近のマンションで「物件名ブチあげてるな!」と感じたのは京都、烏丸御池駅徒歩2分に位置するイーグルコート京都御所南 プレミアム迎賓館です。まだ情報は少ないですが住所を書くたびに「プレミアム迎賓館」と書かせるのですから相当良いマンションになるのでしょう!
プラウドシティ大津京はキャンペーン中で上記リンクから資料請求し、契約で10万円分のPayPayプレゼント中です!(2023/1現在)
第二位 ブランズシティ南草津
ブランズシティ南草津も滋賀県では貴重なメジャー7供給物件です。 本物件最大の特徴は立地です。写真と図を御覧ください。
このように、南草津駅から公園を挟んでわずか徒歩2分、公園側は永久眺望確定という急発展を遂げる南草津エリア最高立地となっています。
南草津エリアは駅を挟んでマンション立ち並ぶ住宅ゾーンと商業施設ゾーンにキレイにわかれており、この駅距離にも関わらず非常に閑静で整った雰囲気になっています。 外観もその雰囲気にふさわしい、オカネのかかった豪華な設計になっています。入居はもうすぐで建物は完成しておりますので今からであれば実物を見て購入可能です。
ブランズシティ南草津はこの最高の立地に相応しい、コストのかかった建築がされています。多くの滋賀県のマンションは45m規制の中でギリギリを攻める階高3m 15階建て、天井高さ2.45mがほとんどですが、本物件は贅沢にも14階建てに抑えることにより天井高2.6mを実現しています。滋賀では相当珍しい仕様です。天井の高さって床面積と比べればあまり意識されないと思います。スムラボをしっかり読まれているアンテナの高い方はともかく、自宅マンションの天井高を把握している方のほうが少ないのではないでしょうか。ですが実際に高い天井というのは数字以上に空間の広がりや開放感をもたらします。2.45mと2.6mなら、体積で言えば6.1%も変わります。なのに一般的な間取り図面ではわからず、天井高があるからといって数百万円高くても買うという人はそこまで増えないと思います。なのに売れる階を1つ減らしてでもこの天井高を標準として確保した東急不動産には感謝します。
217戸の中大規模マンションであり、共用施設も充実です。
・コワーキングスペース
・キッズルーム
・パーティールーム
・ゲストルーム
・カーシェア
・ビューテラス
・24時間ゴミ捨て
コロナ禍のマンションということでキッズルームのおもちゃは投影方式にするなど細かい気配りもされています。
独特なものとしてブランズマイクロークという季節もの衣類預かりサービスも有償で提供されます。和服、じゅうたん、スキー・スノーボード用品、布団やバッグなど、季節外の様々な物を預けられるので、ご自宅の収納不足解消が見込めます。

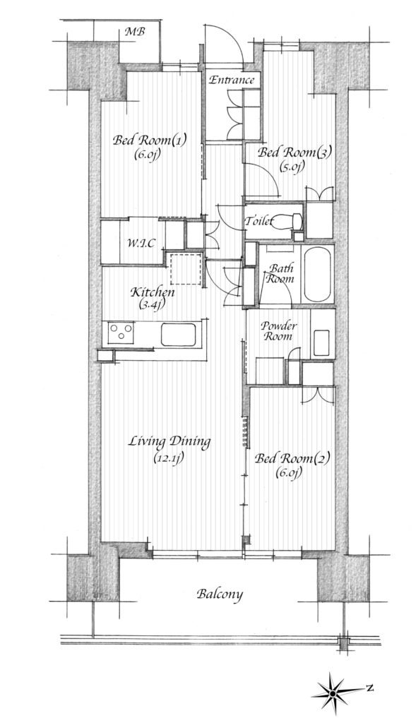
専有部の間取りとしては一般的な田の字です。 コストカット満載の田の字ではなくアルコーブをしっかりとり、各間取りとも少しでも居住性能を高めようとする意識は伝わってきます。アルコーブ アウトフレーム 収納量などはどの間取りでもしっかりできていますね。トランクルームもありです。
設備面でも他の県内マンションより1歩上だなと感じます。 キッチン天板がフィオレストーン標準は現在販売中ではここくらいではないでしょうか。
洗面台も鏡に直接ふれなくていい用に洗面四方枠ありになっています。
トイレはタンクレスではないですが便器と一体となったスタイリッシュタンク式です。
一点惜しいのが浴室はダウンライトではなくブラケットライトです。 小さなことですが変更は容易ではないのでここだけあとちょっと頑張ってほしかった!
あと駐車場がタワーパーキングメインです。 県内他の大規模マンションが自走式なので入出庫に時間がかかり、メンテナンスの心配があるのはマイナスですが、駅距離を考えれば致し方ないというところです。アプリなどで出庫予約など最近のデジタル化も対応しますが、多くの滋賀県民からすると「車を出すだけなのになんか大変」という印象は拭えないでしょう。
販売も順調で残りの部屋はわずかとなっています。
坪単価は200~220万円程度 販売開始時は「滋賀の割に結構するな さすがブランズ」という印象でした。 ですがこの唯一無二立地と建物の豪華さ、直近の相場上昇を鑑みるに相対的に割安になっていると感じます。 利便性と落ち着き、建物の質のバランスが高い次元でまとまっており、南草津駅のランドマークマンションとして資産性も大いに期待できます。南草津駅に降り立つたびにホームから「ああ あれが我が家」と思える最高のシアワセ。
第一位 シエリアシティ大津におの浜
シエリアシティ大津におの浜は人気エリアにおの浜に建つ708戸の県内最大規模のマンションです。 特徴としてはなんといってもそのずば抜けたランドマーク性。におの浜にかつて存在した、西武百貨店の跡地に建築されます。滋賀の方であれば西武百貨店の存在や場所はご存知ですし、それが取り壊しになること、跡地にマンションができるということは広く知れ渡っています。 竣工はまだまだ先ですが「西武跡地」という言葉だけで「あぁあそこのマンションね」とまったくマンションに詳しくない方でもイメージできるのは凄まじいアドバンテージだと考えます。東京で例えるなら渋谷109跡地マンションぐらいの知名度です。大阪で例えるなら大丸心斎橋跡地マンションです。(どちらも取り壊されていません)さらに「西武跡地のマンションってなんかすごいんでしょ? 値段も高そうだけど・・・」という、なぜか「高級マンションである」というイメージまでついて回っています。近隣競合物件のモデルルームで「西武跡地も気になっている」と話すと、営業トークも込みでしょうが「あそこは高くなりますよ」となんの根拠があるのか他社が価格予想しています。このイメージはプラスかもしれません。実態はどうであれ、地域の人は「西部跡地はいいマンション」と思ってくれているというのは気分的にもリセール的にも良いことでしょう。
近隣物件のモデルルームの営業の方がこのようなことを仰っていました。「西部跡地は似たような長谷工設計の大規模マンションである、クラッシィハウス京都六地蔵と似たような物件だと予想されます。あそこは食洗機もOPにするなど設備仕様がとても低く、販売苦戦しているようです」という、遠く離れた六地蔵まで巻き込んでのネガキャンが展開されるほど周辺マンションとして驚異になる物件です。(かわいそうなクラッシィハウス京都六地蔵・・・) 確かに京都中心部のベッドタウンに位置する長谷工の大規模マンションというのは共通ですが、売り主が全く違うのでイコールとするのは早計です。におの浜のマンションはこのシエリアシティ大津におの浜の販売が本格化する前に売り切りたいはずで、値引きや来場者プレゼントなどもあちこちで見かけました。
エリアNo1立地・規模ということで価格も高くなりそうなのは違いないと思いますが、郊外ベッドタウン型マンションとして仕様を抑え、そこまで大騒ぎするほど高くならないんじゃないかと予想します。いくらなんでも膳所でエリアNo1だからとエステムコート大津におの浜のような高級仕様に仕上げ、土地代込みで坪300万弱等で708戸を捌くのは厳しいでしょう。 参考までに2021年築のお隣のエスリード大津におの浜セントラル坪単価190万円程度で取引されています。シエリアシティ大津におの浜の西向きはこのエスリード大津におの浜セントラルと完全に向かい合うことにうなります。その辺のデメリットを加味+大規模なのである程度値段を抑えて売り切る+「意外と安いんですよ」という客寄せとしてこの西向きであれば昨今の物価上昇を考慮しても坪単価200万~220万からで出てくるんじゃないでしょうか? 出てきますよね?
におの浜でハイスペマンションが気になる方はエステムコート大津におの浜はおすすめです。駅距離は遠くなりますが同じような価格で良い間取りのマンションに住めます。
紹介記事もご参照ください。
現段階では専有部の仕様は未知数でありさらなる情報解禁が待たれます。モデルルーム訪問後、情報を固めてからスムラボでも記事にしたいと思います。
大規模マンションとして威風堂々とした外観はインパクト抜群です。 大通りにも面しているのでランドマーク性は県内最強でしょう。
エントランスは吹き抜けでですが思ったよりこじんまり。 メインエントランスは駅からもスーパーからも最も近い出入り口ではないのでそこまで使われないという判断かもしれません。
共用施設が凄まじいです。 コワーキングスペースやキッズルームという一般的なものからコンシェルジュ、ランドリールームやシアタールーム、学童保育併設など県内ではあまり見かけないものまで揃えています。 一部共用施設は独立木造共用施設棟にまとめられています。 これはシエリアシティ明石大久保でも見られる最近のシエリア×大規模でよく見かけるデザインです。滋賀県内唯一の設計で引きがありそうですね。共用施設は使う使わないは別として中古検討者にとって「おおっ」「すごい!」と思わせる要素です。維持は大変ですが資産価値への寄与は大きいと思います。
駐車場は立体式ですが100%供給ではありません。708戸に対して575台です。EV対応駐車場が60台はさすが関電不動産ですね!東京では毎日見たテスラも滋賀では見たことありませんがこれから電気自動車の需要も増えていくでしょう!
ハードウェアとしての共用施設だけでなく、イベントも開催していくそうです。これはよくわかりませんw 管理会社がお祭りや田植え体験を企画して手配してくれるのでしょうか?その費用は管理予算に計上されて「田植え マイクロバス貸切代」とか書かれてて組合から「自家用車で行けないのか」「小学校でやるのに管理費を使ってやる必要があるのか」と突っ込まれたりするのでしょうか?それとも企画だけして実務は管理組合で主導し、お祭りの店員は理事メンバーなのでしょうか?イメージ図で外国人っぽい子供が焼肉をしているのはこれはどういう想定なのでしょうか?敷地内ではないですよね?写っている大人の男女の子供には見えませんがパパとママはどこに行ったのでしょうか?この規模まで行けばマンション内だけで子ども会が作れる感じなのですかね。管理組合がこういったコミュニティ行事に積極的という物件はありますが、分譲時にウリとして押し出すのは初めて見ました。セールスポイントにするくらいですから関電不動産コミュニティが責任を持って提供されるんですよね?自分が理事ならすごい嫌な予感がする項目ですw 詳細は聞いておきます。
間取りはまだ一部しか公開されていません。 1つピックアップします。
廊下側は柱ガッツリ入って洋室3は家具レイアウト困難、リビングにもにょきっと小さな柱あり、リビングと洋室2をつなげても解放感がでなさそうな出っ張りしっかり、控えめなアルコーブからリビングまで丸見えでリビングイン洗面室・・・ まぁ・・・エリアNo1として最高の間取りを設計した!というより価格重視かもしれません。個人的には県内最強ランドマークマンションとして本気を見せてほしかったのですが商売的にはエリアとして出せる限界価格というものがあり、販売戸数も多く、色々と考慮された結果かもしれません。本物件北側の敷地には西部跡地の駐車場にあたる土地があり、そこでも400戸規模のマンションが計画中です。売れ残るわけにはいかんのです。草津市は滋賀の首都として最高の物件を高値で販売できますが、京都大阪に物理的に近い大津市だと「京都大阪のベッドタウン」としての需要が高くなるので、あまり高くすると「じゃあ京都でいいじゃねえか」となってしまうのです。「草津より京都に近いのに、琵琶湖がすぐそばで過ごしやすく、価格も草津より安い」これが大津の魅力なのでそこをしっかり捉えたマーケティングなのではないかと思います。
単なるベッドタウンだけではなくて、におの浜エリアは滋賀らしさが強い素敵な場所です。
詳細を別記事にしておりますのでよろしければご覧ください。
前編★シエリアシティ大津におの浜が建設予定 大津市におの浜エリアを散策 滋賀らしい開放感と利便性が同居する街【モルモット】
シエリアシティ大津におの浜はモデルルームOPEN前の先行見学会を受付中です。滋賀県でマンションを探すなら、とりあえずは見ておく価値がある特別なマンションなのは間違いなしです!価格次第で印象が変わりそうですが、そこは見学会でキチンと「希望」を伝えることで正式販売開始時には考慮されるかも・・??
終わりに
各エリアでランドマークとなる良いマンションが出てきています。 詳細は不明でマンションになるかどうかもわかりませんが、石山駅北口の工場跡地や草津駅前の平和堂周辺の再開発なども注目です。今回紹介した3物件に共通するのは「二度とない」ということです。
プラウドシティ大津京のような駅徒歩圏内琵琶湖フロントビュー大規模はもう建てる土地がない。
ブランズシティ南草津のように南草津駅から公園で直結となる土地はもうない。
シエリアシティ大津におの浜のように名前だけで誰もが場所をイメージでき、エリアど真ん中に共用施設モリモリの超大規模マンションは滋賀では(多分)もうない。
たまたまですが全て「シティ」という単語が物件名に含まれました。マンションは集合住宅、ちょっとした街です。共用施設や眺望といった、戸建がメインとなる地方だからこそ、戸建とは違う魅力を追求してなんぼなのかもしれません。
資産価値の観点からは「このマンションでしかこの希望は叶えられないんだ」という独自性が大切です。特に立地だけは丸ごと建て直しをしても変えられません。今回紹介した3物件はそれぞれ立地の独自性が強く、需要が根強く推移すると予想します。どれも特色が異なる個性光る物件です。滋賀は「ここがNo1の土地」というものがなく、「都心(京都)に近いほど人気」というわけでもありません。エリアごとに特徴があるのが面白い街ですね。どういう目的で滋賀に住むか次第ですが、距離としては離れていません。MR訪問時はせっかくなのでいろいろな滋賀の街を訪れて、気に入った街を選んで欲しいと思います。
追記
シエリアシティ大津にの浜現地で新しい看板ができてました。


共用施設、かなり高級感ありますね!!!
駐車場ももちろん大型車OKです!
コワーキングスペース、夜のゲストルームより暗いイメージで笑いました。
間取りは既出のものですが、イメージが「左の間取りはDINKSの割には広いな・・・まぁ滋賀だし?」「真ん中は71平米で子供一人想定ね」「右は広い角部屋は五人家族・・・」と思いきや金持ちそうな年季入った夫婦二人暮らしで逆にリアルでした。戸建からの移住ターゲットでしょうか?
追記2
モデルルームがオープンしましたので早速行ってきました。
[スムラボ編集部より] 本ブログ記事の情報は投稿日時点のものです。現在の販売情報は物件公式サイトをご参照下さい。
スムラボ記事
- 成瀬は天下を取りに行く!聖地膳所とモデルになったマンションを紹介!
- 滋賀県で家を買うなら?マンションvs戸建てを徹底比較!【モルモット】
- 令和の三種の神器でQOL爆上がり!家事時間を劇的に減らして、人生をもっと楽しもう!【モルモット】
- ミニマリスト的生き方、狭い部屋でも大丈夫! ~物欲と心の整理術、そして住宅選びの新たな視点~【モルモット】
- 琵琶湖から見る滋賀のマンションたち - ミシガンクルーズ & LAGO大津体験記【モルモット】
- 高騰する京都市内を脱出し「滋賀県大津市におの浜」はどうなんだい?西武大津店跡地のBIGプロジェクト『シエリアシティ大津におの浜』【kyoto1192】
- (後編)絶望した僕らはどこへ行く?京都市のマンション高すぎて優しい価格を求めて滋賀県琵琶湖へ【kyoto1192】
- 滋賀県 住みやすい街はどこだ? 大津駅 草津駅 南草津駅 膳所駅 石山駅・・・主要駅徹底紹介!【モルモット】
- 物件価格だけじゃない!都心部と地方部のマンションの違い 前編【モルモット】
- 後編★シエリアシティ大津におの浜が建設予定 大津市におの浜エリアを散策 滋賀らしい開放感と利便性が同居する街【モルモット】
記事に出てきた物件の掲示板
- エステムコート大津におの浜(検討スレ) | (まとめ) | (スムラボ)
- シエリアシティ大津におの浜(検討スレ) | (住民スレ) | (まとめ) | (スムラボ)
- プレサンス レジェンド 琵琶湖(検討スレ) | (住民スレ) | (まとめ)
- プラウドシティ大津京(検討スレ) | (まとめ) | (スムラボ)
- シエリアシティ明石大久保(検討スレ) | (住民スレ) | (まとめ)
- クラッシィハウス京都六地蔵(検討スレ) | (住民スレ) | (まとめ) | (スムラボ)
- ブランズシティ南草津(検討スレ) | (住民スレ) | (まとめ) | (スムラボ)
- イーグルコート京都御所南プレミアム迎賓館(検討スレ) | (まとめ)
公式サイトもチェックしよう!

- 滋賀県大津市におの浜2丁目
- JR東海道本線(琵琶湖線) 膳所 駅 徒歩7分 京阪石山坂本線 京阪膳所 駅 徒歩7分
- 4199万円~6419万円
- 1LDK+2S(納戸)~3LDK+S(納戸)
- 68m2~84.14m2
- 24戸 / 708戸





























記事にコメントする